Suis-je éligible à une réduction des droits d’enregistrement ?
Woeste
PRIX : 439 439,00 €
Type: Immeuble de rapport | Région: Bruxelles | Commune: Jette
Immeuble à appartement situé à l'avenue Charles Woeste 166 à Jette. Le bien est divisé comme suit: Rez: Hall d'entrée, garage, cave, buanderie, remise et cour de 20m². 1er/2ième/3ième étage: Appartement 1 chambre de 60m² avec salon, cuisine, salle de bains, chambre et bureau. Petit balcon. Compteurs séparés pour le gaz et l'électricité. L'immeuble est à rafraîchir. Momentanément, l'immeuble est habité par la propriétaire et n'est pas loué. Pas d'ascenseur. Châssis en PVC double vitrage. L'électricité n'est pas aux normes. Situation idéale proche du parc à Odon Warland, à deux pas des commerces et transports en commun. PEB: E/G/G. Idéal pour un investissement sain
Surface Totale: 260M²
Chambres: 3
Salles de bains: 3
Terrasse: 1
Garage: 1
Caves: 6
Bureaux: 3
Parking: 1
Vidéo
Découvrez le bien en visualisant cette vidéo
VISITE VIRTUELLE
Vous voulez en voir plus ? Visitez le bien comme si vous y étiez à travers cette visite virtuelle
Localisation
Ce bien vous correspond ? Découvrez maintenant si sa localisation vous convient !
Commerces
Pharmacies
Restaurants
Boulangeries
Crèches
Parcs
Écoles
Universités
Déplacements
Plans intérieurs
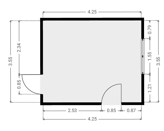
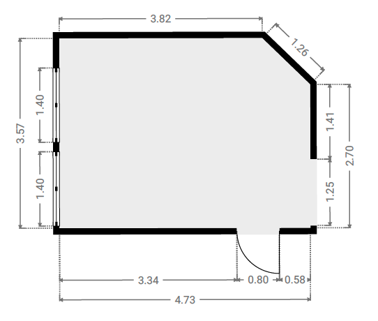
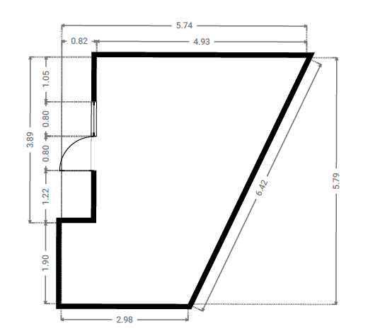
Rez-de-chaussée
SURFACE TOTALE : 80.72 m² | SURFACE HABITABLE : 45.54 m² | PIÈCE(S) : 11
La surface totale résulte de l’addition de la surface intérieure (c’est à dire calculée depuis l’intérieur des murs extérieurs) et des surfaces externes (balcons,terrains, jardins..).
1x Hall
1x Garage
2x Couloir(s)
6x Cave(s)
1x Buanderie
1x Terrasse
Hall
SURFACE : 16.31 m²
Garage
SURFACE : 13.12 m²
Couloir
SURFACE : 6.78 m²
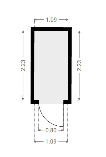
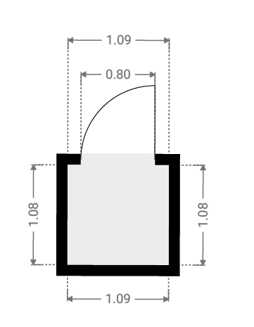
Cave 1
SURFACE : 2.05 m²
Cave 2
SURFACE : 2.43 m²
Cave 3
SURFACE : 2.43 m²
Cave 4
SURFACE : 2.43 m²
Buanderie
SURFACE : 8.51 m²
Terrasse
SURFACE : 22.07 m²
Couloir
SURFACE : 2.29 m²
Cave 5
SURFACE : 1.18 m²
Cave 6
SURFACE : 1.17 m²
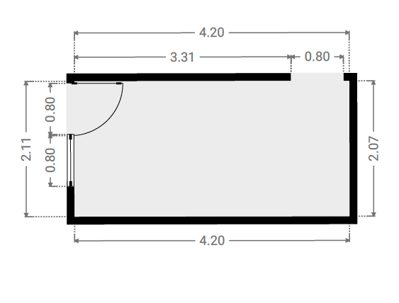
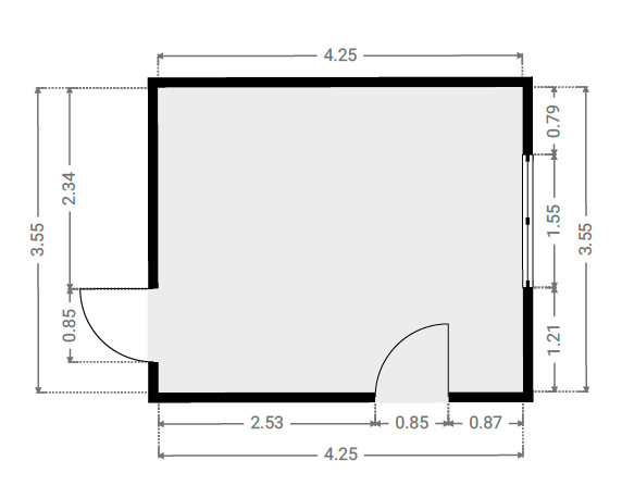
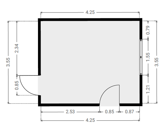
1er étage
SURFACE TOTALE : 59.67 m² | SURFACE HABITABLE : 59.67 m² | PIÈCE(S) : 8
La surface totale résulte de l’addition de la surface intérieure (c’est à dire calculée depuis l’intérieur des murs extérieurs) et des surfaces externes (balcons,terrains, jardins..).
1x Escalier
1x Cuisine 1
1x Séjour 1
1x Couloir
1x S.D.B 1
1x Chambre 1
1x Bureau 1
1x Rangement
Escalier
SURFACE : 5.82 m²
Cuisine 1
SURFACE : 8.71 m²
Séjour 1
SURFACE : 16.49 m²
Couloir
SURFACE : 3.35 m²
S.D.B 1
SURFACE : 3.31 m²
Chambre 1
SURFACE : 15.08 m²
Bureau 1
SURFACE : 5.8 m²
Rangement
SURFACE : 1.14 m²
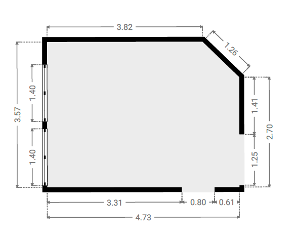
2e étage
SURFACE TOTALE : 59.67 m² | SURFACE HABITABLE : 59.67 m² | PIÈCE(S) : 8
La surface totale résulte de l’addition de la surface intérieure (c’est à dire calculée depuis l’intérieur des murs extérieurs) et des surfaces externes (balcons,terrains, jardins..).
1x Escalier
1x Cuisine 2
1x Séjour 2
1x Couloir
1x S.D.B 2
1x Chambre 2
1x Bureau 2
1x Rangement
Escalier
SURFACE : 5.82 m²
Cuisine 2
SURFACE : 8.71 m²
Séjour 2
SURFACE : 16.49 m²
Couloir
SURFACE : 3.35 m²
S.D.B 2
SURFACE : 3.31 m²
Chambre 2
SURFACE : 15.08 m²
Bureau 2
SURFACE : 5.8 m²
Rangement
SURFACE : 1.14 m²
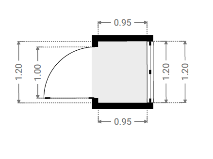
3e étage
SURFACE TOTALE : 59.67 m² | SURFACE HABITABLE : 59.67 m² | PIÈCE(S) : 8
La surface totale résulte de l’addition de la surface intérieure (c’est à dire calculée depuis l’intérieur des murs extérieurs) et des surfaces externes (balcons,terrains, jardins..).
1x Escalier
1x Cuisine 3
1x Séjour 3
1x Couloir
1x S.D.B 3
1x Chambre 3
1x Bureau 3
1x Rangement
Escalier
SURFACE : 5.82 m²
Cuisine 3
SURFACE : 8.71 m²
Séjour 3
SURFACE : 16.49 m²
Couloir
SURFACE : 3.35 m²
S.D.B 3
SURFACE : 3.31 m²
Chambre 3
SURFACE : 15.08 m²
Bureau 3
SURFACE : 5.8 m²
Rangement
SURFACE : 1.14 m²
RECHERCHE CADASTRALE
Vous souhaitez mieux connaître votre parcelle et connaître la surface dont vous jouirez en achetant ce bien, alors consulter le cadastre est nécessaire !
État des sols
La pollution du sol a un impact sur l'environnement et sur la
santé, les risques d’inondation ont un impact sur votre qualité de vie… Consultez les données
relatives à ce bien pour en avoir le cœur net !
ÉTAT DE LA POLLUTION DES SOLS
Aucune remarque particulière pour la parcelle D127s6
Source : Cliquez-ici
Légende :
ZONE INONDABLE
Aucune remarque particulière pour la parcelle D127s6
Source : Cliquez-ici
Légende :
Certificats
Informez-vous sur la performance énergétique de ce bien et assurez-vous que ses installations électriques sont bien aux normes !
PERFORMANCE ÉNERGÉTIQUE 3ÉME ETAGE
Économe
Très énergivore
PERFORMANCE ÉNERGÉTIQUE 2ÉME ETAGE
Économe
Très énergivore
PERFORMANCE ÉNERGÉTIQUE 1ER ETAGE
Économe
Très énergivore
CERTIFICAT ÉLECTRIQUE
PROCES VERBAL D’EXAMEN DE CONFORMITE ET/OU DE VISITE DE CONTROLE D’UNE INSTALLATION ELECTRIQUE BASSE TENSION
L'installation existante Non conforme
DATA ROOM
Nous avons mis tous les documents importants dans la date room, n’hésitez pas à télécharger ce dont vous avez besoin !
Av. Louise 433 Louizalaan 1050 Bruxelles - Brussel
Chaussée de Bruxelles 21 1310 La Hulpe