Surface : 1003 m²

Parcelle : A619g

 

 

PERFORMANCE ÉNERGÉTIQUE

Économe

A++  Espec ≤ 0
0 < Espec ≤ 45   A+
45 < Espec ≤ 85   A
85 < Espec ≤ 170   B
170 < Espec ≤ 255   C
255 < Espec ≤ 340   D
D
340 < Espec ≤ 425   E
425 < Espec ≤ 510   F
Espec > 510   G

Très énergivore

 

Consommation d’énergie primaire annuelle totale
87501 kWh/An
Surface du planché chauffé
278 m²
Consommation d’énergie primaire annuelle par m²
314 kWh/m².An

 

CERTIFICAT ÉLECTRIQUE

PROCES VERBAL D’EXAMEN DE CONFORMITE ET/OU DE VISITE DE CONTROLE D’UNE INSTALLATION ELECTRIQUE BASSE TENSION

La nouvelle installationNon Conforme


Agent
visiteur

DELCORPS Jean-Louis

Date
de certification

11/07/2024

Visite de contrôle
à effectuer avant le

11/07/2025

 

INDICATEURS SPÉCIFIQUES

Besoins en chaleur du logement
excessifs élevés moyens faibles minimes

 

Performance des installations de chauffage
médiocre insuffisante satisfaisante bonne excellente

 

Performance des installations d'eau chaude sanitaire
médiocre insuffisante satisfaisante bonne excellente

 

Système de ventillation
absent très partiel partiel incomplet complet

 

Utilisation d'énergies renouvelables
sol.them. sol.photovolt. biomasse pompe à chaleur cogénération

 

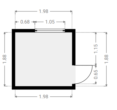
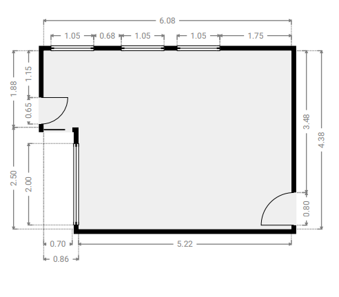
RDC Studio 1