Suis-je éligible à une réduction des droits d’enregistrement ?
Village 68
PRIX : 215 000,00€
Type: Maison | Région: Wallonie | Commune: Sauvenière
Située à 5min en voiture de la E411, entre Namur et Bruxelles, By the Way vous présente cette charmante maison de +/- 159m2 (selon PEB), avec terrasse et garage.Composition : Au rez-de-chaussée, grande cuisine semi-équipée de +/- 25m2 avec puits de lumière, WC séparé, séjour/salle à manger de presque 40m2 (actuellement 2 pièces séparées), cellier/réserve. Carrelage sur toute la surface placé en 2004. Au 1er étage, 2 chambres de +/- 12m2 et 15,5m2 et une salle de bains avec WC et espace buanderie. Plancher sur toute la surface placé en 2010. Au 3ème étage, combles de +/- 35,5m2 aménagés en 2014 en tant que troisième chambre et dressing. Grande terrasse de +/- 33m2 au niveau des pièces de vie, orientée au Sud-Ouest. Remise/atelier et garage fermé de part et d'autre de la terrasse. Caves au sous-sol. PEB F. Electricité non conforme. Divers : chaudière au mazout de 2004 (cuve de moins de 3000 litres), châssis double vitrage récents au 1er étage (2018), précompte immobilier de 649€. Ces informations sont données à titre indicatif et non contractuel.
Surface brute: 159 m²
Chambres: 3
Salle de bain: 1
Terrasse: orientée au Sud-Ouest
Garage: 1
Cave: 1
Vidéo
Découvrez le bien en visualisant cette vidéo
VISITE VIRTUELLE
Vous voulez en voir plus ? Visitez le bien comme si vous y étiez à travers cette visite virtuelle
Localisation
Ce bien vous correspond ? Découvrez maintenant si sa localisation vous convient !
Commerces
Pharmacies
Restaurants
Boulangeries
Crèches
Parcs
Écoles
Universités
Déplacements
Plans intérieurs
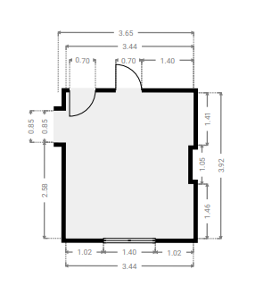
Sous-sol
SURFACE TOTALE : 19.87 m² | SURFACE HABITABLE : 0.00 m² | PIÈCE(S) : 1
1x Cave
Cave
SURFACE : 19.87 m²
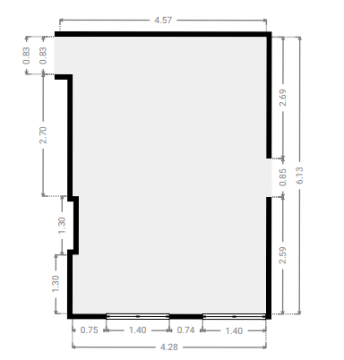
Rez-de-chaussée
SURFACE TOTALE : 127.49 m² | SURFACE HABITABLE : 79.65 m² | PIÈCE(S) : 8
1x Séjour
1x Salle à manger
1x Buanderie
1x Couloir
1x Cuisine
1x W.C
1x Terrasse
1x Garage
1x Remise
Séjour
SURFACE : 13.53 m²
Salle à manger
SURFACE : 26.31 m²
Buanderie
SURFACE : 4.87 m²
Couloir
SURFACE : 2.19 m²
Cuisine
SURFACE : 25 m²
W.C
SURFACE : 1.09 m²
Terrasse
SURFACE : 33.2 m²
Garage
SURFACE : 15.66 m²
Remise
SURFACE : 5.71 m²
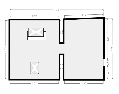
1er étage
SURFACE TOTALE : 45.47 m² | SURFACE HABITABLE : 45.47 m² | PIÈCE(S) : 4
2x Chambre(s)
1x S.D.B
1x Couloir
Chambre 1
SURFACE : 12.13 m²
Chambre 2
SURFACE : 15.67 m²
S.D.B
SURFACE : 8.16 m²
Couloir
SURFACE : 8.25 m²
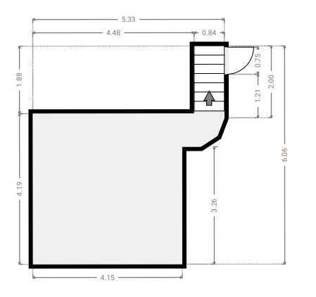
2e étage
SURFACE TOTALE : 35.78 m² | SURFACE HABITABLE : 35.78 m² | PIÈCE(S) : 1
1x Chambre
Chambre 3
SURFACE : 35.79 m²
RECHERCHE CADASTRALE
Vous souhaitez mieux connaître votre parcelle et connaître la surface dont vous jouirez en achetant ce bien, alors consulter le cadastre est nécessaire !
Surface : 133 m²
Parcelle : B694d(maison)
État des sols
La pollution du sol a un impact sur l'environnement et sur la santé, les risques d’inondation ont un impact sur votre qualité de vie… Consultez les données relatives à ce bien pour en avoir le cœur net !
ÉTAT DE LA POLLUTION DES SOLS
Aucune remarque particulière pour les parcelles B694d/B695r
Source : Cliquez-ici
Légende :
ZONE INONDABLE
Aucune remarque particulière pour les parcelles B694d/B695r
Source : Cliquez-ici
Légende :
Certificats
Informez-vous sur la performance énergétique de ce bien et assurez-vous que ses installations électriques sont bien aux normes !
PERFORMANCE ÉNERGÉTIQUE
Économe
Très énergivore
CERTIFICAT ÉLECTRIQUE
PROCES VERBAL D’EXAMEN DE CONFORMITE ET/OU DE VISITE DE CONTROLE D’UNE INSTALLATION ELECTRIQUE BASSE TENSION
La nouvelle installation NON CONFORME
Agent
visiteur
Jean François Nibus
Date
de certification
19/07/2024
Visite de contrôle
à effectuer avant le
19/07/2025
INDICATEURS SPÉCIFIQUES
| Besoins en chaleur du logement | ||||
| excessifs | élevés | moyens | faibles | minimes |
| Performance des installations de chauffage | ||||
| médiocre | insuffisante | satisfaisante | bonne | excellente |
| Performance des installations d'eau chaude sanitaire | ||||
| médiocre | insuffisante | satisfaisante | bonne | excellente |
| Système de ventillation | ||||
| absent | très partiel | partiel | incomplet | complet |
DATA ROOM
Nous avons mis tous les documents importants dans la date room, n’hésitez pas à télécharger ce dont vous avez besoin !
Nous avons mis tous les documents importants dans la date room, n’hésitez pas à télécharger ce dont vous avez besoin !
Besoin de crédit
Maintenant que vous êtes sûrs d’avoir fait le bon choix, calculez la valeur totale de cette acquisition (valeur du bien et frais annexes) et estimez vos besoins en crédit !
Simulation de crédit
| Prix d'achat | € |
| Rénovation | € |
| Rénovation HTVA | {{ calculeData.renovationHTVA | number:2 }} € |
| TVA | {{ calculeData.tva | number:2 }} € |
| Fonds propres | € |
| Acompte dû (disponible au compromis de vente) | {{ calculeData.prix * 0.1 | number:2 }} € |
| Reste des liquidités (disponible à l'acte) | {{ calculeData.avance | number:2 }} € |
| Crédit pont | {{ calculeData.creditPont | number:2 }} € |
| Prix de vente de votre bien existant | € |
| Solde du crédit existant | € |
| Frais d'acte d'achat | {{ calculeData.droit + calculeData.fraisNotaire | number:2 }} € |
| Droits d'enregistrement | {{ calculeData.droit | number:2 }} € |
|
Abattement
Suis-je éligible à une réduction des droits d’enregistrement ? |
|
| Frais de notaire | {{ calculeData.fraisNotaire | number:2 }} € |
| Autres frais | {{ calculeData.inscription + calculeData.fraisDossier + calculeData.autreFrais | number:2 }} € |
| Frais liés à l'acte hypothécaire | {{ calculeData.inscription | number:2 }} € |
| Frais de dossier et expertise bancaire | {{ calculeData.fraisDossier | number:2 }} € |
| Autres frais | € |
| Montant du crédit | {{ calculeData.montantCredit | number:2 }} € | |
La présente simulation se base sur un taux d’intérêt du 12/08/2024. Ce calcul est indicatif et sujet à changement.
Choix du type de crédit
| Taux | Type | CAP | Mensualité | Mensualité Min | Mensualité Max | |
|---|---|---|---|---|---|---|
| {{ tx.banque }} {{ $index+1 }} | {{ tx.taux | number:2 }}% | {{ tx.type }} | -{{ tx.capNeg }}%/+{{ tx.capPos }}% | {{ tx.mens | number:2 }}€ | {{ tx.min | number:2 }}€ | {{ tx.max | number:2 }}€ |
| Taux | Type | CAP | Mensualité | Mensualité Min | Mensualité Max | |
|---|---|---|---|---|---|---|
| {{ tx.banque }} {{ $index+1 }} | {{ tx.taux | number:2 }}% | {{ tx.type }} | -{{ tx.capNeg }}%/+{{ tx.capPos }}% | {{ tx.mens | number:2 }}€ | {{ tx.min | number:2 }}€ | {{ tx.max | number:2 }}€ |
| Taux | Type | CAP | Mensualité | Mensualité Min | Mensualité Max | |
|---|---|---|---|---|---|---|
| {{ tx.banque }} {{ $index+1 }} | {{ tx.taux | number:2 }}% | {{ tx.type }} | -{{ tx.capNeg }}%/+{{ tx.capPos }}% | {{ tx.mens | number:2 }}€ | {{ tx.min | number:2 }}€ | {{ tx.max | number:2 }}€ |
Rentabilité
Cout total de l’acquisition
| Prix d'achat | {{ calculeData.prix | number:2 }} € |
| Rénovation | + {{ calculeData.prixTransRenovation | number:2 }} € |
| Frais | + {{ calculeData.frais | number:2 }} € |
| Coût total | + {{ calculeData.frais + calculeData.prixTransRenovation + calculeData.prix | number:2 }} € |
| Fonds propres + crédit pont | {{ calculeData.totalFP+calculeData.creditPont | number:2 }} € |
| Montant du crédit | {{ calculeData.montantCredit | number:2 }} € |
| Coût total | + {{ calculeData.creditPont + calculeData.totalFP + calculeData.montantCredit | number:2 }} € |
Rentabilité sur actifs
Durée de détention année(s)
Gain réel {{ calculeData.gainReel | number:0 }} €
Rendement sur actif {{ calculeData.rendementSurActif | number:2 }} %
Revenus
| Revenu locatif annuel Brut | € |
| Charge annuelle {{ calculeData.pourcentageCharge | number:2 }}% | {{ calculeData.chargeLocatifAnnuel | number:2 }} € |
| Précompte immobilier | {{ calculeData.precomteImmo | number:2 }} € |
| Autre charge annuelle | € |
| Revenu locatif annuel net | {{ calculeData.revenuLocatifAnnuelNet | number:2 }} € |
| Total revenu locatif après {{ calculeData.dureeDetention }} année(s) tenant compte d'une inflation de % |
{{ calculeData.totalRevenuLocatif | number:2 }} € |
| Plus-value latente | {{ calculeData.pluvalueLatente | number:2 }} % |
| Plus-value du bien après {{calculeData.dureeDetention}} année(s) | {{ calculeData.pluvalueBien | number:2 }} € |
| Total revenu locatif après {{ calculeData.dureeDetention }} année(s) | {{ calculeData.totalRevenuLocatif | number:2 }} € |
| Gain brut sur le prix de base après {{ calculeData.dureeDetention }} année(s) | +{{ calculeData.gainBrut | number:2 }} € |
Charges
| Durée du crédit | {{ calculeData.duree | number:2 }} ans |
| Taux | {{ calculeData.taux | number:2 }} % |
| Mensualité | {{ calculeData.mensualite | number:2 }} € |
| Total interêts après {{calculeData.dureeDetention}} année(s) | {{ calculeData.totalInteret | number:2 }} € |
| Total frais | {{ calculeData.frais | number:2 }} € |
| Total | {{ calculeData.InteretFrais | number:2 }} € |
Gain réel
Rendement sur actif
Cash flow
| Année | Coût | Revenu locatif | Gain |
|---|---|---|---|
| {{ $index }} | {{ ch.payment | number:2 }} € | {{ ch.revenuLocatif | number:2 }} € | {{ - ch.fondPropre | number:2 }} € |
Av. Louise 461 1050 Bruxelles - 02 648 01 20
Drève Richelle 96 1410 Waterloo - 02 354 29 39
Av. Prekelinden 83 1200 Woluwe-St-Lambert - 02 734 00 36