Suis-je éligible à une réduction des droits d’enregistrement ?
Verte voie
PRIX : 398 000,00€
Type: Maison | Région: Wallonie | Commune: Wavre
Charmante Villa Années '30 à rénover à Wavre Située sur les hauteurs de Wavre, dans le pittoresque quartier de Stadt, à deux pas de la campagne, By the Way vous présente cette villa pleine de charme des années '30. Cette maison à rénover conserve de magnifiques finitions d'époque, telles que l'escalier, les planchers et les carrelages authentiques. Le rez-de-chaussée accueillant comprend un hall d’entrée spacieux, un salon chaleureux avec feu ouvert, une salle à manger en enfilade, ainsi qu'une cuisine fonctionnelle donnant accès à une véranda équipée d’une tente solaire motorisée et un WC. Vous apprécierez la terrasse et le jardin bucolique, clôturé et orienté sud sud-ouest, parfaits pour profiter des journées ensoleillées. Une buanderie, un atelier et un garage pour une voiture complètent ce niveau. À l'étage supérieur, le hall de nuit distribue deux chambres spacieuses et une salle de bain avec WC. Le second étage aménageable comprend une troisième chambre et deux espaces grenier offrant la possibilité de créer une quatrième chambre et une salle de douche. Le sous-sol pratique dispose de caves voûtées et d'une chaufferie. En termes d’énergies, la maison présente un PEB F, une électricité non conforme et un chauffage central au mazout avec une chaudière datant de 2003.
Surface habitable: 151.43 m²
Grenier: 1
Surface totale: 249.59 m²
Chambres: 4
Salle de bain: 1
Garage: 1
Caves: 2
Veranda: 1
Vidéo
Découvrez le bien en visualisant cette vidéo
VISITE VIRTUELLE
Vous voulez en voir plus ? Visitez le bien comme si vous y étiez à travers cette visite virtuelle
Localisation
Ce bien vous correspond ? Découvrez maintenant si sa localisation vous convient !
Commerces
Pharmacies
Restaurants
Boulangeries
Crèches
Parcs
Écoles
Universités
Déplacements
Plans intérieurs
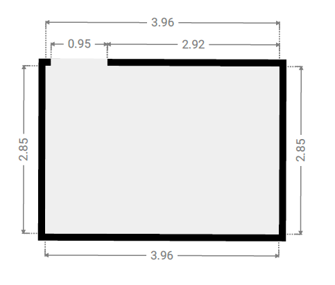
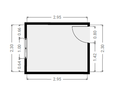
Sous-sol
SURFACE TOTALE : 35.42 m² | SURFACE HABITABLE : 34.82 m² | PIÈCE(S) : 3
2x Caves
1x Couloir
Cave 1
SURFACE : 14.07 m²
Couloir
SURFACE : 9.48 m²
Cave 2
SURFACE : 11.29 m²
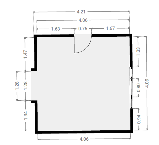
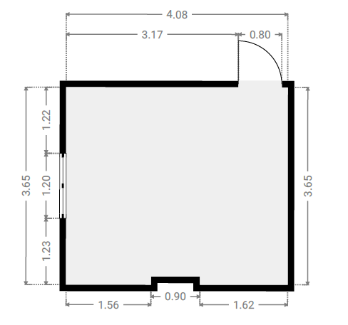
Rez-de-chaussée
SURFACE TOTALE : 112.80 m² | SURFACE HABITABLE : 83.74 m² | PIÈCE(S) : 10
1x Hall
1x Séjour
1x Salle à manger
1x Cuisine
1x Véranda
1x W.C
1x Buanderie
1x Rangement
1x Atelier
1x Garage
Hall
SURFACE : 7.7 m²
Séjour
SURFACE : 16.78 m²
Salle à manger
SURFACE : 15.06 m²
Cuisine
SURFACE : 9.43 m²
Véranda
SURFACE : 17.61 m²
W.C
SURFACE : 0.97 m²
Buanderie
SURFACE : 11.93 m²
Rangement
SURFACE : 1.22 m²
Atelier
SURFACE : 11.08 m²
Garage
SURFACE : 17.98 m²
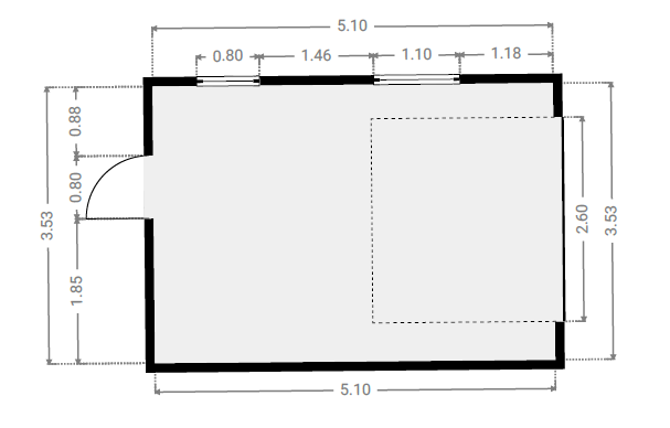
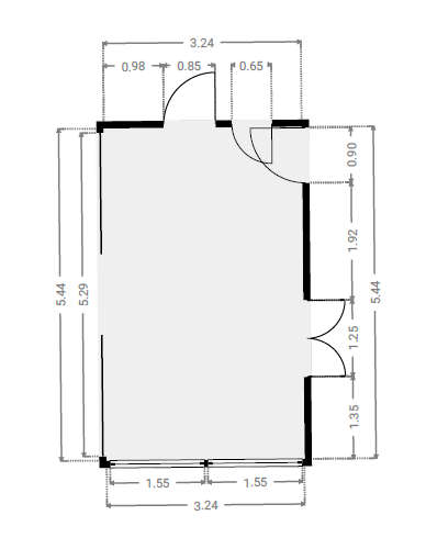
1er étage
SURFACE TOTALE : 50.49 m² | SURFACE HABITABLE : 50.49 m² | PIÈCE(S) : 4
1x Couloir
1x S.D.B
2x Chambres
Couloir
SURFACE : 10.14 m²
S.D.B
SURFACE : 6.78 m²
Chambre 1
SURFACE : 14.75 m²
Chambre 2
SURFACE : 16.62 m²
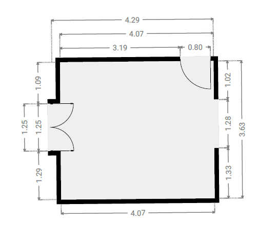
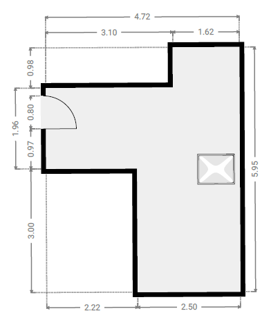
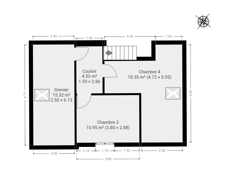
2e étage
SURFACE TOTALE : 50.88 m² | SURFACE HABITABLE : 50.88 m² | PIÈCE(S) : 4
1x Couloir
1x grenier
2x Chambres
Couloir
SURFACE : 4.53 m²
grenier
SURFACE : 15.32 m²
chambre 4
SURFACE : 18.35 m²
chambre 3
SURFACE : 10.32 m²
RECHERCHE CADASTRALE
Vous souhaitez mieux connaître votre parcelle et connaître la surface dont vous jouirez en achetant ce bien, alors consulter le cadastre est nécessaire !
État des sols
La pollution du sol a un impact sur l'environnement et sur la
santé, les risques d’inondation ont un impact sur votre qualité de vie… Consultez les données
relatives à ce bien pour en avoir le cœur net !
ÉTAT DE LA POLLUTION DES SOLS
Aucune remarque particulière pour la parcelle D170e2
Source : Cliquez-ici
Légende :
ZONE INONDABLE
Aucune remarque particulière pour la parcelle D170e2
Source : Cliquez-ici
Légende :
Certificats
Informez-vous sur la performance énergétique de ce bien et assurez-vous que ses installations électriques sont bien aux normes !
PERFORMANCE ÉNERGÉTIQUE
Économe
Très énergivore
CERTIFICAT ÉLECTRIQUE
PROCES VERBAL D’EXAMEN DE CONFORMITE ET/OU DE VISITE DE CONTROLE D’UNE INSTALLATION ELECTRIQUE BASSE TENSION
La nouvelle installationNon conforme
Agent
visiteur
Quentin Delhaye
Date
de certification
06/06/2024
Visite de contrôle
à effectuer avant le
18 mois prenant cours le jour de l’acte de vente.
DATA ROOM
Nous avons mis tous les documents importants dans la date room, n’hésitez pas à télécharger ce dont vous avez besoin !
Nous avons mis tous les documents importants dans la date room, n’hésitez pas à télécharger ce dont vous avez besoin !
Besoin de crédit
Maintenant que vous êtes sûrs d’avoir fait le bon choix, calculez la valeur totale de cette acquisition (valeur du bien et frais annexes) et estimez vos besoins en crédit !
Simulation de crédit
| Prix d'achat | € |
| Rénovation | € |
| Rénovation HTVA | {{ calculeData.renovationHTVA | number:2 }} € |
| TVA | {{ calculeData.tva | number:2 }} € |
| Fonds propres | € |
| Acompte dû (disponible au compromis de vente) | {{ calculeData.prix * 0.1 | number:2 }} € |
| Reste des liquidités (disponible à l'acte) | {{ calculeData.avance | number:2 }} € |
| Crédit pont | {{ calculeData.creditPont | number:2 }} € |
| Prix de vente de votre bien existant | € |
| Solde du crédit existant | € |
| Frais d'acte d'achat | {{ calculeData.droit + calculeData.fraisNotaire | number:2 }} € |
| Droits d'enregistrement | {{ calculeData.droit | number:2 }} € |
|
Abattement
Suis-je éligible à une réduction des droits d’enregistrement ? |
|
| Frais de notaire | {{ calculeData.fraisNotaire | number:2 }} € |
| Autres frais | {{ calculeData.inscription + calculeData.fraisDossier + calculeData.autreFrais | number:2 }} € |
| Frais liés à l'acte hypothécaire | {{ calculeData.inscription | number:2 }} € |
| Frais de dossier et expertise bancaire | {{ calculeData.fraisDossier | number:2 }} € |
| Autres frais | € |
| Montant du crédit | {{ calculeData.montantCredit | number:2 }} € | |
La présente simulation se base sur un taux d’intérêt du 12/06/2024. Ce calcul est indicatif et sujet à changement.
Choix du type de crédit
| Taux | Type | CAP | Mensualité | Mensualité Min | Mensualité Max | |
|---|---|---|---|---|---|---|
| {{ tx.banque }} {{ $index+1 }} | {{ tx.taux | number:2 }}% | {{ tx.type }} | -{{ tx.capNeg }}%/+{{ tx.capPos }}% | {{ tx.mens | number:2 }}€ | {{ tx.min | number:2 }}€ | {{ tx.max | number:2 }}€ |
| Taux | Type | CAP | Mensualité | Mensualité Min | Mensualité Max | |
|---|---|---|---|---|---|---|
| {{ tx.banque }} {{ $index+1 }} | {{ tx.taux | number:2 }}% | {{ tx.type }} | -{{ tx.capNeg }}%/+{{ tx.capPos }}% | {{ tx.mens | number:2 }}€ | {{ tx.min | number:2 }}€ | {{ tx.max | number:2 }}€ |
| Taux | Type | CAP | Mensualité | Mensualité Min | Mensualité Max | |
|---|---|---|---|---|---|---|
| {{ tx.banque }} {{ $index+1 }} | {{ tx.taux | number:2 }}% | {{ tx.type }} | -{{ tx.capNeg }}%/+{{ tx.capPos }}% | {{ tx.mens | number:2 }}€ | {{ tx.min | number:2 }}€ | {{ tx.max | number:2 }}€ |
Rentabilité
Cout total de l’acquisition
| Prix d'achat | {{ calculeData.prix | number:2 }} € |
| Rénovation | + {{ calculeData.prixTransRenovation | number:2 }} € |
| Frais | + {{ calculeData.frais | number:2 }} € |
| Coût total | + {{ calculeData.frais + calculeData.prixTransRenovation + calculeData.prix | number:2 }} € |
| Fonds propres + crédit pont | {{ calculeData.totalFP+calculeData.creditPont | number:2 }} € |
| Montant du crédit | {{ calculeData.montantCredit | number:2 }} € |
| Coût total | + {{ calculeData.creditPont + calculeData.totalFP + calculeData.montantCredit | number:2 }} € |
Rentabilité sur actifs
Durée de détention année(s)
Gain réel {{ calculeData.gainReel | number:0 }} €
Rendement sur actif {{ calculeData.rendementSurActif | number:2 }} %
Revenus
| Revenu locatif annuel Brut | € |
| Charge annuelle {{ calculeData.pourcentageCharge | number:2 }}% | {{ calculeData.chargeLocatifAnnuel | number:2 }} € |
| Précompte immobilier | {{ calculeData.precomteImmo | number:2 }} € |
| Autre charge annuelle | € |
| Revenu locatif annuel net | {{ calculeData.revenuLocatifAnnuelNet | number:2 }} € |
| Total revenu locatif après {{ calculeData.dureeDetention }} année(s) tenant compte d'une inflation de % |
{{ calculeData.totalRevenuLocatif | number:2 }} € |
| Plus-value latente | {{ calculeData.pluvalueLatente | number:2 }} % |
| Plus-value du bien après {{calculeData.dureeDetention}} année(s) | {{ calculeData.pluvalueBien | number:2 }} € |
| Total revenu locatif après {{ calculeData.dureeDetention }} année(s) | {{ calculeData.totalRevenuLocatif | number:2 }} € |
| Gain brut sur le prix de base après {{ calculeData.dureeDetention }} année(s) | +{{ calculeData.gainBrut | number:2 }} € |
Charges
| Durée du crédit | {{ calculeData.duree | number:2 }} ans |
| Taux | {{ calculeData.taux | number:2 }} % |
| Mensualité | {{ calculeData.mensualite | number:2 }} € |
| Total interêts après {{calculeData.dureeDetention}} année(s) | {{ calculeData.totalInteret | number:2 }} € |
| Total frais | {{ calculeData.frais | number:2 }} € |
| Total | {{ calculeData.InteretFrais | number:2 }} € |
Gain réel
Rendement sur actif
Cash flow
| Année | Coût | Revenu locatif | Gain |
|---|---|---|---|
| {{ $index }} | {{ ch.payment | number:2 }} € | {{ ch.revenuLocatif | number:2 }} € | {{ - ch.fondPropre | number:2 }} € |
Av. Louise 433 1050 Bruxelles - 02 648 01 20
Drève Richelle 96 1410 Waterloo - 02 354 29 39
Av. Prekelinden 83 1200 Woluwe-St-Lambert - 02 734 00 36