Suis-je éligible à une réduction des droits d’enregistrement ?
Venizelos
PRIX : 587 848,00€
Type: Immeuble de rapport | Région: Bruxelles | Commune: Anderlecht
Immeuble de 4 appartements situé au coin de l'Avenue Venizelos et de la rue Pierre Schlosser à Anderlecht. L'immeuble est reconnu par la commune avec ses 4 entités avec acte de base. Le bien est vendu dans sa totalité. Division: 2 appartements au rez-de-chaussée de 50m² et 45m² avec salon, salle à manger, cuisine, chambre, salle de douche et cour. Au premier étage nous avons 2 appartements de 60m² et 62m² avec salon, salle à manger, cuisine, 1 et 2 chambres et salle de douche. L'électricité dans tous les appartements est conforme. Chaque appartement dispose de sa chaudière individuelle ainsi que de son compteur d'eau séparé. Châssis en PVC, double vitrage + velux. L'immeuble est loué pour un montant de 36.692€/an, ce qui nous donne un bon rendement avec des locataires habitant l'immeuble depuis plusieurs années. Situation idéale proche de la place Bizet avec le métro, commerce et écoles à deux pas. PEB: F/G/G/G
Surface habitable: 265.66 m² NET
Chambres: 5
Salles de douche: 4
Caves: 5
Vidéo
Découvrez le bien en visualisant cette vidéo
VISITE VIRTUELLE
Vous voulez en voir plus ? Visitez le bien comme si vous y étiez à travers cette visite virtuelle
Localisation
Ce bien vous correspond ? Découvrez maintenant si sa localisation vous convient !
Commerces
Pharmacies
Restaurants
Boulangeries
Crèches
Parcs
Écoles
Universités
Déplacements
Plans intérieurs
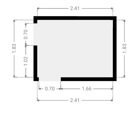
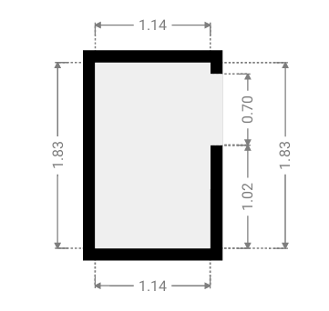
Sous-sol
SURFACE TOTALE : 28.18 m² | SURFACE HABITABLE : 28.18 m² | PIÈCE(S) : 5
5x Caves
Cave 5
SURFACE : 6.13 m²
Cave 4
SURFACE : 6.08 m²
Cave 3
SURFACE : 4.41 m²
Cave 2
SURFACE : 2.08 m²
Cave 1
SURFACE : 3.03 m²
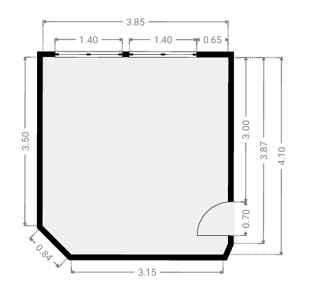
Rez-de-chaussée
SURFACE TOTALE : 116.76 m² | SURFACE HABITABLE : 116.77 m² | PIÈCE(S) : 13
1x Salle à manger / Cuisine 1
1x Séjour 1
2x Halls
3x Couloir(s)
2x S.D.D s
2x Chambres
1x Séjour / Cuisine 2
1x Buanderie
Salle à manger / Cuisine 1
SURFACE : 12.61 m²
Séjour 1
SURFACE : 11.11 m²
Hall 1
SURFACE : 6.97 m²
Couloir
SURFACE : 2.33 m²
S.D.D 1
SURFACE : 3.91 m²
Chambre 1
SURFACE : 10.71 m²
Séjour / Cuisine 2
SURFACE : 21.27 m²
S.D.D 2
SURFACE : 2.58 m²
Buanderie
SURFACE : 2.49 m²
Hall 2
SURFACE : 1.5 m²
Couloir
SURFACE : 2.36 m²
Chambre 2
SURFACE : 15.59 m²
Couloir
SURFACE : 1.3 m²
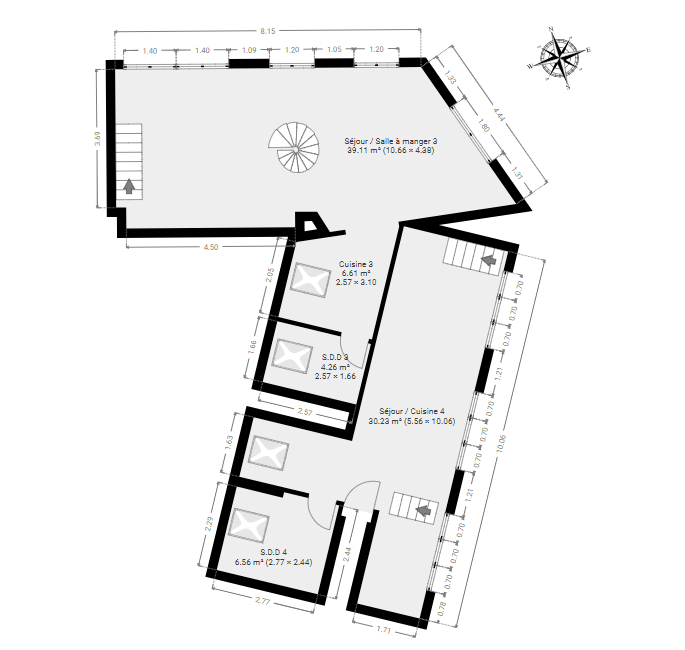
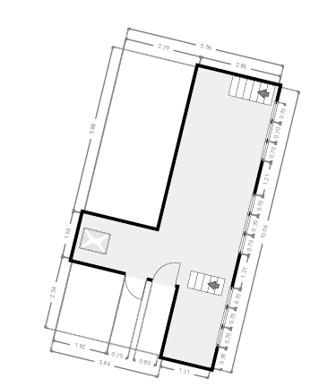
1er étage
SURFACE TOTALE : 104.9 m² | SURFACE HABITABLE : 104.9 m² | PIÈCE(S) : 5
1x Séjour / Salle à manger 3
1x Cuisine 3
2x S.D.Ds
1x Séjour / Cuisine 4
Séjour / Salle à manger 3
SURFACE : 39.11 m²
Cuisine 3
SURFACE : 6.61 m²
S.D.D 3
SURFACE : 4.26 m²
Séjour / Cuisine 4
SURFACE : 30.23 m²
S.D.D 4
SURFACE : 6.56 m²
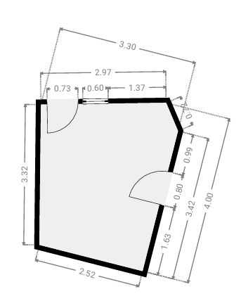
2e étage
SURFACE TOTALE : 44 m² | SURFACE HABITABLE : 44 m² | PIÈCE(S) : 3
3x Chambres
Chambre 3
SURFACE : 12.76 m²
Chambre 4
SURFACE : 10.68 m²
Chambre 5
SURFACE : 9.88 m²
RECHERCHE CADASTRALE
Vous souhaitez mieux connaître votre parcelle et connaître la surface dont vous jouirez en achetant ce bien, alors consulter le cadastre est nécessaire !
État des sols
La pollution du sol a un impact sur l'environnement et sur la
santé, les risques d’inondation ont un impact sur votre qualité de vie… Consultez les données
relatives à ce bien pour en avoir le cœur net !
ÉTAT DE LA POLLUTION DES SOLS
Aucune remarque particulière pour la parcelle H678z4
Source : Cliquez-ici
Légende :
ZONE INONDABLE
Aucune remarque particulière pour la parcelle H678z4
Source : Cliquez-ici
Légende :
Certificats
Informez-vous sur la performance énergétique de ce bien et assurez-vous que ses installations électriques sont bien aux normes !
CERTIFICAT ÉLECTRIQUE Droite + Gauche
PROCES VERBAL D’EXAMEN DE CONFORMITE ET/OU DE VISITE DE CONTROLE D’UNE INSTALLATION ELECTRIQUE BASSE TENSION
La nouvelle installationConforme
Agent
visiteur
DE BROEYER
Date
de certification
20/10/2005
Visite de contrôle
à effectuer avant le
20/10/2030
DATA ROOM
Nous avons mis tous les documents importants dans la date room, n’hésitez pas à télécharger ce dont vous avez besoin !
Nous avons mis tous les documents importants dans la date room, n’hésitez pas à télécharger ce dont vous avez besoin !
Besoin de crédit
Maintenant que vous êtes sûrs d’avoir fait le bon choix, calculez la valeur totale de cette acquisition (valeur du bien et frais annexes) et estimez vos besoins en crédit !
Simulation de crédit
| Prix d'achat | € |
| Rénovation | € |
| Rénovation HTVA | {{ calculeData.renovationHTVA | number:2 }} € |
| TVA | {{ calculeData.tva | number:2 }} € |
| Fonds propres | € |
| Acompte dû (disponible au compromis de vente) | {{ calculeData.prix * 0.1 | number:2 }} € |
| Reste des liquidités (disponible à l'acte) | {{ calculeData.avance | number:2 }} € |
| Crédit pont | {{ calculeData.creditPont | number:2 }} € |
| Prix de vente de votre bien existant | € |
| Solde du crédit existant | € |
| Frais d'acte d'achat | {{ calculeData.droit + calculeData.fraisNotaire | number:2 }} € |
| Droits d'enregistrement | {{ calculeData.droit | number:2 }} € |
|
Abattement
Suis-je éligible à une réduction des droits d’enregistrement ? |
|
| Frais de notaire | {{ calculeData.fraisNotaire | number:2 }} € |
| Autres frais | {{ calculeData.inscription + calculeData.fraisDossier + calculeData.autreFrais | number:2 }} € |
| Frais liés à l'acte hypothécaire | {{ calculeData.inscription | number:2 }} € |
| Frais de dossier et expertise bancaire | {{ calculeData.fraisDossier | number:2 }} € |
| Autres frais | € |
| Montant du crédit | {{ calculeData.montantCredit | number:2 }} € | |
La présente simulation se base sur un taux d’intérêt du 21/06/2024. Ce calcul est indicatif et sujet à changement.
Choix du type de crédit
| Taux | Type | CAP | Mensualité | Mensualité Min | Mensualité Max | |
|---|---|---|---|---|---|---|
| {{ tx.banque }} {{ $index+1 }} | {{ tx.taux | number:2 }}% | {{ tx.type }} | -{{ tx.capNeg }}%/+{{ tx.capPos }}% | {{ tx.mens | number:2 }}€ | {{ tx.min | number:2 }}€ | {{ tx.max | number:2 }}€ |
| Taux | Type | CAP | Mensualité | Mensualité Min | Mensualité Max | |
|---|---|---|---|---|---|---|
| {{ tx.banque }} {{ $index+1 }} | {{ tx.taux | number:2 }}% | {{ tx.type }} | -{{ tx.capNeg }}%/+{{ tx.capPos }}% | {{ tx.mens | number:2 }}€ | {{ tx.min | number:2 }}€ | {{ tx.max | number:2 }}€ |
| Taux | Type | CAP | Mensualité | Mensualité Min | Mensualité Max | |
|---|---|---|---|---|---|---|
| {{ tx.banque }} {{ $index+1 }} | {{ tx.taux | number:2 }}% | {{ tx.type }} | -{{ tx.capNeg }}%/+{{ tx.capPos }}% | {{ tx.mens | number:2 }}€ | {{ tx.min | number:2 }}€ | {{ tx.max | number:2 }}€ |
Rentabilité
Cout total de l’acquisition
| Prix d'achat | {{ calculeData.prix | number:2 }} € |
| Rénovation | + {{ calculeData.prixTransRenovation | number:2 }} € |
| Frais | + {{ calculeData.frais | number:2 }} € |
| Coût total | + {{ calculeData.frais + calculeData.prixTransRenovation + calculeData.prix | number:2 }} € |
| Fonds propres + crédit pont | {{ calculeData.totalFP+calculeData.creditPont | number:2 }} € |
| Montant du crédit | {{ calculeData.montantCredit | number:2 }} € |
| Coût total | + {{ calculeData.creditPont + calculeData.totalFP + calculeData.montantCredit | number:2 }} € |
Rentabilité sur actifs
Durée de détention année(s)
Gain réel {{ calculeData.gainReel | number:0 }} €
Rendement sur actif {{ calculeData.rendementSurActif | number:2 }} %
Revenus
| Revenu locatif annuel Brut | € |
| Charge annuelle {{ calculeData.pourcentageCharge | number:2 }}% | {{ calculeData.chargeLocatifAnnuel | number:2 }} € |
| Précompte immobilier | {{ calculeData.precomteImmo | number:2 }} € |
| Autre charge annuelle | € |
| Revenu locatif annuel net | {{ calculeData.revenuLocatifAnnuelNet | number:2 }} € |
| Total revenu locatif après {{ calculeData.dureeDetention }} année(s) tenant compte d'une inflation de % |
{{ calculeData.totalRevenuLocatif | number:2 }} € |
| Plus-value latente | {{ calculeData.pluvalueLatente | number:2 }} % |
| Plus-value du bien après {{calculeData.dureeDetention}} année(s) | {{ calculeData.pluvalueBien | number:2 }} € |
| Total revenu locatif après {{ calculeData.dureeDetention }} année(s) | {{ calculeData.totalRevenuLocatif | number:2 }} € |
| Gain brut sur le prix de base après {{ calculeData.dureeDetention }} année(s) | +{{ calculeData.gainBrut | number:2 }} € |
Charges
| Durée du crédit | {{ calculeData.duree | number:2 }} ans |
| Taux | {{ calculeData.taux | number:2 }} % |
| Mensualité | {{ calculeData.mensualite | number:2 }} € |
| Total interêts après {{calculeData.dureeDetention}} année(s) | {{ calculeData.totalInteret | number:2 }} € |
| Total frais | {{ calculeData.frais | number:2 }} € |
| Total | {{ calculeData.InteretFrais | number:2 }} € |
Gain réel
Rendement sur actif
Cash flow
| Année | Coût | Revenu locatif | Gain |
|---|---|---|---|
| {{ $index }} | {{ ch.payment | number:2 }} € | {{ ch.revenuLocatif | number:2 }} € | {{ - ch.fondPropre | number:2 }} € |
Av. Louise 433 1050 Bruxelles - 02 648 01 20
Drève Richelle 96 1410 Waterloo - 02 354 29 39
Av. Prekelinden 83 1200 Woluwe-St-Lambert - 02 734 00 36