Suis-je éligible à une réduction des droits d’enregistrement ?
Vanderborght
PRIX : 397 639,00 €
Type: Maison | Région: Bruxelles | Commune: Jette
A deux pas de la basilique de Koekelberg, By the Way vous présente cette maison bel-étage 2 façades.
Cette dernière est composée de 3 chambres et d’un jardin exposé vers l'Est.
Une maison dans un bon état général mais à rafraîchir. Cette maison vous séduira par son garage, jardin et ses fonctionnalités.
Nous avons également une chambre au rez-de-chaussée qui peut convenir pour un bureau pour une profession libérale.
Situation idéale à côté des commerces, transports en commun ainsi qu'un accès aisé aux tunnels et Ring. Idéal pour TOUT LE MONDE.
Surface Totale: 205 M²
Chambres: 3
Salle de bain: 1
Garage: 1
Cave: 1
Jardin: oui
Vidéo
Découvrez le bien en visualisant cette vidéo
VISITE VIRTUELLE
Vous voulez en voir plus ? Visitez le bien comme si vous y étiez à travers cette visite virtuelle
Localisation
Ce bien vous correspond ? Découvrez maintenant si sa localisation vous convient !
Commerces
Pharmacies
Restaurants
Boulangeries
Crèches
Parcs
Écoles
Universités
Déplacements
Plans intérieurs
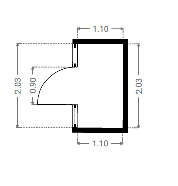
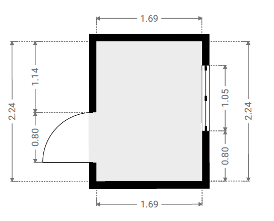
Sous-sol
SURFACE TOTALE : 50.50 m² | SURFACE HABITABLE : 50.50 m² | PIÈCE(S) : 3
1x Couloir
1x Cave
1x Buanderie
Couloir
SURFACE : 17.53 m²
Cave
SURFACE : 13.98 m²
Buanderie
SURFACE : 17.94 m²
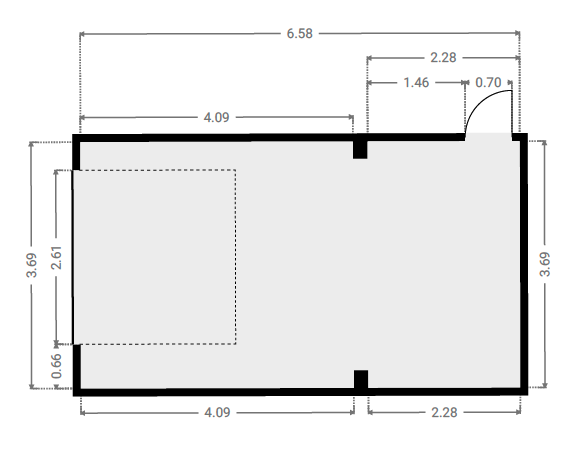
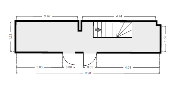
Rez-de-chaussée
SURFACE TOTALE : 54.61 m² | SURFACE HABITABLE : 30.42 m² | PIÈCE(S) : 4
1x Hall
1x Garage
1x Vestiaire
1x Bureau
Hall
SURFACE : 15.14 m²
Garage
SURFACE : 24.19 m²
Vestiaire
SURFACE : 3.3 m²
Bureau
SURFACE : 9.95 m²
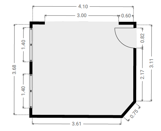
1er étage
SURFACE TOTALE : 51.92 m² | SURFACE HABITABLE : 49.69 m² | PIÈCE(S) : 6
1x Cuisine
1x Séjour
1x Salle à manger
2x Couloir(s)
1x W.C
1x Balcon
Cuisine
SURFACE : 14.8 m²
Séjour
SURFACE : 14.96 m²
Salle à manger
SURFACE : 8.2 m²
Couloir
SURFACE : 6.76 m²
Couloir
SURFACE : 1.64 m²
W.C
SURFACE : 1.34 m²
Balcon
SURFACE : 2.23 m²
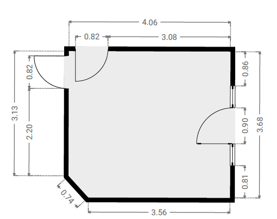
2e étage
SURFACE TOTALE : 47.72 m² | SURFACE HABITABLE : 47.72 m² | PIÈCE(S) : 10
3x Chambre(s)
2x Couloir(s)
4x Placard(s)
1x S.D.B
Chambre 2
SURFACE : 15.07 m²
Chambre 1
SURFACE : 5.94 m²
Couloir
SURFACE : 1.16 m²
Couloir
SURFACE : 3.73 m²
Placard
SURFACE : 0.87 m²
Placard
SURFACE : 0.77 m²
Chambre 3
SURFACE : 12.9 m²
S.D.B
SURFACE : 3.78 m²
Placard
SURFACE : 0.48 m²
Placard
SURFACE : 0.49 m²
RECHERCHE CADASTRALE
Vous souhaitez mieux connaître votre parcelle et connaître la surface dont vous jouirez en achetant ce bien, alors consulter le cadastre est nécessaire !
État des sols
La pollution du sol a un impact sur l'environnement et sur la
santé, les risques d’inondation ont un impact sur votre qualité de vie… Consultez les données
relatives à ce bien pour en avoir le cœur net !
ÉTAT DE LA POLLUTION DES SOLS
Aucune remarque particulière pour la parcelle 36W15
Source : Cliquez-ici
Légende :
ZONE INONDABLE
Aucune remarque particulière pour la parcelle 36W15
Source : Cliquez-ici
Légende :
Certificats
Informez-vous sur la performance énergétique de ce bien et assurez-vous que ses installations électriques sont bien aux normes !
PERFORMANCE ÉNERGÉTIQUE
Économe
Très énergivore
CERTIFICAT ÉLECTRIQUE
PROCES VERBAL D’EXAMEN DE CONFORMITE ET/OU DE VISITE DE CONTROLE D’UNE INSTALLATION ELECTRIQUE BASSE TENSION
La nouvelle installationNon conforme
Agent
visiteur
Thomas de Couve
Date
de certification
28/11/2023
Visite de contrôle
à effectuer avant le
18 mois prenant cours le jour de l’acte de vente
DATA ROOM
Nous avons mis tous les documents importants dans la date room, n’hésitez pas à télécharger ce dont vous avez besoin !
Av. Louise 433 Louizalaan 1050 Bruxelles - Brussel
Chaussée de Bruxelles 21 1310 La Hulpe