Suis-je éligible à une réduction des droits d’enregistrement ?
Tilleul
PRIX : 369 000 €
Type: Petite maison | Région: Bruxelles | Commune: Evere
Surface habitable: 166.57 m²
Chambres: 4
Salle de bain: 1
Garage: 1
Caves: 2
Bureau: 1
Vidéo
Découvrez le bien en visualisant cette vidéo
VISITE VIRTUELLE
Vous voulez en voir plus ? Visitez le bien comme si vous y étiez à travers cette visite virtuelle
HOME STAGING
Vous souhaitez réaménager ce bien pour le faire correspondre à votre bien idéal ? Découvrez nos propositions de home staging !
Localisation
Ce bien vous correspond ? Découvrez maintenant si sa localisation vous convient !
Commerces
Pharmacies
Restaurants
Boulangeries
Crèches
Parcs
Écoles
Universités
Déplacements
Plans intérieurs
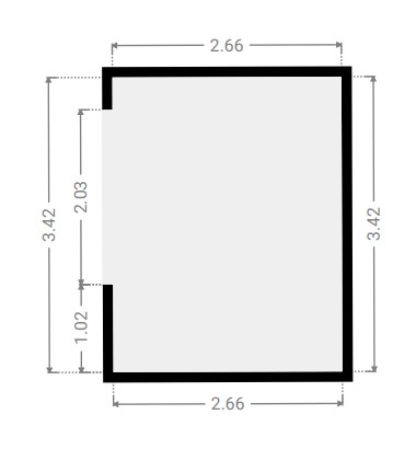
Sous-sol
SURFACE TOTALE : 29.85 m² | SURFACE HABITABLE : 29.85 m² | PIÈCES : 3
2x Caves
1x Couloir
Cave 1
SURFACE : 13.28 m²
Couloir
SURFACE : 3.17 m²
Cave 2
SURFACE : 13.42 m²
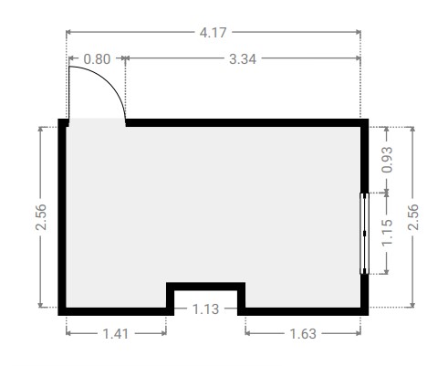
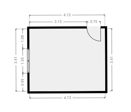
Rez-de-chaussée
SURFACE TOTALE : 56.27 m² | SURFACE HABITABLE : 42.69 m² | PIÈCES : 7
1x Hall
2x Couloirs
1x Garage
1x Cuisine
1x Salle à manger
Hall
SURFACE : 4.54 m²
Couloir
SURFACE : 6.39 m²
Garage
SURFACE : 13.58 m²
Couloir 2
SURFACE : 2.64 m²
Cuisine
SURFACE : 9.07 m²
Salle à manger
SURFACE : 18.32 m²
1er étage
SURFACE TOTALE : 40.99 m² | SURFACE HABITABLE : 40.99 m² | PIÈCES : 3
1x Couloir
2x Chambres
Couloir
SURFACE : 6.4 m²
Chambre 2
SURFACE : 20.51 m²
Chambre 1
SURFACE : 14.1 m²
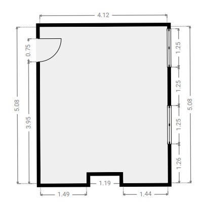
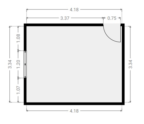
2e étage
SURFACE TOTALE : 38.85 m² | SURFACE HABITABLE : 38.85 m² | PIÈCES : 5
2x Couloirs
2x Chambres
1x S.D.B
Couloir 1
SURFACE : 5.25 m²
Chambre 3
SURFACE : 14 m²
Chambre 4
SURFACE : 10.27 m²
S.D.B
SURFACE : 7.51 m²
Couloir 2
SURFACE : 1.86 m²
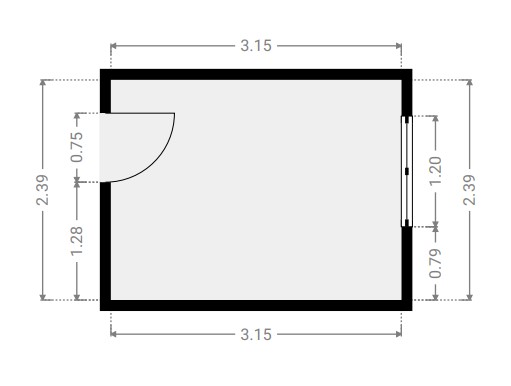
3e étage
SURFACE TOTALE : 14.20 m² | SURFACE HABITABLE : 14.20 m² | PIÈCES : 1
1x Bureau
Bureau
SURFACE : 14.2 m²
RECHERCHE CADASTRALE
Vous souhaitez mieux connaître votre parcelle et connaître la surface dont vous jouirez en achetant ce bien, alors consulter le cadastre est nécessaire !
Surface : 137.78 m²
Parcelle : D223g4
Certificats
Informez-vous sur la performance énergétique de ce bien et assurez-vous que ses installations électriques sont bien aux normes !
PERFORMANCE ÉNERGÉTIQUE
Économe
Très énergivore
CERTIFICATEUR ÉLECTRIQUE
PROCES VERBAL D’EXAMEN DE CONFORMITE ET/OU DE VISITE DE CONTROLE D’UNE INSTALLATION ELECTRIQUE BASSE TENSION
La nouvelle installation Non conforme
Agent
visiteur
Hicham Benchaib
Date
de certification
16/03/2023
Doit être
contrôlée avant
16/03/2024
Audit technique
En prévoyant un budget précis des transformations et/ou réparations à opérer sur ce bien, l'expertise réalisée par un architecte neutre et indépendant vous permet de mieux évaluer la valeur de ce bien !
Score général attribué par l’auditeur *
Conseils généraux en termes de performances énergétiques du bâtiment :
La façon dont on a réalisé le séjour actuel est certes économique mais elle ne convient cependant pas à l'habitabilité de la partie jour de l'immeuble. Ceci est d'autant plus vrai que cette situation tient particulièrement mal en compte des problèmes énergétiques. L'obligation prochaine de conforter les performances thermiques des logements va obliger le propriétaire à rebâtir ce séjour avec beaucoup plus d'attention. Le sol, les murs et le toit devront disposer d'un coefficient de déperditions thermiques performant ; une aération à ouverture réglable assurera la ventilation obligatoire des pièces habitables.
Pour le reste de l'immeuble, il faudra veiller à isoler en premier lieu l'enveloppe de la partie chauffée de l'immeuble : isoler le toit, isoler les murs, et isoler le plancher du rez (au plafond des caves). Si possible il faudra améliorer l'étanchéité des châssis en bois ou, sinon, les remplacer ; il faudra aussi pourvoir les châssis de doubles vitrages performants, vérifier l'étanchéité des joints, ... calorifuger les tuyauteries d'eau chaude, installer une extraction générale motorisée qui permettra de contrôler et d'améliorer les débits d'air dans les sanitaires, salle-de-bain et cuisine.
Pour cela, il est recommandé de prendre les service d'un architecte de qualité qui veillera aux bonnes solutions, au bons détails, à l'économie générale de l'opération, et surtout à la bonne exécution des travaux. Les dépenses énergétiques seront moins élevées tout en assurant un meilleur confort de vie.
Budgets approximatif des travaux d'amélioration énergétique :
Pour isoler le toit avec isolation de 20 cm de laine de roche et finitions : de 180 à 240 €/m2
Pour isoler un mur de l'intérieur avec 10 cm de laine de roche et une plaque de plâtre : de 90 à 120 €/m2.
Pour isoler sous le plancher du rez avec 8 cm de laine de roche et une plaque de plâtre : de 80 à 120 €/m2 de plancher.
Avis général et conseils de l'inspecteur :
La priorité des travaux est certainement l'amélioration des conditions énergétiques de l'immeuble. L'espace et la disposition interne de l'immeuble permettent d'envisager ensuite une amélioration notable du rez-de-chaussée (partie jour).
L'agrandissement du séjour est souhaitable, en profitant de l'obligation de sa reconstruction pour correspondre aux exigences énergétiques, mais aussi en regard du confort de vie que cela apporte et du nombre d'habitants rendu possible par la présence de 4 ou 5 chambres aux étages (partie nuit). La reconstruction un peu plus grande du séjour et/ou la transformation du garage en pièce habitable rendrait le rez-de-chaussée nettement plus confortable à vivre.
Globalement, pour le reste de l'immeuble, les travaux se limiteraient à la rénovation des parachèvements ou à leur remplacement au sol, au mur et au plafond. Les travaux de parachèvement seraient idéalement accompagnés du renouvellement des installations électriques (câblages, éclairages, boîtiers ...) en conformité avec les normes en vigueur. On redonnerait ainsi une vie nouvelle à cet immeuble. Les sanitaires seraient refaits aux goûts et besoins des habitants, intégrant un système de ventilation plus efficace.
Le cas échéant, l'affectation de la chambre du dernier étage retournerait à sa fonction bien utile de grenier, avec, en outre, l'avantage de gagner quelques dizaines de mètres cubes à chauffer.
Depuis le séjour, le jardin peut constituer un agrément de premier plan et ne demanderait que peu d'interventions.
Afin de pouvoir envisager le coût des travaux voici quelques estimations :
Pour refaire le séjour (démontage, réalisation du sol, toit, châssis et accessoires) il faudrait prendre en compte à priori un budget aux environs de 1500 €/m2 de séjour.
DISCLAIMER
La conclusion et les conseils donnés sont le résultat d’une inspection indépendante, réalisée par un architecte expérimenté et agréé par ImmoPass.
Les éventuelles estimations budgétaires contenues dans ce rapport sont données à titre indicatif et ne constituent pas un devis. Nous recommandons de réaliser un Cahier des Charges sur tout ou partie des travaux à entreprendre et une analyse des devis reçus. Les estimations sont exprimées hors taxes.
L’inspection a été réalisée de manière non-destructive, de manière visuelle uniquement. Ce rapport ne peut donc garantir l’absence totale de vices techniques cachés.
83 %
Zone inondable, zone acoustique, plan de secteurs, permis d’urbanisme ...
40 %
Certification énergétique, conformité électrique, cuve à mazout, sol, ...
73 %
Sécurité, aménagements, structures extérieures, entretien végétation, ...
75 %
Humidité généralisée, présence d’amiante, mérule, termites ...
75 %
Toiture, murs extérieurs, châssis et portes, évacuation eau de pluie, ...
68 %
Défauts structurels, humidité localisée, salubrité, état de fonctionnement..
45 %
Halls et escaliers, caves, combles et grenier, locaux techniques, ...
61 %
Système de chauffage, eau chaude sanitaire, électricité, entretiens techniques, ...
Les volumes arrières de l'immeuble et les barbacanes en façade à rue ne sont probablement pas en ordre d'urbanisme. Une vérification doit être faite auprès de la commune d'Evere.
Le Certificat PEB du 3 mars 2023 a été consulté, mais il est filigrané ""provisoire"".
La classe énergétique ""G"" est défavorable et doit conduire le propriétaire à une rénovation énergétique significative.
La carte des sols édité par le Région de Bruxelles-Capitale (Environnement) indique que la parcelle est de catégorie 2, indiquant que la parcelle est légèrement polluée sans risques.
Les concentrations en polluants sont très faibles, les risques pour la santé humaine et pour l’environnement sont négligeables. Toutes les utilisations sont possibles. Mais on ne pourra pas réutiliser la terre de cette parcelle sur un autre terrain bruxellois.
Trottoir en dalle de béton offrant une surface de marche plane et un écoulement des eaux vers le caniveau de voirie.
Le voisin de droite a construit une batîsse entre mitoyen ayant vue sur les façades arrière des immeubles à rue.
L'espace extérieur doit être rendu propre et libéré de tous les effets inutiles sur sa surface. Budget 1500 € (container compris).
Les murets et autres interventions d'embellissement ne sont pas achevés ou sont installés à titre précaire.
Le jardin, visité cet hiver, semble pourvus de plantes vivantes ou fanées, en terre ou en pot, mais dans un ordre et une composition difficilement compréhensible.
Un arbre de taille moyenne est planté à proximité de la construction arrière du voisin de droite. Pour l'instant cet arbre semble ne pas poser de problème mais, à terme, ces racines deviendraient des éléments potentiellement dérangeant pour les constructions qu'il jouxte. Cet arbre doit donc faire l'objet d'attention car il est susceptible de devoir un jour être abattu.
Une terrasse extérieure longe l'extension arrière de l'immeuble. Elle est couverte de plaque en PVC translucide et revêtue de dallage en grès cérame. La surface, très encombrée, ne permet pas de visualiser les détails. L'auvent atténue l'arrivée de la pluie contre la façade du séjour, toutefois, sans cet auvent, les infiltrations d'eau sont, à priori à craindre. Une pente assure un ruissellement éventuel vers le jardin. Aucun avaloir n'est visible; aucun caniveau de récolte des eaux de ruissellement n'est constaté.
Cette verranda a été ajoutée à la cuisine en guise de séjour. Cet espace est couvert par des plaques alvéolaires translucides ne convenant pas à l'usage de locaux d'habitation. En effet, le coefficient de déperdition thermique, les qualités acoustiques, son caractère d'anti-intrusion et sa durabilité, ... sont très défavorables. Ce matériaux s'adresse principalement à des locaux non-chauffés. Le toit de cette pièce de vie doit être convenablement bâti, isolé et recouvert d'étanchéité. Cela nécessiterait la demande d'un permis d'urbanisme.
Quant à la parois en menuiserie vitrée, pour éviter sa démolition, un examen précis devrait être fait par un menuisier dans le but d'améliorer sensiblement l'étanchéité des joints. Que ce soient les joints en périmètre (sol, murs latéraux, au linteau) que les joints souples internes. De même, les doubles vitrages sont obsolètes, et seront remplacés par un double vitrage répondant au coefficient de déperditions thermiques de maximum 1.1 W/m2.K. Dans le cas où la remédiation des châssis n'est envisageable (coût trop élevé, pauvre efficacité, ...) ces châssis devront être remplacés par des châssis et double vitrages conformes aux exigences régionales.
Cependant, l'attention du propriétaire est attirée par la nécessité d'isoler l'enveloppe de la maison, y compris le sol du séjour afin de répondre aux exigences thermiques, aujourd'hui recommandées et demain probablement imposées par la Région de Bruxelles-Capitale.
La présence d'amiante n'a pas été constatée, mais un inventaire réalisé par un organisme agrée est souhaitable. Les lieux devront être suffisamment libérés pour le permettre.
Les encombrants et notamment les cartons et papiers favorisent le développement des champignons, dont la mérule. Il est recommandé de se défaire des encombrants de ce type dans les espaces susceptibles d'être à fortes humidité comme les caves.
Au pied de l'escalier de cave un sterfput sans grille est protégé par des carrelages libres. A cet endroit le mur voisin présentent des défauts dûs à une présence d'humidité abondante. Cette humidité est locale. La remplacement du sterfput et la correction de la petite conduite longeant la plinthe permettrait de diminuer sensiblement 'humidité. Les parachèvements du mur seront à revoir localement. Ces travaux sont estimés dans une fourchette de 400 à 700 €.
La cave est relativement sèche mais on ne peut exclure que d'autres problèmes d'humidité puissent exister sur les parois non visibles.
Globalement, la maçonnerie ne présente pas de fissures significatives. On notera cependant que malgré la rénovation de la façade à rue (nouveau parement en plaquettes de terres cuites) les bandeaux et moulures d’encadrement des baies possèdent des signes de fatigues : brisures des bandeaux et des pieds droits, écaillage local de peinture. Quelques plaquettes de terre-cuite se sont décollées et quelques fissurent discrètes s’installent notamment dans les joints des plaquettes.
Les soubassements en cimentages imitant la pierre appareillée se dégradent.
Le remplacement de ces fausses pierre de soubassement par un cimentage adapté est budgétisé entre 80 et 140 €/m2.
Les zinguerie des corniches et joues de lucarnes ont été refaites en 2017 ainsi que le noquetage des rives et le remplacement de la boiserie de la corniche arrière.
L'égouttage des appentis est défait et inefficace. Une grande quantité d'eau récoltée s'écoule naturellement dans le jardin. Sa réparation est nécessaire. Budget estimé entre 200 € et 400 €.
Afin de tenter d'éviter leur démolition, un bon menuisier devrait examiner la possibilité de ne pas jeter des châssis éventuellement récupérables en vérifiant la possibilité d'améliorer sensiblement l'étanchéité des joints, caractéristique essentielle demandée au châssis : les joints de resserrage en périmétre (sol, murs latéraux, au linteau) et les joints souples internes.
Les doubles vitrages sont obsolètes, et seront remplacés par un double vitrage répondant au coefficient de déperditions thermiques de maximum 1.1 W/m2.K.
Dans le cas où la remédiation des châssis n'est envisageable (coût trop élevé, pauvre efficacité, ...) ces châssis devront être remplacés par des châssis et double vitrages conformes aux exigences régionales. Des primes sont prévues pour les travaux de réfection des joints ou les nouveaux châssis.
Pour une amélioration des joints on budgétisera les prestations à environ 500 €/châssis. Le remplacement des doubles vitrages peut être estimé entre 180 et 230 €/m2.
Le remplacement des châssis et des doubles vitrages sont estimés de 550 à 800 €/m2.
Quoi qu'en position fermée, la porte de garage, en façade à rue, ne se ferme pas. De nombreux objet et effets encombrent l'espace du garage ne permettant pas l'examen de la porte.
Les pièces à l'étage ont un plancher en ossature bois. Ces planchers présentent une dépression sensible en leur centre. Etant donné la diversité des revêtement des sols, même en bois, une rénovation des sols permettra de reprendre la dépression, d'y intégrer une isolation acoustique et d'unifier l'aspect des revêtements de sol.
L'ouvrage consiste en bref à enlever le plancher, remplir le vide de laine de roche, placer un calage de hauteur, placer un panneau d'OSB à emboîtement, un panneau pan-terre (acoustique) et un parquet composite (sans oublier de nouvelles plinthes). Ces travaux sont estimés entre 220 et 250 €/m2.
Peu de fissures structurelles sont visible et significatives. Quelques fissures sont présentes dans le plafonnage du plafond de la cage d'escalier ou le long des habillages de gaines techniques rapportées, etc ... D'une façon générale, les parachèvements sont précaires et perfectibles.
Les exigences minimales de sécurité, de salubrité et d'équipement pour la location doivent être respectées.
On trouvera une brochure explicative à cette adresse : https://homegrade.brussels/wp-content/uploads/Publications_internes/brochures/Homegrade_broFR_LogementsLocation.pdf
Quelques détecteurs de fumée sont observables.
Comme annoncé dans une autre rubrique, le sol du séjour devra être refait en intégrant une isolation thermique. L'ouvrage consiste à enlever les éléments constituant le sol actuel, terrasser à bonne profondeur et de reconstruire un sol en bonne et due forme. Le service d'un architecte est recommandé pour assurer la qualité et les performances thermiques de l'ouvrage.
Ce problème a déjà été traité dans une autre rubrique. Un dispositif complémentaire dot équiper la façade vitrée afin d'assurer un apport d'air frais.
Le raccordement électrique des appareillages n'est pas conforme. Prévoir une réfection conforme budgétisée à 500 €.
Les portes et chambranles des étages sont le plus souvent d'époque et présentent diverses déformations, détalonnages excessifs, écornements, fatigues des peintures ...
Leur remplacement est nécessaire. C'est également l'occasion de régler les pas de porte.
Quant aux châssis de fenêtre, ils répondent aux observations faites dans d'autres rubriques.
L'adjonction d'un profil de ventilation à ouverture réglable est nécessaire afin d'assurer l'apport d'air frais dans les chambres.
Un bloc porte placé (feuille + chambranle) est estimé entre 500 à 750 €/ pièce.
L'immeuble n'est pas équipé d'un système de ventilation dont l'extraction devrait se faire via la cuisine, le WC et la salle-de-bain. La cuisine et le wc possèdent une extraction naturelle. La salle-de-bain n'est ventilé que par l'ouverture volontaire de la fenêtre.
Cf. autre recommandation concernant les menuiseries.
La salle-de-bain n'est ventilée que par l'ouverture volontaire de la fenêtre. Il faut remédier à cette situation en prévoyant un système de ventilation motorisé d'extraction soit vers la toiture soit vers une gaine centrale de reprise de toutes les ventilations de l'immeuble.
Le couloir du rez est revêtu d'un parquet superposé au carrelage. Ceci a pour conséquence que le parquet présente une surépaisseur peu esthétique et, pour le moins, inconfortable à la marche. On voit la surépaisseur du parquet dépasser sous la porte d'entrée et au-dessus de l'escalier de cave. Il aurait fallu démonter les carrelage et placer le parquet à fleur avec le seuil de porte et l'escalier. Le budget pour réaliser cette rénovation conforme est d'environ 100 €/m2
Cf. le traitement de ces points dans d'autres rubriques.
Il faudrait profiter de la longueur du couloir pour y placer une porte vitrée intermédiaire et constituer ainsi un sas d'entrée coupant le froid. Budget de 800 à 1200 €.
L'escalier colimaçon menant à la chambre du dernier niveau est étroit, très raide et mal assujetti.
La construction ayant plus de cent ans, quelques points d'irrégularités mineures sont observés et sont réglable dans le cadre d'une rénovation plus globale.
Les fenêtres de toiture (type Vélux) sont au nombre de trois. La plus grande (en bas de versant) ne se ferme plus. L'air extérieur rentre franchement par un jour significatif.
Ces trois fenêtres doivent être remplacées par des fenêtres conformes pourvues de doubles vitrages thermiquement performants. Il faut compter en moyenne 1000 € par Vélux.
Quelques apparitions d'humidité mais qui ne semblent pas importants.
La cave n'est pas suffisamment ventilée. Une gaine de ventilation devrait transiter sous le séjour jusque dans le local chaufferie. Ces travaux sont estimés à 550 € en cas où les travaux sont effectués en même temps que le sol du rez du séjour.
La solidité des murs n'est pas mise en question, mais, pour une question de netteté, il faudrait démonter et évacuer les murs et les plafonds de tous les éléments désuets abandonnés ou inutiles tels que câblages, tuyauteries, fixations ... Cet ouvrage demande une budgétisation de l'ordre de 600 €
Une feuille placée au voisinage de la chaudière mentionne les dates de ses propres entretiens. Le dernier en date étant daté du 5 juillet 2022.
L'installation d'une nouvelle chaudière gaz à condensation Buderus GB212 de 22 kW et un nouveau tubage d'évacuation ont été réalisés en juillet 2017. D'après le fabriquant, la chaudière est de classe énergétique ""A"" et d'une efficacité énergétique saisonnière de 0.93.
Le certificat PEB provisoire mentionne cependant le manque d'une sonde extérieure pour compléter la régulation de consommation énergétique.
On remarque que l'habitant à suspendu un seau au départ du conduit de cheminée. Ce point éveille l'attention sur l'éventualité de récolter une coulée de condensation, auquel cas un réglage du conduit est souhaitable.
Un boiler Buderus SU160 isolé, de classe énergétique ""B"", est adjoint à la chaudière. Ce boiler est dimensionné pour convenir à l'usage quotidien de 3 à 4 personnes.
L'installation d'adduction d'eau froide est le résultat des nombreuses modifications apportées au réseau interne pour s'adapter aux besoins. A priori, celui-ci est en bon état de fonctionnement. Le compteur d'eau n'a pas été repéré en raison de la pleine occupation des locaux en cave.
Aucun problème n'a été signalé, toutefois un nettoyage des canalisations principales est recommandé après avoir vidé et nettoyé le rez, les caves et les espaces extérieurs.
En cave un compteur électrique et un tableau général jouxte divers éléments techniques (boîtiers, prises, câbles, téléphone...)ainsi que le compteur gaz dont les tuyaux sont en partie sous-jacent au tableau électrique.
En règle générale, indépendamment des remarques formulées par le bureau de contrôle, une mise en ordre et en propreté de l'installation est souhaitable. Dans l'ensemble de l'installation de la maison, un démontage et évacuation de toute installation, gaines ou appareils inutiles devrait être démontés et évacués. D'autre part, il faudra remettre l'installation existante en conformité à la lumière du Règlement Général sur les Installations Electriques et des recommandations de l'organisme de contrôle agréé. Ceci concerne des points d'éclairage, des raccordements d'appareils, de câbles volants...
DATA ROOM
Nous avons mis tous les documents importants dans la date room, n’hésitez pas à télécharger ce dont vous avez besoin !
Nous avons mis tous les documents importants dans la date room, n’hésitez pas à télécharger ce dont vous avez besoin !
Besoin de crédit
Maintenant que vous êtes sûrs d’avoir fait le bon choix, calculez la valeur totale de cette acquisition (valeur du bien et frais annexes) et estimez vos besoins en crédit !
Simulation de crédit
| Prix d'achat | € |
| Rénovation | € |
| Rénovation HTVA | {{ calculeData.renovationHTVA | number:2 }} € |
| TVA | {{ calculeData.tva | number:2 }} € |
| Fonds propres | € |
| Acompte dû (disponible au compromis de vente) | {{ calculeData.prix * 0.1 | number:2 }} € |
| Reste des liquidités (disponible à l'acte) | {{ calculeData.avance | number:2 }} € |
| Crédit pont | {{ calculeData.creditPont | number:2 }} € |
| Prix de vente de votre bien existant | € |
| Solde du crédit existant | € |
| Frais d'acte d'achat | {{ calculeData.droit + calculeData.fraisNotaire | number:2 }} € |
| Droits d'enregistrement | {{ calculeData.droit | number:2 }} € |
|
Abattement
Suis-je éligible à une réduction des droits d’enregistrement ? |
|
| Frais de notaire | {{ calculeData.fraisNotaire | number:2 }} € |
| Autres frais | {{ calculeData.inscription + calculeData.fraisDossier + calculeData.autreFrais | number:2 }} € |
| Frais liés à l'acte hypothécaire | {{ calculeData.inscription | number:2 }} € |
| Frais de dossier et expertise bancaire | {{ calculeData.fraisDossier | number:2 }} € |
| Autres frais | € |
| Montant du crédit | {{ calculeData.montantCredit | number:2 }} € | |
Choix du type de crédit
| Taux | Type | CAP | Mensualité | Mensualité Min | Mensualité Max | |
|---|---|---|---|---|---|---|
| {{ tx.banque }} | {{ tx.taux | number:2 }}% | {{ tx.type }} | -{{ tx.capNeg }}%/+{{ tx.capPos }}% | {{ tx.mens | number:2 }}€ | {{ tx.min | number:2 }}€ - | {{ tx.max | number:2 }}€ - |
| Taux | Type | CAP | Mensualité | Mensualité Min | Mensualité Max | |
|---|---|---|---|---|---|---|
| {{ tx.banque }} | {{ tx.taux | number:2 }}% | {{ tx.type }} | -{{ tx.capNeg }}%/+{{ tx.capPos }}% | {{ tx.mens | number:2 }}€ | {{ tx.min | number:2 }}€ - | {{ tx.max | number:2 }}€ - |
| Taux | Type | CAP | Mensualité | Mensualité Min | Mensualité Max | |
|---|---|---|---|---|---|---|
| {{ tx.banque }} | {{ tx.taux | number:2 }}% | {{ tx.type }} | -{{ tx.capNeg }}%/+{{ tx.capPos }}% | {{ tx.mens | number:2 }}€ | {{ tx.min | number:2 }}€ - | {{ tx.max | number:2 }}€ - |
Rentabilité
Cout total de l’acquisition
| Prix d'achat | {{ calculeData.prix | number:2 }} € |
| Rénovation | + {{ calculeData.prixTransRenovation | number:2 }} € |
| Frais | + {{ calculeData.frais | number:2 }} € |
| Coût total | + {{ calculeData.frais + calculeData.prixTransRenovation + calculeData.prix | number:2 }} € |
| Fonds propres + crédit pont | {{ calculeData.totalFP+calculeData.creditPont | number:2 }} € |
| Montant du crédit | {{ calculeData.montantCredit | number:2 }} € |
| Coût total | + {{ calculeData.creditPont + calculeData.totalFP + calculeData.montantCredit | number:2 }} € |
Rentabilité sur actifs
Durée de détention année(s)
Gain réel {{ calculeData.gainReel | number:0 }} €
Rendement sur actif {{ calculeData.rendementSurActif | number:2 }} %
Revenus
| Revenu locatif annuel Brut | € |
| Charge annuelle {{ calculeData.pourcentageCharge | number:2 }}% | {{ calculeData.chargeLocatifAnnuel | number:2 }} € |
| Précompte immobilier | {{ calculeData.precomteImmo | number:2 }} € |
| Autre charge annuelle | € |
| Revenu locatif annuel net | {{ calculeData.revenuLocatifAnnuelNet | number:2 }} € |
| Total revenu locatif après {{ calculeData.dureeDetention }} année(s) tenant compte d'une inflation de % |
{{ calculeData.totalRevenuLocatif | number:2 }} € |
| Plus-value latente | {{ calculeData.pluvalueLatente | number:2 }} % |
| Plus-value du bien après {{calculeData.dureeDetention}} année(s) | {{ calculeData.pluvalueBien | number:2 }} € |
| Total revenu locatif après {{ calculeData.dureeDetention }} année(s) | {{ calculeData.totalRevenuLocatif | number:2 }} € |
| Gain brut sur le prix de base après {{ calculeData.dureeDetention }} année(s) | +{{ calculeData.gainBrut | number:2 }} € |
Charges
| Durée du crédit | {{ calculeData.duree | number:2 }} ans |
| Taux | {{ calculeData.taux | number:2 }} % |
| Mensualité | {{ calculeData.mensualite | number:2 }} € |
| Total interêts après {{calculeData.dureeDetention}} année(s) | {{ calculeData.totalInteret | number:2 }} € |
| Total frais | {{ calculeData.frais | number:2 }} € |
| Total | {{ calculeData.InteretFrais | number:2 }} € |
Gain réel
Rendement sur actif
Cash flow
| Année | Coût | Revenu locatif | Gain |
|---|---|---|---|
| {{ $index }} | {{ ch.payment | number:2 }} € | {{ ch.revenuLocatif | number:2 }} € | {{ - ch.fondPropre | number:2 }} € |
Av. Louise 433 Louizalaan 1050 Bruxelles - Brussel
Drève Richelle, 96 - 1410 Waterloo