Suis-je éligible à une réduction des droits d’enregistrement ?
Tervuren 23
PRIX : 585 000 €
Type: Appartement | Région: Bruxelles | Commune: Etterbeek
Très bel appartement de +- 150 m² bénéficiant d'une adresse renommée mais aussi d'une entrée privative au rez-de-chaussée surélevé d'un bel immeuble de 1957 un peu en retrait de la prestigieuse Avenue de Tervuren. Très bien rénové avec goût et des matériaux de qualité en 2012, il vous offre 2 chambres de 24 & 13 m² + bureau de 12m² (poss. 3 chambres), 2 salles de douches modernes avec wc, un vaste séjour de +- 48m² et une grande cuisine hyper-équipée de 11m². Nombreux placards encastrés, 3ème wc avec lave-main dans la 'guest toilet', parquet en chêne massif partout. Châssis PVC doubles-vitrages. Renseignements urbanistiques en ordre, PEB C- et P.V. électricité conforme. Tout est en très bon état. Une cave en sous-sol. Emplacement de parking privé juste devant l'entrée. Actuellement loué 2.700 €. Charges communes très restreintes car ce bien, avec son entrée séparée et tel que stipulé dans l'acte de base, ne fait que partiellement partie de la co-propriété. Seulement +- 80€/mois pour frais de syndic et assurances et participation aux fonds de réserve pour éventuels travaux toit ou façade. Chaudière individuelle gaz à condensation. Pas de frais à prévoir. A voir !
Surface Totale: +- 150 M²
Surface habitable: 131.32 m²
Chambres: 2
Salles de douche: 2
Cave: 1
Bureau: 1 (possibilité d'en faire une autre chambre)
Parking: 1
Vidéo
Découvrez le bien en visualisant cette vidéo
VISITE VIRTUELLE
Vous voulez en voir plus ? Visitez le bien comme si vous y étiez à travers cette visite virtuelle
Localisation
Ce bien vous correspond ? Découvrez maintenant si sa localisation vous convient !
Commerces
Pharmacies
Restaurants
Boulangeries
Crèches
Parcs
Écoles
Universités
Déplacements
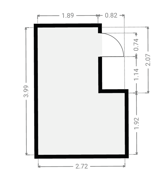
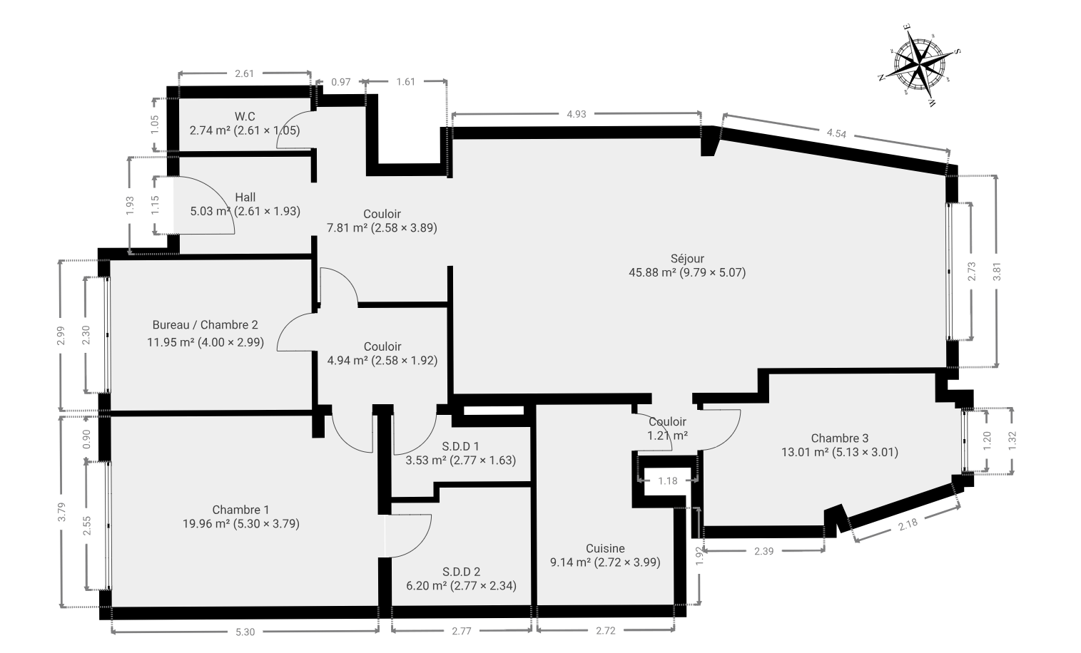
Plans intérieurs
Rez-de-chaussée
SURFACE TOTALE : +-150 m² | SURFACE HABITABLE : 131.32 m² | PIÈCE(S) : 12
SUPERFICIE HABITABLE CORRESPOND À L'ADDITION DES MESURES NETTES DE TOUTES LES PIÈCES, SANS COMPTER LES MURS,
LES PASSAGES ENTRE LES PIÈCES ET LES GAINES TECHNIQUES.
2x Chambre(s)
1x Bureau/Chambre 2
3x Couloir(s)
2x S.D.D (s)
1x Hall
1x Cuisine
1x Séjour
Chambre 1
SURFACE : 19.96 m²
Couloir
SURFACE : 4.94 m²
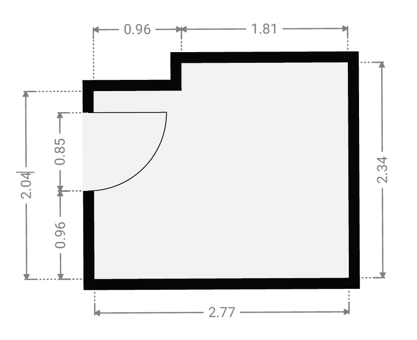
S.D.D 2
SURFACE : 6.2 m²
S.D.D 1
SURFACE : 3.53 m²
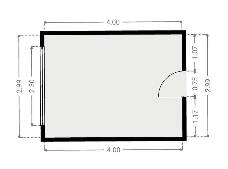
Bureau/Chambre 2
SURFACE : 11.95 m²
Hall
SURFACE : 5.03 m²
Couloir
SURFACE : 7.82 m²
W.C
SURFACE : 2.74 m²
Cuisine
SURFACE : 9.14 m²
Séjour
SURFACE : 45.88 m²
Couloir
SURFACE : 1.21 m²
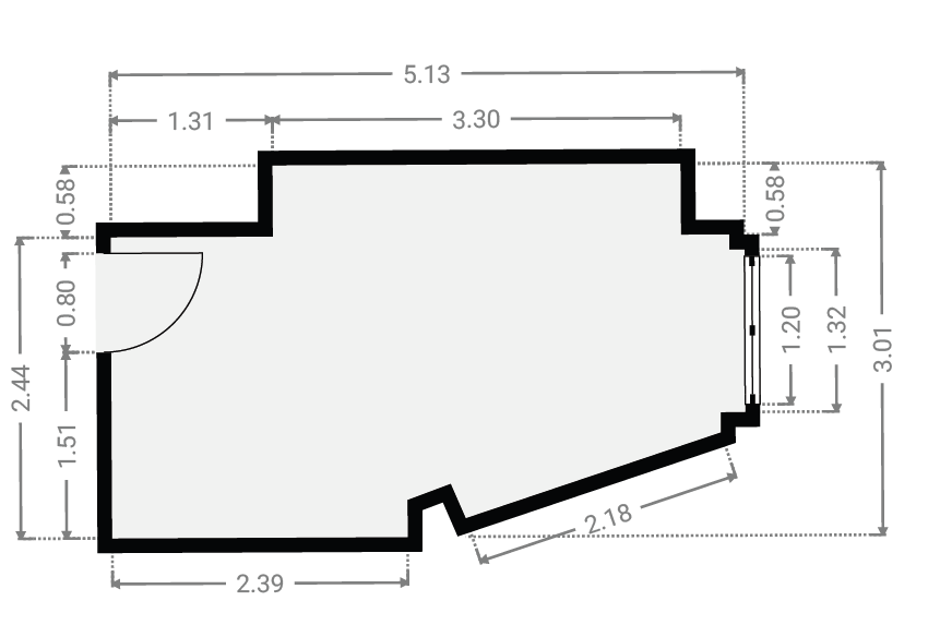
Chambre 3
SURFACE : 13.01 m²
RECHERCHE CADASTRALE
Vous souhaitez mieux connaître votre parcelle et connaître la surface dont vous jouirez en achetant ce bien, alors consulter le cadastre est nécessaire !
Surface : 403.42 m²
Parcelle : A565e3
Certificats
Informez-vous sur la performance énergétique de ce bien et assurez-vous que ses installations électriques sont bien aux normes !
PERFORMANCE ÉNERGÉTIQUE
Économe
Très énergivore
CERTIFICAT ÉLECTRIQUE
PROCES VERBAL D’EXAMEN DE CONFORMITE ET/OU DE VISITE DE CONTROLE D’UNE INSTALLATION ELECTRIQUE BASSE TENSION
La nouvelle installationConforme
Agent
visiteur
Micnoël PATERNOSTER
Date
de certification
28/02/2013
Visite de contrôle
à effectuer avant le
28/03/2038
SYNTHÈSE DES CHARGES
Des dépenses seront nécessairement engagées pour l’administration de la copropriété, son entretien, l’installation d’équipements et la maintenance de ces derniers. Evaluez dès à présent le montant de vos charges mensuelles !
Assemblées générales
Extrait des derniers procès-Verbaux des assemblées générales
Avenue de Tervuron n° 21-23 à 1040 Etterbeek
Résumé des charges limitées de l'appartement du rez-de-chaussée du n° 23
Par acte de base, cet appartement est exempté des charges relatives à l’autre entrée de l’immeuble au n° 21 Av. de Tervuren. Il ne doit pas participer aux frais d’ascenseur, d’entretien des communs, de l’eau et l’électricité des communs ni du chauffage collectif et autres frais communs !
Charges et répartition
1- Charges
Ce tableau des charges comprend : Assurances – Honoraire – frais bancaire
| Année 2022 |
| Total: 1061 € |
2- Répartition des charges - ACP Tervuren 23 - 2022/2022
DATA ROOM
Nous avons mis tous les documents importants dans la date room, n’hésitez pas à télécharger ce dont vous avez besoin !
Nous avons mis tous les documents importants dans la date room, n’hésitez pas à télécharger ce dont vous avez besoin !
Besoin de crédit
Maintenant que vous êtes sûrs d’avoir fait le bon choix, calculez la valeur totale de cette acquisition (valeur du bien et frais annexes) et estimez vos besoins en crédit !
Simulation de crédit
| Prix d'achat | € |
| Rénovation | € |
| Rénovation HTVA | {{ calculeData.renovationHTVA | number:2 }} € |
| TVA | {{ calculeData.tva | number:2 }} € |
| Fonds propres | € |
| Acompte dû (disponible au compromis de vente) | {{ calculeData.prix * 0.1 | number:2 }} € |
| Reste des liquidités (disponible à l'acte) | {{ calculeData.avance | number:2 }} € |
| Crédit pont | {{ calculeData.creditPont | number:2 }} € |
| Prix de vente de votre bien existant | € |
| Solde du crédit existant | € |
| Frais d'acte d'achat | {{ calculeData.droit + calculeData.fraisNotaire | number:2 }} € |
| Droits d'enregistrement | {{ calculeData.droit | number:2 }} € |
|
Abattement
Suis-je éligible à une réduction des droits d’enregistrement ? |
|
| Frais de notaire | {{ calculeData.fraisNotaire | number:2 }} € |
| Autres frais | {{ calculeData.inscription + calculeData.fraisDossier + calculeData.autreFrais | number:2 }} € |
| Frais liés à l'acte hypothécaire | {{ calculeData.inscription | number:2 }} € |
| Frais de dossier et expertise bancaire | {{ calculeData.fraisDossier | number:2 }} € |
| Autres frais | € |
| Montant du crédit | {{ calculeData.montantCredit | number:2 }} € | |
Choix du type de crédit
| Taux | Type | CAP | Mensualité | Mensualité Min | Mensualité Max | |
|---|---|---|---|---|---|---|
| {{ tx.banque }} {{ $index+1 }} | {{ tx.taux | number:2 }}% | {{ tx.type }} | -{{ tx.capNeg }}%/+{{ tx.capPos }}% | {{ tx.mens | number:2 }}€ | {{ tx.min | number:2 }}€ | {{ tx.max | number:2 }}€ |
| Taux | Type | CAP | Mensualité | Mensualité Min | Mensualité Max | |
|---|---|---|---|---|---|---|
| {{ tx.banque }} {{ $index+1 }} | {{ tx.taux | number:2 }}% | {{ tx.type }} | -{{ tx.capNeg }}%/+{{ tx.capPos }}% | {{ tx.mens | number:2 }}€ | {{ tx.min | number:2 }}€ | {{ tx.max | number:2 }}€ |
| Taux | Type | CAP | Mensualité | Mensualité Min | Mensualité Max | |
|---|---|---|---|---|---|---|
| {{ tx.banque }} {{ $index+1 }} | {{ tx.taux | number:2 }}% | {{ tx.type }} | -{{ tx.capNeg }}%/+{{ tx.capPos }}% | {{ tx.mens | number:2 }}€ | {{ tx.min | number:2 }}€ | {{ tx.max | number:2 }}€ |
Rentabilité
Cout total de l’acquisition
| Prix d'achat | {{ calculeData.prix | number:2 }} € |
| Rénovation | + {{ calculeData.prixTransRenovation | number:2 }} € |
| Frais | + {{ calculeData.frais | number:2 }} € |
| Coût total | + {{ calculeData.frais + calculeData.prixTransRenovation + calculeData.prix | number:2 }} € |
| Fonds propres + crédit pont | {{ calculeData.totalFP+calculeData.creditPont | number:2 }} € |
| Montant du crédit | {{ calculeData.montantCredit | number:2 }} € |
| Coût total | + {{ calculeData.creditPont + calculeData.totalFP + calculeData.montantCredit | number:2 }} € |
Rentabilité sur actifs
Durée de détention année(s)
Gain réel {{ calculeData.gainReel | number:0 }} €
Rendement sur actif {{ calculeData.rendementSurActif | number:2 }} %
Revenus
| Revenu locatif annuel Brut | € |
| Charge annuelle {{ calculeData.pourcentageCharge | number:2 }}% | {{ calculeData.chargeLocatifAnnuel | number:2 }} € |
| Précompte immobilier | {{ calculeData.precomteImmo | number:2 }} € |
| Autre charge annuelle | € |
| Revenu locatif annuel net | {{ calculeData.revenuLocatifAnnuelNet | number:2 }} € |
| Total revenu locatif après {{ calculeData.dureeDetention }} année(s) tenant compte d'une inflation de % |
{{ calculeData.totalRevenuLocatif | number:2 }} € |
| Plus-value latente | {{ calculeData.pluvalueLatente | number:2 }} % |
| Plus-value du bien après {{calculeData.dureeDetention}} année(s) | {{ calculeData.pluvalueBien | number:2 }} € |
| Total revenu locatif après {{ calculeData.dureeDetention }} année(s) | {{ calculeData.totalRevenuLocatif | number:2 }} € |
| Gain brut sur le prix de base après {{ calculeData.dureeDetention }} année(s) | +{{ calculeData.gainBrut | number:2 }} € |
Charges
| Durée du crédit | {{ calculeData.duree | number:2 }} ans |
| Taux | {{ calculeData.taux | number:2 }} % |
| Mensualité | {{ calculeData.mensualite | number:2 }} € |
| Total interêts après {{calculeData.dureeDetention}} année(s) | {{ calculeData.totalInteret | number:2 }} € |
| Total frais | {{ calculeData.frais | number:2 }} € |
| Total | {{ calculeData.InteretFrais | number:2 }} € |
Gain réel
Rendement sur actif
Cash flow
| Année | Coût | Revenu locatif | Gain |
|---|---|---|---|
| {{ $index }} | {{ ch.payment | number:2 }} € | {{ ch.revenuLocatif | number:2 }} € | {{ - ch.fondPropre | number:2 }} € |
Av. Louise 433 Louizalaan 1050 Bruxelles - Brussel
Drève Richelle, 96 - 1410 Waterloo