Suis-je éligible à une réduction des droits d’enregistrement ?
Sympathie 27
PRIX : 445 000,00€
Type: Maison | Région: Bruxelles | Commune: Anderlecht
A quelques pas des commerces, des écoles et des transports en commun, By The Way vous présente cette sympathique maison sise sur un terrain de 100m2. Elle se compose comme suit : Au rez-de-chaussée : un hall d'entrée avec WC séparé, une cuisine équipée, une salle à manger, un séjour s'ouvrant sur une terrasse avec barbecue et un jardinet joliment aménagé orienté au Sud. Au 1er étage : un hall de nuit, 2 chambres dont une donnant sur une terrasse, un bureau, une salle de bain avec WC. Au 2ème étage : un hall de nuit, 2 chambres, une salle de douche, un WC séparé. Au sous-sol : caves avec coin buanderie. Châssis à double vitrage en PVC et bois. Volets au rez-de-chaussée. Chauffage au gaz. Chaudière Viessmann (2006).
Surface terrain: 100 M²
Surface totale: 193 m²
jardinet: orientés au Sud
Chambres: 4
Salle de bain: 1
Salle de douche: 1
Terrasses: 2
Cave: 1
Bureau: 1
Chaudière Viessmann (2006)
Vidéo
Découvrez le bien en visualisant cette vidéo
VISITE VIRTUELLE
Vous voulez en voir plus ? Visitez le bien comme si vous y étiez à travers cette visite virtuelle
Localisation
Ce bien vous correspond ? Découvrez maintenant si sa localisation vous convient !
Commerces
Pharmacies
Restaurants
Boulangeries
Crèches
Parcs
Écoles
Universités
Déplacements
Plans intérieurs
Sous-sol
SURFACE TOTALE : 23.18 m² | SURFACE HABITABLE : 23.18 m² | PIÈCE(S) : 2
1x Buanderie
1x Couloir
Buanderie
SURFACE : 14.94 m²
Couloir
SURFACE : 8.25 m²
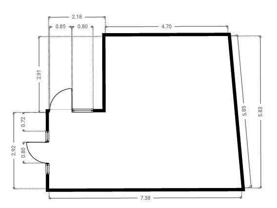
Rez-de-chaussée
SURFACE TOTALE : 85.14 m² | SURFACE HABITABLE : 49.90 m² | PIÈCE(S) : 4
1x Hall
1x Séjour / Salle à manger
1x Cuisine
1x W.C
1x Terrasse
Hall
SURFACE : 7.41 m²
Séjour / Salle à manger
SURFACE : 26.57 m²
Cuisine
SURFACE : 15.14 m²
W.C
SURFACE : 0.81 m²
Terrasse
SURFACE : 35.25 m²
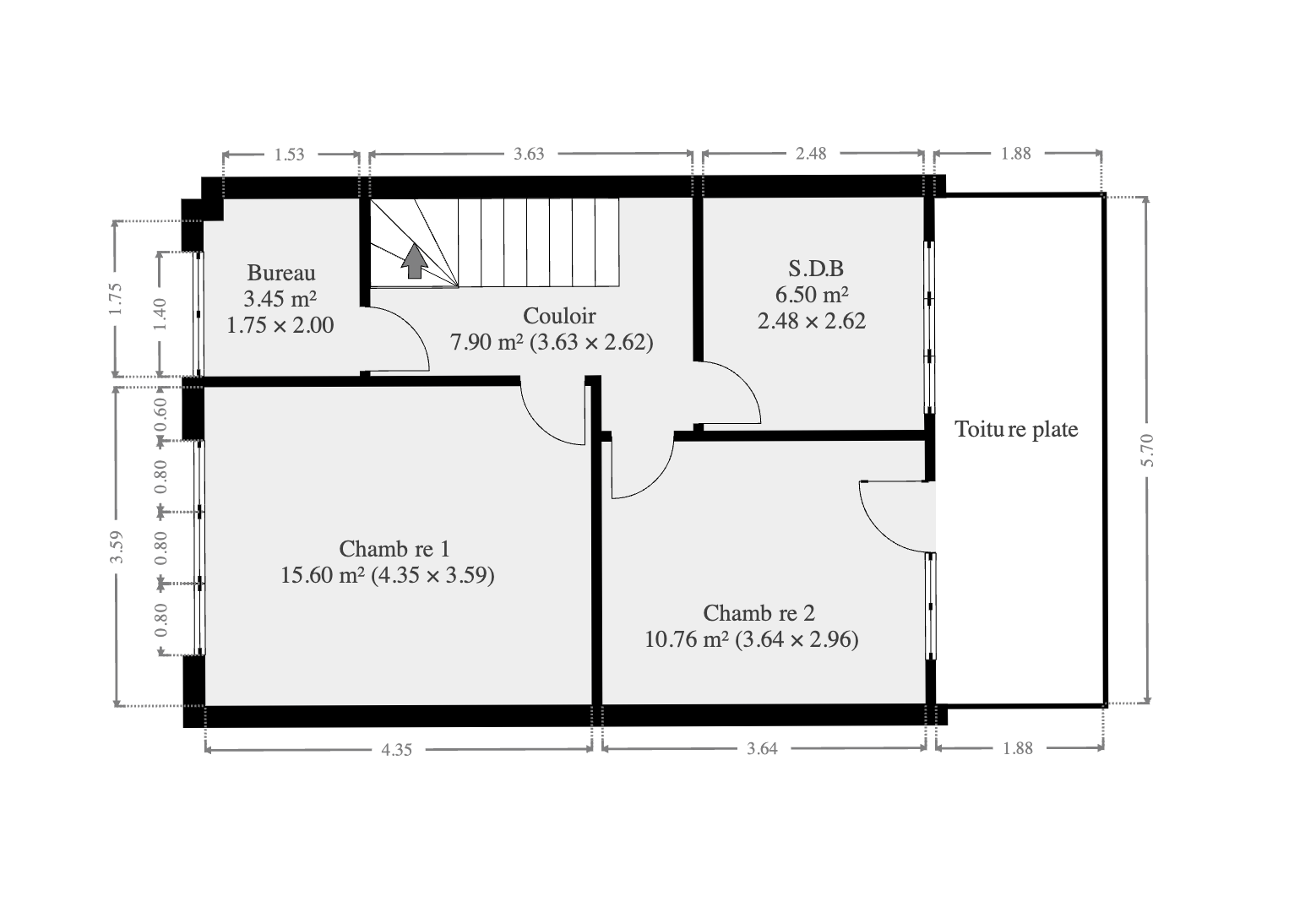
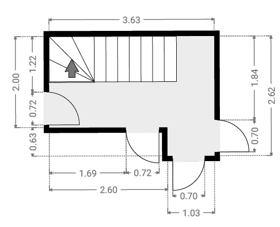
1er étage
SURFACE TOTALE : 54.87 m² | SURFACE HABITABLE : 44.17 m² | PIÈCE(S) : 5
1x Couloir
1x S.D.B
1x Bureau
2x Chambre(s)
1x Toiture plate
Couloir
SURFACE : 7.9 m²
S.D.B
SURFACE : 6.5 m²
Bureau
SURFACE : 3.45 m²
Chambre 1
SURFACE : 15.6 m²
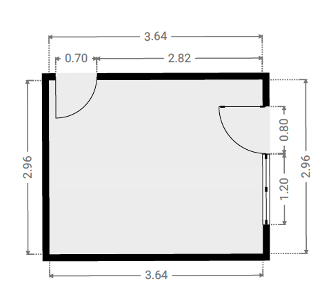
Chambre 2
SURFACE : 10.76 m²
Toiture plate
SURFACE : 10.71 m²
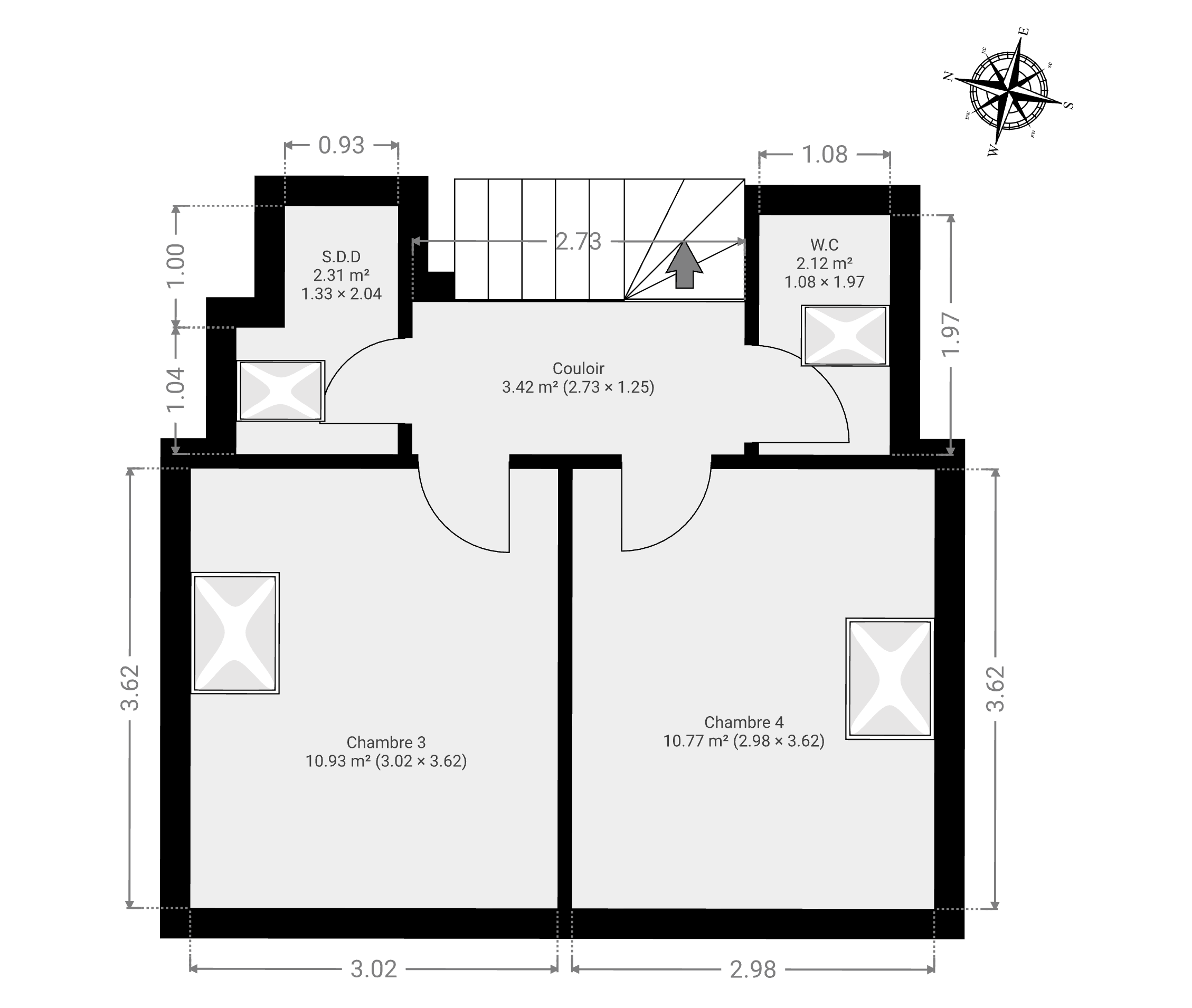
2e étage
SURFACE TOTALE : 29.52 m² | SURFACE HABITABLE : 29.52 m² | PIÈCE(S) : 5
2x Chambre(s)
1x Couloir
1x W.C
1x S.D.D
Chambre 3
SURFACE : 10.93 m²
Chambre 4
SURFACE : 10.77 m²
Couloir
SURFACE : 3.42 m²
W.C
SURFACE : 2.12 m²
S.D.D
SURFACE : 2.31 m²
RECHERCHE CADASTRALE
Vous souhaitez mieux connaître votre parcelle et connaître la surface dont vous jouirez en achetant ce bien, alors consulter le cadastre est nécessaire !
État des sols
La pollution du sol a un impact sur l'environnement et sur la
santé, les risques d’inondation ont un impact sur votre qualité de vie… Consultez les données
relatives à ce bien pour en avoir le cœur net !
ÉTAT DE LA POLLUTION DES SOLS
Aucune remarque particulière pour la parcelle D205z
Source : Cliquez-ici
Légende :
ZONE INONDABLE
Aucune remarque particulière pour la parcelle D205z
Source : Cliquez-ici
Légende :
Certificats
Informez-vous sur la performance énergétique de ce bien et assurez-vous que ses installations électriques sont bien aux normes !
PERFORMANCE ÉNERGÉTIQUE
Économe
Très énergivore
CERTIFICAT ÉLECTRIQUE
PROCES VERBAL D’EXAMEN DE CONFORMITE ET/OU DE VISITE DE CONTROLE D’UNE INSTALLATION ELECTRIQUE BASSE TENSION
La nouvelle installationNon conforme
Agent
visiteur
Mohamed Izmar
Date
de certification
17/11/2023
Visite de contrôle
à effectuer avant le
17/11/2024
Audit technique
En prévoyant un budget précis des transformations et/ou réparations à opérer sur ce bien, l'expertise réalisée par un architecte neutre et indépendant vous permet de mieux évaluer la valeur de ce bien !
Score général attribué par l’auditeur *
Conseils généraux en termes de performances énergétiques du bâtiment :
La toiture et la façade arrière sont légèrement isolés ce qui est déjà une bonne chose même si on n'est pas conforme aux normes en vigueur actuellement.
La priorité semble être le remplacement de la chaudière afin d'améliorer les consommations.
Avis général et conseils de l'inspecteur :
Maison saine et en bon état.
DISCLAIMER
La conclusion et les conseils donnés sont le résultat d’une inspection indépendante, réalisée par un architecte expérimenté et agréé par ImmoPass.
Les éventuelles estimations budgétaires contenues dans ce rapport sont données à titre indicatif et ne constituent pas un devis. Nous recommandons de réaliser un Cahier des Charges sur tout ou partie des travaux à entreprendre et une analyse des devis reçus. Les estimations sont exprimées hors taxes.
L’inspection a été réalisée de manière non-destructive, de manière visuelle uniquement. Ce rapport ne peut donc garantir l’absence totale de vices techniques cachés.
100 %
Zone inondable, zone acoustique, plan de secteurs, permis d’urbanisme ...
50 %
Certification énergétique, conformité électrique, cuve à mazout, sol, ...
96 %
Sécurité, aménagements, structures extérieures, entretien végétation, ...
100 %
Humidité généralisée, présence d’amiante, mérule, termites ...
78 %
Toiture, murs extérieurs, châssis et portes, évacuation eau de pluie, ...
96 %
Défauts structurels, humidité localisée, salubrité, état de fonctionnement..
89 %
Halls et escaliers, caves, combles et grenier, locaux techniques, ...
71 %
Système de chauffage, eau chaude sanitaire, électricité, entretiens techniques, ...
Le certificat reprend la lettre F avec une consommation de l'ordre de 318 kWh/(m2.an).
Les remarques reprises ne sont pas trop importantes et peuvent être relativement facilement levées.
Il faudra néanmoins réaliser tout un repérage de l'installation qui pourrait mettre en évidence d'autres infractions.
Néanmoins nous avons pu constaté que le bien n'est pas repris dans la BDES.
Les dalles bétons sont disjointes. C'est du ressort de l'Administration Communale d'entretenir la voirie.
L'ensemble de la cour intérieure a été refaite et du gravier a été posé sur l'ensemble de la surface.
Voir dans les détails mais aucun problème grave d'humidité dans cette maison relativement relativement saine.
1) Au RDC dans la cour le revêtement est un peu usé et sali de part le passage du chien vers sa gamelle.
2) Trace de coulées près de la cheminée extérieure suite à une infiltration. Attention au détail de raccord à la cheminée
3) Il faut placer une grille anti-rongeurs et protection contre la pluie pour les sorties de la ventilation de la cave.
4) Coup dans le crépis au niveau du mitoyen droit sur la terrasse du premier étage
5) La sortie de DEP donne sur le bois. Idéalement elle aurait dû sortie en dessous directement sur étanchéité. Vieillissement prématuré du revêtement de terrasse dans cette zone ainsi que sur le mur par projection.
6) le détails de raccord entre le couvre-mur au niveau entraine des traces de coulées en partie supérieure du mitoyen de droite.
Aucun accès sur la toiture mais d'après ce que nous avons pu constaté à partir des vélux, la toiture semble dans un état correct.
Un démoulage peut s'avérer utile
1) crépine à replacer dans l'valoir
2) réparations visibles u niveau du profil de rives. Attention au vieillissement.
1) Le trou de la descente d'eau pluviale se trouve en retrait par rapport au revêtement de façade. Une isolation par l'extérieur a été collée sur la façade arrière mais l'valoir n'a pas été placé. Cela peut créer une infiltration à l'arrière du parement en cas de problème au raccord
2) Attention à la toiture du voisin de droite. Elle n'est plus étanche.
Voir ci-dessus
Les châssis sont en bon état. Attention, il n'y a pas de grilles d'aération dans les châssis. Il faut donc ouvrir pour ventiler régulièrement.
Déperdition importante à l'ouverture et au droit du vitrage de la porte d'entrée.
Il faut placer un détecteur incendie à chaque niveau.
La fenêtre simple vitrage n'est pas hermétique. Possibilité d'ouverture pour ventilation du WC
Présence d'une ventilation naturelle.
Au niveau de la douche on constate que la peinture a pelé sans doute à cause d'un manque de ventilation. Probablement que la bouche d'extraction est venue corriger le problème par la suite. Il faut décaper la peinture et remettre une couche (+/- 20 euros/m2). Le détecteur n'a pas indiqué d'humidité dans ce local lors de notre visite.
On constate par contre que le gyproc utilisé est bien un gyproc vert conçu pour les salles de bains et locaux humides.
Un rafraichissement des peintures dans la cage d'escalier est nécessaire.
La cave présente un peu d'humidité ascensionnelle qu'on retrouve notamment au bas de l'escalier de cave - côté mitoyen gauche. L'humidité ascensionnelle est courante et normale dans les constructions bruxelloises des années 1940. Aucune barrière anti-capillarité n'était placée dans les murs.
A 1.00m de haut le taux d'humidité était redevenu acceptable pour du plafonnage.
Pas de travaux à prévoir mais être vigilant si les températures en cave baissent fortement notamment au moment du remplacement de la chaudière.
Nous conseillons de prévoir une ventilation du petit local derrière la chaufferie. Celui-ci comprend visiblement la citerne d'eau pluviale mais c'était inaccessible pour pouvoir contrôlé.
La chaudière devra être remplacée dans les 5 ans maximum. D'ancienne génération elle ne présente pas un rendement de qualité.
Pour améliorer le rendement de l'installation, on peut également isoler les conduites de chauffage.
Attention néanmoins que cela risque de faire chuter la température dans les caves et de ce fait engendrer des problèmes d'humidité plus importants qui sont limités actuellement notamment à cause de la température assez élevée des caves.
A remplacer avec la nouvelle chaudière.
Voir réception électrique
DATA ROOM
Nous avons mis tous les documents importants dans la date room, n’hésitez pas à télécharger ce dont vous avez besoin !
Nous avons mis tous les documents importants dans la date room, n’hésitez pas à télécharger ce dont vous avez besoin !
Besoin de crédit
Maintenant que vous êtes sûrs d’avoir fait le bon choix, calculez la valeur totale de cette acquisition (valeur du bien et frais annexes) et estimez vos besoins en crédit !
Simulation de crédit
| Prix d'achat | € |
| Rénovation | € |
| Rénovation HTVA | {{ calculeData.renovationHTVA | number:2 }} € |
| TVA | {{ calculeData.tva | number:2 }} € |
| Fonds propres | € |
| Acompte dû (disponible au compromis de vente) | {{ calculeData.prix * 0.1 | number:2 }} € |
| Reste des liquidités (disponible à l'acte) | {{ calculeData.avance | number:2 }} € |
| Crédit pont | {{ calculeData.creditPont | number:2 }} € |
| Prix de vente de votre bien existant | € |
| Solde du crédit existant | € |
| Frais d'acte d'achat | {{ calculeData.droit + calculeData.fraisNotaire | number:2 }} € |
| Droits d'enregistrement | {{ calculeData.droit | number:2 }} € |
|
Abattement
Suis-je éligible à une réduction des droits d’enregistrement ? |
|
| Frais de notaire | {{ calculeData.fraisNotaire | number:2 }} € |
| Autres frais | {{ calculeData.inscription + calculeData.fraisDossier + calculeData.autreFrais | number:2 }} € |
| Frais liés à l'acte hypothécaire | {{ calculeData.inscription | number:2 }} € |
| Frais de dossier et expertise bancaire | {{ calculeData.fraisDossier | number:2 }} € |
| Autres frais | € |
| Montant du crédit | {{ calculeData.montantCredit | number:2 }} € | |
La présente simulation se base sur un taux d’intérêt du 07/12/2023. Ce calcul est indicatif et sujet à changement.
Choix du type de crédit
| Taux | Type | CAP | Mensualité | Mensualité Min | Mensualité Max | |
|---|---|---|---|---|---|---|
| {{ tx.banque }} {{ $index+1 }} | {{ tx.taux | number:2 }}% | {{ tx.type }} | -{{ tx.capNeg }}%/+{{ tx.capPos }}% | {{ tx.mens | number:2 }}€ | {{ tx.min | number:2 }}€ | {{ tx.max | number:2 }}€ |
| Taux | Type | CAP | Mensualité | Mensualité Min | Mensualité Max | |
|---|---|---|---|---|---|---|
| {{ tx.banque }} {{ $index+1 }} | {{ tx.taux | number:2 }}% | {{ tx.type }} | -{{ tx.capNeg }}%/+{{ tx.capPos }}% | {{ tx.mens | number:2 }}€ | {{ tx.min | number:2 }}€ | {{ tx.max | number:2 }}€ |
| Taux | Type | CAP | Mensualité | Mensualité Min | Mensualité Max | |
|---|---|---|---|---|---|---|
| {{ tx.banque }} {{ $index+1 }} | {{ tx.taux | number:2 }}% | {{ tx.type }} | -{{ tx.capNeg }}%/+{{ tx.capPos }}% | {{ tx.mens | number:2 }}€ | {{ tx.min | number:2 }}€ | {{ tx.max | number:2 }}€ |
Rentabilité
Cout total de l’acquisition
| Prix d'achat | {{ calculeData.prix | number:2 }} € |
| Rénovation | + {{ calculeData.prixTransRenovation | number:2 }} € |
| Frais | + {{ calculeData.frais | number:2 }} € |
| Coût total | + {{ calculeData.frais + calculeData.prixTransRenovation + calculeData.prix | number:2 }} € |
| Fonds propres + crédit pont | {{ calculeData.totalFP+calculeData.creditPont | number:2 }} € |
| Montant du crédit | {{ calculeData.montantCredit | number:2 }} € |
| Coût total | + {{ calculeData.creditPont + calculeData.totalFP + calculeData.montantCredit | number:2 }} € |
Rentabilité sur actifs
Durée de détention année(s)
Gain réel {{ calculeData.gainReel | number:0 }} €
Rendement sur actif {{ calculeData.rendementSurActif | number:2 }} %
Revenus
| Revenu locatif annuel Brut | € |
| Charge annuelle {{ calculeData.pourcentageCharge | number:2 }}% | {{ calculeData.chargeLocatifAnnuel | number:2 }} € |
| Précompte immobilier | {{ calculeData.precomteImmo | number:2 }} € |
| Autre charge annuelle | € |
| Revenu locatif annuel net | {{ calculeData.revenuLocatifAnnuelNet | number:2 }} € |
| Total revenu locatif après {{ calculeData.dureeDetention }} année(s) tenant compte d'une inflation de % |
{{ calculeData.totalRevenuLocatif | number:2 }} € |
| Plus-value latente | {{ calculeData.pluvalueLatente | number:2 }} % |
| Plus-value du bien après {{calculeData.dureeDetention}} année(s) | {{ calculeData.pluvalueBien | number:2 }} € |
| Total revenu locatif après {{ calculeData.dureeDetention }} année(s) | {{ calculeData.totalRevenuLocatif | number:2 }} € |
| Gain brut sur le prix de base après {{ calculeData.dureeDetention }} année(s) | +{{ calculeData.gainBrut | number:2 }} € |
Charges
| Durée du crédit | {{ calculeData.duree | number:2 }} ans |
| Taux | {{ calculeData.taux | number:2 }} % |
| Mensualité | {{ calculeData.mensualite | number:2 }} € |
| Total interêts après {{calculeData.dureeDetention}} année(s) | {{ calculeData.totalInteret | number:2 }} € |
| Total frais | {{ calculeData.frais | number:2 }} € |
| Total | {{ calculeData.InteretFrais | number:2 }} € |
Gain réel
Rendement sur actif
Cash flow
| Année | Coût | Revenu locatif | Gain |
|---|---|---|---|
| {{ $index }} | {{ ch.payment | number:2 }} € | {{ ch.revenuLocatif | number:2 }} € | {{ - ch.fondPropre | number:2 }} € |
Av. Louise 433 Louizalaan 1050 Bruxelles - Brussel
Drève Richelle, 96 - 1410 Waterloo