Suis-je éligible à une réduction des droits d’enregistrement ?
Saint-Martin 9
PRIX : 350 000 €
Type: Immeuble de rapport | Région: Wallonie | Commune: Dinant
Situé en plein centre ville, dans la rue commerçante de Dinant, à l'angle de la Rue Grande et de la Rue Saint-Martin et en face de l'hôtel de ville, By the Way vous propose cet immeuble de rapport de 4 unités comprenant un rez-de-chaussée commercial et trois appartement 2 chambres, à proximité de la gare, de la citadelle et de la Meuse. L'appartement du 3e étage est à rénover totalement. L'immeuble dispose de 3 caves en sous-sol. Les trois premières unités sont actuellement louées. L'électricité n'est pas conforme. Le rendement annuel actuel est de 5%.
Surface habitable: 365 m²
Chambres: 6
Salles de bain: 3
Vidéo
Découvrez le bien en visualisant cette vidéo
VISITE VIRTUELLE
Vous voulez en voir plus ? Visitez le bien comme si vous y étiez à travers cette visite virtuelle
Localisation
Ce bien vous correspond ? Découvrez maintenant si sa localisation vous convient !
Commerces
Pharmacies
Restaurants
Boulangeries
Crèches
Parcs
Écoles
Universités
Déplacements
Plans intérieurs
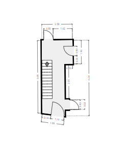
Rez-de-chaussée
SURFACE TOTALE : 87.46 m² | SURFACE HABITABLE : 87.46 m² | PIÈCES : 1
1x Commerce
1x Cuisine
1x Couloir
Commerce
SURFACE : 68.21 m²
Cuisine
SURFACE : 4.78 m²
Couloir
SURFACE : 13.32 m²
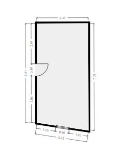
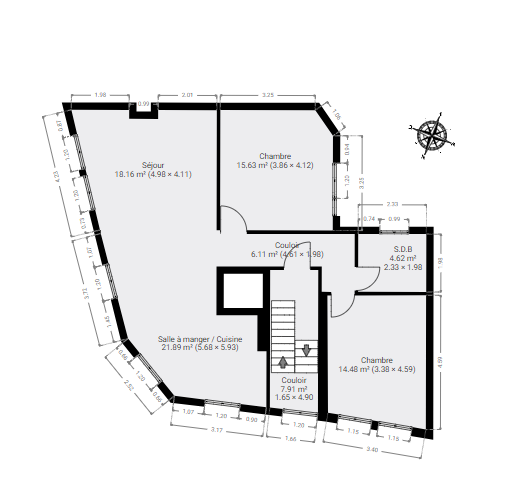
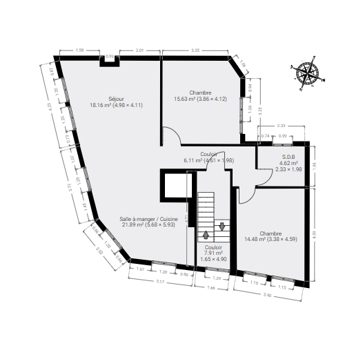
1er étage
SURFACE TOTALE : 88.75 m² | SURFACE HABITABLE : 88.75 m² | PIÈCES : 4
2x Chambres
1x S.D.B
2x Couloirs
1x Séjour
1x Salle à manger
Chambre A
SURFACE : 14.49 m²
S.D.B
SURFACE : 4.62 m²
Couloir A
SURFACE : 6.11 m²
Chambre B
SURFACE : 15.63 m²
Séjour
SURFACE : 18.16 m²
Salle à manger
SURFACE : 21.89 m²
Couloir B
SURFACE : 7.91 m²
2e étage
SURFACE TOTALE : 88.75 m² | SURFACE HABITABLE : 88.75 m² | PIÈCES : 4
2x Chambres
1x S.D.B
2x Couloirs
1x Salle à manger
1x Séjour
Chambre A
SURFACE : 14.49 m²
S.D.B
SURFACE : 4.62 m²
Couloir A
SURFACE : 6.11 m²
Couloir B
SURFACE : 7.91 m²
Salle à manger
SURFACE : 21.89 m²
Séjour
SURFACE : 18.16 m²
Chambre B
SURFACE : 15.63 m²
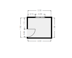
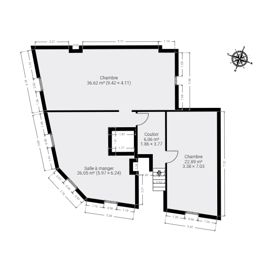
3e étage
SURFACE TOTALE : 91.59 m² | SURFACE HABITABLE : 91.59 m² | PIÈCES : 3
1x Couloir
2x Chambres
1x Salle à manger
Couloir
SURFACE : 6.06 m²
Chambre A
SURFACE : 22.89 m²
Salle à manger
SURFACE : 26.05 m²
Chambre B
SURFACE : 36.62 m²
RECHERCHE CADASTRALE
Vous souhaitez mieux connaître votre parcelle et connaître la surface dont vous jouirez en achetant ce bien, alors consulter le cadastre est nécessaire !
Surface : 123.83m²
Parcelle : G326g
Certificats
Informez-vous sur la performance énergétique de ce bien et assurez-vous que ses installations électriques sont bien aux normes !
PERFORMANCE ÉNERGÉTIQUE
Etage 1
Économe
Très énergivore
Etage 2
Économe
Très énergivore
CERTIFICATEUR ÉLECTRIQUE
PROCES VERBAL D’EXAMEN DE CONFORMITE ET/OU DE VISITE DE CONTROLE D’UNE INSTALLATION ELECTRIQUE BASSE TENSION
La nouvelle installation Non conforme
Agent
visiteur
Xavier Lepage
Date
de certification
09/12/2022
Doit être
contrôlée avant
09/12/2023
Audit technique
En prévoyant un budget précis des transformations et/ou réparations à opérer sur ce bien, l'expertise réalisée par un architecte neutre et indépendant vous permet de mieux évaluer la valeur de ce bien !
Score général attribué par l’auditeur *
Conseils généraux en termes de performances énergétiques du bâtiment :
Le grenier n'est pas isolé au niveau des versants de toiture. Une couche 20cm de laine minérale pourrait être ajoutée afin d'arriver aux performances énergétiques actuelles.
Les murs et la dalle de sol ne sont probablement pas isolés.
Il y a toujours possibilité d'isoler les murs par l'extérieur mais bien sur sans oublier le coût (150€/m² pour un crépi isolé) et l'aspect si le parement est fait en crépi ou en briques (voir avec le style de la maison et les possibilité urbanistique).
Et si l'isolation est renforcée, il y aura lieu d'augmenter la ventilation (aérateurs dans les châssis dans les locaux secs (séjour, chambres, bureau) et extracteurs mécaniques dans les locaux humides (wc, salles de douche) afin d'éviter l'effet thermos de la maison (risque d'apparition de moisissures si trop de condensation).
Le systeme de chauffage est particulier au rez et ne présente vraisemblablement plus un niveau de performance satisfaisant, son remplacement pour un système moderne améliorera aussi les performance du batiment.
Avis général et conseils de l'inspecteur :
Idéalement situé, dans le centre de Dinant, le bâtiment est dans un bon état général et a été entretenu à minima.
Celui-ci nécessite une rénovation globale qui permettra de lui apporter un confort et des équipements contemporains (surtout au rez). Au niveau technique général, une révision complète sera nécessaire afin de rendre le bâtiment normé tant au niveau électrique que de la salubrité et du risque incendie.
Nous recommandons au propriétaire de faire appel à l'auditeur énergétique et à un architecte qui disposent des connaissances techniques et légales pour organiser ces travaux en fonction des besoins et des budgets disponibles.
DISCLAIMER
La conclusion et les conseils donnés sont le résultat d’une inspection indépendante, réalisée par un architecte expérimenté et agréé par ImmoPass.
Les éventuelles estimations budgétaires contenues dans ce rapport sont données à titre indicatif et ne constituent pas un devis. Nous recommandons de réaliser un Cahier des Charges sur tout ou partie des travaux à entreprendre et une analyse des devis reçus. Les estimations sont exprimées hors taxes.
L’inspection a été réalisée de manière non-destructive, de manière visuelle uniquement. Ce rapport ne peut donc garantir l’absence totale de vices techniques cachés.
50 %
Zone inondable, zone acoustique, plan de secteurs, permis d’urbanisme ...
50 %
Certification énergétique, conformité électrique, cuve à mazout, sol, ...
75 %
Sécurité, aménagements, structures extérieures, entretien végétation, ...
88 %
Humidité généralisée, présence d’amiante, mérule, termites ...
55 %
Toiture, murs extérieurs, châssis et portes, évacuation eau de pluie, ...
80 %
Défauts structurels, humidité localisée, salubrité, état de fonctionnement..
75 %
Halls et escaliers, caves, combles et grenier, locaux techniques, ...
75 %
Système de chauffage, eau chaude sanitaire, électricité, entretiens techniques, ...
Aléa faible à moyen par débordement.
Nous avons eu accès uniquement au rapport PEB des appartements.
Le toit type véranda existant au rez-de-chaussée au niveau du fond du commerce présente une dégradation avancée de son étanchéité. Nous pouvons constater une vidéo présentant un écoulement continu en cas de grosse pluie. La verrière est à remplacer et le système de récupération des eaux de pluie à vérifier lors de la modification. Estimation remplacement verrière : +/-9000 euro, un devis précis est à réaliser via une entreprise spécialisée, selon mesures prise sur place et technique employée. Le remplacement pour une structure standard en bois sans apport de lumière est bien sur possible et le budget sera plus réduit (+/-450euro/m²).
Pas d'humidité généralisée, mais des zones à voir en points concernés.
Nous remarquons que le revêtement crépis/enduit est particulièrement noirci.
Au fil des années, il est tout à fait normal qu’une façade crépie claire noircisse. Généralement, on observe des coulées et des traînées noires de haut en bas qui la rendent peu esthétique, les raisons peuvent êtres multiples :
1. L’humidité et la pluie
Selon l’exposition, le climat peut favoriser le développement de micro-organismes. Mousse, champignons et lichens apparaissent avec le temps et laissent des traînées noires sur la façade.
2. La pollution
Autre raison courante : la pollution atmosphérique urbaine. Le noircissement de la façade est causé par les échappements des voitures, les fumées des usines.
3. Un enduit pas adapté au revêtement
Il est possible qu’un enduit pas adapté au type de revêtement de votre façade ait été appliqué. Dans ce cas, le matériau noircit assez vite.
Dans notre cas, la pollution est certainement la cause principale. Mais nous remarquons également une somme importante de coulée sous les gouttières et les différentes excroissances de façade.
Prix d'un nettoyage de façade crépis, +/-20euro/m²
Les boiseries de façades sont, elles aussi, dégradée et serait à rénover afin de garder le cachet du bâtiment.
L'ensemble des toitures est à d’émousser. Estimation: +/-4000 euros. Quelques ardoises semblent détachées et seront à replacer. Un nettoyage des gouttières sera aussi à prévoir en prévention.
Une inspection plus poussée est à réaliser par une entreprise spécialisée afin de vérifier tous les raccords non visibles durant la visite.
Voir 4.5, de plus nous avons remarque au niveau des raccords intérieurs que certains solins semblent dégradés, vérification à confirmer via entreprise.
Dans l'ensemble les corniches sont dégradées, dus à leur âge.
Par contre nous avons constaté un gros dégât entrainant un ruissellement sur la façade au droit de la fenêtre de la cuisine de l’appartement du rez+2. Une réparation est à effectuer en urgence, à moyen terme, un remplacement global des corniches sera à prévoir.
Estimation réparation corniche : +/-200euro/m (=> +/- 6000euros pour le global).
Et voir 2.11
Voir 2.11
Les menuiseries sont disparates, selon leurs emplacements dans le bâtiment:
- Rez de chaussée : Les châssis sont tous en simple vitrage, bois, de style d'époque.
- Rez+1 logement 1: les châssis sont en double vitrage, PVC, la porte vitrée située dans l'amble du bâtiment n'est pas étanche à l'air.
- Rez+2 Logement 2: Les châssis sont généralement en double vitrage PVC, 2 châssis sont encore en double vitrage bois (Chambre arrière et SDB) et un en simple vitrage bois (hall).
- Combles: Châssis simple vitrage bois et lanterneaux acier simple vitrage.
Il est évident que les châssis (visuellement d'époque) en bois, simple vitrage, sont à remplacer à court terme. Les joints de vitrage sont, dans l'ensemble en bon état et ont une étanchéité correcte. Ceux-ci sont, malgré tout, peu efficient et augmentent le besoin de chauffage du bâtiment, un remplacement serait à prévoir afin d’améliorer la performance globale du bâtiment. Estimation remplacement des châssis : +/-800€/m².
Pour le reste, les menuiseries, dans l'ensemble, sont fonctionnelles et en bon état mais aucune OAR n'a été prévue lors de leur pose. Il s’agirait d'étudier un potentiel placement de grille de type OAR dans les pièces de vie. Estimation : +/-400 euros par pièce.
Un système de ventilation global centralisé. (C+) peut être envisagé mais l’installation de celui-ci entrainera la prévision d'un budget plus important afin de pallier aux modification des gaines et des installations techniques et devra être étudié par une firme spécialisée afin de chiffrer le budget nécessaire plus précisément.
Voir 4.10
Aucune des pièces de vie ne comporte de système de ventilation. Cela s'explique logiquement par les normes de ventilation plus libertaires au moment de la construction ou de la rénovation du bâtiment.
La mise en place de ce système de ventilation sera d'office necessaire si le propriétaire procède au remplacement des châssis dans le futur; il aura l'obligation d'intégrer un système de ventilation (amenée d'air par les pièces sèches) aux châssis ou de prévoir un système de ventilation mécanique à double flux. Même si la norme ne l'impose pas et que le propriétaire opte pour la ventilation via les grilles dans les châssis, nous recommandons d'installer également un système moderne d'extraction d'air par les pièces humides qui n'en sont pas encore équipées pour que le système de ventilation soit complet et efficace.
(Estimation financière pour le placement de systèmes d'extractions mécaniques au départ des locaux humides = +/3000€ htva.)
Étant dans le cadre d'un immeuble comprenant plusieurs entités, nous sommes sous le coup du règlement de pompiers spécifique à la zone, malheureusement, pas de rapport disponible pour ce bâtiment. Le passage du service prévention DINAPHI est à prévoir.
La signalétique, les extincteurs, l'exutoire de fumée et le compartimentage incendie sont généralement lacunaire. La vérification devra être effectuée et le rapport du service incendie remis afin d'estimer au mieux les modifications à apporter au bâtiment et ses installations le cas échéant, nous ne pouvons estimer l'ampleur des travaux à ce stade.
Nous retrouvons des traces d'humidité au droit du mitoyen coté 104/106 rue grande. Autant au niveau du rez+1 que du rez+2. Selon les occupants, celles-ci n’évoluent plus et seraient dues à un dégât des eaux ayant eu lieux en comble. A surveiller donc.
Voir 4.10
Voir 4.10
Nous retrouvons des traces d'humidité au droit du mitoyen coté 07 rue Saint Martin. Autant au niveau du rez+1 que du rez+2. Selon les occupants, celles-ci sont généralement humide, le détecteur est relativement stable mais l'humidité est présente, nous suspections les soucis de corniche coupables d'entrainer de légères infiltrations en façade. A surveiller donc après réparation des corniches.
Voir 4.10
Voir 4.10
Aucun appareils de ventilations n'ont été installés. L’installation d'extracteurs individuels automatiques dans chaque piece d'eau permettra d'améliorer l’évacuation de l'air humide des pièces d'eau.
Estimation: +/-400 euro/piece => +/- 3000 euro pour l'ensemble du batiment. Afin d'assurer le fonctionnement de cette ventilation le remplacement des châssis en leur ajoutant des grilles d'amenées d'air (OAR) serait necessaire afin d'optimiser celle-ci.
Voir 4.10
La rampe est légèrement bancale en certain point, afin d'assurer la sécurité des occupants il est important de prévoir une refixation. Un remplacement est possible mais le budget sera alors bien plus conséquent. (+/-150euro/mct)
Dans l'ensemble, les combles sont saints, les points de test ont tous été positif, nous retrouvons des zones plus sombres ou de l’humidité a pu être plus importante, ceci s'explique aisément par le manque d'isolation et d'étanchéité des châssis existants. Les combles sont aménageables sans difficulté.
Voir 4.10
Dans l'ensemble, les bas de mur sont humides. Les index d'humidité relevées au pied des murs de la cave traduisent une remontée capillaire ou traversante de l'humidité du sol. Ce phénomène est compréhensible compte tenu de la technique de construction du bâtiment qui n'intégrait pas de membrane anti-capillaire ou de drain le long des façades. De plus nous nous trouvons à proximité et au niveau de la Meuse.
Nous remarquons d’ailleurs la présence de rigoles permettant de réguler des flux d'infiltration.
Nous pensons qu'il serait judicieux de freiner le phénomène par l'une ou l'autre technique existante.
1.Appliquer un enduit d’étanchéité (cuvelage) ; entre 35 €/m2 et 45 €/m2.
2.Assécher les murs et les injecter de résine ; entre 65 et 110 €/mètres linéaire.
3.Améliorer la ventilation de cave.
Selon la méthode choisie, une étude plus précise devra être réalisée par l'entreprise spécialisée avant la réalisation.
Nous avons constaté la présence d'un ventail de ventilation, la circulation n'est pas optimale, un autre ventail doit être installé afin de créer un courant d'air en cave et améliorer l'évacuation de l'humidité.
Prix ventail: +/-150euro.
Au niveau des appartements, les chaudières sont récentes et ne présentent pas de problème.
Pour le commerce au rez, le chauffage devait être assuré par 2 groupes de froid/chaud électrique de type climatiseur. Ceux-ci sont hors service et l'installation des groupes de froid en cave ne respecte pas les normes. Un chauffage sera à installer pour l'unité du rez de chaussée.
Estimation installation chauffage + système de diffusion classique: +/-6000 euros pour l'installation d'une chaudière gaz et de 3 à 4 radiateurs avec canalisation apparentes.
Dans l'ensemble le système à été entretenu par le propriétaire précédent et est fonctionnel. Celui-ci doit malgré tout être revu et amélioré afin de l'adapter aux normes actuelles.
DATA ROOM
Nous avons mis tous les documents importants dans la date room, n’hésitez pas à télécharger ce dont vous avez besoin !
Nous avons mis tous les documents importants dans la date room, n’hésitez pas à télécharger ce dont vous avez besoin !
Besoin de crédit
Maintenant que vous êtes sûrs d’avoir fait le bon choix, calculez la valeur totale de cette acquisition (valeur du bien et frais annexes) et estimez vos besoins en crédit !
Simulation de crédit
| Prix d'achat | € |
| Rénovation | € |
| Rénovation HTVA | {{ calculeData.renovationHTVA | number:2 }} € |
| TVA | {{ calculeData.tva | number:2 }} € |
| Fonds propres | € |
| Acompte dû (disponible au compromis de vente) | {{ calculeData.prix * 0.1 | number:2 }} € |
| Reste des liquidités (disponible à l'acte) | {{ calculeData.avance | number:2 }} € |
| Crédit pont | {{ calculeData.creditPont | number:2 }} € |
| Prix de vente de votre bien existant | € |
| Solde du crédit existant | € |
| Frais d'acte d'achat | {{ calculeData.droit + calculeData.fraisNotaire | number:2 }} € |
| Droits d'enregistrement | {{ calculeData.droit | number:2 }} € |
|
Abattement
Suis-je éligible à une réduction des droits d’enregistrement ? |
|
| Frais de notaire | {{ calculeData.fraisNotaire | number:2 }} € |
| Autres frais | {{ calculeData.inscription + calculeData.fraisDossier + calculeData.autreFrais | number:2 }} € |
| Frais liés à l'acte hypothécaire | {{ calculeData.inscription | number:2 }} € |
| Frais de dossier et expertise bancaire | {{ calculeData.fraisDossier | number:2 }} € |
| Autres frais | € |
| Montant du crédit | {{ calculeData.montantCredit | number:2 }} € | |
Choix du type de crédit
| Taux | Type | CAP | Mensualité | Mensualité Min | Mensualité Max | |
|---|---|---|---|---|---|---|
| {{ tx.banque }} | {{ tx.taux | number:2 }}% | {{ tx.type }} | -{{ tx.capNeg }}%/+{{ tx.capPos }}% | {{ tx.mens | number:2 }}€ | {{ tx.min | number:2 }}€ - | {{ tx.max | number:2 }}€ - |
| Taux | Type | CAP | Mensualité | Mensualité Min | Mensualité Max | |
|---|---|---|---|---|---|---|
| {{ tx.banque }} | {{ tx.taux | number:2 }}% | {{ tx.type }} | -{{ tx.capNeg }}%/+{{ tx.capPos }}% | {{ tx.mens | number:2 }}€ | {{ tx.min | number:2 }}€ - | {{ tx.max | number:2 }}€ - |
| Taux | Type | CAP | Mensualité | Mensualité Min | Mensualité Max | |
|---|---|---|---|---|---|---|
| {{ tx.banque }} | {{ tx.taux | number:2 }}% | {{ tx.type }} | -{{ tx.capNeg }}%/+{{ tx.capPos }}% | {{ tx.mens | number:2 }}€ | {{ tx.min | number:2 }}€ - | {{ tx.max | number:2 }}€ - |
Rentabilité
Cout total de l’acquisition
| Prix d'achat | {{ calculeData.prix | number:2 }} € |
| Rénovation | + {{ calculeData.prixTransRenovation | number:2 }} € |
| Frais | + {{ calculeData.frais | number:2 }} € |
| Coût total | + {{ calculeData.frais + calculeData.prixTransRenovation + calculeData.prix | number:2 }} € |
| Fonds propres + crédit pont | {{ calculeData.totalFP+calculeData.creditPont | number:2 }} € |
| Montant du crédit | {{ calculeData.montantCredit | number:2 }} € |
| Coût total | + {{ calculeData.creditPont + calculeData.totalFP + calculeData.montantCredit | number:2 }} € |
Rentabilité sur actifs
Durée de détention année(s)
Gain réel {{ calculeData.gainReel | number:0 }} €
Rendement sur actif {{ calculeData.rendementSurActif | number:2 }} %
Revenus
| Revenu locatif annuel Brut | € |
| Charge annuelle {{ calculeData.pourcentageCharge | number:2 }}% | {{ calculeData.chargeLocatifAnnuel | number:2 }} € |
| Précompte immobilier | {{ calculeData.precomteImmo | number:2 }} € |
| Autre charge annuelle | € |
| Revenu locatif annuel net | {{ calculeData.revenuLocatifAnnuelNet | number:2 }} € |
| Total revenu locatif après {{ calculeData.dureeDetention }} année(s) tenant compte d'une inflation de % |
{{ calculeData.totalRevenuLocatif | number:2 }} € |
| Plus-value latente | {{ calculeData.pluvalueLatente | number:2 }} % |
| Plus-value du bien après {{calculeData.dureeDetention}} année(s) | {{ calculeData.pluvalueBien | number:2 }} € |
| Total revenu locatif après {{ calculeData.dureeDetention }} année(s) | {{ calculeData.totalRevenuLocatif | number:2 }} € |
| Gain brut sur le prix de base après {{ calculeData.dureeDetention }} année(s) | +{{ calculeData.gainBrut | number:2 }} € |
Charges
| Durée du crédit | {{ calculeData.duree | number:2 }} ans |
| Taux | {{ calculeData.taux | number:2 }} % |
| Mensualité | {{ calculeData.mensualite | number:2 }} € |
| Total interêts après {{calculeData.dureeDetention}} année(s) | {{ calculeData.totalInteret | number:2 }} € |
| Total frais | {{ calculeData.frais | number:2 }} € |
| Total | {{ calculeData.InteretFrais | number:2 }} € |
Gain réel
Rendement sur actif
Cash flow
| Année | Coût | Revenu locatif | Gain |
|---|---|---|---|
| {{ $index }} | {{ ch.payment | number:2 }} € | {{ ch.revenuLocatif | number:2 }} € | {{ - ch.fondPropre | number:2 }} € |
Av. Louise 433 Louizalaan 1050 Bruxelles - Brussel
Drève Richelle, 96 - 1410 Waterloo