Suis-je éligible à une réduction des droits d’enregistrement ?
ROSSIGNOL 92
PRIX : 420 000€
Type: Maison 2F | Région: Wallonie | Commune: Braine-L'Alleud
Surface habitable: 195 m²
Jardin: 200 m²
Chambres: 3
Salles de bains: 2
Terrasse: 20 m²
Caves: 2
Bureau: 1
Vidéo
Découvrez le bien en visualisant cette vidéo
VISITE VIRTUELLE
Vous voulez en voir plus ? Visitez le bien comme si vous y étiez à travers cette visite virtuelle
Localisation
Ce bien vous correspond ? Découvrez maintenant si sa localisation vous convient !
Commerces
Pharmacies
Restaurants
Boulangeries
Crèches
Parcs
Écoles
Universités
Déplacements
Plans intérieurs
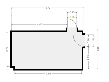
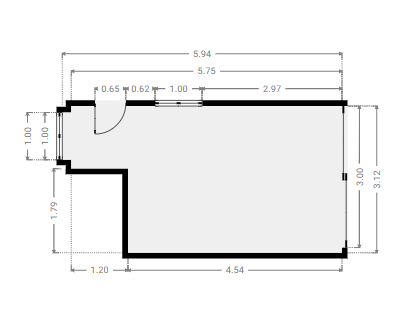
Rez-de-chaussée
SURFACE TOTALE : 90.88 m² | SURFACE HABITABLE : 74.48 m² | PIÈCE(S) : 3
1x Séjour
1x Entrée
1x Chambre
1x S.D.B.
1x Cuisine
Séjour
SURFACE : 33.66 m²
Entrée
SURFACE : 4.51 m²
Chambre
SURFACE : 16.47 m²
S.D.B.
SURFACE : 3.01 m²
Cuisine
SURFACE : 8.3 m²
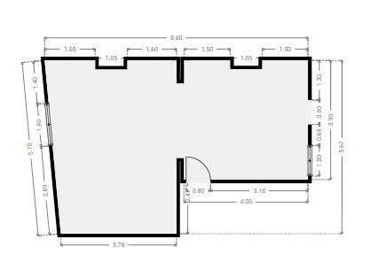
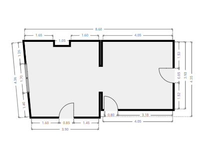
1er étage
SURFACE TOTALE : 90.32 m² | SURFACE HABITABLE : 75.22 m² | PIÈCE(S) : 3
1x Séjour
1x Véranda
1x Cuisine
1x S.D.B.
1x Terrasse
Séjour
SURFACE : 38.7 m²
Véranda
SURFACE : 15.95 m²
Cuisine
SURFACE : 8.29 m²
S.D.B.
SURFACE : 5.41 m²
Terrasse
SURFACE : 6.6 m²
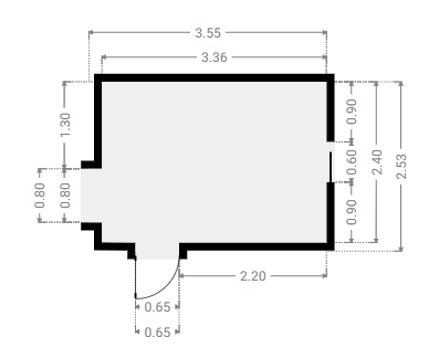
2e étage
SURFACE TOTALE : 53.24 m² | SURFACE HABITABLE :44.09 m² | PIÈCE(S) : 3
2x Chambres
1x Bureau
Chambre A
SURFACE : 11.78 m²
Bureau
SURFACE : 8.7 m²
Chambre B
SURFACE : 18.11 m²
RECHERCHE CADASTRALE
Vous souhaitez mieux connaître votre parcelle et connaître la surface dont vous jouirez en achetant ce bien, alors consulter le cadastre est nécessaire !
État des sols
La pollution du sol a un impact sur l'environnement et sur la santé, les risques d’inondation ont un impact sur votre qualité de vie… Consultez les données relatives à ce bien pour en avoir le cœur net !
ÉTAT DE LA POLLUTION DES SOLS
Aucune remarque particulière pour la parcelle H395
Source : Cliquez-ici
Légende :
ZONE INONDABLE
Aucune remarque particulière pour la parcelle H395
Source : Cliquez-ici
Légende :
Certificats
Informez-vous sur la performance énergétique de ce bien et assurez-vous que ses installations électriques sont bien aux normes !
PERFORMANCE ÉNERGÉTIQUE (Unité 1)
Économe
Très énergivore
PERFORMANCE ÉNERGÉTIQUE (Unité 2)
Économe
Très énergivore
CERTIFICATEUR ÉLECTRIQUE
PROCES VERBAL D’EXAMEN DE CONFORMITE ET/OU DE VISITE DE CONTROLE D’UNE INSTALLATION ELECTRIQUE BASSE TENSION
La nouvelle installation Non conforme
Agent
visiteur
Quentin Delhaye
Date
de certification
28/10/2022
Doit être
contrôlée avant
28/10/2023
Audit technique
En prévoyant un budget précis des transformations et/ou réparations à opérer sur ce bien, l'expertise réalisée par un architecte neutre et indépendant vous permet de mieux évaluer la valeur de ce bien !
Score général attribué par l’auditeur *
Conseils généraux en termes de performances énergétiques du bâtiment :
les combles ne semblent pas suffisamment isolé au niveau des versants de toiture. Une couche de laine minérale pourrait être ajoutée afin d'arriver aux performances énergétiques actuelles.
Les murs et la dalle de sol ne sont probablement pas isolés.
Il y a toujours possibilité d'isoler les murs par l'extérieur mais bien sur sans oublier le coût (150€/m² pour un crépi isolé) et l'aspect si le parement est fait en crépi ou en briques (voir avec le style de la maison et les possibilité urbanistique).
Et si l'isolation est renforcée, il y aura lieu d'augmenter la ventilation (aérateurs dans les châssis dans les locaux secs (séjour, chambres, bureau) et extracteurs mécaniques dans les locaux humides (wc, salles de douche) afin d'éviter l'effet thermos de la maison (risque d'apparition de moisissures si trop de condensation).
Le système de chauffage présente vraisemblablement un niveau de performance satisfaisant actuellement mais leur remplacement à moyen terme par un systheme encore plus performant permettra de réaliser des économies d’énergie.
Avis général et conseils de l'inspecteur :
Bien situé, à proximité du centre de Braine l’Alleud, le bâtiment est dans un bon état général et a été entretenu à minima.
Au niveau technique général, une révision sera nécessaire afin de rendre le bâtiment normé tant au niveau électrique que de la salubrité et du risque incendie, celui-ci étant un immeuble de rapport, une attention particulière est à porter à ce niveau.
Nous recommandons au propriétaire de faire appel à un auditeur énergétique et à un architecte qui disposent des connaissances techniques et légales pour organiser ces travaux en fonction des besoins et des budgets disponibles.
DISCLAIMER
La conclusion et les conseils donnés sont le résultat d’une inspection indépendante, réalisée par un architecte expérimenté et agréé par ImmoPass.
Les éventuelles estimations budgétaires contenues dans ce rapport sont données à titre indicatif et ne constituent pas un devis. Nous recommandons de réaliser un Cahier des Charges sur tout ou partie des travaux à entreprendre et une analyse des devis reçus. Les estimations sont exprimées hors taxes.
L’inspection a été réalisée de manière non-destructive, de manière visuelle uniquement. Ce rapport ne peut donc garantir l’absence totale de vices techniques cachés.
83 %
Zone inondable, zone acoustique, plan de secteurs, permis d’urbanisme ...
75 %
Certification énergétique, conformité électrique, cuve à mazout, sol, ...
88 %
Sécurité, aménagements, structures extérieures, entretien végétation, ...
100 %
Humidité généralisée, présence d’amiante, mérule, termites ...
85 %
Toiture, murs extérieurs, châssis et portes, évacuation eau de pluie, ...
80 %
Défauts structurels, humidité localisée, salubrité, état de fonctionnement..
75 %
Halls et escaliers, caves, combles et grenier, locaux techniques, ...
79 %
Système de chauffage, eau chaude sanitaire, électricité, entretiens techniques, ...
La configuration des appartements semble incompatible avec un permis d'urbanisme cohérent.
En effet, les chambre et le Wc séparé du logement du Rez+1 sont accessibles via la cage d'escalier commune, cette configuration n’est pas autorisée en cas de logement multiple dans le même volume. Nous n'avons pas eu accès aux informations concernant le permis existant et les autorisations s'y rapportant. A vérifier via notaire ou administration communale.
Le jardin est laissé relativement en friche, pas de végétation anarchique actuellement, à entretenir.
Petite terrasse en gravier, moyennement définie, à entretenir.
Dans l'ensemble la véranda est utilisable, nous avons par contre relevé un trou situé proche de l'ouverture arrière laissant passer des nuisible ou des insectes. Une réparation est à effectuer.
Le nettoyage et la vérification des joints de la toiture est à effectuer.
L’Abri de jardin est défraichi, un traitement des surfaces est à réaliser afin de garantir son utilisation dans la durée.
Le revêtement de façade avant (crépis) présente de légères fissures de surface, un léger entretien est réalisable afin de rénover le revêtement. Estimation rénovation crépis :+/-65euro/m².
En façade arrière, les briques sont peintes en blanc, la peinture est relativement dégradée, une rénovation apporterait une plus-value esthétique au bien. Estimation : +/-4euros/m²
Dans l'ensemble les corniches sont dégradées, dus à leur âge. Un entretien de surface est à prévoir. Estimation: +/-100euros/mct
Les menuiseries sont disparates, selon leurs emplacements dans le bâtiment:
- Rez de chaussée Logement 1: Châssis de la chambre en simple vitrage bois, reste du logement PVC double vitrage.
- Rez+1 logement 2: les châssis sont en double vitrage, PVC, les châssis entre le logement et la véranda sont en simple vitrage bois. Le vitrage du châssis de la salle de bain est fissuré.
- Combles logement 2 : Velux de moins de 10 ans. Sous comble, l'un des velux présente des traces d'humidité et la finition extérieure se dégrade.
- Cage d'escalier: Simple vitrage bois, fissuré.
- Wc séparé: baie bouchée donnant sur la véranda.
Il est évident que les châssis (visuellement d'époque) en bois, simple vitrage, sont à remplacer à court terme. Les joints de vitrage sont, dans l'ensemble en bon état et ont une étanchéité correcte. Ceux-ci sont, malgré tout, peu efficient et augmentent le besoin de chauffage du bâtiment, un remplacement serait à prévoir afin d’améliorer la performance globale du bâtiment. Estimation remplacement des châssis : +/-800€/m². Le vitrage des châssis double vitrage fissurés sont aussi à remplacer.
Pour le reste, les menuiseries, dans l'ensemble, sont fonctionnelles et en bon état mais aucune OAR n'a été prévue lors de leur pose. Il s’agirait d'étudier un potentiel placement de grille de type OAR dans les pièces de vie. Estimation : +/-400 euros par pièce.
Un système de ventilation global centralisé. (C+) peut être envisagé mais l’installation de celui-ci entrainera la prévision d'un budget plus important afin de pallier aux modification des gaines et des installations techniques et devra être étudié par une firme spécialisée afin de chiffrer le budget nécessaire plus précisément.
Voir 4.11
Aucune des pièces de vie ne comporte de système de ventilation. Cela s'explique logiquement par les normes de ventilation plus libertaires au moment de la construction ou de la rénovation du bâtiment. Nous avons constaté que les velux possèdent une position ventilation, mais celle-ci est tributaire du bon vouloir des occupants.
La mise en place de ce système de ventilation sera d'office necessaire si le propriétaire procède au remplacement des châssis dans le futur; il aura l'obligation d'intégrer un système de ventilation (amenée d'air par les pièces sèches) aux châssis ou de prévoir un système de ventilation mécanique à double flux. Même si la norme ne l'impose pas et que le propriétaire opte pour la ventilation via les grilles dans les châssis, nous recommandons d'installer également un système moderne d'extraction d'air par les pièces humides qui n'en sont pas encore équipées pour que le système de ventilation soit complet et efficace.
(Estimation financière pour le placement de systèmes d'extractions mécaniques au départ des locaux humides = +/1600€ htva).
La luminosité du logement du rez mériterais une analyse plus poussée, nous n'avons pas pu prendre les mesures précise mais nous supposons un éclairage légèrement insuffisant.
Étant dans le cadre d'un immeuble comprenant plusieurs entités, nous sommes sous le coup du règlement de pompiers spécifique à la zone, malheureusement, pas de rapport disponible pour ce bâtiment. Le passage du service prévention de la zone est à prévoir.
La signalétique, les extincteurs, l'exutoire de fumée et le compartimentage incendie sont généralement lacunaire. La vérification devra être effectuée et le rapport du service incendie remis afin d'estimer au mieux les modifications à apporter au bâtiment et ses installations le cas échéant, nous ne pouvons estimer l'ampleur des travaux à ce stade.
Voir 4.10
Le sol de la cuisine située au rez+1 se gondole et se dégrade, un entretien est à réaliser.
Voir 4.10
La cuisine du rez ne possède pas de hotte, une installation est à prévoir.
Estimation: +/-350 euro pose comprise.
Voir 4.10
Voir 4.10
Aucuns appareils de ventilations n'ont été installés, hormis dans la salle de bain du rez+1. L’installation d'extracteurs individuels automatiques dans les autres pièces d'eau permettra d'améliorer l’évacuation de l'air humide des pièces d'eau.
Estimation: +/-400 euro/pièce => +/- 1600 euros pour l'ensemble du bâtiment. Afin d'assurer le fonctionnement de cette ventilation le remplacement des châssis en leur ajoutant des grilles d'amenées d'air (OAR) serait nécessaire afin d'optimiser celle-ci.
Voir 4.10
voir 5.19
Voir 4.10
La rampe est légèrement bancale en certain point, afin d'assurer la sécurité des occupants il est important de prévoir un entretien de celle-ci. Un remplacement est possible mais le budget sera alors bien plus conséquent. (+/-200euro/mct)
Nous avons pas constaté la présence de ventilation, la circulation de l'air n'est donc pas optimale, des ventaux doit être installé afin de créer un courant d'air en cave et améliorer l'évacuation de l'humidité.
Prix ventail: +/-150euro/pc.
Au niveau des appartements, les chaudières sont relativement récentes et ne présentent pas de problème.
Via chaudière
Dans l'ensemble le système a été entretenu par le propriétaire précédent et est fonctionnel. Celui-ci doit malgré tout être revu et amélioré afin de l'adapter aux normes actuelles. Nous retrouvons en certains endroits des câbles à nu, décrochés des parois, pendants, une révision du circuit est à effectuer.
DATA ROOM
Nous avons mis tous les documents importants dans la date room, n’hésitez pas à télécharger ce dont vous avez besoin !
Nous avons mis tous les documents importants dans la date room, n’hésitez pas à télécharger ce dont vous avez besoin !
Besoin de crédit
Maintenant que vous êtes sûrs d’avoir fait le bon choix, calculez la valeur totale de cette acquisition (valeur du bien et frais annexes) et estimez vos besoins en crédit !
Simulation de crédit
| Prix d'achat | € |
| Rénovation | € |
| Rénovation HTVA | {{ calculeData.renovationHTVA | number:2 }} € |
| TVA | {{ calculeData.tva | number:2 }} € |
| Fonds propres | € |
| Acompte dû (disponible au compromis de vente) | {{ calculeData.prix * 0.1 | number:2 }} € |
| Reste des liquidités (disponible à l'acte) | {{ calculeData.avance | number:2 }} € |
| Crédit pont | {{ calculeData.creditPont | number:2 }} € |
| Prix de vente de votre bien existant | € |
| Solde du crédit existant | € |
| Frais d'acte d'achat | {{ calculeData.droit + calculeData.fraisNotaire | number:2 }} € |
| Droits d'enregistrement | {{ calculeData.droit | number:2 }} € |
|
Abattement
Suis-je éligible à une réduction des droits d’enregistrement ? |
|
| Frais de notaire | {{ calculeData.fraisNotaire | number:2 }} € |
| Autres frais | {{ calculeData.inscription + calculeData.fraisDossier + calculeData.autreFrais | number:2 }} € |
| Frais liés à l'acte hypothécaire | {{ calculeData.inscription | number:2 }} € |
| Frais de dossier et expertise bancaire | {{ calculeData.fraisDossier | number:2 }} € |
| Autres frais | € |
| Montant du crédit | {{ calculeData.montantCredit | number:2 }} € | |
La présente simulation se base sur un taux d’intérêt du 24/11/2023. Ce calcul est indicatif et sujet à changement.
Choix du type de crédit
| Taux | Type | CAP | Mensualité | Mensualité Min | Mensualité Max | |
|---|---|---|---|---|---|---|
| {{ tx.banque }} {{ $index+1 }} | {{ tx.taux | number:2 }}% | {{ tx.type }} | -{{ tx.capNeg }}%/+{{ tx.capPos }}% | {{ tx.mens | number:2 }}€ | {{ tx.min | number:2 }}€ | {{ tx.max | number:2 }}€ |
| Taux | Type | CAP | Mensualité | Mensualité Min | Mensualité Max | |
|---|---|---|---|---|---|---|
| {{ tx.banque }} {{ $index+1 }} | {{ tx.taux | number:2 }}% | {{ tx.type }} | -{{ tx.capNeg }}%/+{{ tx.capPos }}% | {{ tx.mens | number:2 }}€ | {{ tx.min | number:2 }}€ | {{ tx.max | number:2 }}€ |
| Taux | Type | CAP | Mensualité | Mensualité Min | Mensualité Max | |
|---|---|---|---|---|---|---|
| {{ tx.banque }} {{ $index+1 }} | {{ tx.taux | number:2 }}% | {{ tx.type }} | -{{ tx.capNeg }}%/+{{ tx.capPos }}% | {{ tx.mens | number:2 }}€ | {{ tx.min | number:2 }}€ | {{ tx.max | number:2 }}€ |
Rentabilité
Cout total de l’acquisition
| Prix d'achat | {{ calculeData.prix | number:2 }} € |
| Rénovation | + {{ calculeData.prixTransRenovation | number:2 }} € |
| Frais | + {{ calculeData.frais | number:2 }} € |
| Coût total | + {{ calculeData.frais + calculeData.prixTransRenovation + calculeData.prix | number:2 }} € |
| Fonds propres + crédit pont | {{ calculeData.totalFP+calculeData.creditPont | number:2 }} € |
| Montant du crédit | {{ calculeData.montantCredit | number:2 }} € |
| Coût total | + {{ calculeData.creditPont + calculeData.totalFP + calculeData.montantCredit | number:2 }} € |
Rentabilité sur actifs
Durée de détention année(s)
Gain réel {{ calculeData.gainReel | number:0 }} €
Rendement sur actif {{ calculeData.rendementSurActif | number:2 }} %
Revenus
| Revenu locatif annuel Brut | € |
| Charge annuelle {{ calculeData.pourcentageCharge | number:2 }}% | {{ calculeData.chargeLocatifAnnuel | number:2 }} € |
| Précompte immobilier | {{ calculeData.precomteImmo | number:2 }} € |
| Autre charge annuelle | € |
| Revenu locatif annuel net | {{ calculeData.revenuLocatifAnnuelNet | number:2 }} € |
| Total revenu locatif après {{ calculeData.dureeDetention }} année(s) tenant compte d'une inflation de % |
{{ calculeData.totalRevenuLocatif | number:2 }} € |
| Plus-value latente | {{ calculeData.pluvalueLatente | number:2 }} % |
| Plus-value du bien après {{calculeData.dureeDetention}} année(s) | {{ calculeData.pluvalueBien | number:2 }} € |
| Total revenu locatif après {{ calculeData.dureeDetention }} année(s) | {{ calculeData.totalRevenuLocatif | number:2 }} € |
| Gain brut sur le prix de base après {{ calculeData.dureeDetention }} année(s) | +{{ calculeData.gainBrut | number:2 }} € |
Charges
| Durée du crédit | {{ calculeData.duree | number:2 }} ans |
| Taux | {{ calculeData.taux | number:2 }} % |
| Mensualité | {{ calculeData.mensualite | number:2 }} € |
| Total interêts après {{calculeData.dureeDetention}} année(s) | {{ calculeData.totalInteret | number:2 }} € |
| Total frais | {{ calculeData.frais | number:2 }} € |
| Total | {{ calculeData.InteretFrais | number:2 }} € |
Gain réel
Rendement sur actif
Cash flow
| Année | Coût | Revenu locatif | Gain |
|---|---|---|---|
| {{ $index }} | {{ ch.payment | number:2 }} € | {{ ch.revenuLocatif | number:2 }} € | {{ - ch.fondPropre | number:2 }} € |
Av. Louise 433 Louizalaan 1050 Bruxelles - Brussel
Drève Richelle, 96 - 1410 Waterloo