Suis-je éligible à une réduction des droits d’enregistrement ?
Rosière 57
PRIX : 435 000,00€
Type: Maison | Région: Wallonie | Commune: Rixensart
Idéale pour une grande famille, profession libérale ou investisseur ! Découvrez cette vaste maison à rénover, comprenant un studio indépendant (numéro de maison distinct). Derrière sa façade récente se cache une charmante demeure du début du 20ème siècle. Au rez-de-chaussée : le hall d’entrée s'ouvre sur un spacieux salon et une salle à manger, suivis par une cuisine conviviale équipée d’un poêle à bois et d’un coin repas. Cette dernière donne accès à une terrasse et un jardin orienté au sud, offrant une vue dégagée sans vis-à-vis. Un petit couloir depuis la cuisine mène à une salle de bain, le WC et un garage pour une voiture, avec quatre emplacements de parking extérieurs à l'avant. Entresol : une jolie chambre orientée vers le jardin. Au 1er étage : le hall de nuit dessert deux chambres et un bureau. Au 2e étage : Vous y trouverez une chambre, une salle d'eau et un grenier. Le studio indépendant : situé au premier étage et accessible par un escalier extérieur (ainsi que par l’intérieur), ce studio propose un séjour, une cuisine, une mezzanine/chambre, et une salle de bain avec WC. Informations Techniques : - Chaudière au gaz de 2009 - PEB G pour la maison et F pour l’appartement - Électricité non conforme - Raccordement à l’égout. Cette maison offre un potentiel exceptionnel, parfaite pour créer une résidence familiale unique ou pour un investissement locatif après rénovation.
Surface habitable: 233.03 m²
Greniers: 1
Surface totale: 281.41 m²
Jardin: oui
Chambres: 5
Salles de douche: 3
Terrasse: oui
Garage: 1
Caves: 2
Bureau: 1
Balcon: 1
VISITE VIRTUELLE
Vous voulez en voir plus ? Visitez le bien comme si vous y étiez à travers cette visite virtuelle
Localisation
Ce bien vous correspond ? Découvrez maintenant si sa localisation vous convient !
Commerces
Pharmacies
Restaurants
Boulangeries
Crèches
Parcs
Écoles
Universités
Déplacements
Plans intérieurs
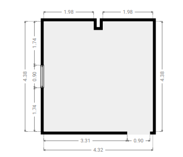
Sous-sol
SURFACE TOTALE : 27.59 m² | SURFACE HABITABLE : 4.85 m² | PIÈCE(S) : 3
x Caves
1x Couloir
Cave 1
SURFACE : 18.8 m²
Cave 2
SURFACE : 3.95 m²
Couloir
SURFACE : 4.87 m²
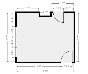
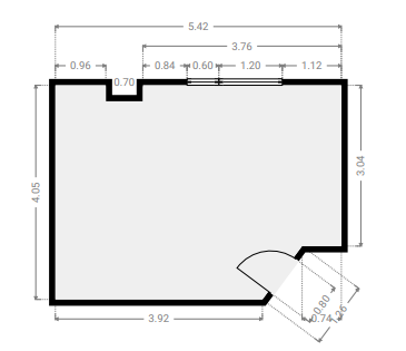
Rez-de-chaussée
SURFACE TOTALE : 102.02 m² | SURFACE HABITABLE : 88.42 m² | PIÈCE(S) : 9
1x Hall
1x Séjour
x2 Salles à manger
1x Cuisine
1x Couloir
1x S.D.D 1
1x W.C
1x Garage
Hall
SURFACE : 13.9 m²
Séjour
SURFACE : 19.6 m²
Salle à manger 1
SURFACE : 17.2 m²
Cuisine
SURFACE : 12.75 m²
Salle à manger 2
SURFACE : 13.28 m²
Couloir
SURFACE : 4.34 m²
S.D.D 1
SURFACE : 5.41 m²
W.C
SURFACE : 2.01 m²
Garage
SURFACE : 13.6 m²
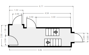
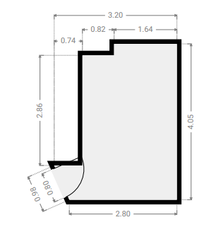
1er étage
SURFACE TOTALE : 96.55 m² | SURFACE HABITABLE : 96.55 m² | PIÈCE(S) : 7
1x Couloir
1x Bureau
3x Chambres
1x Séjour Studio
1x Cuisine Studio
Couloir
SURFACE : 10.56 m²
Bureau
SURFACE : 5.96 m²
Chambre 1
SURFACE : 16.36 m²
Chambre 2
SURFACE : 17.2 m²
Chambre 3
SURFACE : 12.08 m²
Séjour Studio
SURFACE : 24.88 m²
Cuisine Studio
SURFACE : 9.55 m²
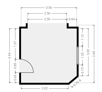
2e étage
SURFACE TOTALE : 55.25 m² | SURFACE HABITABLE : 43.20 m² | PIÈCE(S) : 6
1x Couloir
1x Grenier
1x S.D.D 2
1x Chambre 4
1x Chambre Studio
1x S.D.D Studio
Couloir
SURFACE : 3.2 m²
Grenier
SURFACE : 12.04 m²
S.D.D 2
SURFACE : 10.21 m²
Chambre 4
SURFACE : 20.58 m²
Chambre Studio
SURFACE : 5.01 m²
S.D.D Studio
SURFACE : 4.24 m²
RECHERCHE CADASTRALE
Vous souhaitez mieux connaître votre parcelle et connaître la surface dont vous jouirez en achetant ce bien, alors consulter le cadastre est nécessaire !
État des sols
La pollution du sol a un impact sur l'environnement et sur la
santé, les risques d’inondation ont un impact sur votre qualité de vie… Consultez les données
relatives à ce bien pour en avoir le cœur net !
ÉTAT DE LA POLLUTION DES SOLS
Aucune remarque particulière pour la parcelle B266x
Source : Cliquez-ici
Légende :
ZONE INONDABLE
Aucune remarque particulière pour la parcelle B266x
Source : Cliquez-ici
Légende :
Certificats
Informez-vous sur la performance énergétique de ce bien et assurez-vous que ses installations électriques sont bien aux normes !
PERFORMANCE ÉNERGÉTIQUE APPARTEMENT
Économe
Très énergivore
PERFORMANCE ÉNERGÉTIQUE Maison
Économe
Très énergivore
CERTIFICAT ÉLECTRIQUE MAISON
PROCES VERBAL D’EXAMEN DE CONFORMITE ET/OU DE VISITE DE CONTROLE D’UNE INSTALLATION ELECTRIQUE BASSE TENSION
La nouvelle installationNon conforme
Agent
visiteur
Julien Terorde
Date
de certification
17/06/2024
Visite de contrôle
à effectuer avant le
délai de 18 mois prenant cours le jour de l’acte de vente.
CERTIFICAT ÉLECTRIQUE APPARTEMENT
PROCES VERBAL D’EXAMEN DE CONFORMITE ET/OU DE VISITE DE CONTROLE D’UNE INSTALLATION ELECTRIQUE BASSE TENSION
La nouvelle installationconforme
Agent
visiteur
JABRI Imran
Date
de certification
19/06/2024
Visite de contrôle
à effectuer avant le
19/06/2034.
INDICATEURS SPÉCIFIQUES
| Besoins en chaleur du logement | ||||
| excessifts | élevés | moyens | faible | minimes |
| Performance des installations de chauffage | ||||
| médiocre | insuffisante | satisfaisante | bonne | excellente |
| Performance des installations d'eau chaude sanitaire | ||||
| médiocre | insuffisante | satisfaisante | bonne | excellente |
| Système de ventillation | ||||
| absent | très partiel | partiel | incomplet | complate |
INDICATEURS SPÉCIFIQUES
| Besoins en chaleur du logement | ||||
| excessifts | élevés | moyens | faible | minimes |
| Performance des installations de chauffage | ||||
| médiocre | insuffisante | satisfaisante | bonne | excellente |
| Performance des installations d'eau chaude sanitaire | ||||
| médiocre | insuffisante | satisfaisante | bonne | excellente |
| Système de ventillation | ||||
| absent | très partiel | partiel | incomplet | complate |
DATA ROOM
Nous avons mis tous les documents importants dans la date room, n’hésitez pas à télécharger ce dont vous avez besoin !
Nous avons mis tous les documents importants dans la date room, n’hésitez pas à télécharger ce dont vous avez besoin !
Besoin de crédit
Maintenant que vous êtes sûrs d’avoir fait le bon choix, calculez la valeur totale de cette acquisition (valeur du bien et frais annexes) et estimez vos besoins en crédit !
Simulation de crédit
| Prix d'achat | € |
| Rénovation | € |
| Rénovation HTVA | {{ calculeData.renovationHTVA | number:2 }} € |
| TVA | {{ calculeData.tva | number:2 }} € |
| Fonds propres | € |
| Acompte dû (disponible au compromis de vente) | {{ calculeData.prix * 0.1 | number:2 }} € |
| Reste des liquidités (disponible à l'acte) | {{ calculeData.avance | number:2 }} € |
| Crédit pont | {{ calculeData.creditPont | number:2 }} € |
| Prix de vente de votre bien existant | € |
| Solde du crédit existant | € |
| Frais d'acte d'achat | {{ calculeData.droit + calculeData.fraisNotaire | number:2 }} € |
| Droits d'enregistrement | {{ calculeData.droit | number:2 }} € |
|
Abattement
Suis-je éligible à une réduction des droits d’enregistrement ? |
|
| Frais de notaire | {{ calculeData.fraisNotaire | number:2 }} € |
| Autres frais | {{ calculeData.inscription + calculeData.fraisDossier + calculeData.autreFrais | number:2 }} € |
| Frais liés à l'acte hypothécaire | {{ calculeData.inscription | number:2 }} € |
| Frais de dossier et expertise bancaire | {{ calculeData.fraisDossier | number:2 }} € |
| Autres frais | € |
| Montant du crédit | {{ calculeData.montantCredit | number:2 }} € | |
La présente simulation se base sur un taux d’intérêt du 26/06/2024. Ce calcul est indicatif et sujet à changement.
Choix du type de crédit
| Taux | Type | CAP | Mensualité | Mensualité Min | Mensualité Max | |
|---|---|---|---|---|---|---|
| {{ tx.banque }} {{ $index+1 }} | {{ tx.taux | number:2 }}% | {{ tx.type }} | -{{ tx.capNeg }}%/+{{ tx.capPos }}% | {{ tx.mens | number:2 }}€ | {{ tx.min | number:2 }}€ | {{ tx.max | number:2 }}€ |
| Taux | Type | CAP | Mensualité | Mensualité Min | Mensualité Max | |
|---|---|---|---|---|---|---|
| {{ tx.banque }} {{ $index+1 }} | {{ tx.taux | number:2 }}% | {{ tx.type }} | -{{ tx.capNeg }}%/+{{ tx.capPos }}% | {{ tx.mens | number:2 }}€ | {{ tx.min | number:2 }}€ | {{ tx.max | number:2 }}€ |
| Taux | Type | CAP | Mensualité | Mensualité Min | Mensualité Max | |
|---|---|---|---|---|---|---|
| {{ tx.banque }} {{ $index+1 }} | {{ tx.taux | number:2 }}% | {{ tx.type }} | -{{ tx.capNeg }}%/+{{ tx.capPos }}% | {{ tx.mens | number:2 }}€ | {{ tx.min | number:2 }}€ | {{ tx.max | number:2 }}€ |
Rentabilité
Cout total de l’acquisition
| Prix d'achat | {{ calculeData.prix | number:2 }} € |
| Rénovation | + {{ calculeData.prixTransRenovation | number:2 }} € |
| Frais | + {{ calculeData.frais | number:2 }} € |
| Coût total | + {{ calculeData.frais + calculeData.prixTransRenovation + calculeData.prix | number:2 }} € |
| Fonds propres + crédit pont | {{ calculeData.totalFP+calculeData.creditPont | number:2 }} € |
| Montant du crédit | {{ calculeData.montantCredit | number:2 }} € |
| Coût total | + {{ calculeData.creditPont + calculeData.totalFP + calculeData.montantCredit | number:2 }} € |
Rentabilité sur actifs
Durée de détention année(s)
Gain réel {{ calculeData.gainReel | number:0 }} €
Rendement sur actif {{ calculeData.rendementSurActif | number:2 }} %
Revenus
| Revenu locatif annuel Brut | € |
| Charge annuelle {{ calculeData.pourcentageCharge | number:2 }}% | {{ calculeData.chargeLocatifAnnuel | number:2 }} € |
| Précompte immobilier | {{ calculeData.precomteImmo | number:2 }} € |
| Autre charge annuelle | € |
| Revenu locatif annuel net | {{ calculeData.revenuLocatifAnnuelNet | number:2 }} € |
| Total revenu locatif après {{ calculeData.dureeDetention }} année(s) tenant compte d'une inflation de % |
{{ calculeData.totalRevenuLocatif | number:2 }} € |
| Plus-value latente | {{ calculeData.pluvalueLatente | number:2 }} % |
| Plus-value du bien après {{calculeData.dureeDetention}} année(s) | {{ calculeData.pluvalueBien | number:2 }} € |
| Total revenu locatif après {{ calculeData.dureeDetention }} année(s) | {{ calculeData.totalRevenuLocatif | number:2 }} € |
| Gain brut sur le prix de base après {{ calculeData.dureeDetention }} année(s) | +{{ calculeData.gainBrut | number:2 }} € |
Charges
| Durée du crédit | {{ calculeData.duree | number:2 }} ans |
| Taux | {{ calculeData.taux | number:2 }} % |
| Mensualité | {{ calculeData.mensualite | number:2 }} € |
| Total interêts après {{calculeData.dureeDetention}} année(s) | {{ calculeData.totalInteret | number:2 }} € |
| Total frais | {{ calculeData.frais | number:2 }} € |
| Total | {{ calculeData.InteretFrais | number:2 }} € |
Gain réel
Rendement sur actif
Cash flow
| Année | Coût | Revenu locatif | Gain |
|---|---|---|---|
| {{ $index }} | {{ ch.payment | number:2 }} € | {{ ch.revenuLocatif | number:2 }} € | {{ - ch.fondPropre | number:2 }} € |
Av. Louise 433 1050 Bruxelles - 02 648 01 20
Drève Richelle 96 1410 Waterloo - 02 354 29 39
Av. Prekelinden 83 1200 Woluwe-St-Lambert - 02 734 00 36