Suis-je éligible à une réduction des droits d’enregistrement ?
ROI I
PRIX : 360 000,00€
Type: Maison | Région: Wallonie | Commune: Rixensart
Jolie maison de village de la fin du XIXe à rénover Le hall d’entrée s'ouvre à droite sur le séjour lumineux avec possibilité d'installer un poêle.
La cuisine (avec possibilité de l'ouvrir sur le séjour) donne sur la la véranda et le jardin plat avec serre, BBQ en pierre et cabanon à bûches.
A gauche de l'entrée, un vaste bureau (pouvant servie de 4e chambre) se prolonge par un cabinet de toilette et la buanderie. Un garage pour 2 voitures complète le rez-de-chaussée.
Au premier étage, l’escalier mène face à une salle de bain qui est entouré à droite de deux grandes chambres et à gauche d'une chambre et d’un dressing qui est relié à une ancienne menuiserie (possibilité de transformation en 5e chambre).
Au 2é étage, grenier de rangement. Au sous-sol, se situe la cave. Devant la maison, 2 emplacements de parking.
Energies : PEB D, châssis à double vitrage bois, chaudière récente au gaz, boiler séparé pour l'eau chaude sanitaire.
PV de l'installation électrique non conforme
Surface totale: 260 m²
Salle de douche: 1
Greniers: 1
Chambres: 3
Terrasse: oui
Parking Extérieures: 2
Garage: oui (2 voitures)
Cave: 1
Bureau: 1(possibilité de faire une 4e chambre)
Véranda: oui
Jardin plat avec serre
Ancienne Menuiserie (possibilité De Faire Une 5e Chambre)
Vidéo
Découvrez le bien en visualisant cette vidéo
VISITE VIRTUELLE
Vous voulez en voir plus ? Visitez le bien comme si vous y étiez à travers cette visite virtuelle
Localisation
Ce bien vous correspond ? Découvrez maintenant si sa localisation vous convient !
Commerces
Pharmacies
Restaurants
Boulangeries
Crèches
Parcs
Écoles
Universités
Déplacements
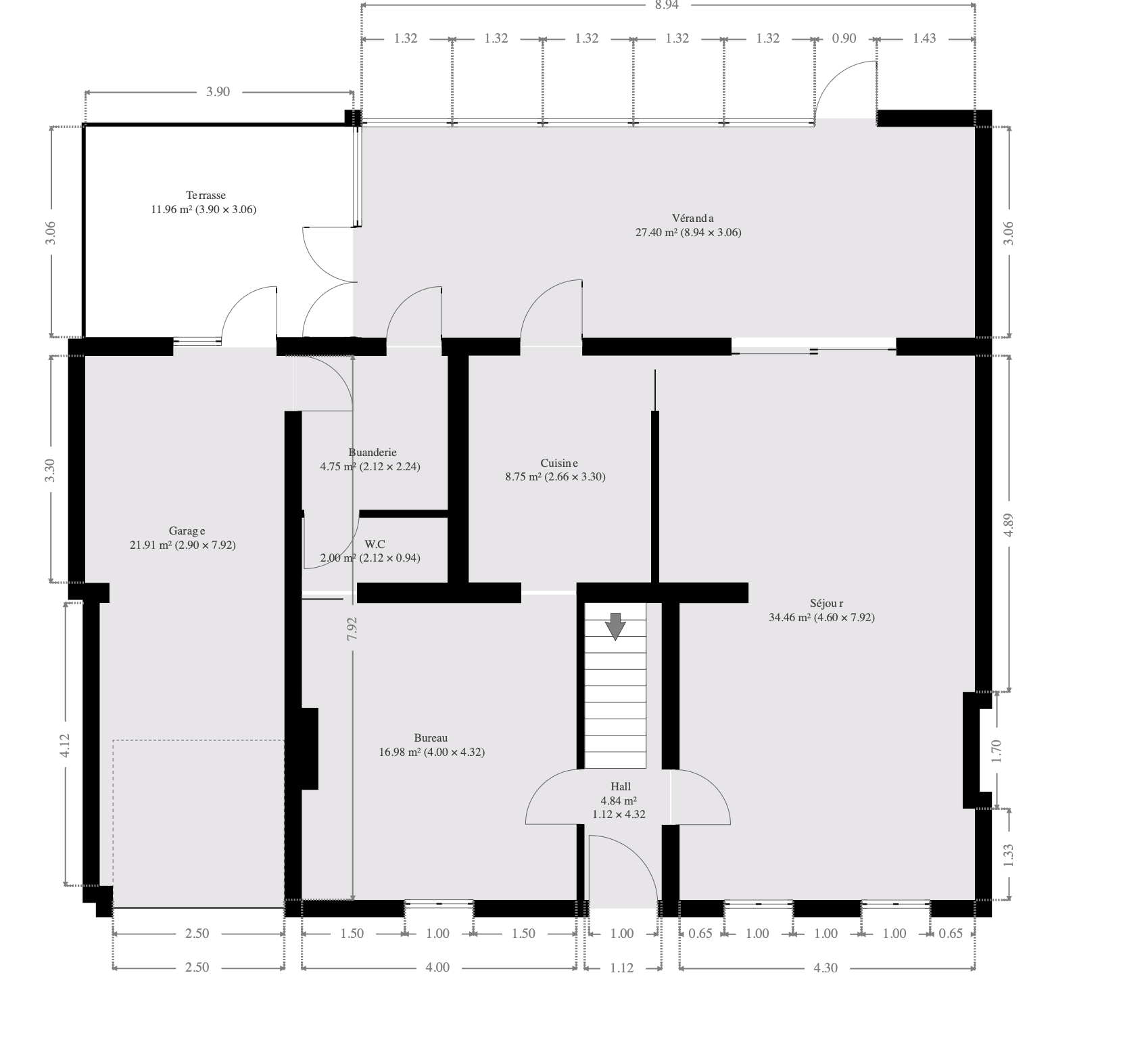
Plans intérieurs
Sous-sol
SURFACE TOTALE : 13.31 m² | SURFACE HABITABLE : 13.31 m² | PIÈCE(S) : 1
1x Cave
Cave
SURFACE : 13.32 m²
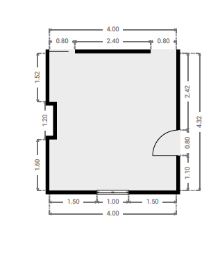
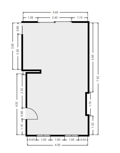
Rez-de-chaussée
SURFACE TOTALE : 133.02 m² | SURFACE HABITABLE : 99.14 m² | PIÈCE(S) : 8
1x Séjour
1x Hall
1x Cuisine
1xBureau/Chambre
1x Buanderie
1x W.C
1x Véranda
1x Garage
1x Terrasse
Séjour
SURFACE : 34.46 m²
Hall
SURFACE : 4.85 m²
Cuisine
SURFACE : 8.75 m²
Bureau/Chambre
SURFACE : 16.98 m²
Buanderie
SURFACE : 4.75 m²
W.C
SURFACE : 2 m²
Véranda
SURFACE : 27.4 m²
Garage
SURFACE : 21.91 m²
Terrasse
SURFACE : 11.96 m²
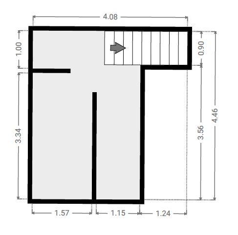
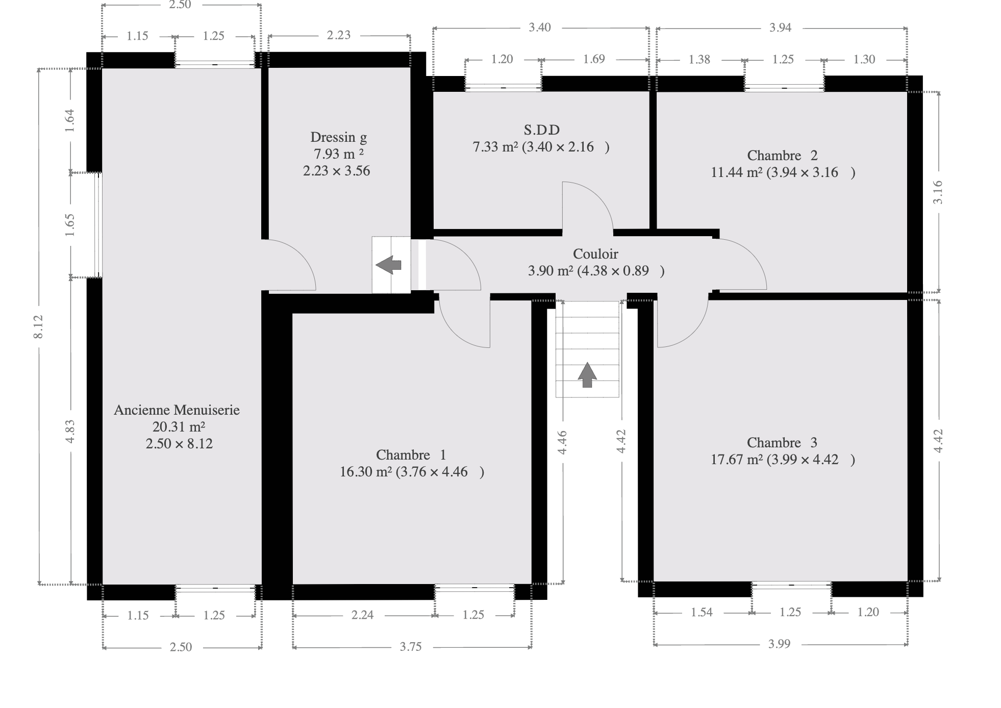
1er étage
SURFACE TOTALE : 84.81 m² | SURFACE HABITABLE : 84.81 m² | PIÈCE(S) : 7
1x S.D.D
3x Chambre(s)
1x Couloir
1x Dressing
1x Ancienne Menuiserie
Chambre 2
SURFACE : 11.44 m²
S.D.D
SURFACE : 7.33 m²
Chambre 3
SURFACE : 17.67 m²
Couloir
SURFACE : 3.9 m²
Chambre 1
SURFACE : 16.3 m²
Dressing
SURFACE : 7.93 m²
Ancienne Menuiserie
SURFACE : 20.31 m²
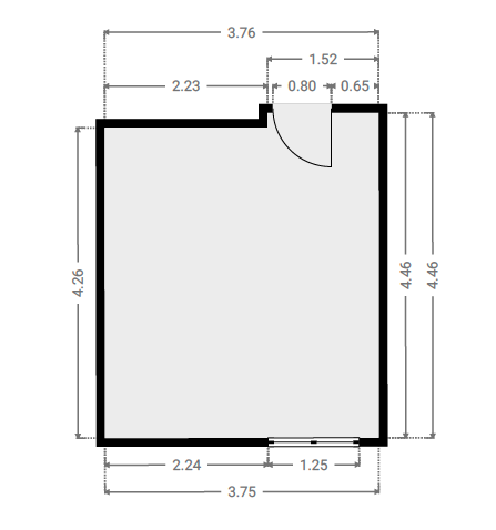
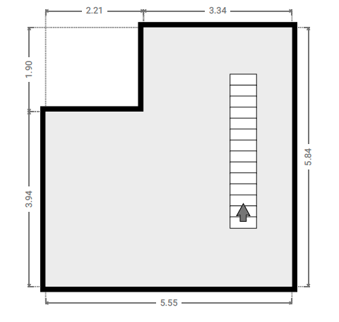
2e étage
SURFACE TOTALE : 28.22 m² | SURFACE HABITABLE : 28.22 m² | PIÈCE(S) : 1
1x Grenier
Grenier
SURFACE : 28.22 m²
RECHERCHE CADASTRALE
Vous souhaitez mieux connaître votre parcelle et connaître la surface dont vous jouirez en achetant ce bien, alors consulter le cadastre est nécessaire !
Surface : 151 m²
Parcelle : D290
Surface : 328 m²
Parcelle : D289
État des sols
La pollution du sol a un impact sur l'environnement et sur la santé, les risques d’inondation ont un impact sur votre qualité de vie… Consultez les données relatives à ce bien pour en avoir le cœur net !
ÉTAT DE LA POLLUTION DES SOLS
Aucune remarque particulière pour les parcelles D290/D289
Source : Cliquez-ici
Légende :
ZONE INONDABLE
Aucune remarque particulière pour les parcelles D290/D289
Source : Cliquez-ici
Légende :
Certificats
Informez-vous sur la performance énergétique de ce bien et assurez-vous que ses installations électriques sont bien aux normes !
PERFORMANCE ÉNERGÉTIQUE
Économe
Très énergivore
CERTIFICAT ÉLECTRIQUE
PROCES VERBAL D’EXAMEN DE CONFORMITE ET/OU DE VISITE DE CONTROLE D’UNE INSTALLATION ELECTRIQUE BASSE TENSION
La nouvelle installationNon conforme
Agent
visiteur
Quentin Delhaye
Date
de certification
14/02/2024
Visite de contrôle
à effectuer avant le
18 mois prenant cours le jour de l’acte de vente
INDICATEURS SPÉCIFIQUES
| Besoins en chaleur du lanhement | ||||
| excessifts | élevés | moyens | faible | minimes |
| Performance des installations de chauffage | ||||
| médicore | insuffisante | satisfaisante | bonne | excellente |
| Performance des installations d'eau chaude sanitaire | ||||
| |
||||
| médicore | insuffisante | satisfaisante | bonne | excellente |
| Système de ventillation | ||||
| absent | très partiel | partiel | incomplet | complate |
DATA ROOM
Nous avons mis tous les documents importants dans la date room, n’hésitez pas à télécharger ce dont vous avez besoin !
Nous avons mis tous les documents importants dans la date room, n’hésitez pas à télécharger ce dont vous avez besoin !
Besoin de crédit
Maintenant que vous êtes sûrs d’avoir fait le bon choix, calculez la valeur totale de cette acquisition (valeur du bien et frais annexes) et estimez vos besoins en crédit !
Simulation de crédit
| Prix d'achat | € |
| Rénovation | € |
| Rénovation HTVA | {{ calculeData.renovationHTVA | number:2 }} € |
| TVA | {{ calculeData.tva | number:2 }} € |
| Fonds propres | € |
| Acompte dû (disponible au compromis de vente) | {{ calculeData.prix * 0.1 | number:2 }} € |
| Reste des liquidités (disponible à l'acte) | {{ calculeData.avance | number:2 }} € |
| Crédit pont | {{ calculeData.creditPont | number:2 }} € |
| Prix de vente de votre bien existant | € |
| Solde du crédit existant | € |
| Frais d'acte d'achat | {{ calculeData.droit + calculeData.fraisNotaire | number:2 }} € |
| Droits d'enregistrement | {{ calculeData.droit | number:2 }} € |
|
Abattement
Suis-je éligible à une réduction des droits d’enregistrement ? |
|
| Frais de notaire | {{ calculeData.fraisNotaire | number:2 }} € |
| Autres frais | {{ calculeData.inscription + calculeData.fraisDossier + calculeData.autreFrais | number:2 }} € |
| Frais liés à l'acte hypothécaire | {{ calculeData.inscription | number:2 }} € |
| Frais de dossier et expertise bancaire | {{ calculeData.fraisDossier | number:2 }} € |
| Autres frais | € |
| Montant du crédit | {{ calculeData.montantCredit | number:2 }} € | |
La présente simulation se base sur un taux d’intérêt du 31/01/2024. Ce calcul est indicatif et sujet à changement.
Choix du type de crédit
| Taux | Type | CAP | Mensualité | Mensualité Min | Mensualité Max | |
|---|---|---|---|---|---|---|
| {{ tx.banque }} {{ $index+1 }} | {{ tx.taux | number:2 }}% | {{ tx.type }} | -{{ tx.capNeg }}%/+{{ tx.capPos }}% | {{ tx.mens | number:2 }}€ | {{ tx.min | number:2 }}€ | {{ tx.max | number:2 }}€ |
| Taux | Type | CAP | Mensualité | Mensualité Min | Mensualité Max | |
|---|---|---|---|---|---|---|
| {{ tx.banque }} {{ $index+1 }} | {{ tx.taux | number:2 }}% | {{ tx.type }} | -{{ tx.capNeg }}%/+{{ tx.capPos }}% | {{ tx.mens | number:2 }}€ | {{ tx.min | number:2 }}€ | {{ tx.max | number:2 }}€ |
| Taux | Type | CAP | Mensualité | Mensualité Min | Mensualité Max | |
|---|---|---|---|---|---|---|
| {{ tx.banque }} {{ $index+1 }} | {{ tx.taux | number:2 }}% | {{ tx.type }} | -{{ tx.capNeg }}%/+{{ tx.capPos }}% | {{ tx.mens | number:2 }}€ | {{ tx.min | number:2 }}€ | {{ tx.max | number:2 }}€ |
Rentabilité
Cout total de l’acquisition
| Prix d'achat | {{ calculeData.prix | number:2 }} € |
| Rénovation | + {{ calculeData.prixTransRenovation | number:2 }} € |
| Frais | + {{ calculeData.frais | number:2 }} € |
| Coût total | + {{ calculeData.frais + calculeData.prixTransRenovation + calculeData.prix | number:2 }} € |
| Fonds propres + crédit pont | {{ calculeData.totalFP+calculeData.creditPont | number:2 }} € |
| Montant du crédit | {{ calculeData.montantCredit | number:2 }} € |
| Coût total | + {{ calculeData.creditPont + calculeData.totalFP + calculeData.montantCredit | number:2 }} € |
Rentabilité sur actifs
Durée de détention année(s)
Gain réel {{ calculeData.gainReel | number:0 }} €
Rendement sur actif {{ calculeData.rendementSurActif | number:2 }} %
Revenus
| Revenu locatif annuel Brut | € |
| Charge annuelle {{ calculeData.pourcentageCharge | number:2 }}% | {{ calculeData.chargeLocatifAnnuel | number:2 }} € |
| Précompte immobilier | {{ calculeData.precomteImmo | number:2 }} € |
| Autre charge annuelle | € |
| Revenu locatif annuel net | {{ calculeData.revenuLocatifAnnuelNet | number:2 }} € |
| Total revenu locatif après {{ calculeData.dureeDetention }} année(s) tenant compte d'une inflation de % |
{{ calculeData.totalRevenuLocatif | number:2 }} € |
| Plus-value latente | {{ calculeData.pluvalueLatente | number:2 }} % |
| Plus-value du bien après {{calculeData.dureeDetention}} année(s) | {{ calculeData.pluvalueBien | number:2 }} € |
| Total revenu locatif après {{ calculeData.dureeDetention }} année(s) | {{ calculeData.totalRevenuLocatif | number:2 }} € |
| Gain brut sur le prix de base après {{ calculeData.dureeDetention }} année(s) | +{{ calculeData.gainBrut | number:2 }} € |
Charges
| Durée du crédit | {{ calculeData.duree | number:2 }} ans |
| Taux | {{ calculeData.taux | number:2 }} % |
| Mensualité | {{ calculeData.mensualite | number:2 }} € |
| Total interêts après {{calculeData.dureeDetention}} année(s) | {{ calculeData.totalInteret | number:2 }} € |
| Total frais | {{ calculeData.frais | number:2 }} € |
| Total | {{ calculeData.InteretFrais | number:2 }} € |
Gain réel
Rendement sur actif
Cash flow
| Année | Coût | Revenu locatif | Gain |
|---|---|---|---|
| {{ $index }} | {{ ch.payment | number:2 }} € | {{ ch.revenuLocatif | number:2 }} € | {{ - ch.fondPropre | number:2 }} € |
Av. Louise 433 1050 Bruxelles - 02 648 01 20
Drève Richelle 96 1410 Waterloo - 02 354 29 39
Av. Prekelinden 83 1200 Woluwe-St-Lambert - 02 734 00 36