Kom ik in aanmerking voor belastingvermindering ?
RingelBerg 13
PRIJS : 795 000,00 €
Type: Villa | Regio: Flandre | Gemeente: Overijse
Overijse - Vlaams-Brabant - Ideaal gelegen op een steenworp van het meer van Genval en met directe toegang tot de E411, biedt By The Way u deze charmante cottage-stijl villa aan. Met een bewoonbare oppervlakte van 356 m² volgens het EPC, bevindt deze villa zich in een rustige en groene omgeving. Gelegen op een perceel van ± 9 are (zuidoostelijke oriëntatie), beschikt de woning over hoogwaardige materialen en afwerkingen. Indeling: Op het gelijkvloers vindt u een inkomhal met apart toilet en vestiaire, een ruime en lichte woonkamer van 48 m² met open haard en een L-vormig terras, een eetkamer en een hyper-geïnstalleerde keuken, gerenoveerd in 2008. Daarnaast is er een grote garage voor 2 voertuigen. Op de eerste verdieping leidt een nachthal naar 5 ruime slaapkamers (29, 10, 10, 10 en 17 m²), 2 badkamers en een apart toilet. In het souterrain bevindt zich een ruime ruimte van ± 90 m² met een aparte ingang en toegang tot de tuin. Deze ruimte is ideaal als professionele werkplek of als aparte woonruimte voor een familielid (kangoeroewoning). Technische specificaties: EPC D, elektriciteit niet conform, nieuwe gascondensatieketel uit 2020, asbestattest, alarmsysteem, garage en kelders.
Totale Oppervlakte: 330.45 M²
Slaapkamers: 5
badkamer: 2
Terras :ja
Garage: 2 auto's
Kelders: 2
Kantoor: 1
Tuin: 9 are - Zuidoostoriëntatie
VIDEO PRESENTATIE
Découvrez le bien en visualisant cette vidéo
VIRTUEEL BEZOEK
Vous voulez en voir plus ? Visitez le bien comme si vous y étiez à travers cette visite virtuelle
OMGEVING
Ce bien vous correspond ? Découvrez maintenant si sa localisation vous convient !
Supermarkt
Apotheek
Restaurant
Bakkerij
Kinderdagverblijf
Park
Scholen
Universiteiten
Verplaatsingen
nterne plannen
Ondergrond
TOTALE OPPERVLAKTE : 96.3 m² | WOONRUIMTE : 96.3 m² | kAMERS : 6
1x Wasruimte
1x Kelders
1x Kantoor
2x Gangen
Wasruimte
OPPERVLAKTE : 10.55 m²
Kelder 1
OPPERVLAKTE : 17.04 m²
Kelder 2
OPPERVLAKTE : 33.19 m²
Kantoor
OPPERVLAKTE : 23.7 m²
Gang
OPPERVLAKTE : 5.25 m²
Gang
OPPERVLAKTE : 6.61 m²
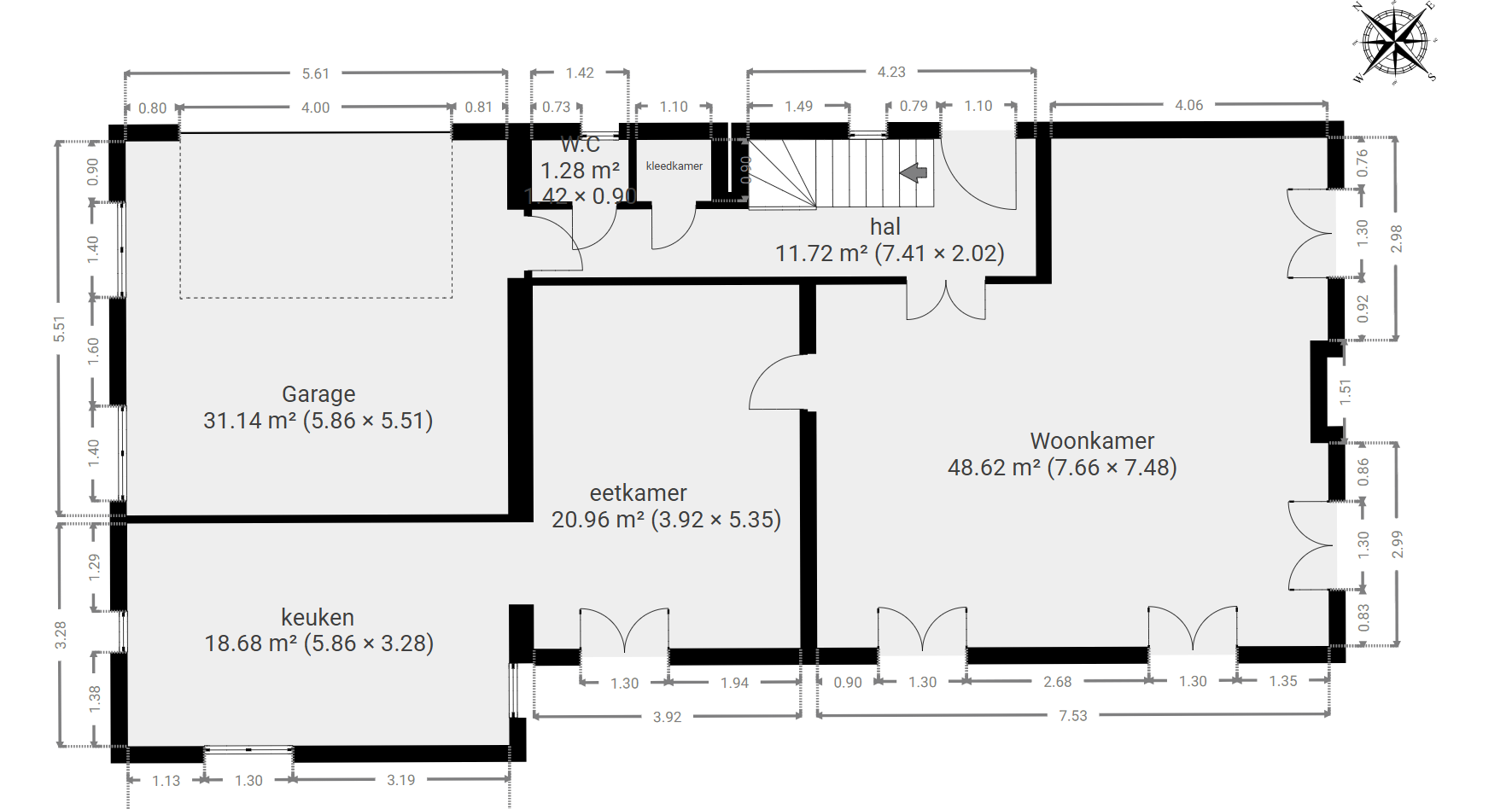
GELIJKVLOERS
TOTALE OPPERVLAKTE : 133.34 m² | WOONRUIMTE :102.19 m² | kAMERS : 7
1x woonkamer
1x eetkamer
1x hal
1x W.C
1x kleedkamer
1x Garage
1x keuken
woonkamer
OPPERVLAKTE : 48.62 m²
eetkamer
OPPERVLAKTE : 20.96 m²
hal
OPPERVLAKTE : 11.72 m²
W.C
OPPERVLAKTE : 1.28 m²
kleedkamer
OPPERVLAKTE : 0.99 m²
Garage
OPPERVLAKTE : 31.14 m²
keuken
OPPERVLAKTE : 18.68 m²
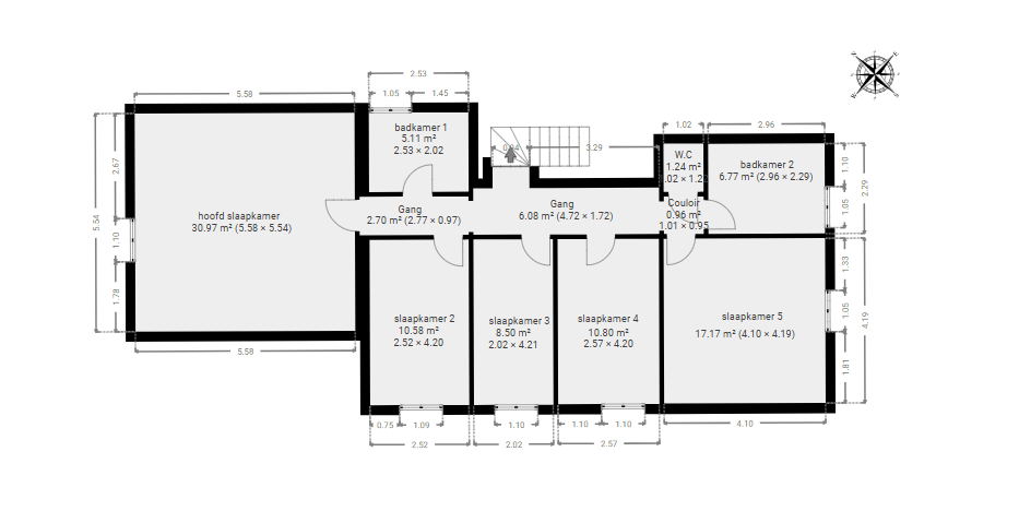
1E VERDIEPING
TOTALE OPPERVLAKTE : 100.82 m² | WOONRUIMTE : 100.82 m² | kAMERS : 11
3x Gangen
1x W.C
2x badkamers
5x slaapkamers
Gang
OPPERVLAKTE : 6.08 m²
Gang
OPPERVLAKTE : 2.7 m²
badkamer 2
OPPERVLAKTE : 6.77 m²
W.C
OPPERVLAKTE : 1.24 m²
slaapkamer 5
OPPERVLAKTE : 17.17 m²
slaapkamer 4
OPPERVLAKTE : 10.8 m²
slaapkamer 3
OPPERVLAKTE : 8.5 m²
slaapkamer 2
OPPERVLAKTE : 10.58 m²
badkamer 1
OPPERVLAKTE : 5.11 m²
hoofd slaapkamer
OPPERVLAKTE : 30.97 m²
KADASTRAAL ZOEKEN
Vous souhaitez mieux connaître votre parcelle et connaître la surface dont vous jouirez en achetant ce bien, alors consulter le cadastre est nécessaire !
BODEMGESTELDHEID
La pollution du sol a un impact sur l'environnement et sur la santé, les risques d’inondation ont un impact sur votre qualité de vie… Consultez les données relatives à ce bien pour en avoir le cœur net !
STAAT VAN BODEMVERONTREINIGING
Geen bijzondere opmerkingen voor perceel K85p19
Bron : Klik hier
Légende :
Overstromingsgebied
Geen overstroming gemodelleerd voor perceel K85p19
Bron : Klik hier
Légende :
CERTIFICATEN
Informez-vous sur la performance énergétique de ce bien et assurez-vous que ses installations électriques sont bien aux normes !
ENERGIEPRESTATIES
Zeer zuinigZeer energieverslindennd
|
A+ A ≤ 0 |
A 0 < A ≤ 100 |
B 100 < B ≤ 200 |
C 200 < C ≤ 300 |
D 300 < D ≤ 400 |
E 400 < E ≤ 500 |
F F > 500 |
| 396 kWh/m².Jaar |
ELEKTRISCH CERTIFICAAT
VERSLAG VAN HET CONFORMITEITSONDERZOEK EN/OF DE INSPECTIE VAN EEN ELEKTRISCHE LAAGSPANNINGSINSTALLATIE
De bestaande installatieNiet conform
Bezoekende
agent
Taoufik Rahmouni
Datum
22/012024
Volgend
controlebezoek
18 maanden na de datum van akte van overdracht
ASBEST CERTIFICAAT
EINDCONCLUSIE VAN DE WETGEVING:
Geen asbesthoudende materialen gevonden
Niet beveiligd tegen asbest.
Asbestmaterialen
2Beperkingen
3Uitsluiting
0Het pand voldoet nu al aan de doelstelling van de Vlaamse overheid om asbestveilig te zijn.
Agent visiteur
Dries Coose - DES-BRRU
Publié le
10/10/2024
Valable jusqu’à
10/10/2034
DATA ROOM
Nous avons mis tous les documents importants dans la date room, n’hésitez pas à Downloaden ce dont vous avez besoin !
Nous avons mis tous les documents importants dans la date room, n’hésitez pas à télécharger ce dont vous avez besoin !
BEREKEN UW KREDIETBEHOEFTE
Maintenant que vous êtes sûrs d’avoir fait le bon choix, calculez la valeur totale de cette acquisition (valeur du bien et frais annexes) et estimez vos besoins en crédit !
Kredietsimulatie
| Aankoopprijs | € |
| Renovatie | € |
| Renovatie excl. btw | {{ calculeData.renovationHTVA | number:2 }} € |
| BTW | {{ calculeData.tva | number:2 }} € |
| Eigen fondsen | € |
| Te betalen waarborgsom (beschikbaar bij de verkoopovereenkomst) | {{ calculeData.prix * 0.1 | number:2 }} € |
| Resterende liquide middelen (besschikbaar op de verkoop) | {{ calculeData.avance | number:2 }} € |
| Overbruggingskrediet | {{ calculeData.creditPont | number:2 }} € |
| Aankooprijs | € |
| Bestaand tegoed | € |
| Aankooprechten | {{ calculeData.droit + calculeData.fraisNotaire | number:2 }} € |
| Verkooprechten | {{ calculeData.droit | number:2 }} € |
|
Vermindering
Kom ik in aanmerking voor vermindering van het inschrijfgeld? |
|
| Notariskosten | {{ calculeData.fraisNotaire | number:2 }} € |
| Andere kosten | {{ calculeData.inscription + calculeData.fraisDossier + calculeData.autreFrais | number:2 }} € |
| Kosten in verband met de hypotheekakte | {{ calculeData.inscription | number:2 }} € |
| Administratiekosten en bankexpertise | {{ calculeData.fraisDossier | number:2 }} € |
| Andere kosten | € |
| ONTLEEND BEDRAG | {{ calculeData.montantCredit | number:2 }} € | |
Deze simulatie is gebaseerd op een rentevoet van 09/07/2024, die indicatief is en onderhevig aan verandering
Keuze soort krediet
| Tarief | Type | Pet | Maandelijkse betaling | MMaandelijkse betaling Min | Maandelijkse betaling Max | |
|---|---|---|---|---|---|---|
| {{ tx.banque }} | {{ tx.taux | number:2 }}% | {{ tx.type }} | -{{ tx.capNeg }}%/+{{ tx.capPos }}% | {{ tx.mens | number:2 }}€ | {{ tx.min | number:2 }}€ - | {{ tx.max | number:2 }}€ - |
| Tarief | Type | Pet | Maandelijkse betaling | Maandelijkse betaling Min | Maandelijkse betaling Max | |
|---|---|---|---|---|---|---|
| {{ tx.banque }} | {{ tx.taux | number:2 }}% | {{ tx.type }} | -{{ tx.capNeg }}%/+{{ tx.capPos }}% | {{ tx.mens | number:2 }}€ | {{ tx.min | number:2 }}€ - | {{ tx.max | number:2 }}€ - |
| Tarief | Type | Pet | Maandelijkse betaling | Maandelijkse betaling Min | Maandelijkse betaling Max | |
|---|---|---|---|---|---|---|
| {{ tx.banque }} | {{ tx.taux | number:2 }}% | {{ tx.type }} | -{{ tx.capNeg }}%/+{{ tx.capPos }}% | {{ tx.mens | number:2 }}€ | {{ tx.min | number:2 }}€ - | {{ tx.max | number:2 }}€ - |
RENTABILITEIT
Cout total de l’acquisition
| Aankoopprijs | {{ calculeData.prix | number:2 }} € |
| Renovatie | + {{ calculeData.prixTransRenovation | number:2 }} € |
| Kosten | + {{ calculeData.frais | number:2 }} € |
| Totale kostprijs | + {{ calculeData.frais + calculeData.prixTransRenovation + calculeData.prix | number:2 }} € |
| Eigen middelen + overbruggingskrediet | {{ calculeData.totalFP+calculeData.creditPont | number:2 }} € |
| Ontleend bedrag | {{ calculeData.montantCredit | number:2 }} € |
| Totale kostprijs | + {{ calculeData.creditPont + calculeData.totalFP + calculeData.montantCredit | number:2 }} € |
Rendement op activa
Duur van detentie jaar (jaren)
WERKELIJKE WINST {{ calculeData.gainReel | number:0 }} €
RENDEMENT OP ACTIVA {{ calculeData.rendementSurActif | number:2 }} %
Omzet
| Jaarlijkse bruto huurinkomsten | € |
| Jaarlijkse lasten {{ calculeData.pourcentageCharge | number:2 }}% | {{ calculeData.chargeLocatifAnnuel | number:2 }} € |
| Onroerend goed belasting | {{ calculeData.precomteImmo | number:2 }} € |
| Andere jaarlijkse lasten | € |
| Jaarlijkse netto huurinkomsten | {{ calculeData.revenuLocatifAnnuelNet | number:2 }} € |
| Totale huurinkomsten na {{ calculeData.dureeDetention }} jaar rekening houdend met een inflatie van % | {{ calculeData.totalRevenuLocatif | number:2 }} € |
| Niet-gerealiseerde meerwaarde | {{ calculeData.pluvalueLatente | number:2 }} % |
| Meerwaarde van het pand na {{calculeData.dureeDetention}} jaar | {{ calculeData.pluvalueBien | number:2 }} € |
| Totale huurinkomsten na {{ calculeData.dureeDetention }} jaar | {{ calculeData.totalRevenuLocatif | number:2 }} € |
| Bruto winst op de basisprijs na {{ calculeData.dureeDetention }} jaar | +{{ calculeData.gainBrut | number:2 }} € |
Uitgaven
| Looptijd | {{ calculeData.duree | number:2 }} jaar |
| Tarief | {{ calculeData.taux | number:2 }} % |
| Maandlast | {{ calculeData.mensualite | number:2 }} € |
| Totale intrestlast na {{calculeData.dureeDetention}} jaar | {{ calculeData.totalInteret | number:2 }} € |
| Totale kosten | {{ calculeData.frais | number:2 }} € |
| Totaal | {{ calculeData.InteretFrais | number:2 }} € |
Winstrol
Rendement op activa
Cash flow
| Jaar | Kosten | Huurinkomsten | Verdienen |
|---|---|---|---|
| {{ $index }} | {{ ch.payment | number:2 }} € | {{ ch.revenuLocatif | number:2 }} € | {{ - ch.fondPropre | number:2 }} € |
Av. Louise 433 1050 Bruxelles - 02 648 01 20
Drève Richelle 96 1410 Waterloo - 02 354 29 39
Av. Prekelinden 83 1200 Woluwe-St-Lambert - 02 734 00 36