Suis-je éligible à une réduction des droits d’enregistrement ?
Richelieu
PRIX : 335 000,00€
Type: Appartement | Région: Bruxelles | Commune: Ixelles
Appartement de 82m2 selin PEB situé dans un quartier recherché d'Ixelles, se compose comme suit; Hall d'entrée avec WC séparé, cuisine de +/-9m2, séjour côté rue
de +/-25m2, hall de nuit, salle de bains avec emplacement machine à laver et sèche-linge, chambre n°1 de +/- 15m2 et chambre n°2 de +/- 10,50 m2. DIVERS: Cave, PEB ' F'
Surface habitable: 73.36 m² NET
Chambres: 2
Salle de bain: 1
Cave: 1
Vidéo
Découvrez le bien en visualisant cette vidéo
VISITE VIRTUELLE
Vous voulez en voir plus ? Visitez le bien comme si vous y étiez à travers cette visite virtuelle
Localisation
Ce bien vous correspond ? Découvrez maintenant si sa localisation vous convient !
Commerces
Pharmacies
Restaurants
Boulangeries
Crèches
Parcs
Écoles
Universités
Déplacements
Plans intérieurs
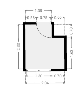
2e étage
SURFACE TOTALE : 70.2 m² | SURFACE HABITABLE : 83.76 m² | PIÈCE(S) : 9
1x Hall
1x Séjour
2x Chambres
1x Cuisine
1x S.D.B
1x Couloir
1x Placard
1x W.C
Hall
SURFACE : 3.63 m²
Séjour
SURFACE : 23.61 m²
Chambre 1
SURFACE : 15.36 m²
Cuisine
SURFACE : 9.22 m²
Chambre 2
SURFACE : 10.13 m²
S.D.B
SURFACE : 4.3 m²
Couloir
SURFACE : 2.21 m²
Placard
SURFACE : 0.32 m²
W.C
SURFACE : 1.45 m²
RECHERCHE CADASTRALE
Vous souhaitez mieux connaître votre parcelle et connaître la surface dont vous jouirez en achetant ce bien, alors consulter le cadastre est nécessaire !
État des sols
La pollution du sol a un impact sur l'environnement et sur la
santé, les risques d’inondation ont un impact sur votre qualité de vie… Consultez les données
relatives à ce bien pour en avoir le cœur net !
ÉTAT DE LA POLLUTION DES SOLS
Aucune remarque particulière pour la parcelle R224w7
Source : Cliquez-ici
Légende :
ZONE INONDABLE
Aucune remarque particulière pour la parcelle R224w7
Source : Cliquez-ici
Légende :
Certificats
Informez-vous sur la performance énergétique de ce bien et assurez-vous que ses installations électriques sont bien aux normes !
PERFORMANCE ÉNERGÉTIQUE
Économe
Très énergivore
CERTIFICAT ÉLECTRIQUE
PROCES VERBAL D’EXAMEN DE CONFORMITE ET/OU DE VISITE DE CONTROLE D’UNE INSTALLATION ELECTRIQUE BASSE TENSION
La nouvelle installationConforme
Agent
visiteur
Philippe Da Silva
Date
de certification
24/01/2022
Visite de contrôle
à effectuer avant le
24/01/2047
SYNTHÈSE DES CHARGES
Des dépenses seront nécessairement engagées pour l’administration de la copropriété, son entretien, l’installation d’équipements et la maintenance de ces derniers. Evaluez dès à présent le montant de vos charges mensuelles !
Assemblées générales
Extrait des derniers procès-Verbaux des assemblées générales
Charges et répartition
1- Charges
Ce tableau des charges comprend : Communs généraux – Chauffage et eau - honoraires - Assurances – frais bancaires - Appels de fonds et privatifs
| 2022 | |||
| T1 | T2 | T3 | T4 |
| 1156 € | 1152 € | 1184 € | 1034 € |
| 2023 | |||
| T1 | T2 | T3 | T4 |
| 1117 € | 897 € | 2818 € | 1020 € |
| 2024 | |||
| T1 | T2 | T3 | T4 |
| 999 € | 913 € | 1770 € | - € |
2- Répartition des charges - ACP Le Richelieu - 2021/2022
DATA ROOM
Nous avons mis tous les documents importants dans la date room, n’hésitez pas à télécharger ce dont vous avez besoin !
Nous avons mis tous les documents importants dans la date room, n’hésitez pas à télécharger ce dont vous avez besoin !
Besoin de crédit
Maintenant que vous êtes sûrs d’avoir fait le bon choix, calculez la valeur totale de cette acquisition (valeur du bien et frais annexes) et estimez vos besoins en crédit !
Simulation de crédit
| Prix d'achat | € |
| Rénovation | € |
| Rénovation HTVA | {{ calculeData.renovationHTVA | number:2 }} € |
| TVA | {{ calculeData.tva | number:2 }} € |
| Fonds propres | € |
| Acompte dû (disponible au compromis de vente) | {{ calculeData.prix * 0.1 | number:2 }} € |
| Reste des liquidités (disponible à l'acte) | {{ calculeData.avance | number:2 }} € |
| Crédit pont | {{ calculeData.creditPont | number:2 }} € |
| Prix de vente de votre bien existant | € |
| Solde du crédit existant | € |
| Frais d'acte d'achat | {{ calculeData.droit + calculeData.fraisNotaire | number:2 }} € |
| Droits d'enregistrement | {{ calculeData.droit | number:2 }} € |
|
Abattement
Suis-je éligible à une réduction des droits d’enregistrement ? |
|
| Frais de notaire | {{ calculeData.fraisNotaire | number:2 }} € |
| Autres frais | {{ calculeData.inscription + calculeData.fraisDossier + calculeData.autreFrais | number:2 }} € |
| Frais liés à l'acte hypothécaire | {{ calculeData.inscription | number:2 }} € |
| Frais de dossier et expertise bancaire | {{ calculeData.fraisDossier | number:2 }} € |
| Autres frais | € |
| Montant du crédit | {{ calculeData.montantCredit | number:2 }} € | |
La présente simulation se base sur un taux d’intérêt du 15/11/2024. Ce calcul est indicatif et sujet à changement.
Choix du type de crédit
| Taux | Type | CAP | Mensualité | Mensualité Min | Mensualité Max | |
|---|---|---|---|---|---|---|
| {{ tx.banque }} {{ $index+1 }} | {{ tx.taux | number:2 }}% | {{ tx.type }} | -{{ tx.capNeg }}%/+{{ tx.capPos }}% | {{ tx.mens | number:2 }}€ | {{ tx.min | number:2 }}€ | {{ tx.max | number:2 }}€ |
| Taux | Type | CAP | Mensualité | Mensualité Min | Mensualité Max | |
|---|---|---|---|---|---|---|
| {{ tx.banque }} {{ $index+1 }} | {{ tx.taux | number:2 }}% | {{ tx.type }} | -{{ tx.capNeg }}%/+{{ tx.capPos }}% | {{ tx.mens | number:2 }}€ | {{ tx.min | number:2 }}€ | {{ tx.max | number:2 }}€ |
| Taux | Type | CAP | Mensualité | Mensualité Min | Mensualité Max | |
|---|---|---|---|---|---|---|
| {{ tx.banque }} {{ $index+1 }} | {{ tx.taux | number:2 }}% | {{ tx.type }} | -{{ tx.capNeg }}%/+{{ tx.capPos }}% | {{ tx.mens | number:2 }}€ | {{ tx.min | number:2 }}€ | {{ tx.max | number:2 }}€ |
Rentabilité
Cout total de l’acquisition
| Prix d'achat | {{ calculeData.prix | number:2 }} € |
| Rénovation | + {{ calculeData.prixTransRenovation | number:2 }} € |
| Frais | + {{ calculeData.frais | number:2 }} € |
| Coût total | + {{ calculeData.frais + calculeData.prixTransRenovation + calculeData.prix | number:2 }} € |
| Fonds propres + crédit pont | {{ calculeData.totalFP+calculeData.creditPont | number:2 }} € |
| Montant du crédit | {{ calculeData.montantCredit | number:2 }} € |
| Coût total | + {{ calculeData.creditPont + calculeData.totalFP + calculeData.montantCredit | number:2 }} € |
Rentabilité sur actifs
Durée de détention année(s)
Gain réel {{ calculeData.gainReel | number:0 }} €
Rendement sur actif {{ calculeData.rendementSurActif | number:2 }} %
Revenus
| Revenu locatif annuel Brut | € |
| Charge annuelle {{ calculeData.pourcentageCharge | number:2 }}% | {{ calculeData.chargeLocatifAnnuel | number:2 }} € |
| Précompte immobilier | {{ calculeData.precomteImmo | number:2 }} € |
| Autre charge annuelle | € |
| Revenu locatif annuel net | {{ calculeData.revenuLocatifAnnuelNet | number:2 }} € |
| Total revenu locatif après {{ calculeData.dureeDetention }} année(s) tenant compte d'une inflation de % |
{{ calculeData.totalRevenuLocatif | number:2 }} € |
| Plus-value latente | {{ calculeData.pluvalueLatente | number:2 }} % |
| Plus-value du bien après {{calculeData.dureeDetention}} année(s) | {{ calculeData.pluvalueBien | number:2 }} € |
| Total revenu locatif après {{ calculeData.dureeDetention }} année(s) | {{ calculeData.totalRevenuLocatif | number:2 }} € |
| Gain brut sur le prix de base après {{ calculeData.dureeDetention }} année(s) | +{{ calculeData.gainBrut | number:2 }} € |
Charges
| Durée du crédit | {{ calculeData.duree | number:2 }} ans |
| Taux | {{ calculeData.taux | number:2 }} % |
| Mensualité | {{ calculeData.mensualite | number:2 }} € |
| Total interêts après {{calculeData.dureeDetention}} année(s) | {{ calculeData.totalInteret | number:2 }} € |
| Total frais | {{ calculeData.frais | number:2 }} € |
| Total | {{ calculeData.InteretFrais | number:2 }} € |
Gain réel
Rendement sur actif
Cash flow
| Année | Coût | Revenu locatif | Gain |
|---|---|---|---|
| {{ $index }} | {{ ch.payment | number:2 }} € | {{ ch.revenuLocatif | number:2 }} € | {{ - ch.fondPropre | number:2 }} € |
Av. Louise 433 1050 Bruxelles - 02 648 01 20
Drève Richelle 96 1410 Waterloo - 02 354 29 39
Av. Prekelinden 83 1200 Woluwe-St-Lambert - 02 734 00 36