Suis-je éligible à une réduction des droits d’enregistrement ?
Roetaert
PRIX : 575 000 €
Type: Maison | Région: Bruxelles | Commune: Uccle
Maison bel-étage deux façades composée de trois chambres, un jardin et un garage.
Surface Totale: 196.40 M²
Surface habitable: 153.92 m²
Chambres: 3
Salle de bain: 1
Salle de douche: 1
Terrasse: 1
Garage: 1
Jardin: Oui
Vidéo
Découvrez le bien en visualisant cette vidéo
VISITE VIRTUELLE
Vous voulez en voir plus ? Visitez le bien comme si vous y étiez à travers cette visite virtuelle
Localisation
Ce bien vous correspond ? Découvrez maintenant si sa localisation vous convient !
Commerces
Pharmacies
Restaurants
Boulangeries
Crèches
Parcs
Écoles
Universités
Déplacements
Plans intérieurs
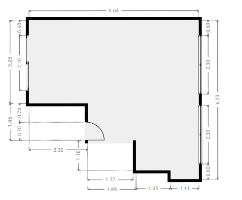
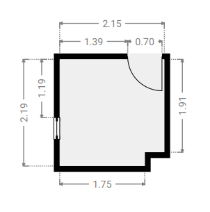
Rez-de-chaussée
SURFACE TOTALE : 68.48 m² | SURFACE HABITABLE : 55.04 m² | PIÈCE(S) : 9
1x Entrée
1x Placard
1x Couloir
1x Chaufferie
1x Garage
1x Atelier
1x Cave
Entrée
SURFACE : 3.97 m²
SURFACE : 7.78 m²
Placard
SURFACE : 0.48 m²
Couloir
SURFACE : 1.27 m²
Chaufferie
SURFACE : 4.59 m²
Garage
SURFACE : 15.47 m²
Atelier
SURFACE : 12.99 m²
Cave
SURFACE : 7.65 m²
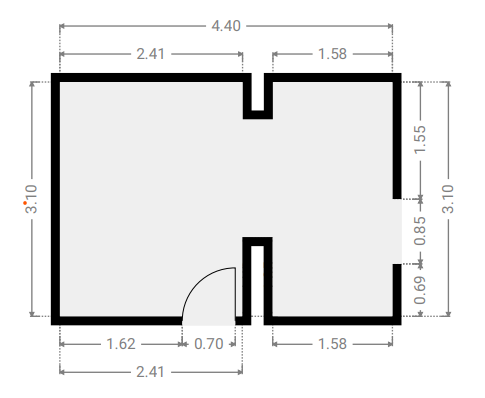
1er étage
SURFACE TOTALE : 47.75 m² | SURFACE HABITABLE : 39.8 m² | PIÈCE(S) : 3
1x Séjour
1x Cuisine
SURFACE : 2.48 m²
Séjour
SURFACE : 31.22 m²
Cuisine
SURFACE : 6.13 m²
2e étage
SURFACE TOTALE : 48.04 m² | SURFACE HABITABLE : 39.23 m² | PIÈCE(S) : 5
2x Chambre
1x Bureau
1x S.D.B.
Chambre 1
SURFACE : 10.21 m²
Chambre 2
SURFACE : 11.19 m²
Bureau
SURFACE : 7.26 m²
SURFACE : 5.42 m²
S.D.B.
SURFACE : 5.17 m²
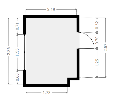
3e étage
SURFACE TOTALE : 43.02 m² | SURFACE HABITABLE : 35.34 m² | PIÈCE(S) : 4
1x Dressing
1x S.D.D.
1x Chambre 3
Dressing
SURFACE : 5.52 m²
SURFACE : 4.34 m²
S.D.D.
SURFACE : 4.46 m²
Chambre 3
SURFACE : 21.04 m²
RECHERCHE CADASTRALE
Vous souhaitez mieux connaître votre parcelle et connaître la surface dont vous jouirez en achetant ce bien, alors consulter le cadastre est nécessaire !
Surface : 197.92 m²
Parcelle : G30n14
Certificats
Informez-vous sur la performance énergétique de ce bien et assurez-vous que ses installations électriques sont bien aux normes !
PERFORMANCE ÉNERGÉTIQUE
Économe
Très énergivore
CERTIFICAT ÉLECTRIQUE
PROCES VERBAL D’EXAMEN DE CONFORMITE ET/OU DE VISITE DE CONTROLE D’UNE INSTALLATION ELECTRIQUE BASSE TENSION
La nouvelle installationConforme
Agent
visiteur
Hicham Benchaib
Date
de certification
17/04/2023
Visite de contrôle
à effectuer avant le
17/04/2048
CERTIFICAT D’ÉTANCHÉITÉ DE LA CUVE À MAZOUT
PROCES VERBAL D’EXAMEN D’ÉTANCHÉITÉ ET/OU DE VISITE DE CONTROLE DE LA CUVE À MAZOUT
L'installation existante Étanche
L’étanchéité est assurée mais pas la conformité
Le réservoir peut rester en service mais devra faire
l’objet d’un nouveau contrôle avant le 27/04/2024
Une plaquette orange a été fixée et scellée sur la conduite de remplissage du réservoir le jour même du contrôle.
Agent
visiteur
Mathieu Laixhay
Date
de certification
27/04/2023
La non-conformité doit
être solutionnée avant le
27/08/2023.
Audit technique
En prévoyant un budget précis des transformations et/ou réparations à opérer sur ce bien, l'expertise réalisée par un architecte neutre et indépendant vous permet de mieux évaluer la valeur de ce bien !
Score général attribué par l’auditeur *
Conseils généraux en termes de performances énergétiques du bâtiment :
La maison n'a aucun dispositif permettant de réduire les consommations énergétiques.
En fonction du budget, il faudra voir où seront mises les priorités (rénovation intérieure et/ou extérieure).
Nous conseillons toutefois de mettre la priorité sur l'isolation de la toiture avant celle des murs et le remplacement des châssis plus anciens.
Au niveau des techniques, nous conseillons de revoir le chauffage et la ventilation de la maison.
Avis général et conseils de l'inspecteur :
Maison très saine mais qui n'a pas encore subit de mue énergétique. Des travaux seront à prévoir afin de la conformer aux normes actuelles en matière de PEB.
DISCLAIMER
La conclusion et les conseils donnés sont le résultat d’une inspection indépendante, réalisée par un architecte expérimenté et agréé par ImmoPass.
Les éventuelles estimations budgétaires contenues dans ce rapport sont données à titre indicatif et ne constituent pas un devis. Nous recommandons de réaliser un Cahier des Charges sur tout ou partie des travaux à entreprendre et une analyse des devis reçus. Les estimations sont exprimées hors taxes.
L’inspection a été réalisée de manière non-destructive, de manière visuelle uniquement. Ce rapport ne peut donc garantir l’absence totale de vices techniques cachés.
100 %
Zone inondable, zone acoustique, plan de secteurs, permis d’urbanisme ...
100 %
Certification énergétique, conformité électrique, cuve à mazout, sol, ...
94 %
Sécurité, aménagements, structures extérieures, entretien végétation, ...
100 %
Humidité généralisée, présence d’amiante, mérule, termites ...
85 %
Toiture, murs extérieurs, châssis et portes, évacuation eau de pluie, ...
96 %
Défauts structurels, humidité localisée, salubrité, état de fonctionnement..
100 %
Halls et escaliers, caves, combles et grenier, locaux techniques, ...
86 %
Système de chauffage, eau chaude sanitaire, électricité, entretiens techniques, ...
Voir rapport Certinergie - le bâtiment est classé G avec une consommation estimée à 358 kWh(m2.an) ce qui correspond à un bâtiment très énergivore. Etant donné la présence de 2 maisons mitoyennes chauffées, ce label est celui d'une maison qui ne comprend aucune isolation.
Voir rapport Certinergie du 17/04/2023 sans remarque.
L'agent immobilier que l'étanchéité de la cuve à mazout a été vérifiée étanche.
Léger entretien à prévoir. La présence de mousses au niveau des joints de klinnkers peut à terme provoquer des décollements du revêtement.
Le cimentage du petit muret extérieur présente de petites fissures superficielles. Il faudra dans un délais maximum de 5 ans refaire ce cimentage pour maintenir une bonne protection du muret. En attendant une bonne peinture extérieure peut faire office de protection dans le temps. Prévoir un budget de maximum 500-1.000 euros pour refaire le muret.
Nous avons trouvé un seul endroit où un petit problème d'humidité est suspecté - voir au niveau du living. Pour le reste l'habitation est saine et ne présente aucun problème particulier.
A divers endroits une petite retouche ou une petite réparation superficielle pourrait être effectuée mais globalement les revêtements de façade sont en bon état et peuvent être maintenues en état sans problème.
A voir si une rénovation énergétique ne sera pas envisagée vie la pose d'isolation sur les murs de façade actuel.
La toiture ente présente globalement aucune faiblesse structurelle visible.
Si majoritairement les tuiles sont en bon état , nous avons repérée une tuile felée non loin de l'avaloir de la corniche en façade avant (côté gauche - en regardant la maison de la rue).
L'ensemble est en bon état, nous n'avons pas pu contrôler l'état des joints au-dessus des solins posés sur les mitoyens.
Les gouttières avant et arrière présentent beaucoup de déchets végétaux notamment au droit des avaloirs. Ceci risque d'obturer l'avaloir. Attention en cas de rétention d'eau des végétaux pourraient y prendre racines et performer localement la membrane. Nettoyer régulièrement les gouttières permet d'éviter ce genre de problème.
Les châssis et leur degré d'isolation
1) Les châssis en façade avant sont de nouvelles générations avec double vitrage 1.1.
2) En façade arrière, ce sont d'anciens châssis en bois dans lesquels on est venu placer un double vitrage. Ces châssis présentent donc un facteur d'isolation moins important.
3) Au niveau des caves, ce sont de vieux châssis avec un simple vitrage qu'il faudrait remplacer dans le cadre d'une rénovation énergétique.
Attention, aucune grille d'aération n'est actuellement présente dans les châssis. Il faudra y penser en cas de rénovation énergétique de l'habitation.
==> Budget à prévoir en fonction des remplacements de châssis et de la potentielle isolation de la maison.
Remarques
Le châssis du premier au niveau de la chambre ne présente pas toutes les garanties de sécurité, nous préconisons de placer une poignée à clé afin de sécuriser son ouverture. Budget inférieur à 500 euros.
Il faudrait refaire un joint étanche au niveau de la jonction entre la maçonnerie et les châssis en façade avant à la jonction des panneaux. Budget inférieur à 500 euros.
Les vélux présentent des traces de condensation intérieures ce qui indiquent que la coupure thermique n'est plus efficace. Il faudrait au minimum remplacer les vitrages mais nous conseillons plutôt de remplacer les vélux dans le cadre d'une rénovation complète de la toiture avec la pose d'une isolation en toiture.
Nous n'avons pas vu de détecteur d'incendie dans l'habitation. Nous conseillons d'en placer un par niveau.
Le niveau du sol étant inférieur à celui de la terrasse, il s'avère qu'il y a un peu d'humidité en-dessous du châssis coulissant côté gauche. Via l'humidimètre, nous constatons un taux d'humidité trop élevé dans le parquet en bois. On constate également à cet endroit gun léger décollement du parquet. Il faudrait surtout vérifier l'étanchéité à l'extérieur du mur sous le coulissant pur empêcher l'humidité. Il s'agit d'un problème très localisé.
La ventilation naturelle est actuellement assurée via une fenêtre qui dit être ouverte manuellement. Dans le cadre d'une rénovation énergétique, nus conseillons vivement de placer une ventilation mécanique dans tous les locaux humides (WC, SDB, buanderie,...)
La ventilation naturelle est actuellement assurée via une fenêtre qui dit être ouverte manuellement. Dans le cadre d'une rénovation énergétique, nus conseillons vivement de placer une ventilation mécanique dans tous les locaux humides (WC, SDB, buanderie,...)
On constate que le carrelage mural a été endommagé lors de la pose de nouvelles canalisations pour le lavabo au 1er étage.
Nous avons testé à l'humidimètre les bois de charpente et ceux-ci étaient tous très sec. Il n'y a donc pas d'infiltration récente. Néanmoins les traces visibles sur le bois démontre qu'il y a eu des soucis d'infiltrations par le passé. Il n'y a probablement pas de sous-toiture sous les tuiles.
Nous conseillons une rénovation complète de la toiture avec pose d'isolation pour améliorer l'isolation de la maison.
Les caves sont saines et ne présentent aucun désordre dû à l'humidité.
La ventilation naturelle est assurée via des fenêtres. Attention en cas de remplacement des ces vieux châssis à maintenir des entrées d'air suffisante et de prévoir une bonne ventilation de l'ensemble des caves.
Nous conseillons à terme un remplacement de la chaudière actuelle par une chaudière au gaz à condensation pour augmenter les rendements et améliorer la PEB de l'habitation.
Pas de soucis en général mais installation vieillissante - présence de vannes non thermostatique par endroit. Nous conseillons de revoir le chauffage en cas de rénovation intérieure de la maison.
Rapport sans remarque.
DATA ROOM
Nous avons mis tous les documents importants dans la date room, n’hésitez pas à télécharger ce dont vous avez besoin !
Nous avons mis tous les documents importants dans la date room, n’hésitez pas à télécharger ce dont vous avez besoin !
Besoin de crédit
Maintenant que vous êtes sûrs d’avoir fait le bon choix, calculez la valeur totale de cette acquisition (valeur du bien et frais annexes) et estimez vos besoins en crédit !
Simulation de crédit
| Prix d'achat | € |
| Rénovation | € |
| Rénovation HTVA | {{ calculeData.renovationHTVA | number:2 }} € |
| TVA | {{ calculeData.tva | number:2 }} € |
| Fonds propres | € |
| Acompte dû (disponible au compromis de vente) | {{ calculeData.prix * 0.1 | number:2 }} € |
| Reste des liquidités (disponible à l'acte) | {{ calculeData.avance | number:2 }} € |
| Crédit pont | {{ calculeData.creditPont | number:2 }} € |
| Prix de vente de votre bien existant | € |
| Solde du crédit existant | € |
| Frais d'acte d'achat | {{ calculeData.droit + calculeData.fraisNotaire | number:2 }} € |
| Droits d'enregistrement | {{ calculeData.droit | number:2 }} € |
|
Abattement
Suis-je éligible à une réduction des droits d’enregistrement ? |
|
| Frais de notaire | {{ calculeData.fraisNotaire | number:2 }} € |
| Autres frais | {{ calculeData.inscription + calculeData.fraisDossier + calculeData.autreFrais | number:2 }} € |
| Frais liés à l'acte hypothécaire | {{ calculeData.inscription | number:2 }} € |
| Frais de dossier et expertise bancaire | {{ calculeData.fraisDossier | number:2 }} € |
| Autres frais | € |
| Montant du crédit | {{ calculeData.montantCredit | number:2 }} € | |
Choix du type de crédit
| Taux | Type | CAP | Mensualité | Mensualité Min | Mensualité Max | |
|---|---|---|---|---|---|---|
| {{ tx.banque }} {{ $index+1 }} | {{ tx.taux | number:2 }}% | {{ tx.type }} | -{{ tx.capNeg }}%/+{{ tx.capPos }}% | {{ tx.mens | number:2 }}€ | {{ tx.min | number:2 }}€ | {{ tx.max | number:2 }}€ |
| Taux | Type | CAP | Mensualité | Mensualité Min | Mensualité Max | |
|---|---|---|---|---|---|---|
| {{ tx.banque }} {{ $index+1 }} | {{ tx.taux | number:2 }}% | {{ tx.type }} | -{{ tx.capNeg }}%/+{{ tx.capPos }}% | {{ tx.mens | number:2 }}€ | {{ tx.min | number:2 }}€ | {{ tx.max | number:2 }}€ |
| Taux | Type | CAP | Mensualité | Mensualité Min | Mensualité Max | |
|---|---|---|---|---|---|---|
| {{ tx.banque }} {{ $index+1 }} | {{ tx.taux | number:2 }}% | {{ tx.type }} | -{{ tx.capNeg }}%/+{{ tx.capPos }}% | {{ tx.mens | number:2 }}€ | {{ tx.min | number:2 }}€ | {{ tx.max | number:2 }}€ |
Rentabilité
Cout total de l’acquisition
| Prix d'achat | {{ calculeData.prix | number:2 }} € |
| Rénovation | + {{ calculeData.prixTransRenovation | number:2 }} € |
| Frais | + {{ calculeData.frais | number:2 }} € |
| Coût total | + {{ calculeData.frais + calculeData.prixTransRenovation + calculeData.prix | number:2 }} € |
| Fonds propres + crédit pont | {{ calculeData.totalFP+calculeData.creditPont | number:2 }} € |
| Montant du crédit | {{ calculeData.montantCredit | number:2 }} € |
| Coût total | + {{ calculeData.creditPont + calculeData.totalFP + calculeData.montantCredit | number:2 }} € |
Rentabilité sur actifs
Durée de détention année(s)
Gain réel {{ calculeData.gainReel | number:0 }} €
Rendement sur actif {{ calculeData.rendementSurActif | number:2 }} %
Revenus
| Revenu locatif annuel Brut | € |
| Charge annuelle {{ calculeData.pourcentageCharge | number:2 }}% | {{ calculeData.chargeLocatifAnnuel | number:2 }} € |
| Précompte immobilier | {{ calculeData.precomteImmo | number:2 }} € |
| Autre charge annuelle | € |
| Revenu locatif annuel net | {{ calculeData.revenuLocatifAnnuelNet | number:2 }} € |
| Total revenu locatif après {{ calculeData.dureeDetention }} année(s) tenant compte d'une inflation de % |
{{ calculeData.totalRevenuLocatif | number:2 }} € |
| Plus-value latente | {{ calculeData.pluvalueLatente | number:2 }} % |
| Plus-value du bien après {{calculeData.dureeDetention}} année(s) | {{ calculeData.pluvalueBien | number:2 }} € |
| Total revenu locatif après {{ calculeData.dureeDetention }} année(s) | {{ calculeData.totalRevenuLocatif | number:2 }} € |
| Gain brut sur le prix de base après {{ calculeData.dureeDetention }} année(s) | +{{ calculeData.gainBrut | number:2 }} € |
Charges
| Durée du crédit | {{ calculeData.duree | number:2 }} ans |
| Taux | {{ calculeData.taux | number:2 }} % |
| Mensualité | {{ calculeData.mensualite | number:2 }} € |
| Total interêts après {{calculeData.dureeDetention}} année(s) | {{ calculeData.totalInteret | number:2 }} € |
| Total frais | {{ calculeData.frais | number:2 }} € |
| Total | {{ calculeData.InteretFrais | number:2 }} € |
Gain réel
Rendement sur actif
Cash flow
| Année | Coût | Revenu locatif | Gain |
|---|---|---|---|
| {{ $index }} | {{ ch.payment | number:2 }} € | {{ ch.revenuLocatif | number:2 }} € | {{ - ch.fondPropre | number:2 }} € |
Av. Louise 433 Louizalaan 1050 Bruxelles - Brussel
Drève Richelle, 96 - 1410 Waterloo