Suis-je éligible à une réduction des droits d’enregistrement ?
Renoncules 9
PRIX : 695 000,00€
Type: Villa | Région: Wallonie | Commune: Limal
Au calme dans un clos d'un quartier résidentiel , à seulement 5 minutes de la gare de Rixensart et de l'accès à la E411, By the Way vous présente cette magnifique villa d'architecte d'une surface habitable de +/- 250m² sur une parcelle de 15 ares.
Cette propriété s'étend sur deux niveaux et se compose comme suit :
Au rez-de-chaussée, le hall d'entrée avec vestiaire et WC invités s'ouvre sur le vaste séjour lumineux agrémenté d'un feu ouvert. La cuisine avec îlot central est spacieuse et entièrement équipée VARENNA & FOSTER. Un bureau/buanderie et un garage complètent ce niveau.
À l'étage, le hall de nuit dessert 4 chambres, dont une splendide suite parentale de +/- 30m2 comprenant sa propre salle de bains et douche, rangement et WC séparés. Sur le palier, espace bureau cosy (possibilité d’en faire une 5e chambre). Une salle d’eau et un WC séparé sont également présents à cet étage . Dans les combles, un vaste grenier de rangement mansardé. Le jardin est orienté au Sud-Sud Est et vous apprécierez certainement la terrasse couverte adossée à la bâtisse.
Ce bien est actuellement loué, possibilité de donner renon au locataire pour préavis.
PEB C. Châssis double vitrage PVC. Chaudière au gaz à condensation.Electricité conforme
Grenier: 1
Surface totale: 278 m²
Jardin orienté au Sud-Sud Est
Chambres: 4
Salles de bain: 2
Terrasse couverte
Garage: 1
Bureau: 1
Vidéo
Découvrez le bien en visualisant cette vidéo
Localisation
Ce bien vous correspond ? Découvrez maintenant si sa localisation vous convient !
Commerces
Pharmacies
Restaurants
Boulangeries
Crèches
Parcs
Écoles
Universités
Déplacements
Plans intérieurs
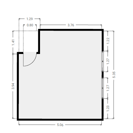
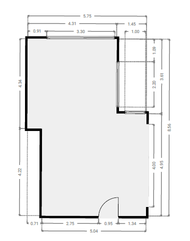
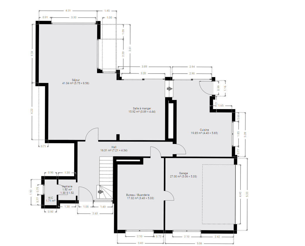
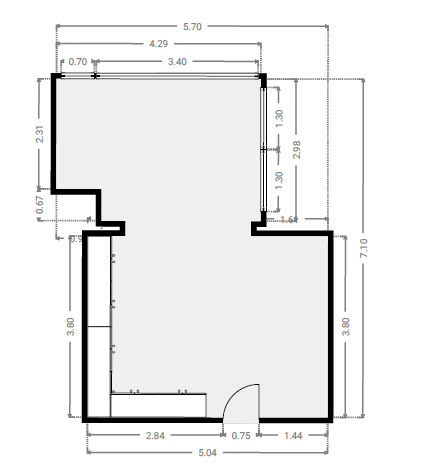
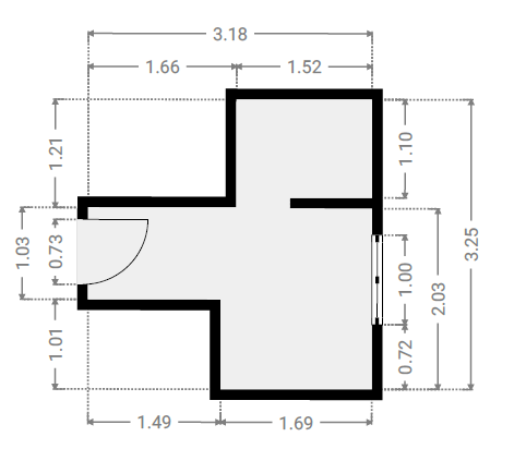
Rez-de-chaussée
SURFACE TOTALE : 144.29 m² | SURFACE HABITABLE : 117.29 m² | PIÈCE(S) : 8
1x Séjour
1x Salle à manger
1x Cuisine
1x Hall
1x Vestiaire
1x W.C
1x Garage
1x Bureau / Buanderie
Séjour
SURFACE : 41.04 m²
Salle à manger
SURFACE : 15.92 m²
Cuisine
SURFACE : 19.85 m²
Hall
SURFACE : 16.31 m²
Vestiaire
SURFACE : 1.97 m²
W.C
SURFACE : 1.71 m²
Garage
SURFACE : 27 m²
Bureau / Buanderie
SURFACE : 17.32 m²
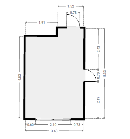
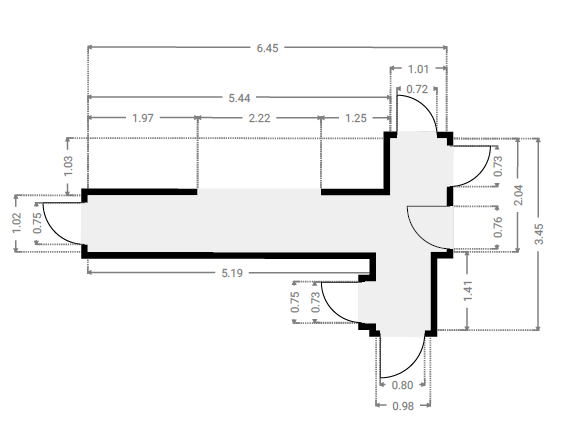
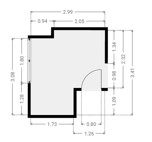
1er étage
SURFACE TOTALE : 128.66 m² | SURFACE HABITABLE : 153.32 m² | PIÈCE(S) : 12
4x Chambre(s)
1x Bureau
2x S.D.B(s)
2x Couloir(s)
2x W.C(s)
1x Rangement
Chambre 1
SURFACE : 32.11 m²
Bureau
SURFACE : 13.02 m²
Chambre 4
SURFACE : 8.7 m²
S.D.B 2
SURFACE : 6.7 m²
Couloir
SURFACE : 9.11 m²
Couloir
SURFACE : 2.08 m²
S.D.B 1
SURFACE : 8.5 m²
W.C
SURFACE : 1.64 m²
Rangement
SURFACE : 2.12 m²
W.C
SURFACE : 1.21 m²
Chambre 2
SURFACE : 18.3 m²
Chambre 3
SURFACE : 25.23 m²
RECHERCHE CADASTRALE
Vous souhaitez mieux connaître votre parcelle et connaître la surface dont vous jouirez en achetant ce bien, alors consulter le cadastre est nécessaire !
État des sols
La pollution du sol a un impact sur l'environnement et sur la santé, les risques d’inondation ont un impact sur votre qualité de vie… Consultez les données relatives à ce bien pour en avoir le cœur net !
ÉTAT DE LA POLLUTION DES SOLS
Aucune remarque particulière pour le parcelle A389y
Source : Cliquez-ici
Légende :
ZONE INONDABLE
Aucune remarque particulière pour le parcelle A389y
Source : Cliquez-ici
Légende :
Certificats
Informez-vous sur la performance énergétique de ce bien et assurez-vous que ses installations électriques sont bien aux normes !
PERFORMANCE ÉNERGÉTIQUE
Économe
Très énergivore
CERTIFICAT ÉLECTRIQUE
PROCES VERBAL D’EXAMEN DE CONFORMITE ET/OU DE VISITE DE CONTROLE D’UNE INSTALLATION ELECTRIQUE BASSE TENSION
La nouvelle installationConforme
Agent
visiteur
90/P.Weltelet
Date
de certification
24/11/2010
Visite de contrôle
à effectuer avant le
24/11/2035
INDICATEURS SPÉCIFIQUES
| Besoins en chaleur du logement | ||||
| excessifs | élevés | moyens | faibles | minimes |
| Performance des installations de chauffage | ||||
| médiocre | insuffisante | satisfaisante | bonne | excellente |
| Performance des installations d'eau chaude sanitaire | ||||
| médiocre | insuffisante | satisfaisante | bonne | excellente |
| Système de ventillation | ||||
| absent | très partiel | partiel | incomplet | complet |
DATA ROOM
Nous avons mis tous les documents importants dans la date room, n’hésitez pas à télécharger ce dont vous avez besoin !
Nous avons mis tous les documents importants dans la date room, n’hésitez pas à télécharger ce dont vous avez besoin !
Besoin de crédit
Maintenant que vous êtes sûrs d’avoir fait le bon choix, calculez la valeur totale de cette acquisition (valeur du bien et frais annexes) et estimez vos besoins en crédit !
Simulation de crédit
| Prix d'achat | € |
| Rénovation | € |
| Rénovation HTVA | {{ calculeData.renovationHTVA | number:2 }} € |
| TVA | {{ calculeData.tva | number:2 }} € |
| Fonds propres | € |
| Acompte dû (disponible au compromis de vente) | {{ calculeData.prix * 0.1 | number:2 }} € |
| Reste des liquidités (disponible à l'acte) | {{ calculeData.avance | number:2 }} € |
| Crédit pont | {{ calculeData.creditPont | number:2 }} € |
| Prix de vente de votre bien existant | € |
| Solde du crédit existant | € |
| Frais d'acte d'achat | {{ calculeData.droit + calculeData.fraisNotaire | number:2 }} € |
| Droits d'enregistrement | {{ calculeData.droit | number:2 }} € |
|
Abattement
Suis-je éligible à une réduction des droits d’enregistrement ? |
|
| Frais de notaire | {{ calculeData.fraisNotaire | number:2 }} € |
| Autres frais | {{ calculeData.inscription + calculeData.fraisDossier + calculeData.autreFrais | number:2 }} € |
| Frais liés à l'acte hypothécaire | {{ calculeData.inscription | number:2 }} € |
| Frais de dossier et expertise bancaire | {{ calculeData.fraisDossier | number:2 }} € |
| Autres frais | € |
| Montant du crédit | {{ calculeData.montantCredit | number:2 }} € | |
La présente simulation se base sur un taux d’intérêt du 28/03/2024. Ce calcul est indicatif et sujet à changement.
Choix du type de crédit
| Taux | Type | CAP | Mensualité | Mensualité Min | Mensualité Max | |
|---|---|---|---|---|---|---|
| {{ tx.banque }} {{ $index+1 }} | {{ tx.taux | number:2 }}% | {{ tx.type }} | -{{ tx.capNeg }}%/+{{ tx.capPos }}% | {{ tx.mens | number:2 }}€ | {{ tx.min | number:2 }}€ | {{ tx.max | number:2 }}€ |
| Taux | Type | CAP | Mensualité | Mensualité Min | Mensualité Max | |
|---|---|---|---|---|---|---|
| {{ tx.banque }} {{ $index+1 }} | {{ tx.taux | number:2 }}% | {{ tx.type }} | -{{ tx.capNeg }}%/+{{ tx.capPos }}% | {{ tx.mens | number:2 }}€ | {{ tx.min | number:2 }}€ | {{ tx.max | number:2 }}€ |
| Taux | Type | CAP | Mensualité | Mensualité Min | Mensualité Max | |
|---|---|---|---|---|---|---|
| {{ tx.banque }} {{ $index+1 }} | {{ tx.taux | number:2 }}% | {{ tx.type }} | -{{ tx.capNeg }}%/+{{ tx.capPos }}% | {{ tx.mens | number:2 }}€ | {{ tx.min | number:2 }}€ | {{ tx.max | number:2 }}€ |
Rentabilité
Cout total de l’acquisition
| Prix d'achat | {{ calculeData.prix | number:2 }} € |
| Rénovation | + {{ calculeData.prixTransRenovation | number:2 }} € |
| Frais | + {{ calculeData.frais | number:2 }} € |
| Coût total | + {{ calculeData.frais + calculeData.prixTransRenovation + calculeData.prix | number:2 }} € |
| Fonds propres + crédit pont | {{ calculeData.totalFP+calculeData.creditPont | number:2 }} € |
| Montant du crédit | {{ calculeData.montantCredit | number:2 }} € |
| Coût total | + {{ calculeData.creditPont + calculeData.totalFP + calculeData.montantCredit | number:2 }} € |
Rentabilité sur actifs
Durée de détention année(s)
Gain réel {{ calculeData.gainReel | number:0 }} €
Rendement sur actif {{ calculeData.rendementSurActif | number:2 }} %
Revenus
| Revenu locatif annuel Brut | € |
| Charge annuelle {{ calculeData.pourcentageCharge | number:2 }}% | {{ calculeData.chargeLocatifAnnuel | number:2 }} € |
| Précompte immobilier | {{ calculeData.precomteImmo | number:2 }} € |
| Autre charge annuelle | € |
| Revenu locatif annuel net | {{ calculeData.revenuLocatifAnnuelNet | number:2 }} € |
| Total revenu locatif après {{ calculeData.dureeDetention }} année(s) tenant compte d'une inflation de % |
{{ calculeData.totalRevenuLocatif | number:2 }} € |
| Plus-value latente | {{ calculeData.pluvalueLatente | number:2 }} % |
| Plus-value du bien après {{calculeData.dureeDetention}} année(s) | {{ calculeData.pluvalueBien | number:2 }} € |
| Total revenu locatif après {{ calculeData.dureeDetention }} année(s) | {{ calculeData.totalRevenuLocatif | number:2 }} € |
| Gain brut sur le prix de base après {{ calculeData.dureeDetention }} année(s) | +{{ calculeData.gainBrut | number:2 }} € |
Charges
| Durée du crédit | {{ calculeData.duree | number:2 }} ans |
| Taux | {{ calculeData.taux | number:2 }} % |
| Mensualité | {{ calculeData.mensualite | number:2 }} € |
| Total interêts après {{calculeData.dureeDetention}} année(s) | {{ calculeData.totalInteret | number:2 }} € |
| Total frais | {{ calculeData.frais | number:2 }} € |
| Total | {{ calculeData.InteretFrais | number:2 }} € |
Gain réel
Rendement sur actif
Cash flow
| Année | Coût | Revenu locatif | Gain |
|---|---|---|---|
| {{ $index }} | {{ ch.payment | number:2 }} € | {{ ch.revenuLocatif | number:2 }} € | {{ - ch.fondPropre | number:2 }} € |
Av. Louise 433 1050 Bruxelles - 02 648 01 20
Drève Richelle 96 1410 Waterloo - 02 354 29 39
Av. Prekelinden 83 1200 Woluwe-St-Lambert - 02 734 00 36