Suis-je éligible à une réduction des droits d’enregistrement ?
Reine Elisabeth 62
PRIX : 315 000 €
Type: Petite maison | Région: Wallonie | Commune: Tubize
Maison de maître 3 façades - 3ch - Garage - Jardin et terrasse
Surface habitable: 188.84 m²
Chambres: 3
Salle de bain: 1
Garage: 1
Cave: 1
Parking: 1
Vidéo
Découvrez le bien en visualisant cette vidéo
VISITE VIRTUELLE
Vous voulez en voir plus ? Visitez le bien comme si vous y étiez à travers cette visite virtuelle
Localisation
Ce bien vous correspond ? Découvrez maintenant si sa localisation vous convient !
Commerces
Pharmacies
Restaurants
Boulangeries
Crèches
Parcs
Écoles
Universités
Déplacements
Plans intérieurs
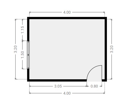
Sous-sol
SURFACE TOTALE : 22.51 m² | SURFACE HABITABLE : 22.51 m² | PIÈCES : 3
1x Atelier
1x Cave
1x Escalier
Atelier
SURFACE : 15.41 m²
Cave
SURFACE : 3.24 m²
Escalier
SURFACE : 3.87 m²
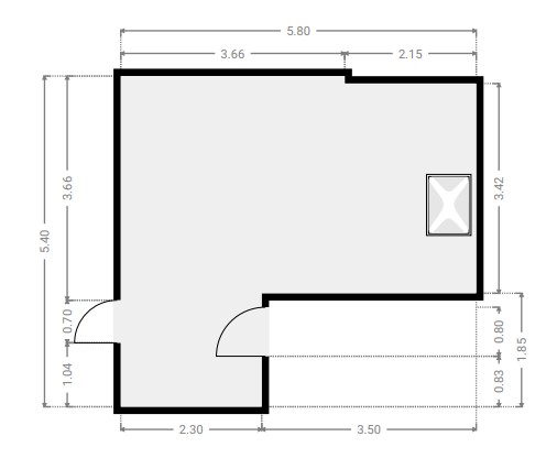
Rez-de-chaussée
SURFACE TOTALE : 97.67 m² | SURFACE HABITABLE : 81.97 m² | PIÈCES : 8
1x Séjour
1x Entrée
1x Cuisine
1x Buanderie
1x Garage
1x Chaufferie
Séjour
SURFACE : 29.64 m²
Entrée
SURFACE : 5.01 m²
Cuisine
SURFACE : 26.76 m²
Buanderie
SURFACE : 4.59 m²
Garage
SURFACE : 15.69 m²
Chaufferie
SURFACE : 7.27 m²
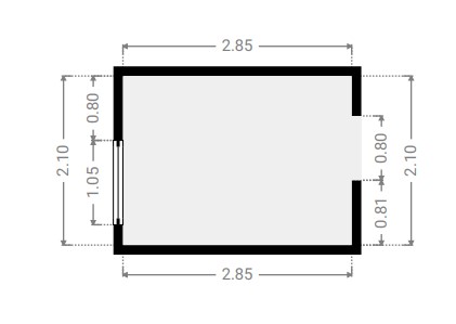
1er étage
SURFACE TOTALE : 42.36 m² | SURFACE HABITABLE : 42.36 m² | PIÈCES : 4
2x Chambres
1x S.D.B.
Chambre 1
SURFACE : 12.8 m²
S.D.B.
SURFACE : 5.99 m²
Chambre 2
SURFACE : 14.05 m²
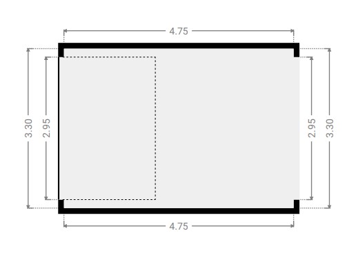
2e étage
SURFACE TOTALE : 42 m² | SURFACE HABITABLE : 42 m² | PIÈCES : 3
1x Chambre 3
1x Hall
1x Grenier
Chambre 3
SURFACE : 24.58 m²
Hall
SURFACE : 3.95 m²
Grenier
SURFACE : 13.49 m²
RECHERCHE CADASTRALE
Vous souhaitez mieux connaître votre parcelle et connaître la surface dont vous jouirez en achetant ce bien, alors consulter le cadastre est nécessaire !
Surface : 253.45 m²
Parcelle : B154a3
Certificats
Informez-vous sur la performance énergétique de ce bien et assurez-vous que ses installations électriques sont bien aux normes !
PERFORMANCE ÉNERGÉTIQUE
Économe
Très énergivore
CERTIFICATEUR ÉLECTRIQUE
PROCES VERBAL D’EXAMEN DE CONFORMITE ET/OU DE VISITE DE CONTROLE D’UNE INSTALLATION ELECTRIQUE BASSE TENSION
La nouvelle installation Conforme
Agent
visiteur
Ghislain F.
Date
de certification
16/01/2012
Doit être
contrôlée avant
16/01/2037
Audit technique
En prévoyant un budget précis des transformations et/ou réparations à opérer sur ce bien, l'expertise réalisée par un architecte neutre et indépendant vous permet de mieux évaluer la valeur de ce bien !
Score général attribué par l’auditeur *
Conseils généraux en termes de performances énergétiques du bâtiment :
La maison ne présente que peu d'isolation mis à part la toiture.
Nous conseillons en priorité d'isoler les murs à l'arrière et de remplacer les châssis.
En même temps que l'isolation, attention de penser à l'aération et à la ventilation du bâtiment.
Avis général et conseils de l'inspecteur :
Maison ne présentant pas de gros désordres d'humidité. Il faut surtout refermer et protéger correctement les murs de façade. L'intérieur de l'habitation est de finitions standards et ne présente pas de gros problèmes hormis l'électricité qui, et cela doit être la priorité, doit être mis en conformité.
DISCLAIMER
La conclusion et les conseils donnés sont le résultat d’une inspection indépendante, réalisée par un architecte expérimenté et agréé par ImmoPass.
Les éventuelles estimations budgétaires contenues dans ce rapport sont données à titre indicatif et ne constituent pas un devis. Nous recommandons de réaliser un Cahier des Charges sur tout ou partie des travaux à entreprendre et une analyse des devis reçus. Les estimations sont exprimées hors taxes.
L’inspection a été réalisée de manière non-destructive, de manière visuelle uniquement. Ce rapport ne peut donc garantir l’absence totale de vices techniques cachés.
100 %
Zone inondable, zone acoustique, plan de secteurs, permis d’urbanisme ...
80 %
Certification énergétique, conformité électrique, cuve à mazout, sol, ...
78 %
Sécurité, aménagements, structures extérieures, entretien végétation, ...
50 %
Humidité généralisée, présence d’amiante, mérule, termites ...
50 %
Toiture, murs extérieurs, châssis et portes, évacuation eau de pluie, ...
84 %
Défauts structurels, humidité localisée, salubrité, état de fonctionnement..
58 %
Halls et escaliers, caves, combles et grenier, locaux techniques, ...
88 %
Système de chauffage, eau chaude sanitaire, électricité, entretiens techniques, ...
Suivant les actes et recherches notariales, pas d'infractions urbanistiques. Attention néanmoins à des points tels que la teinte et les matériaux de châssis (remplacement en 2007 par du PVC blanc)
Certificat PEB E
La cuve à mazout été condamnée avec un PV l'attestant.
La maison se situe dans une rue relativement calme avec un trottoir large et en relativement bon état.
Il faudrait supprimer les petites plantes sauvages présentes au niveau du trottoir contre la façade.
Pas/peu de finition des abords
Le muret à l'arrière dans le jardin présente une grosse fissure dans le couvre-mur à +/- 2.00m de la façade. Nous conseillons de réparer la fissure pour empêcher l'eau de continuer à dégrader ce muret de jardin.
La terrasse est constituée de dalles de béton. L'ensemble n'est plus homogène. Nous conseillons de refaire une petite terrasse à l'arrière.
Budget entre 2.000 à 5.000 euros suivant taille et matériaux.
Le garage est très ancien et l'ensemble devrait refaire l'objet d'une rénovation. Nous conseillons notamment de refermer la fissure présente sur le mur entre le garage et le pignon. Cette fissure verticale fait l'ensemble de la façade. Elle est due probablement à un léger tassement différentiel assez ancien. Il faudrait consolider le mur porteur avant de refaire le revêtement du pignon.
Budget de 1.000 à 5.000 euros pour la réparation GO de la fissure. Le revêtement est repris dans le budget façade.
Nous constatons la présence de tôles de type éternit au niveau du garage.
Les isolations en plâtre autour des canalisations de chauffage en cave et dans le garage présentent également probablement de l'amiante. Nous conseillons idéalement la réalisation d'un audit amiante avant la réalisation de travaux.
AU niveau du sous-sol le linteau en bois est complètement mangé par les termites et les vers. Nous conseillons son remplacement par un linteau en béton.
Présence d'anciennes canalisations en plomb même si majoritairement la tuyauterie a été remplacée.
Si un peu d'humidité est présence en bas des murs de caves, c'est relativement réduit. Les caves sont globalement saines car bien ventilées.
Nous avons pu constater un peu d'humidité en bas du mur de la salle à manger en contact avec le garage ainsi que derrière les meubles de la cuisine qui sont devant le mur de façade. Probablement un petit peu d'humidité due à manque d'étanchéité de la façade. L'habitation étant restée tout l'hiver sans être chauffée, il est normal que les murs condensent dans ses points les plus froids.
Attention à la cheminée qui a tendance à basculer vers l'extérieur.
Au niveau du mur mitoyen et comme déjà souligné au niveau du garage, nous constatons une fissure longitudinale sur la quasi totalité du mur. Le cimentage a fissuré au droit de cette faiblesse. Nous conseillons de refaire la fissure puis l'entièreté du revêtement.
Idéalement et pour répondre aux besoins actuels d'économies d'énergies, nous conseillons d'isoler ce pignon avec une isolation EPS de 140mm et un enduit. Attention, cela nécessitera un permis d'urbanisme.
Le budget pour refaire un enduit sur isolation est compris entre 150 et 180 euros/m2
Outre l'enduit sur isolation sur le pignon repris ci-dessus, nous conseillons de faire les travaux de la même manière sur toutes les façades à l'arrière où les peintures ne sont plus des protections suivantes. De plus le placement de l'isolation permettra de bénéficier de primes. Attention ces travaux engendrent des conséquences notamment sur les descente d'eaux pluviales, les seuils de portes et de fenêtres, les corniches, etc...
Une alternative est de nettoyer l'ensemble de la façade, rejointoyé et repeindre. Un budget de +/- 100 euros/m2 sera nécessaire.
La toiture actuelle est relativement ancienne. Elle ne présente pas de gros désordres mais ne correspond plus aux attentes actuelles au niveau d'une toiture.
Nous conseillons de la refaire dans son entièreté afin de prévoir une isolation plus conforme aux normes actuelles avec notamment une membrane type pare-pluie.
Il faut pratiquer à une inspection visuelle de la charpente et des chevrons lors du démontage pour vérifier que les bois sont encore en bon état. Nous n'avons pas constaté de gros problèmes sur les poutres visibles.
Au niveau de l'extension de la cuisine, nous constatons que du tape a été fixé à divers endroits notamment en remplacement du faite mais aussi à la jonction d'ardoises. Cette toiture ne peut pas être considérée comme étanche.
La toiture sur le garage doit être également entièrement refaite.
Faire une toiture isolée nécessite un budget de 250-300 euros/m2 mais permet de bénéficier de primes importantes à la Région Wallonne.
Nous recommandons de refaire le cimentage de la cheminée principale. Le cimentage n'adhère plus du tout. Les solins sont assez anciens. A refaire idéalement en même temps que la toiture.
Il existe encore des châssis très anciens en bois qui doivent être remplacés:
- vélux dans les greniers
- châssis dans le garage
- châssis du WC
Attention au châssis coulissant en PVC, le système d'ouverture n'est pas optimal, il faudra probablement remplacer la poignée et réparer l système de levage pour que l'ouverture soit optimale.
Pas de tablier de volet pour le volet extérieur de la cuisine. Le cadre du volet devrait être fixé correctement à la façade.
La porte d'entrée est assez ancienne et encore munie d'un vitrage simple.
A placer à chaque niveau.
Un peu d'humidité constatée en bas du mur de la salle à manger vers garage.
Un peu d'humidité constatée en bas du mur vers la terrasse derrière les meubles.
La porte d'entrée de la cuisine devrait être remplacée.
Les meubles sont assez anciens. Il manque un tiroir.
Pas de ventilation mécanique et fenêtre très ancienne
Frotter les traces de moisissures sur les joints de la baignoire
Pas de ventilation mécanique, juste une grille basse posée dans le mur - pas idéal puisque la vapeur d'eau se trouve plutôt en partie supérieure.
Le garde-corps devrait être un peu mieux fixer. Vérifier chaque montant.
Petites traces d'humidité visible dans le grenier. On voit le jour - façade avant partie droite (gauche de la pièce)
Le vélux est très ancien et devrait être remplacé par un modèle plus récent - façade avant. Etanchéité et isolation nulle au droit de cette ouverture de toiture.
La porte intérieure vers la chambre nécessiterait un entretien et une couche de peinture.
Nous recommandons le remplacement complet de la poutre en bois servant de linteau de cave. Elle est complètement mangés par les insectes et ne présente plus un gage de sécurité suffisante. Nous conseillons de la remplacer par une poutre en béton préfabriqué. Budget max 2.000 euros
L'ensemble de la partie garage devrait être rénové. Les murs présentes des fissures et la toiture relativement ancienne devrait être refaite. Celle-ci comprend probablement des parties amiantées au niveau des tôles à l'arrière. Les gouttières ne sont plus complètes ni attachées correctement, l'eau s'écoule donc librement sur les murs.
L'étanchéité et l'isolation de cette partie de l'habitation n'est pas assurée.
A remplacer pour cette partie
L'installation électrique n'a pas été réceptionné conforme. Voir remarque de l'organisme agréé.
DATA ROOM
Nous avons mis tous les documents importants dans la date room, n’hésitez pas à télécharger ce dont vous avez besoin !
Nous avons mis tous les documents importants dans la date room, n’hésitez pas à télécharger ce dont vous avez besoin !
Besoin de crédit
Maintenant que vous êtes sûrs d’avoir fait le bon choix, calculez la valeur totale de cette acquisition (valeur du bien et frais annexes) et estimez vos besoins en crédit !
Simulation de crédit
| Prix d'achat | € |
| Rénovation | € |
| Rénovation HTVA | {{ calculeData.renovationHTVA | number:2 }} € |
| TVA | {{ calculeData.tva | number:2 }} € |
| Fonds propres | € |
| Acompte dû (disponible au compromis de vente) | {{ calculeData.prix * 0.1 | number:2 }} € |
| Reste des liquidités (disponible à l'acte) | {{ calculeData.avance | number:2 }} € |
| Crédit pont | {{ calculeData.creditPont | number:2 }} € |
| Prix de vente de votre bien existant | € |
| Solde du crédit existant | € |
| Frais d'acte d'achat | {{ calculeData.droit + calculeData.fraisNotaire | number:2 }} € |
| Droits d'enregistrement | {{ calculeData.droit | number:2 }} € |
|
Abattement
Suis-je éligible à une réduction des droits d’enregistrement ? |
|
| Frais de notaire | {{ calculeData.fraisNotaire | number:2 }} € |
| Autres frais | {{ calculeData.inscription + calculeData.fraisDossier + calculeData.autreFrais | number:2 }} € |
| Frais liés à l'acte hypothécaire | {{ calculeData.inscription | number:2 }} € |
| Frais de dossier et expertise bancaire | {{ calculeData.fraisDossier | number:2 }} € |
| Autres frais | € |
| Montant du crédit | {{ calculeData.montantCredit | number:2 }} € | |
Choix du type de crédit
| Taux | Type | CAP | Mensualité | Mensualité Min | Mensualité Max | |
|---|---|---|---|---|---|---|
| {{ tx.banque }} | {{ tx.taux | number:2 }}% | {{ tx.type }} | -{{ tx.capNeg }}%/+{{ tx.capPos }}% | {{ tx.mens | number:2 }}€ | {{ tx.min | number:2 }}€ - | {{ tx.max | number:2 }}€ - |
| Taux | Type | CAP | Mensualité | Mensualité Min | Mensualité Max | |
|---|---|---|---|---|---|---|
| {{ tx.banque }} | {{ tx.taux | number:2 }}% | {{ tx.type }} | -{{ tx.capNeg }}%/+{{ tx.capPos }}% | {{ tx.mens | number:2 }}€ | {{ tx.min | number:2 }}€ - | {{ tx.max | number:2 }}€ - |
| Taux | Type | CAP | Mensualité | Mensualité Min | Mensualité Max | |
|---|---|---|---|---|---|---|
| {{ tx.banque }} | {{ tx.taux | number:2 }}% | {{ tx.type }} | -{{ tx.capNeg }}%/+{{ tx.capPos }}% | {{ tx.mens | number:2 }}€ | {{ tx.min | number:2 }}€ - | {{ tx.max | number:2 }}€ - |
Rentabilité
Cout total de l’acquisition
| Prix d'achat | {{ calculeData.prix | number:2 }} € |
| Rénovation | + {{ calculeData.prixTransRenovation | number:2 }} € |
| Frais | + {{ calculeData.frais | number:2 }} € |
| Coût total | + {{ calculeData.frais + calculeData.prixTransRenovation + calculeData.prix | number:2 }} € |
| Fonds propres + crédit pont | {{ calculeData.totalFP+calculeData.creditPont | number:2 }} € |
| Montant du crédit | {{ calculeData.montantCredit | number:2 }} € |
| Coût total | + {{ calculeData.creditPont + calculeData.totalFP + calculeData.montantCredit | number:2 }} € |
Rentabilité sur actifs
Durée de détention année(s)
Gain réel {{ calculeData.gainReel | number:0 }} €
Rendement sur actif {{ calculeData.rendementSurActif | number:2 }} %
Revenus
| Revenu locatif annuel Brut | € |
| Charge annuelle {{ calculeData.pourcentageCharge | number:2 }}% | {{ calculeData.chargeLocatifAnnuel | number:2 }} € |
| Précompte immobilier | {{ calculeData.precomteImmo | number:2 }} € |
| Autre charge annuelle | € |
| Revenu locatif annuel net | {{ calculeData.revenuLocatifAnnuelNet | number:2 }} € |
| Total revenu locatif après {{ calculeData.dureeDetention }} année(s) tenant compte d'une inflation de % |
{{ calculeData.totalRevenuLocatif | number:2 }} € |
| Plus-value latente | {{ calculeData.pluvalueLatente | number:2 }} % |
| Plus-value du bien après {{calculeData.dureeDetention}} année(s) | {{ calculeData.pluvalueBien | number:2 }} € |
| Total revenu locatif après {{ calculeData.dureeDetention }} année(s) | {{ calculeData.totalRevenuLocatif | number:2 }} € |
| Gain brut sur le prix de base après {{ calculeData.dureeDetention }} année(s) | +{{ calculeData.gainBrut | number:2 }} € |
Charges
| Durée du crédit | {{ calculeData.duree | number:2 }} ans |
| Taux | {{ calculeData.taux | number:2 }} % |
| Mensualité | {{ calculeData.mensualite | number:2 }} € |
| Total interêts après {{calculeData.dureeDetention}} année(s) | {{ calculeData.totalInteret | number:2 }} € |
| Total frais | {{ calculeData.frais | number:2 }} € |
| Total | {{ calculeData.InteretFrais | number:2 }} € |
Gain réel
Rendement sur actif
Cash flow
| Année | Coût | Revenu locatif | Gain |
|---|---|---|---|
| {{ $index }} | {{ ch.payment | number:2 }} € | {{ ch.revenuLocatif | number:2 }} € | {{ - ch.fondPropre | number:2 }} € |
Av. Louise 433 Louizalaan 1050 Bruxelles - Brussel
Drève Richelle, 96 - 1410 Waterloo