Suis-je éligible à une réduction des droits d’enregistrement ?
Rasière Duplex
PRIX : 320 000 €
Type: Appartement | Région: Bruxelles | Commune: Bruxelles
Superbe duplex de 5 chambres situé au 3e et 4e étage sans ascenseur. L'appartement se compose comme suit : Couloir desservant 2 chambres, le salon/salle à manger, la cuisine équipée et la salle de douche avec wc. A l'étage, 3 chambres. Le duplex se trouve dans une petite copropriété.
Surface habitable: 134.02 m²
Chambres: 5
Salle de douche: 1
VISITE VIRTUELLE
Vous voulez en voir plus ? Visitez le bien comme si vous y étiez à travers cette visite virtuelle
Localisation
Ce bien vous correspond ? Découvrez maintenant si sa localisation vous convient !
Commerces
Pharmacies
Restaurants
Boulangeries
Crèches
Parcs
Écoles
Universités
Déplacements
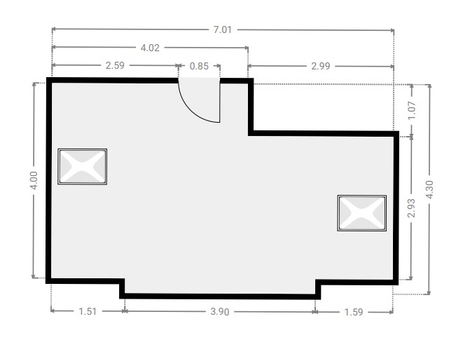
Plans intérieurs
3e étage
SURFACE TOTALE : 78.85 m² | SURFACE HABITABLE : 78.85 m² | PIÈCES : 7
1x Séjour
1x Cuisine
1x S.D.D
1x Couloir
1x Placard
2x Chambres
Séjour
SURFACE : 20.51 m²
Cuisine
SURFACE : 11.56 m²
S.D.D
SURFACE : 6.51 m²
Couloir
SURFACE : 6.97 m²
Chambre 2
SURFACE : 15.45 m²
Placard
SURFACE : 1.08 m²
Chambre 1
SURFACE : 16.82 m²
4e étage
SURFACE TOTALE : 55.17 m² | SURFACE HABITABLE : 55.17 m² | PIÈCES : 4
3x Chambres
1x Couloir
Chambre 3
SURFACE : 15.25 m²
Chambre 4
SURFACE : 11.58 m²
Couloir
SURFACE : 2.37 m²
Chambre 5
SURFACE : 26 m²
RECHERCHE CADASTRALE
Vous souhaitez mieux connaître votre parcelle et connaître la surface dont vous jouirez en achetant ce bien, alors consulter le cadastre est nécessaire !
État des sols
La pollution du sol a un impact sur l'environnement et sur la santé, les risques d’inondation ont un impact sur votre qualité de vie… Consultez les données relatives à ce bien pour en avoir le cœur net !
ÉTAT DE LA POLLUTION DES SOLS
Aucune remarque particulière pour la parcelle K912b
Source : Cliquez-ici
Légende :
ZONE INONDABLE
Aucune remarque particulière pour la parcelle K912b
Source : Cliquez-ici
Légende :
Certificats
Informez-vous sur la performance énergétique de ce bien et assurez-vous que ses installations électriques sont bien aux normes !
PERFORMANCE ÉNERGÉTIQUE
Économe
Très énergivore
CERTIFICATEUR ÉLECTRIQUE
PROCES VERBAL D’EXAMEN DE CONFORMITE ET/OU DE VISITE DE CONTROLE D’UNE INSTALLATION ELECTRIQUE BASSE TENSION
La nouvelle installation Non conforme
Agent
visiteur
Mohamed Izmar
Date
de certification
21/02/2023
Doit être
contrôlée avant
21/02/2024
DATA ROOM
Nous avons mis tous les documents importants dans la date room, n’hésitez pas à télécharger ce dont vous avez besoin !
Nous avons mis tous les documents importants dans la date room, n’hésitez pas à télécharger ce dont vous avez besoin !
Besoin de crédit
Maintenant que vous êtes sûrs d’avoir fait le bon choix, calculez la valeur totale de cette acquisition (valeur du bien et frais annexes) et estimez vos besoins en crédit !
Simulation de crédit
| Prix d'achat | € |
| Rénovation | € |
| Rénovation HTVA | {{ calculeData.renovationHTVA | number:2 }} € |
| TVA | {{ calculeData.tva | number:2 }} € |
| Fonds propres | € |
| Acompte dû (disponible au compromis de vente) | {{ calculeData.prix * 0.1 | number:2 }} € |
| Reste des liquidités (disponible à l'acte) | {{ calculeData.avance | number:2 }} € |
| Crédit pont | {{ calculeData.creditPont | number:2 }} € |
| Prix de vente de votre bien existant | € |
| Solde du crédit existant | € |
| Frais d'acte d'achat | {{ calculeData.droit + calculeData.fraisNotaire | number:2 }} € |
| Droits d'enregistrement | {{ calculeData.droit | number:2 }} € |
|
Abattement
Suis-je éligible à une réduction des droits d’enregistrement ? |
|
| Frais de notaire | {{ calculeData.fraisNotaire | number:2 }} € |
| Autres frais | {{ calculeData.inscription + calculeData.fraisDossier + calculeData.autreFrais | number:2 }} € |
| Frais liés à l'acte hypothécaire | {{ calculeData.inscription | number:2 }} € |
| Frais de dossier et expertise bancaire | {{ calculeData.fraisDossier | number:2 }} € |
| Autres frais | € |
| Montant du crédit | {{ calculeData.montantCredit | number:2 }} € | |
La présente simulation se base sur un taux d’intérêt du 12/10/2023. Ce calcul est indicatif et sujet à changement.
Choix du type de crédit
| Taux | Type | CAP | Mensualité | Mensualité Min | Mensualité Max | |
|---|---|---|---|---|---|---|
| {{ tx.banque }} {{ $index+1 }} | {{ tx.taux | number:2 }}% | {{ tx.type }} | -{{ tx.capNeg }}%/+{{ tx.capPos }}% | {{ tx.mens | number:2 }}€ | {{ tx.min | number:2 }}€ | {{ tx.max | number:2 }}€ |
| Taux | Type | CAP | Mensualité | Mensualité Min | Mensualité Max | |
|---|---|---|---|---|---|---|
| {{ tx.banque }} {{ $index+1 }} | {{ tx.taux | number:2 }}% | {{ tx.type }} | -{{ tx.capNeg }}%/+{{ tx.capPos }}% | {{ tx.mens | number:2 }}€ | {{ tx.min | number:2 }}€ | {{ tx.max | number:2 }}€ |
| Taux | Type | CAP | Mensualité | Mensualité Min | Mensualité Max | |
|---|---|---|---|---|---|---|
| {{ tx.banque }} {{ $index+1 }} | {{ tx.taux | number:2 }}% | {{ tx.type }} | -{{ tx.capNeg }}%/+{{ tx.capPos }}% | {{ tx.mens | number:2 }}€ | {{ tx.min | number:2 }}€ | {{ tx.max | number:2 }}€ |
Rentabilité
Cout total de l’acquisition
| Prix d'achat | {{ calculeData.prix | number:2 }} € |
| Rénovation | + {{ calculeData.prixTransRenovation | number:2 }} € |
| Frais | + {{ calculeData.frais | number:2 }} € |
| Coût total | + {{ calculeData.frais + calculeData.prixTransRenovation + calculeData.prix | number:2 }} € |
| Fonds propres + crédit pont | {{ calculeData.totalFP+calculeData.creditPont | number:2 }} € |
| Montant du crédit | {{ calculeData.montantCredit | number:2 }} € |
| Coût total | + {{ calculeData.creditPont + calculeData.totalFP + calculeData.montantCredit | number:2 }} € |
Rentabilité sur actifs
Durée de détention année(s)
Gain réel {{ calculeData.gainReel | number:0 }} €
Rendement sur actif {{ calculeData.rendementSurActif | number:2 }} %
Revenus
| Revenu locatif annuel Brut | € |
| Charge annuelle {{ calculeData.pourcentageCharge | number:2 }}% | {{ calculeData.chargeLocatifAnnuel | number:2 }} € |
| Précompte immobilier | {{ calculeData.precomteImmo | number:2 }} € |
| Autre charge annuelle | € |
| Revenu locatif annuel net | {{ calculeData.revenuLocatifAnnuelNet | number:2 }} € |
| Total revenu locatif après {{ calculeData.dureeDetention }} année(s) tenant compte d'une inflation de % |
{{ calculeData.totalRevenuLocatif | number:2 }} € |
| Plus-value latente | {{ calculeData.pluvalueLatente | number:2 }} % |
| Plus-value du bien après {{calculeData.dureeDetention}} année(s) | {{ calculeData.pluvalueBien | number:2 }} € |
| Total revenu locatif après {{ calculeData.dureeDetention }} année(s) | {{ calculeData.totalRevenuLocatif | number:2 }} € |
| Gain brut sur le prix de base après {{ calculeData.dureeDetention }} année(s) | +{{ calculeData.gainBrut | number:2 }} € |
Charges
| Durée du crédit | {{ calculeData.duree | number:2 }} ans |
| Taux | {{ calculeData.taux | number:2 }} % |
| Mensualité | {{ calculeData.mensualite | number:2 }} € |
| Total interêts après {{calculeData.dureeDetention}} année(s) | {{ calculeData.totalInteret | number:2 }} € |
| Total frais | {{ calculeData.frais | number:2 }} € |
| Total | {{ calculeData.InteretFrais | number:2 }} € |
Gain réel
Rendement sur actif
Cash flow
| Année | Coût | Revenu locatif | Gain |
|---|---|---|---|
| {{ $index }} | {{ ch.payment | number:2 }} € | {{ ch.revenuLocatif | number:2 }} € | {{ - ch.fondPropre | number:2 }} € |
Av. Louise 433 Louizalaan 1050 Bruxelles - Brussel
Drève Richelle, 96 - 1410 Waterloo