Suis-je éligible à une réduction des droits d’enregistrement ?
Queen B
PRIX : 495 000,00€
Type: Appartement | Région: Bruxelles | Commune: Bruxelles
Situé à la prestigieuse Avenue Louise, à deux pas de l'Abbaye, du bois de la Cambre et du Jardin du roi, By The Way vous propose ce magnifique et lumineux appartement traversant d'environ 143m2 bruts selon PEB. Idéalement positionné au 9e étage avec ascenseur, il bénéficie de belles vues dégagées et se compose comme suit: un hall d'entrée/vestiaire donnant accès à un spacieux séjour de +/- 55m2 avec terrasse, une cuisine, un hall de nuit donnant sur une première chambre de +/- 16m2, un WC séparé, une deuxième chambre de +/- 11m² avec terrasse, un bureau de +/- 7m2 et une salle de bains avec WC. L'appartement dispose de nombreux espaces de rangement et d'une cave privative. Conciergerie, porte blindée, local poubelle, nouvelle chaudière au gaz commune et nouveaux châssis PVC double vitrage, PEB «D- », électricité non-conforme. CHARGES : de +/- 543€/mois comprenant : Charges communes de l'immeuble, provisions de chauffage et eau privatifs, administration, assurances, syndic. Possibilité d'acquérir en option 1 ou 2 garages box dans l'immeuble (55.000€/unité).
Surface habitable: 126.70 m²
Surface totale: 133.34 m²
Chambres: 2
Salle de bain: 1
Terrasses: 3
Bureau: 1
Vidéo
Découvrez le bien en visualisant cette vidéo
VISITE VIRTUELLE
Vous voulez en voir plus ? Visitez le bien comme si vous y étiez à travers cette visite virtuelle
Localisation
Ce bien vous correspond ? Découvrez maintenant si sa localisation vous convient !
Commerces
Pharmacies
Restaurants
Boulangeries
Crèches
Parcs
Écoles
Universités
Déplacements
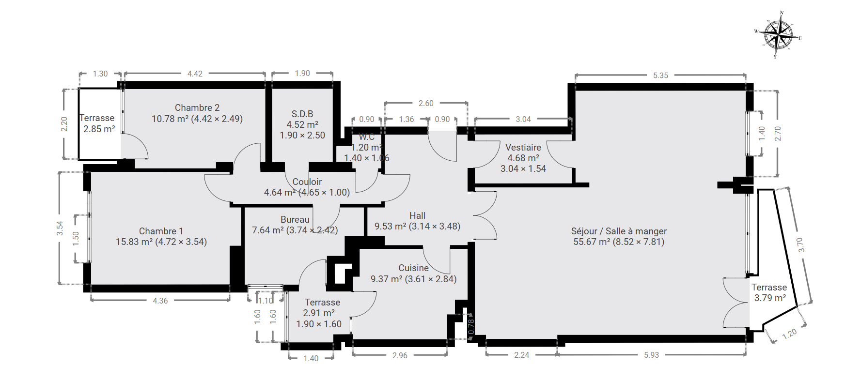
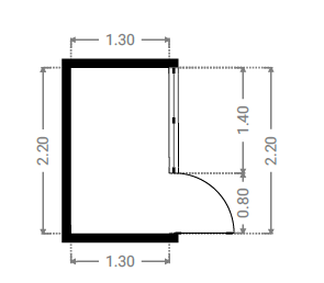
Plans intérieurs
9e étage
SURFACE TOTALE : 133.34 m² | SURFACE HABITABLE : 126.70 m² | PIÈCE(S) : 11
1x Séjour / Salle à manger
3x Terrasses
1x Vestiaire
1x Hall
1x Cuisine
1x W.C
1x Couloir
1x S.D.B
2x Chambres
1x Bureau
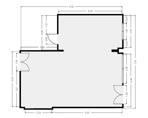
Séjour / Salle à manger
SURFACE : 55.67 m²
Terrasse
SURFACE : 3.79 m²
Vestiaire
SURFACE : 4.68 m²
Hall
SURFACE : 9.53 m²
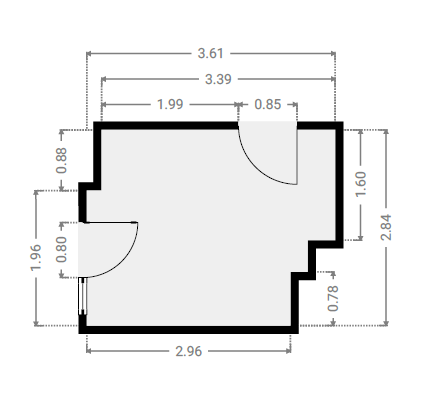
Cuisine
SURFACE : 9.37 m²
W.C
SURFACE : 1.2 m²
Couloir
SURFACE : 4.64 m²
S.D.B
SURFACE : 4.52 m²
Chambre 2
SURFACE : 10.78 m²
Terrasse
SURFACE : 2.85 m²
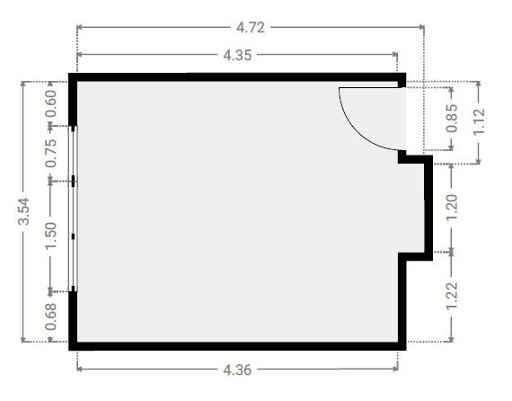
Chambre 1
SURFACE : 15.83 m²
Bureau
SURFACE : 7.64 m²
Terrasse
SURFACE : 2.91 m²
RECHERCHE CADASTRALE
Vous souhaitez mieux connaître votre parcelle et connaître la surface dont vous jouirez en achetant ce bien, alors consulter le cadastre est nécessaire !
État des sols
La pollution du sol a un impact sur l'environnement et sur la
santé, les risques d’inondation ont un impact sur votre qualité de vie… Consultez les données
relatives à ce bien pour en avoir le cœur net !
ÉTAT DE LA POLLUTION DES SOLS
Aucune remarque particulière pour la parcelle R222b6
Source : Cliquez-ici
Légende :
ZONE INONDABLE
Aucune remarque particulière pour la parcelle R222b6
Source : Cliquez-ici
Légende :
Certificats
Informez-vous sur la performance énergétique de ce bien et assurez-vous que ses installations électriques sont bien aux normes !
PERFORMANCE ÉNERGÉTIQUE
Économe
Très énergivore
CERTIFICAT ÉLECTRIQUE
PROCES VERBAL D’EXAMEN DE CONFORMITE ET/OU DE VISITE DE CONTROLE D’UNE INSTALLATION ELECTRIQUE BASSE TENSION
La nouvelle installation Non Conforme
Agent
visiteur
Jean-Philippe Carnoy
Date
de certification
04/04/2024
Visite de contrôle
à effectuer avant le
04/04/2025
SYNTHÈSE DES CHARGES
Des dépenses seront nécessairement engagées pour l’administration de la copropriété, son entretien, l’installation d’équipements et la maintenance de ces derniers. Evaluez dès à présent le montant de vos charges mensuelles !
Assemblées générales
Extrait des derniers procès-Verbaux des assemblées générales
Charges et répartition
1- Charges
Ce tableau des charges comprend : Communs généraux et privés – Appel de fonds – Nettoyage et entretien - Assurances – syndic – frais de gestion
| 2023 | |||
| T1 | T2 | T3 | T4 |
| 2282 € | 1425 € | 1240 € | 1560 € |
2- Répartition des charges - ACP louise 437 - 2022
DATA ROOM
Nous avons mis tous les documents importants dans la date room, n’hésitez pas à télécharger ce dont vous avez besoin !
Nous avons mis tous les documents importants dans la date room, n’hésitez pas à télécharger ce dont vous avez besoin !
Besoin de crédit
Maintenant que vous êtes sûrs d’avoir fait le bon choix, calculez la valeur totale de cette acquisition (valeur du bien et frais annexes) et estimez vos besoins en crédit !
Simulation de crédit
| Prix d'achat | € |
| Rénovation | € |
| Rénovation HTVA | {{ calculeData.renovationHTVA | number:2 }} € |
| TVA | {{ calculeData.tva | number:2 }} € |
| Fonds propres | € |
| Acompte dû (disponible au compromis de vente) | {{ calculeData.prix * 0.1 | number:2 }} € |
| Reste des liquidités (disponible à l'acte) | {{ calculeData.avance | number:2 }} € |
| Crédit pont | {{ calculeData.creditPont | number:2 }} € |
| Prix de vente de votre bien existant | € |
| Solde du crédit existant | € |
| Frais d'acte d'achat | {{ calculeData.droit + calculeData.fraisNotaire | number:2 }} € |
| Droits d'enregistrement | {{ calculeData.droit | number:2 }} € |
|
Abattement
Suis-je éligible à une réduction des droits d’enregistrement ? |
|
| Frais de notaire | {{ calculeData.fraisNotaire | number:2 }} € |
| Autres frais | {{ calculeData.inscription + calculeData.fraisDossier + calculeData.autreFrais | number:2 }} € |
| Frais liés à l'acte hypothécaire | {{ calculeData.inscription | number:2 }} € |
| Frais de dossier et expertise bancaire | {{ calculeData.fraisDossier | number:2 }} € |
| Autres frais | € |
| Montant du crédit | {{ calculeData.montantCredit | number:2 }} € | |
La présente simulation se base sur un taux d’intérêt du 10/06/2024. Ce calcul est indicatif et sujet à changement.
Choix du type de crédit
| Taux | Type | CAP | Mensualité | Mensualité Min | Mensualité Max | |
|---|---|---|---|---|---|---|
| {{ tx.banque }} {{ $index+1 }} | {{ tx.taux | number:2 }}% | {{ tx.type }} | -{{ tx.capNeg }}%/+{{ tx.capPos }}% | {{ tx.mens | number:2 }}€ | {{ tx.min | number:2 }}€ | {{ tx.max | number:2 }}€ |
| Taux | Type | CAP | Mensualité | Mensualité Min | Mensualité Max | |
|---|---|---|---|---|---|---|
| {{ tx.banque }} {{ $index+1 }} | {{ tx.taux | number:2 }}% | {{ tx.type }} | -{{ tx.capNeg }}%/+{{ tx.capPos }}% | {{ tx.mens | number:2 }}€ | {{ tx.min | number:2 }}€ | {{ tx.max | number:2 }}€ |
| Taux | Type | CAP | Mensualité | Mensualité Min | Mensualité Max | |
|---|---|---|---|---|---|---|
| {{ tx.banque }} {{ $index+1 }} | {{ tx.taux | number:2 }}% | {{ tx.type }} | -{{ tx.capNeg }}%/+{{ tx.capPos }}% | {{ tx.mens | number:2 }}€ | {{ tx.min | number:2 }}€ | {{ tx.max | number:2 }}€ |
Rentabilité
Cout total de l’acquisition
| Prix d'achat | {{ calculeData.prix | number:2 }} € |
| Rénovation | + {{ calculeData.prixTransRenovation | number:2 }} € |
| Frais | + {{ calculeData.frais | number:2 }} € |
| Coût total | + {{ calculeData.frais + calculeData.prixTransRenovation + calculeData.prix | number:2 }} € |
| Fonds propres + crédit pont | {{ calculeData.totalFP+calculeData.creditPont | number:2 }} € |
| Montant du crédit | {{ calculeData.montantCredit | number:2 }} € |
| Coût total | + {{ calculeData.creditPont + calculeData.totalFP + calculeData.montantCredit | number:2 }} € |
Rentabilité sur actifs
Durée de détention année(s)
Gain réel {{ calculeData.gainReel | number:0 }} €
Rendement sur actif {{ calculeData.rendementSurActif | number:2 }} %
Revenus
| Revenu locatif annuel Brut | € |
| Charge annuelle {{ calculeData.pourcentageCharge | number:2 }}% | {{ calculeData.chargeLocatifAnnuel | number:2 }} € |
| Précompte immobilier | {{ calculeData.precomteImmo | number:2 }} € |
| Autre charge annuelle | € |
| Revenu locatif annuel net | {{ calculeData.revenuLocatifAnnuelNet | number:2 }} € |
| Total revenu locatif après {{ calculeData.dureeDetention }} année(s) tenant compte d'une inflation de % |
{{ calculeData.totalRevenuLocatif | number:2 }} € |
| Plus-value latente | {{ calculeData.pluvalueLatente | number:2 }} % |
| Plus-value du bien après {{calculeData.dureeDetention}} année(s) | {{ calculeData.pluvalueBien | number:2 }} € |
| Total revenu locatif après {{ calculeData.dureeDetention }} année(s) | {{ calculeData.totalRevenuLocatif | number:2 }} € |
| Gain brut sur le prix de base après {{ calculeData.dureeDetention }} année(s) | +{{ calculeData.gainBrut | number:2 }} € |
Charges
| Durée du crédit | {{ calculeData.duree | number:2 }} ans |
| Taux | {{ calculeData.taux | number:2 }} % |
| Mensualité | {{ calculeData.mensualite | number:2 }} € |
| Total interêts après {{calculeData.dureeDetention}} année(s) | {{ calculeData.totalInteret | number:2 }} € |
| Total frais | {{ calculeData.frais | number:2 }} € |
| Total | {{ calculeData.InteretFrais | number:2 }} € |
Gain réel
Rendement sur actif
Cash flow
| Année | Coût | Revenu locatif | Gain |
|---|---|---|---|
| {{ $index }} | {{ ch.payment | number:2 }} € | {{ ch.revenuLocatif | number:2 }} € | {{ - ch.fondPropre | number:2 }} € |
Av. Louise 461 1050 Bruxelles - 02 648 01 20
Drève Richelle 96 1410 Waterloo - 02 354 29 39
Av. Prekelinden 83 1200 Woluwe-St-Lambert - 02 734 00 36