Kom ik in aanmerking voor belastingvermindering ?
Pré Fleuri
PRIJS : 378 000 €
Type: Appartement | Regio: Flandre | Gemeente: Kraainem
Ideaal gelegen op 500 m. uit Woluwe, zeer mooi appartement in bijna nieuwstaat op de 1ste verdieping van 3 van een recent gebouw (2003) bestaande uit: inkomhal met vestiaire, toilet en wasplaats, woonkamer met volledig ingerichte open keuken van 37 m² uitgevend op een mooie terras van 9 m² op het zuidoosten met zicht op de velden. Nachthal met toegang tot 2 slaapkamers van 15 en 10 m² en de grote (6,5 m²) badkamer met ligbad en douche. Individuele gasboiler, zeer lage maandelijkse gemeenschappelijke lasten (110 €). Dubbele beglazing, conform elektrisch attest, EPC 'B', zeer energiezuinig appartement dankzij het medisch centrum op het gelijkvloers dat veel verwarmt. Geen werk nodig. In de kelder, kelder inbegrepen en optionele parkeerplaats (€ 25.000).
Kraainem = gemeente met gemak en slechts 3% inschrijvingsgeld en fiscaal aantrekkelijk. Pal naast het winkelcentrum Kraainem met Delhaize & Auto 5, Carrefour, Brico e.a., nabij scholen, kinderdagverblijven, sportcentrum Mounier, tram 39, de ring, 700 m. van metro Kraainem, Sint-Lukas/UCL, nabij Stokkel, restaurants...etc. Alles is binnen handbereik!
Totale Oppervlakte: 84.96 M²
Woonoppervlak: 75.42 m²
Slaapkamers: 2
badkamer: 1
Garage: 1
balkon: 1
VIDEO PRESENTATIE
Découvrez le bien en visualisant cette vidéo
VIRTUEEL BEZOEK
Vous voulez en voir plus ? Visitez le bien comme si vous y étiez à travers cette visite virtuelle
OMGEVING
Ce bien vous correspond ? Découvrez maintenant si sa localisation vous convient !
Supermarkt
Apotheek
Restaurant
Bakkerij
Kinderdagverblijf
Park
Scholen
Universiteiten
Verplaatsingen
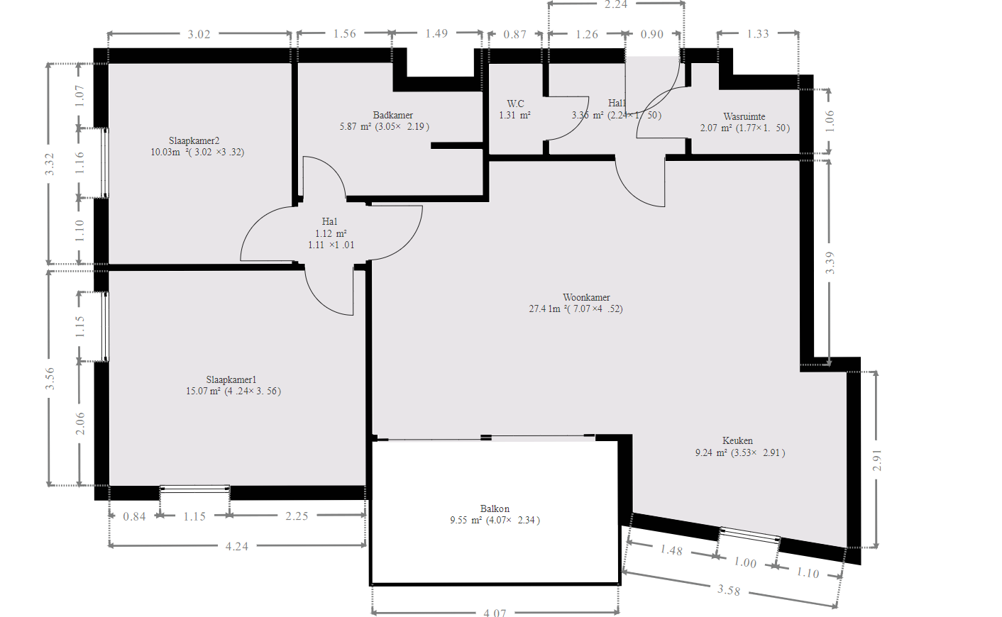
INTERIEUR PLANNEN
1e verdieping
TOTALE OPPERVLAKTE : 84.96 m² | WOONRUIMTE : 75.42 m² | kAMERS : 9
2xSlaapkamers
1x corridor
1x Badkamer
1x Woonkamer
1x Keuken
1x Balkon
1x Wasruimte
1x Hal
Slaapkamer 2
OPPERVLAKTE : 10.03 m²
Slaapkamer 1
OPPERVLAKTE : 15.07 m²
Gang
OPPERVLAKTE : 1.12 m²
Badkamer
OPPERVLAKTE : 5.87 m²
Woonkamer
OPPERVLAKTE : 27.41 m²
Keuken
OPPERVLAKTE : 9.24 m²
Balkon
OPPERVLAKTE : 9.55 m²
Wasruimte
OPPERVLAKTE : 2.07 m²
Hal
OPPERVLAKTE : 3.36 m²
W.C
OPPERVLAKTE : 1.31 m²
KADASTRAAL ZOEKEN
Vous souhaitez mieux connaître votre parcelle et connaître la surface dont vous jouirez en achetant ce bien, alors consulter le cadastre est nécessaire !
Oppervlak : 924.12 m²
Verhaallijn : B60d2
CERTIFICATEN
Informez-vous sur la performance énergétique de ce bien et assurez-vous que ses installations électriques sont bien aux normes !
ENERGIEPRESTATIES
Zeer zuinig
Zeer energieverslindennd
ELEKTRISCH CERTIFICAAT
VERSLAG VAN HET CONFORMITEITSONDERZOEK EN/OF DE INSPECTIE VAN EEN ELEKTRISCHE LAAGSPANNINGSINSTALLATIE
De bestaande installatieConform
Bezoekende
agent
CARL VANDERVOST
Datum
26/05/2023
Volgend
controlebezoek
26/05/2048
OVERZICHT VAN DE KOSTEN
Des dépenses seront nécessairement engagées pour l’administration de la copropriété, son entretien, l’installation d’équipements et la maintenance de ces derniers. Evaluez dès à présent le montant de vos charges mensuelles !
Algemene vergaderingen
Uittreksel uit de laatste notulen van algemene vergaderingen
Financeiële kosten
1- Kosten
Deze tabel met onkosten omvat : Algemene nutsvoorzieningen, verwarming en water, honoraria, administratie, afroepen van gelden, verzekeringen en bankkosten.
| 2021 | |||
| T1 | T2 | T3 | T4 |
| 277 € | 260 € | 260 € | 260 € |
| 2022 | |||
| T1 | T2 | T3 | T4 |
| 59 € | € | 329 € | 329 € |
2- Kosten distributie - ACP wezembeek 106 - 2021 / 2022
DATA ROOM
Nous avons mis tous les documents importants dans la date room, n’hésitez pas à Downloaden ce dont vous avez besoin !
Nous avons mis tous les documents importants dans la date room, n’hésitez pas à télécharger ce dont vous avez besoin !
BEREKEN UW KREDIETBEHOEFTE
Maintenant que vous êtes sûrs d’avoir fait le bon choix, calculez la valeur totale de cette acquisition (valeur du bien et frais annexes) et estimez vos besoins en crédit !
Kredietsimulatie
| Aankoopprijs | € |
| Renovatie | € |
| Renovatie excl. btw | {{ calculeData.renovationHTVA | number:2 }} € |
| BTW | {{ calculeData.tva | number:2 }} € |
| Eigen fondsen | € |
| Te betalen waarborgsom (beschikbaar bij de verkoopovereenkomst) | {{ calculeData.prix * 0.1 | number:2 }} € |
| Resterende liquide middelen (besschikbaar op de verkoop) | {{ calculeData.avance | number:2 }} € |
| Overbruggingskrediet | {{ calculeData.creditPont | number:2 }} € |
| Aankooprijs | € |
| Bestaand tegoed | € |
| Aankooprechten | {{ calculeData.droit + calculeData.fraisNotaire | number:2 }} € |
| Verkooprechten | {{ calculeData.droit | number:2 }} € |
|
Vermindering
Kom ik in aanmerking voor vermindering van het inschrijfgeld? |
|
| Notariskosten | {{ calculeData.fraisNotaire | number:2 }} € |
| Andere kosten | {{ calculeData.inscription + calculeData.fraisDossier + calculeData.autreFrais | number:2 }} € |
| Kosten in verband met de hypotheekakte | {{ calculeData.inscription | number:2 }} € |
| Administratiekosten en bankexpertise | {{ calculeData.fraisDossier | number:2 }} € |
| Andere kosten | € |
| ONTLEEND BEDRAG | {{ calculeData.montantCredit | number:2 }} € | |
Keuze soort krediet
| Tarief | Type | Pet | Maandelijkse betaling | MMaandelijkse betaling Min | Maandelijkse betaling Max | |
|---|---|---|---|---|---|---|
| {{ tx.banque }} | {{ tx.taux | number:2 }}% | {{ tx.type }} | -{{ tx.capNeg }}%/+{{ tx.capPos }}% | {{ tx.mens | number:2 }}€ | {{ tx.min | number:2 }}€ - | {{ tx.max | number:2 }}€ - |
| Tarief | Type | Pet | Maandelijkse betaling | Maandelijkse betaling Min | Maandelijkse betaling Max | |
|---|---|---|---|---|---|---|
| {{ tx.banque }} | {{ tx.taux | number:2 }}% | {{ tx.type }} | -{{ tx.capNeg }}%/+{{ tx.capPos }}% | {{ tx.mens | number:2 }}€ | {{ tx.min | number:2 }}€ - | {{ tx.max | number:2 }}€ - |
| Tarief | Type | Pet | Maandelijkse betaling | Maandelijkse betaling Min | Maandelijkse betaling Max | |
|---|---|---|---|---|---|---|
| {{ tx.banque }} | {{ tx.taux | number:2 }}% | {{ tx.type }} | -{{ tx.capNeg }}%/+{{ tx.capPos }}% | {{ tx.mens | number:2 }}€ | {{ tx.min | number:2 }}€ - | {{ tx.max | number:2 }}€ - |
RENTABILITEIT
Cout total de l’acquisition
| Aankoopprijs | {{ calculeData.prix | number:2 }} € |
| Renovatie | + {{ calculeData.prixTransRenovation | number:2 }} € |
| Kosten | + {{ calculeData.frais | number:2 }} € |
| Totale kostprijs | + {{ calculeData.frais + calculeData.prixTransRenovation + calculeData.prix | number:2 }} € |
| Eigen middelen + overbruggingskrediet | {{ calculeData.totalFP+calculeData.creditPont | number:2 }} € |
| Ontleend bedrag | {{ calculeData.montantCredit | number:2 }} € |
| Totale kostprijs | + {{ calculeData.creditPont + calculeData.totalFP + calculeData.montantCredit | number:2 }} € |
Rendement op activa
Duur van detentie jaar (jaren)
WERKELIJKE WINST {{ calculeData.gainReel | number:0 }} €
RENDEMENT OP ACTIVA {{ calculeData.rendementSurActif | number:2 }} %
Omzet
| Jaarlijkse bruto huurinkomsten | € |
| Jaarlijkse lasten {{ calculeData.pourcentageCharge | number:2 }}% | {{ calculeData.chargeLocatifAnnuel | number:2 }} € |
| Onroerend goed belasting | {{ calculeData.precomteImmo | number:2 }} € |
| Andere jaarlijkse lasten | € |
| Jaarlijkse netto huurinkomsten | {{ calculeData.revenuLocatifAnnuelNet | number:2 }} € |
| Totale huurinkomsten na {{ calculeData.dureeDetention }} jaar rekening houdend met een inflatie van % | {{ calculeData.totalRevenuLocatif | number:2 }} € |
| Niet-gerealiseerde meerwaarde | {{ calculeData.pluvalueLatente | number:2 }} % |
| Meerwaarde van het pand na {{calculeData.dureeDetention}} jaar | {{ calculeData.pluvalueBien | number:2 }} € |
| Totale huurinkomsten na {{ calculeData.dureeDetention }} jaar | {{ calculeData.totalRevenuLocatif | number:2 }} € |
| Bruto winst op de basisprijs na {{ calculeData.dureeDetention }} jaar | +{{ calculeData.gainBrut | number:2 }} € |
Uitgaven
| Looptijd | {{ calculeData.duree | number:2 }} jaar |
| Tarief | {{ calculeData.taux | number:2 }} % |
| Maandlast | {{ calculeData.mensualite | number:2 }} € |
| Totale intrestlast na {{calculeData.dureeDetention}} jaar | {{ calculeData.totalInteret | number:2 }} € |
| Totale kosten | {{ calculeData.frais | number:2 }} € |
| Totaal | {{ calculeData.InteretFrais | number:2 }} € |
Winstrol
Rendement op activa
Cash flow
| Jaar | Kosten | Huurinkomsten | Verdienen |
|---|---|---|---|
| {{ $index }} | {{ ch.payment | number:2 }} € | {{ ch.revenuLocatif | number:2 }} € | {{ - ch.fondPropre | number:2 }} € |
BRUSSEL AGENTSCHAP Louizalaan 433 - 1050 Brussel
LA HULPE AGENTSCHAP Brusselsesteenweg 21 - 1310 Terhulp