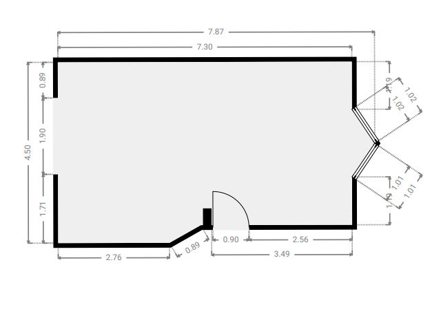
Repris dans la zone de bruit des axes routiers principaux en 2017 - zone faible à très faible (de 50 à 59 dB)
Voir rapport de réception Certinergie du 11/04/2023
Un chaudière gaz a été installée récemment, c'est donc considéré comme conforme.
L'ancienne cuve à mazout est encre présente mais n'est plus opérationnelle. Elle n'a pas été condamnée.
Les murs extérieurs nécessiteraient une mise en peinture de rafraîchissement.
Enlever les mauvaises herbes au niveau des joints et si nécessaire refaire les joints qui ne seraient plus en bon état. Nettoyer autour de l'avaloir.
L'ancienne isolation en plâtre sur les canalisations de chauffage comprend probablement de l'amiante. Nous conseillons de l'enlever et de le remplacer par de nouvelles isolations en polyéthylène. Budget entre 500 et 1.000 euros.
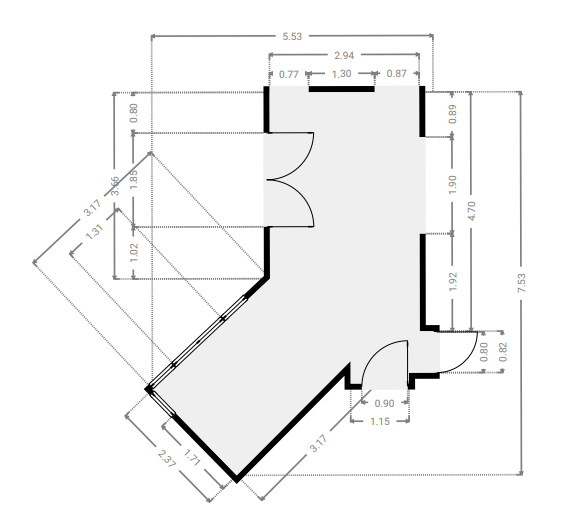
La maison est relativement saine mais présente plusieurs points d'attention au niveau de l'humidité.
1) Nous avons constaté au niveau du WC du RDC beaucoup d'humidité sur le mur côté SDB. Nous constatons que cela correspond à la position de la gouttière de la plate-forme au niveau de la rue latérale. Dans un premier temps, nous recommandons de revoir la sortie et de l'allonger via un coude au niveau de la voirie publique, cela permettra d'éloigner l'eau du mur. Budget maximum 500 euros. Si l'humidité persiste, vérifier l'étanchéité du mur extérieur et des raccords au niveau de l'avaloir de la toiture.
2) Nous constatons un peu d'humidité des murs de caves. Rien d'anormal pour des caves d'une bâtisse de construction plus ancienne. Les murs ne sont pas protégés à l'extérieur contre l'humidité. Si l'acquéreur veut assainir les caves, il devra probablement réaliser des infiltrations et des cimentages localisés. Budget de 15.000 à 20.000 euros.
Les caves peuvent également être laissées en état mais nous conseillons de les passer à la brosse métallique et de les peindre avec une peinture prévue à cet effet. Budget de 3.000 à 5.000 euros.
Présences de petites fissures au niveau du revêtement de la façade arrière. Il faudra prévoir une réparation de l'enduit dans un délais de maximum 5 ans afin d'éviter l'accentuation de la fissuration avec les cycles gel/dégel.
Dans le cadre d'une rénovation énergétique la pose d'un enduit sur isolation permettra de remédier au au problème tout en améliorant la PEB du bâtiment. Ces travaux permettront de bénéficier de primes.
Les peintures sont amorties. Il faudra prévoir à terme une peinture sur l'ensemble des maçonneries.
Dans le cadre d'une rénovation énergétique, nous conseillons surtout la pose d'un nouveau revêtement avec isolation. Un système d'enduit sur isolation en polystyrène expansé (budget entre 115 à 130 euros/m2).
Présence de panneaux solaires sur la plus grande partie des la toiture.
Nous recommandons une nouvelle protection des boiseries au niveau des rives.
Voir le problème des rives ci-dessus.
Les châssis datent de 1996 à 2008. Pas de grille d'aération prévue. Elles seront nécessaires en cas de rénovation énergétique afin d'assurer une bonne aération de la maison.
Porte de plus de 20 ans. Faible coupure thermique et présences de traces de moisissures à nettoyer au niveau des charnières.
Il n'y a pas de coupure thermique au droit du seuil dans le living - façade avant. Par faible température il y a des risques de condensation. Le détail est complètement à revoir lors du remplacement de châssis.
Attention à la hauteur des garde-corps. Les fenêtres présentent un léger rebord et le garde-corps extérieur est trop bas par rapport à la fenêtre. Nous conseillons de remplacer la poignée par une poignée à clé pur des raisons de sécurité. Prix de 350 à 500 euros.
Voir rubrique humidité.
Ventilation naturelle - prévoir une ventilation mécanique dans le cadre d'une rénovation énergétique.
Voir rubrique humidité
Les panneaux de faux-plafond sont à remplacer. Nous conseillons d'en profiter pour isoler le plafond du garage. Budget 50 euros/m 2
Pas de remarque particulière. Attention les murs sont habillés de panneaux gyproc.
La chaudière à condensation de marque Bosh date de 2020. Attention à l'évacuation des condensats. Nous recommandons également d'isoler toutes les canalisations de chauffage.
Présence de 37 panneaux solaires couvrant largement la consommation standard d'une habitation pour 4 personnes.
