Suis-je éligible à une réduction des droits d’enregistrement ?
Penthouse Tour & Taxis
PRIX : 1 400 000 €
Type: Appartement | Région: Bruxelles | Commune: Bruxelles
Splendide penthouse situé dans la résidence Brooklyn du projet Park Lane, sur le site extraordinaire de Tour&Taxis. Il dispose de deux chambres, d'un bureau, d'une salle de bain et d'une salle de douche. Ce penthouse à également deux belles terrasses offrant une vue panoramique sur Bruxelles
Surface Totale: 220 M²
Surface habitable: 200 m²
Chambres: 2
Salle de bain: 1
Salle de douche: 1
Terrasses: 2
Bureau: 1
Vidéo
Découvrez le bien en visualisant cette vidéo
VISITE VIRTUELLE
Vous voulez en voir plus ? Visitez le bien comme si vous y étiez à travers cette visite virtuelle
Localisation
Ce bien vous correspond ? Découvrez maintenant si sa localisation vous convient !
Commerces
Pharmacies
Restaurants
Boulangeries
Crèches
Parcs
Écoles
Universités
Déplacements
Plans intérieurs
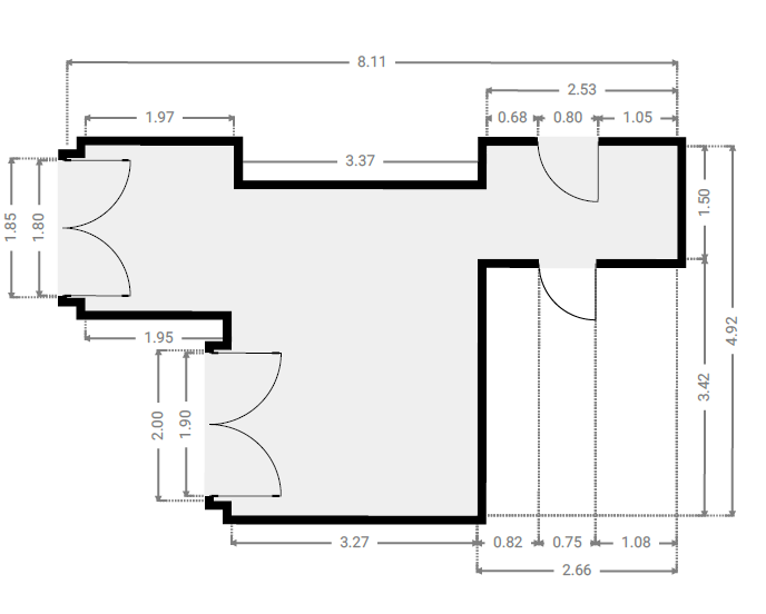
12e étage
SURFACE TOTALE : 201.05 m² | SURFACE HABITABLE : 234.91 m² | PIÈCE(S) : 13
1x Séjour / Salle à manger
2x Terrasse(s)
2x Couloir(s)
1x Bureau
1x Cuisine
1x Hall
1x Placard
2x Chambre(s)
1x S.D.B
1x Chaufferie
1x S.D.D
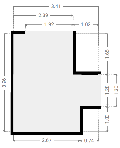
Séjour / Salle à manger
SURFACE : 63.71 m²
Terrasse 1
SURFACE : 5.57 m²
Couloir
SURFACE : 11.08 m²
Bureau
SURFACE : 14.8 m²
Cuisine
SURFACE : 11.07 m²
Terrasse 2
SURFACE : 23.09 m²
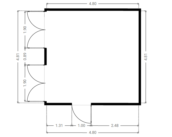
Hall
SURFACE : 8.9 m²
W.C
SURFACE : 1.19 m²
Couloir
SURFACE : 5.13 m²
Placard
SURFACE : 2.72 m²
Chambre 1
SURFACE : 23.29 m²
S.D.B
SURFACE : 8.27 m²
Chaufferie
SURFACE : 3.51 m²
Chambre 2
SURFACE : 14.86 m²
S.D.D
SURFACE : 3.98 m²
RECHERCHE CADASTRALE
Vous souhaitez mieux connaître votre parcelle et connaître la surface dont vous jouirez en achetant ce bien, alors consulter le cadastre est nécessaire !
Surface : 14512.1 m²
Parcelle : P388k7
Certificats
Informez-vous sur la performance énergétique de ce bien et assurez-vous que ses installations électriques sont bien aux normes !
PERFORMANCE ÉNERGÉTIQUE
Économe
Très énergivore
CERTIFICAT ÉLECTRIQUE
PROCES VERBAL D’EXAMEN DE CONFORMITE ET/OU DE VISITE DE CONTROLE D’UNE INSTALLATION ELECTRIQUE BASSE TENSION
La nouvelle installationConforme
Certificat électrique sur demande
INFORMATION TECHNIQUE
Charges
Montant des charges mensuelles estimé :+- 1,10€/ m² .
DATA ROOM
Nous avons mis tous les documents importants dans la date room, n’hésitez pas à télécharger ce dont vous avez besoin !
Nous avons mis tous les documents importants dans la date room, n’hésitez pas à télécharger ce dont vous avez besoin !
INFORMATION FINANCIERE
Veuillez noter que pour ce bien :
L’acquéreur paiera 21% de TVA pour la partie construction. Par contre, pour le terrain, il paiera des droits d’enregistrement de 12,5% uniquement sur la valeur du tréfonds et 2% sur la valeur de l’emphytéose.
Rentabilité
Cout total de l’acquisition
| Prix d'achat | {{ calculeData.prix | number:2 }} € |
| Rénovation | + {{ calculeData.prixTransRenovation | number:2 }} € |
| Frais | + 238.764,00 € |
| Coût total | + 1.638.764.00 € |
| Fonds propres + crédit pont | 482.607.75 € |
| Montant du crédit | 1.120.000.00 € |
| Coût total | + 1.638.764.00 € |
Rentabilité sur actifs
Durée de détention année(s)
Gain réel {{ calculeData.gainReel | number:0 }} €
Rendement sur actif {{ calculeData.rendementSurActif | number:2 }} %
Revenus
| Revenu locatif annuel Brut | € |
| Charge annuelle {{ calculeData.pourcentageCharge | number:2 }}% | {{ calculeData.chargeLocatifAnnuel | number:2 }} € |
| Précompte immobilier | {{ calculeData.precomteImmo | number:2 }} € |
| Autre charge annuelle | € |
| Revenu locatif annuel net | {{ calculeData.revenuLocatifAnnuelNet | number:2 }} € |
| Total revenu locatif après {{ calculeData.dureeDetention }} année(s) tenant compte d'une inflation de % |
{{ calculeData.totalRevenuLocatif | number:2 }} € |
| Plus-value latente | {{ calculeData.pluvalueLatente | number:2 }} % |
| Plus-value du bien après {{calculeData.dureeDetention}} année(s) | {{ calculeData.pluvalueBien | number:2 }} € |
| Total revenu locatif après {{ calculeData.dureeDetention }} année(s) | {{ calculeData.totalRevenuLocatif | number:2 }} € |
| Gain brut sur le prix de base après {{ calculeData.dureeDetention }} année(s) | +{{ calculeData.gainBrut | number:2 }} € |
Charges
| Durée du crédit | {{ calculeData.duree | number:2 }} ans |
| Taux | {{ calculeData.taux | number:2 }} % |
| Mensualité | {{ calculeData.mensualite | number:2 }} € |
| Total interêts après {{calculeData.dureeDetention}} année(s) | {{ calculeData.totalInteret | number:2 }} € |
| Total frais | {{ calculeData.frais | number:2 }} € |
| Total | {{ calculeData.InteretFrais | number:2 }} € |
Gain réel
Rendement sur actif
Cash flow
| Année | Coût | Revenu locatif | Gain |
|---|---|---|---|
| {{ $index }} | {{ ch.payment | number:2 }} € | {{ ch.revenuLocatif | number:2 }} € | {{ - ch.fondPropre | number:2 }} € |
Av. Louise 433 Louizalaan 1050 Bruxelles - Brussel
Drève Richelle, 96 - 1410 Waterloo