Suis-je éligible à une réduction des droits d’enregistrement ?
Péage
PRIX : 449 000€
Type: Appartement | Région: Bruxelles | Commune: Woluwe-Saint-Lambert
Situé sur la Chaussée de Louvain à Woluwe-Saint-Lambert, dans une petite copro de 3 unités, beau duplex complètement rénové en 2017 (comme l'ensemble du bâtiment) situé aux 2ème et 3ème étage sous toiture. Il se compose ainsi : entrée à l'entresol 1er/2ème avec vestiaire, seconde porte d'entrée au 2ème étage - hall d'entrée avec dégagement - chambre n° 1 - salle de douche et toilette séparée - séjour ouvert sur la cuisine de type américaine hyper équipée avec îlot central - pièce polyvalente pouvant servir de dining-room ou bureau ou 2ème chambre - Au 3ème étage : hall d'entrée, salle de bain et toilette séparée, dégagement/dressing et chambre n° 3. Parquet semi-massif au sol partout sauf pièces d'eau - mobilier sur mesure un peu partout - très bon état général - châssis double-vitrage - vidéophone - très bonne isolation thermique (PEB 'C') et acoustique.
Surface habitable: 134 m² NET
Chambres: 2
Salle de bain: 1
Salle de douche: 1
Bureau: 1
Vidéo
Découvrez le bien en visualisant cette vidéo
VISITE VIRTUELLE
Vous voulez en voir plus ? Visitez le bien comme si vous y étiez à travers cette visite virtuelle
Localisation
Ce bien vous correspond ? Découvrez maintenant si sa localisation vous convient !
Commerces
Pharmacies
Restaurants
Boulangeries
Crèches
Parcs
Écoles
Universités
Déplacements
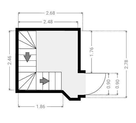
Plans intérieurs
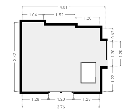
2e étage
SURFACE TOTALE :102 m² | SURFACE HABITABLE : 88 m² | PIÈCE(S) : 8
1x Séjour
1x Bureau
1x Chambre 1
2x Couloir(s)
1x W.C
1x S.D.D
1x Dressing 1
Séjour
SURFACE : 40.34 m²
Bureau
SURFACE : 12.22 m²
Chambre 1
SURFACE : 14.35 m²
Couloir
SURFACE : 4.36 m²
W.C
SURFACE : 1.27 m²
S.D.D
SURFACE : 4.03 m²
Dressing 1
SURFACE : 5.06 m²
Couloir
SURFACE : 6.44 m²
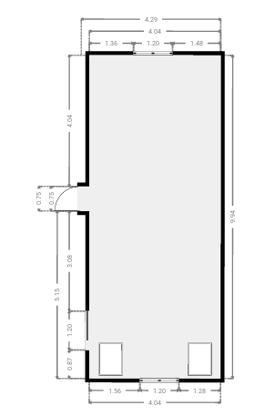
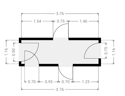
3e étage
SURFACE TOTALE :55 m² | SURFACE HABITABLE : 46 m² | PIÈCE(S) : 5
1x Chambre 2
1x Dressing 2
1x W.C
1x S.D.B
1x Couloir
Chambre 2
SURFACE : 23.63 m²
Dressing 2
SURFACE : 10.49 m²
W.C
SURFACE : 1.46 m²
S.D.B
SURFACE : 4.26 m²
Couloir
SURFACE : 6.2 m²
RECHERCHE CADASTRALE
Vous souhaitez mieux connaître votre parcelle et connaître la surface dont vous jouirez en achetant ce bien, alors consulter le cadastre est nécessaire !
État des sols
La pollution du sol a un impact sur l'environnement et sur la
santé, les risques d’inondation ont un impact sur votre qualité de vie… Consultez les données
relatives à ce bien pour en avoir le cœur net !
ÉTAT DE LA POLLUTION DES SOLS
Aucune remarque particulière pour la parcelle A2r7
Source : Cliquez-ici
Légende :
ZONE INONDABLE
Aucune remarque particulière pour la parcelle A2r7
Source : Cliquez-ici
Légende :
Certificats
Informez-vous sur la performance énergétique de ce bien et assurez-vous que ses installations électriques sont bien aux normes !
PERFORMANCE ÉNERGÉTIQUE
Économe
Très énergivore
CERTIFICAT ÉLECTRIQUE
PROCES VERBAL D’EXAMEN DE CONFORMITE ET/OU DE VISITE DE CONTROLE D’UNE INSTALLATION ELECTRIQUE BASSE TENSION
La nouvelle installationConforme
Agent
visiteur
Kristoff Paternoster
Date
de certification
20/04/216
Visite de contrôle
à effectuer avant le
20/04/2041
SYNTHÈSE DES CHARGES
Des dépenses seront nécessairement engagées pour l’administration de la copropriété, son entretien, l’installation d’équipements et la maintenance de ces derniers. Evaluez dès à présent le montant de vos charges mensuelles !
Assemblées générales
Extrait des derniers procès-Verbaux des assemblées générales
Charges et répartition
1- Charges
Ce tableau des charges comprend : Communs généraux et privés – Appel de fonds – Nettoyage et entretien - Assurances – syndic – frais de gestion
| Décomptes crédit - débit des fonds de roulement et de réserve |
| Situation du compte de la copropriété au 04-10-2024 : + 3.768,48 € |
| Année 2022 |
| Total: 1.260 € soit 105 € / mois |
| Année 2023 |
| Total: 1.353,60 € soit 112,80 € / mois |
| Année 2024 |
| Total:1.354 € soit 112,80 € / mois |
Une des trois propriétaires fait office de syndic à titre gratuit, les A.G. se font en général en 1 heure et il n’y a pas de décompte puisque les provisions de charges suffisent à alimenter les fonds de roulement et de réserve. Total des charges communes pour l’ensemble de la copro (3 unités) : 300 € / mois. 70% (+/-) est prévu pour le fonds de roulement qui permet de régler l’électricité des communs (27,68 €), l’assurance de la copropriété, l’eau et l’entretien des parties communes et les 30% restants (+/-) sont prévus pour le fonds de réserve pour les petits travaux. Si à l’avenir, des travaux étaient à prévoir, un appel de fonds sera nécessaire. L’adoucisseur d’eau, l’électricité privée, l’eau et le chauffage sont individuels. Coût mensuel actuel pour la facture de gaz & d’électricité du duplex (actuellement 2 personnes) : 120 €.
DATA ROOM
Nous avons mis tous les documents importants dans la date room, n’hésitez pas à télécharger ce dont vous avez besoin !
Nous avons mis tous les documents importants dans la date room, n’hésitez pas à télécharger ce dont vous avez besoin !
Besoin de crédit
Maintenant que vous êtes sûrs d’avoir fait le bon choix, calculez la valeur totale de cette acquisition (valeur du bien et frais annexes) et estimez vos besoins en crédit !
Simulation de crédit
| Prix d'achat | € |
| Rénovation | € |
| Rénovation HTVA | {{ calculeData.renovationHTVA | number:2 }} € |
| TVA | {{ calculeData.tva | number:2 }} € |
| Fonds propres | € |
| Acompte dû (disponible au compromis de vente) | {{ calculeData.prix * 0.1 | number:2 }} € |
| Reste des liquidités (disponible à l'acte) | {{ calculeData.avance | number:2 }} € |
| Crédit pont | {{ calculeData.creditPont | number:2 }} € |
| Prix de vente de votre bien existant | € |
| Solde du crédit existant | € |
| Frais d'acte d'achat | {{ calculeData.droit + calculeData.fraisNotaire | number:2 }} € |
| Droits d'enregistrement | {{ calculeData.droit | number:2 }} € |
|
Abattement
Suis-je éligible à une réduction des droits d’enregistrement ? |
|
| Frais de notaire | {{ calculeData.fraisNotaire | number:2 }} € |
| Autres frais | {{ calculeData.inscription + calculeData.fraisDossier + calculeData.autreFrais | number:2 }} € |
| Frais liés à l'acte hypothécaire | {{ calculeData.inscription | number:2 }} € |
| Frais de dossier et expertise bancaire | {{ calculeData.fraisDossier | number:2 }} € |
| Autres frais | € |
| Montant du crédit | {{ calculeData.montantCredit | number:2 }} € | |
La présente simulation se base sur un taux d’intérêt du 01/11/2024. Ce calcul est indicatif et sujet à changement.
Choix du type de crédit
| Taux | Type | CAP | Mensualité | Mensualité Min | Mensualité Max | |
|---|---|---|---|---|---|---|
| {{ tx.banque }} {{ $index+1 }} | {{ tx.taux | number:2 }}% | {{ tx.type }} | -{{ tx.capNeg }}%/+{{ tx.capPos }}% | {{ tx.mens | number:2 }}€ | {{ tx.min | number:2 }}€ | {{ tx.max | number:2 }}€ |
| Taux | Type | CAP | Mensualité | Mensualité Min | Mensualité Max | |
|---|---|---|---|---|---|---|
| {{ tx.banque }} {{ $index+1 }} | {{ tx.taux | number:2 }}% | {{ tx.type }} | -{{ tx.capNeg }}%/+{{ tx.capPos }}% | {{ tx.mens | number:2 }}€ | {{ tx.min | number:2 }}€ | {{ tx.max | number:2 }}€ |
| Taux | Type | CAP | Mensualité | Mensualité Min | Mensualité Max | |
|---|---|---|---|---|---|---|
| {{ tx.banque }} {{ $index+1 }} | {{ tx.taux | number:2 }}% | {{ tx.type }} | -{{ tx.capNeg }}%/+{{ tx.capPos }}% | {{ tx.mens | number:2 }}€ | {{ tx.min | number:2 }}€ | {{ tx.max | number:2 }}€ |
Rentabilité
Cout total de l’acquisition
| Prix d'achat | {{ calculeData.prix | number:2 }} € |
| Rénovation | + {{ calculeData.prixTransRenovation | number:2 }} € |
| Frais | + {{ calculeData.frais | number:2 }} € |
| Coût total | + {{ calculeData.frais + calculeData.prixTransRenovation + calculeData.prix | number:2 }} € |
| Fonds propres + crédit pont | {{ calculeData.totalFP+calculeData.creditPont | number:2 }} € |
| Montant du crédit | {{ calculeData.montantCredit | number:2 }} € |
| Coût total | + {{ calculeData.creditPont + calculeData.totalFP + calculeData.montantCredit | number:2 }} € |
Rentabilité sur actifs
Durée de détention année(s)
Gain réel {{ calculeData.gainReel | number:0 }} €
Rendement sur actif {{ calculeData.rendementSurActif | number:2 }} %
Revenus
| Revenu locatif annuel Brut | € |
| Charge annuelle {{ calculeData.pourcentageCharge | number:2 }}% | {{ calculeData.chargeLocatifAnnuel | number:2 }} € |
| Précompte immobilier | {{ calculeData.precomteImmo | number:2 }} € |
| Autre charge annuelle | € |
| Revenu locatif annuel net | {{ calculeData.revenuLocatifAnnuelNet | number:2 }} € |
| Total revenu locatif après {{ calculeData.dureeDetention }} année(s) tenant compte d'une inflation de % |
{{ calculeData.totalRevenuLocatif | number:2 }} € |
| Plus-value latente | {{ calculeData.pluvalueLatente | number:2 }} % |
| Plus-value du bien après {{calculeData.dureeDetention}} année(s) | {{ calculeData.pluvalueBien | number:2 }} € |
| Total revenu locatif après {{ calculeData.dureeDetention }} année(s) | {{ calculeData.totalRevenuLocatif | number:2 }} € |
| Gain brut sur le prix de base après {{ calculeData.dureeDetention }} année(s) | +{{ calculeData.gainBrut | number:2 }} € |
Charges
| Durée du crédit | {{ calculeData.duree | number:2 }} ans |
| Taux | {{ calculeData.taux | number:2 }} % |
| Mensualité | {{ calculeData.mensualite | number:2 }} € |
| Total interêts après {{calculeData.dureeDetention}} année(s) | {{ calculeData.totalInteret | number:2 }} € |
| Total frais | {{ calculeData.frais | number:2 }} € |
| Total | {{ calculeData.InteretFrais | number:2 }} € |
Gain réel
Rendement sur actif
Cash flow
| Année | Coût | Revenu locatif | Gain |
|---|---|---|---|
| {{ $index }} | {{ ch.payment | number:2 }} € | {{ ch.revenuLocatif | number:2 }} € | {{ - ch.fondPropre | number:2 }} € |
Av. Louise 433 1050 Bruxelles - 02 648 01 20
Drève Richelle 96 1410 Waterloo - 02 354 29 39
Av. Prekelinden 83 1200 Woluwe-St-Lambert - 02 734 00 36