Kom ik in aanmerking voor belastingvermindering ?
P.Malustraat
PRIJS : 625 000,00 €
Type: Huis | Regio: Flandre | Gemeente: Hoeilaart
Totale Oppervlakte: 408 M²
Slaapkamers: 4
Doucheruimte 2
Groot terras aan het zuiden
Garage: 1
Kelders: 2
Kantoors: 4
VIDEO PRESENTATIE
Découvrez le bien en visualisant cette vidéo
VIRTUEEL BEZOEK
Vous voulez en voir plus ? Visitez le bien comme si vous y étiez à travers cette visite virtuelle
OMGEVING
Ce bien vous correspond ? Découvrez maintenant si sa localisation vous convient !
Supermarkt
Apotheek
Restaurant
Bakkerij
Kinderdagverblijf
Park
Scholen
Universiteiten
Verplaatsingen
Plans intérieurs
Kelder
OTALE OPPERVLAKTE : 30.62 m² | WOONRUIMTE : 30.62 m² | kAMERS : 2
2x Kelder(s)
Kelder 2
SURFACE : 15.29 m²
Kelder 1
SURFACE : 15.35 m²
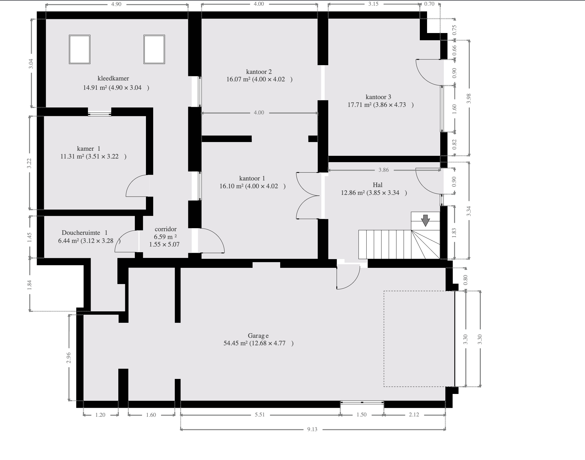
Begane grond
OTALE OPPERVLAKTE : 156.40 m² | WOONRUIMTE : 101.94 m² | kAMERS : 9
1x Corridor
1x Garage
3x kantoor(s)
1x Corridor
1x Dressing
1x Slaapkamer
1x Doucheruimte
Corridor
SURFACE : 12.86 m²
Garage
SURFACE : 54.45 m²
kantoor 1
SURFACE : 16.1 m²
kantoor 2
SURFACE : 16.07 m²
kantoor 3
SURFACE : 17.71 m²
Corridor
SURFACE : 6.59 m²
Dressing
SURFACE : 14.91 m²
Slaapkamer 1
SURFACE : 11.31 m²
Doucheruimte 1
SURFACE : 6.44 m²
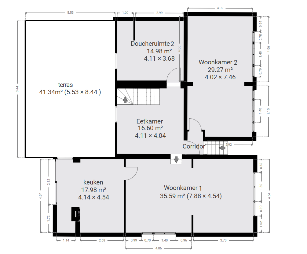
1e verdieping
OTALE OPPERVLAKTE : 164.40 m² | WOONRUIMTE : 115.73 m² | kAMERS : 6
2x Woonkamer(s)
1x Keuken
1x Eetkamer
1x Corridor
1x Doucheruimte
1x Terras
Woonkamer 1
SURFACE : 35.59 m²
Keuken
SURFACE : 17.98 m²
Eetkamer
SURFACE : 16.60 m²
Corridor
SURFACE : 1.36 m²
Woonkamer 2
SURFACE : 29.27 m²
Doucheruimte 2
SURFACE : 14.98 m²
Terras
SURFACE : 41.34 m²
2e verdieping
OTALE OPPERVLAKTE : 105.12 m² | WOONRUIMTE : 105.12 m² | kAMERS : 6
3x Slaapkamer(s)
1x nachthalt
1x Corridor
1x kantoor
Slaapkamer 4
SURFACE : 37.91 m²
nachthalt
SURFACE : 19.43 m²
Slaapkamer 3
SURFACE : 14.54 m²
Corridor
SURFACE : 8.57 m²
kantoor
SURFACE : 11.54 m²
Slaapkamer 2
SURFACE : 13.19 m²
KADASTRAAL ZOEKEN
Vous souhaitez mieux connaître votre parcelle et connaître la surface dont vous jouirez en achetant ce bien, alors consulter le cadastre est nécessaire !
BODEMGESTELDHEID
La pollution du sol a un impact sur l'environnement et sur la santé, les risques d’inondation ont un impact sur votre qualité de vie… Consultez les données relatives à ce bien pour en avoir le cœur net !
STAAT VAN BODEMVERONTREINIGING
Geen bijzondere opmerkingen voor perceel A472x
Bron : Klik hier
Legende :
Overstromingsgebied
Geen overstroming gemodelleerd voor perceel A472x
Bron : Klik hier
Legende :
CERTIFICATEN
Informez-vous sur la performance énergétique de ce bien et assurez-vous que ses installations électriques sont bien aux normes !
ENERGIEPRESTATIES
Zeer zuinigZeer energieverslindennd
|
A+ A ≤ 0 |
A 0 < A ≤ 100 |
B 100 < B ≤ 200 |
C 200 < C ≤ 300 |
D 300 < D ≤ 400 |
E 400 < E ≤ 500 |
F F > 500 |
| 437 kWh/m².Jaar |
ELEKTRISCH CERTIFICAAT
VERSLAG VAN HET CONFORMITEITSONDERZOEK EN/OF DE INSPECTIE VAN EEN ELEKTRISCHE LAAGSPANNINGSINSTALLATIE
De bestaande installatieNiet conform
Bezoekende
agent
Mathieu Laixhay
Datum
04/01/2024
Volgend
controlebezoek
04/01/2025
DATA ROOM
Nous avons mis tous les documents importants dans la date room, n’hésitez pas à Downloaden ce dont vous avez besoin !
Nous avons mis tous les documents importants dans la date room, n’hésitez pas à télécharger ce dont vous avez besoin !
BEREKEN UW KREDIETBEHOEFTE
Maintenant que vous êtes sûrs d’avoir fait le bon choix, calculez la valeur totale de cette acquisition (valeur du bien et frais annexes) et estimez vos besoins en crédit !
Kredietsimulatie
| Aankoopprijs | € |
| Renovatie | € |
| Renovatie excl. btw | {{ calculeData.renovationHTVA | number:2 }} € |
| BTW | {{ calculeData.tva | number:2 }} € |
| Eigen fondsen | € |
| Te betalen waarborgsom (beschikbaar bij de verkoopovereenkomst) | {{ calculeData.prix * 0.1 | number:2 }} € |
| Resterende liquide middelen (besschikbaar op de verkoop) | {{ calculeData.avance | number:2 }} € |
| Overbruggingskrediet | {{ calculeData.creditPont | number:2 }} € |
| Aankooprijs | € |
| Bestaand tegoed | € |
| Aankooprechten | {{ calculeData.droit + calculeData.fraisNotaire | number:2 }} € |
| Verkooprechten | {{ calculeData.droit | number:2 }} € |
|
Vermindering
Kom ik in aanmerking voor vermindering van het inschrijfgeld? |
|
| Notariskosten | {{ calculeData.fraisNotaire | number:2 }} € |
| Andere kosten | {{ calculeData.inscription + calculeData.fraisDossier + calculeData.autreFrais | number:2 }} € |
| Kosten in verband met de hypotheekakte | {{ calculeData.inscription | number:2 }} € |
| Administratiekosten en bankexpertise | {{ calculeData.fraisDossier | number:2 }} € |
| Andere kosten | € |
| ONTLEEND BEDRAG | {{ calculeData.montantCredit | number:2 }} € | |
Deze simulatie is gebaseerd op een rentevoet van 07/08/2023, die indicatief is en onderhevig aan verandering
Keuze soort krediet
| Tarief | Type | Pet | Maandelijkse betaling | MMaandelijkse betaling Min | Maandelijkse betaling Max | |
|---|---|---|---|---|---|---|
| {{ tx.banque }} | {{ tx.taux | number:2 }}% | {{ tx.type }} | -{{ tx.capNeg }}%/+{{ tx.capPos }}% | {{ tx.mens | number:2 }}€ | {{ tx.min | number:2 }}€ - | {{ tx.max | number:2 }}€ - |
| Tarief | Type | Pet | Maandelijkse betaling | Maandelijkse betaling Min | Maandelijkse betaling Max | |
|---|---|---|---|---|---|---|
| {{ tx.banque }} | {{ tx.taux | number:2 }}% | {{ tx.type }} | -{{ tx.capNeg }}%/+{{ tx.capPos }}% | {{ tx.mens | number:2 }}€ | {{ tx.min | number:2 }}€ - | {{ tx.max | number:2 }}€ - |
| Tarief | Type | Pet | Maandelijkse betaling | Maandelijkse betaling Min | Maandelijkse betaling Max | |
|---|---|---|---|---|---|---|
| {{ tx.banque }} | {{ tx.taux | number:2 }}% | {{ tx.type }} | -{{ tx.capNeg }}%/+{{ tx.capPos }}% | {{ tx.mens | number:2 }}€ | {{ tx.min | number:2 }}€ - | {{ tx.max | number:2 }}€ - |
RENTABILITEIT
Cout total de l’acquisition
| Aankoopprijs | {{ calculeData.prix | number:2 }} € |
| Renovatie | + {{ calculeData.prixTransRenovation | number:2 }} € |
| Kosten | + {{ calculeData.frais | number:2 }} € |
| Totale kostprijs | + {{ calculeData.frais + calculeData.prixTransRenovation + calculeData.prix | number:2 }} € |
| Eigen middelen + overbruggingskrediet | {{ calculeData.totalFP+calculeData.creditPont | number:2 }} € |
| Ontleend bedrag | {{ calculeData.montantCredit | number:2 }} € |
| Totale kostprijs | + {{ calculeData.creditPont + calculeData.totalFP + calculeData.montantCredit | number:2 }} € |
Rendement op activa
Duur van detentie jaar (jaren)
WERKELIJKE WINST {{ calculeData.gainReel | number:0 }} €
RENDEMENT OP ACTIVA {{ calculeData.rendementSurActif | number:2 }} %
Omzet
| Jaarlijkse bruto huurinkomsten | € |
| Jaarlijkse lasten {{ calculeData.pourcentageCharge | number:2 }}% | {{ calculeData.chargeLocatifAnnuel | number:2 }} € |
| Onroerend goed belasting | {{ calculeData.precomteImmo | number:2 }} € |
| Andere jaarlijkse lasten | € |
| Jaarlijkse netto huurinkomsten | {{ calculeData.revenuLocatifAnnuelNet | number:2 }} € |
| Totale huurinkomsten na {{ calculeData.dureeDetention }} jaar rekening houdend met een inflatie van % | {{ calculeData.totalRevenuLocatif | number:2 }} € |
| Niet-gerealiseerde meerwaarde | {{ calculeData.pluvalueLatente | number:2 }} % |
| Meerwaarde van het pand na {{calculeData.dureeDetention}} jaar | {{ calculeData.pluvalueBien | number:2 }} € |
| Totale huurinkomsten na {{ calculeData.dureeDetention }} jaar | {{ calculeData.totalRevenuLocatif | number:2 }} € |
| Bruto winst op de basisprijs na {{ calculeData.dureeDetention }} jaar | +{{ calculeData.gainBrut | number:2 }} € |
Uitgaven
| Looptijd | {{ calculeData.duree | number:2 }} jaar |
| Tarief | {{ calculeData.taux | number:2 }} % |
| Maandlast | {{ calculeData.mensualite | number:2 }} € |
| Totale intrestlast na {{calculeData.dureeDetention}} jaar | {{ calculeData.totalInteret | number:2 }} € |
| Totale kosten | {{ calculeData.frais | number:2 }} € |
| Totaal | {{ calculeData.InteretFrais | number:2 }} € |
Winstrol
Rendement op activa
Cash flow
| Jaar | Kosten | Huurinkomsten | Verdienen |
|---|---|---|---|
| {{ $index }} | {{ ch.payment | number:2 }} € | {{ ch.revenuLocatif | number:2 }} € | {{ - ch.fondPropre | number:2 }} € |
BRUSSEL AGENTSCHAP Louizalaan 433 - 1050 Brussel
LA HULPE AGENTSCHAP Brusselsesteenweg 21 - 1310 Terhulp