Suis-je éligible à une réduction d’impôt ?
P.Malustraat
PRIX : 625 000,00 €
Type: Maison | Région: Flandre | Commune: Hoeilaart
Située dans le centre de Hoeilaart, à proximité du centre sportif, des commerces et des transports en commun, néanmoins dans une rue calme, By the Way a le privilège de vous présenter cette habitation qui offre de nombreuses possibilités. La maison bénéficie de deux entrées séparées ce qui permet d'exploiter le rez-de-chaussée pour une activité professionnelle (actuellement exploitée comme atelier de couture) ou pour un logement séparé. Le rez-de-chaussée se compose : 3 pièces de vie ou bureaux, une chambre et son dressing, une salle de douche avec wc. Au 1er étage se trouve une salle à manger, deux grands séjours, une cuisine séparée donnant accès à une belle grande terrasse orientée au Sud, une salle de bain avec wc. Le 2ème étage se compose d'un vaste hall de nuit, trois chambres et un bureau. Un grand garage avec son espace buanderie complète la maison. Chauffage centrale au mazout avec une citerne non enterrée de 2500L.
Chambres: 5
Salles de douche: 2
Terrasse: 1
Garage: 1
Caves: 2
Bureaux: 3
Écurie: oui
complexe de 2 maisons
Piscine: oui
Vidéo
Découvrez le bien en visualisant cette vidéo
VISITE VIRTUELLE
Vous voulez en voir plus ? Visitez le bien comme si vous y étiez à travers cette visite virtuelle
Localisation
Ce bien vous correspond ? Découvrez maintenant si sa localisation vous convient !
Commerces
Pharmacies
Restaurants
Boulangeries
Crèches
Parcs
Écoles
Universités
Déplacements
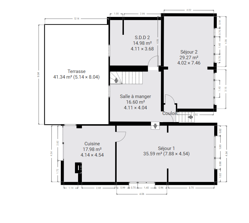
Plans intérieurs
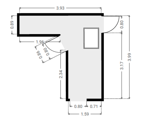
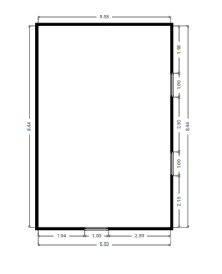
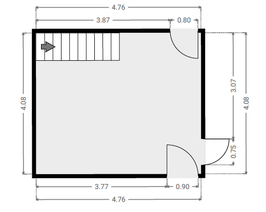
Sous-sol
SURFACE TOTALE : 30.62 m² | SURFACE HABITABLE : 30.62 m² | PIÈCE(S) : 2
2x Cave(s)
Cave 2
SURFACE : 15.29 m²
Cave 1
SURFACE : 15.35 m²
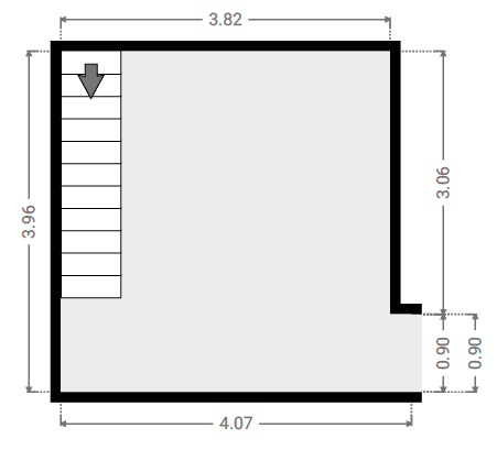
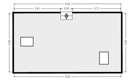
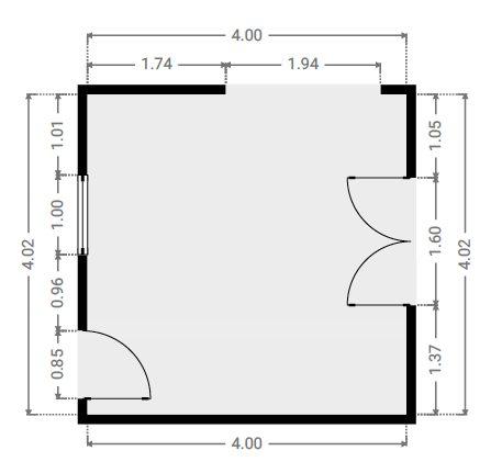
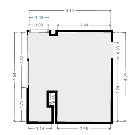
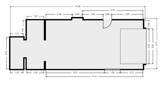
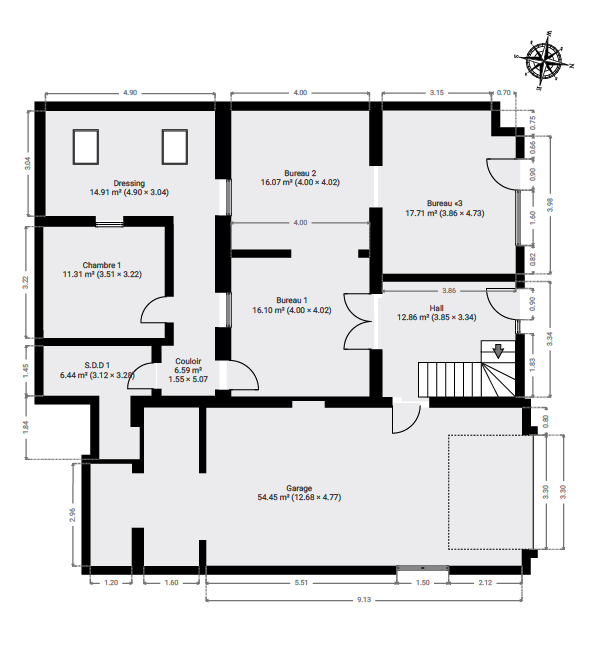
Rez-de-chaussée
SURFACE TOTALE : 156.40 m² | SURFACE HABITABLE : 101.94 m² | PIÈCE(S) : 9
1x Hall
1x Garage
3x Bureau(s)
1x Couloir
1x Dressing
1x Chambre
1x S.D.D
Hall
SURFACE : 12.86 m²
Garage
SURFACE : 54.45 m²
Bureau 1
SURFACE : 16.1 m²
Bureau 2
SURFACE : 16.07 m²
Bureau «3
SURFACE : 17.71 m²
Couloir
SURFACE : 6.59 m²
Dressing
SURFACE : 14.91 m²
Chambre 1
SURFACE : 11.31 m²
S.D.D 1
SURFACE : 6.44 m²
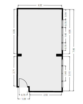
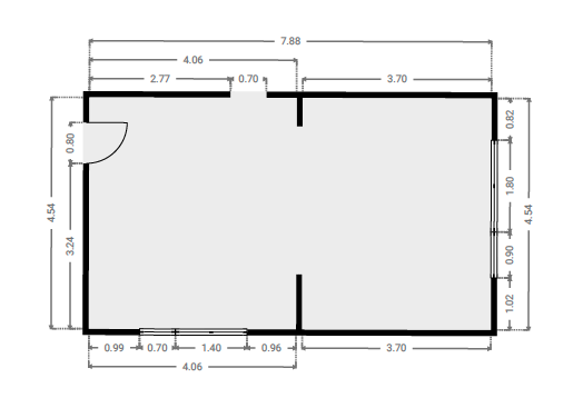
1er étage
SURFACE TOTALE : 115.79 m² | SURFACE HABITABLE : 138.1 m² | PIÈCE(S) : 6
2x Séjour(s)
1x Cuisine
1x Salle à manger
1x Couloir
1x S.D.D
1x Terrasse
Séjour 1
SURFACE : 35.59 m²
Cuisine
SURFACE : 17.98 m²
Salle à manger
SURFACE : 16.60 m²
Couloir
SURFACE : 1.36 m²
Séjour 2
SURFACE : 29.27 m²
S.D.D 2
SURFACE : 14.98 m²
Terrasse
SURFACE : 41.34 m²
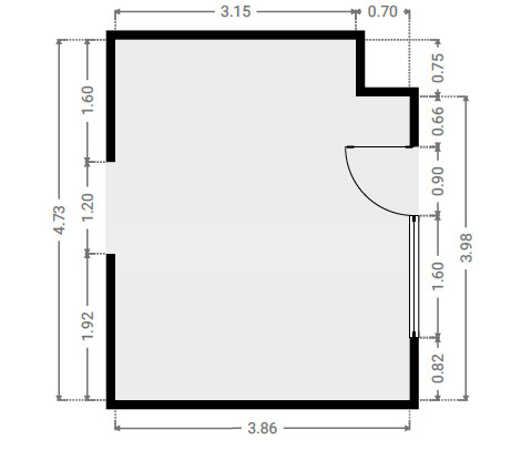
2e étage
SURFACE TOTALE : 105.12 m² | SURFACE HABITABLE : 105.12 m² | PIÈCE(S) : 6
3x Chambre(s)
1x Hall de nuit
1x Couloir
1x Bureau
Chambre 4
SURFACE : 37.91 m²
Hall de nuit
SURFACE : 19.43 m²
Chambre 3
SURFACE : 14.54 m²
Couloir
SURFACE : 8.57 m²
Bureau
SURFACE : 11.54 m²
Chambre 2
SURFACE : 13.19 m²
RECHERCHE CADASTRALE
Vous souhaitez mieux connaître votre parcelle et connaître la surface dont vous jouirez en achetant ce bien, alors consulter le cadastre est nécessaire !
État des sols
La pollution du sol a un impact sur l'environnement et sur la santé, les risques d’inondation ont un impact sur votre qualité de vie… Consultez les données relatives à ce bien pour en avoir le cœur net !
ÉTAT DE LA POLLUTION DES SOLS
Aucune remarque particulière pour la parcelle A472x
Source : Cliquez-ici
Légende :
Zone inondable
Pas d'inondation modélisée pour la parcelle A472x
Source : Cliquez-ici
Légende :
Certificats
Informez-vous sur la performance énergétique de ce bien et assurez-vous que ses installations électriques sont bien aux normes !
PERFORMANCE ÉNERGÉTIQUE
ÉconomeTrès énergivore
|
A+ A ≤ 0 |
A 0 < A ≤ 100 |
B 100 < B ≤ 200 |
C 200 < C ≤ 300 |
D 300 < D ≤ 400 |
E 400 < E ≤ 500 |
F F > 500 |
| 437 kWh/m².an |
CERTIFICAT ÉLECTRIQUE
PROCES VERBAL D’EXAMEN DE CONFORMITE ET/OU DE VISITE DE CONTROLE D’UNE INSTALLATION ELECTRIQUE BASSE TENSION
La nouvelle installationNon conforme
Agent
visiteur
Mathieu Laixhay
Date
de certification
04/01/2024
Visite de contrôle
à effectuer avant le
04/01/2025
DATA ROOM
Nous avons mis tous les documents importants dans la date room, n’hésitez pas à télécharger ce dont vous avez besoin !
Av. Louise 433 1050 Bruxelles - 02 648 01 20
Drève Richelle 96 1410 Waterloo - 02 354 29 39
Av. Prekelinden 83 1200 Woluwe-St-Lambert - 02 734 00 36