Suis-je éligible à une réduction d’impôt ?
Jonet 3
PRIX : 1 495 000 €
Type: Maison | Région: Flandre | Commune: Rhode-Saint-Genèse
Dans le quartier de l'Espinette Centrale, à Rhode Saint Genèse, limite Uccle, By The Way vous présente cette magnifique villa des années 30 d'une superficie de +/- 482m2. Villa 6 chambres, 3 salle de bains. Propriété dotée d'un magnifique jardin clôturé et arboré (parcelle de 20ares10) avec piscine 10m x 5m. Composition : Hall d'entrée avec vestiaire et WC séparés, belles réceptions d'une superficie de +/- 70m2 ouvertes sur une terrasse et le jardin tous deux orientés plein sud. Feu au gaz, armoires intégrées, écran home cinéma coulissant, plafonniers lumineux intégrés, cuisine hyper-équipée. Vous retrouverez un espace complètement séparé et isolé de la maison composé d'un bureau de +/- 19 m2, une belle chambre et sa salle de douche. Le 1er étage dessert 3 chambres dont une très belle suite parentale avec dressing, 2 grandes salles de bains. Le 2ème étage est composé d'une chambre, une salle de bain et grand grenier aménageable. Garage 2 voitures avec portes sectionnelles automatiques, caves. PEB D 318 kWh/m².an. Certificat électrique conforme.
Surface Totale: 481.35 M²
Surface habitable: 439.77 m²
Chambres: 5
Salles de bains: 3
Salle de douche: 1
Terrasse: 1
Garages: 2
Caves: 4
Bureau: 1
Jardin: Orienté sud
Greniers aménageables: 2
Vidéo
Découvrez le bien en visualisant cette vidéo
VISITE VIRTUELLE
Vous voulez en voir plus ? Visitez le bien comme si vous y étiez à travers cette visite virtuelle
Localisation
Ce bien vous correspond ? Découvrez maintenant si sa localisation vous convient !
Commerces
Pharmacies
Restaurants
Boulangeries
Crèches
Parcs
Écoles
Universités
Déplacements
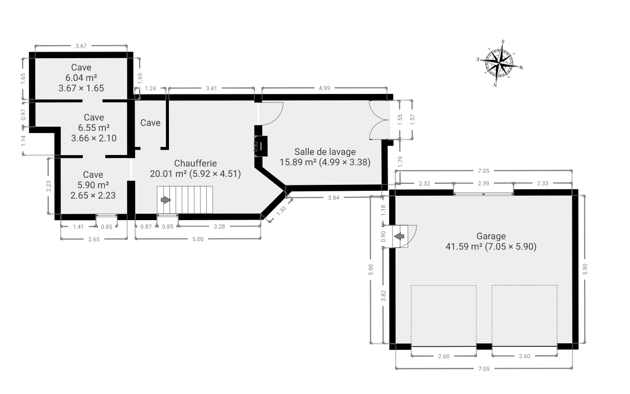
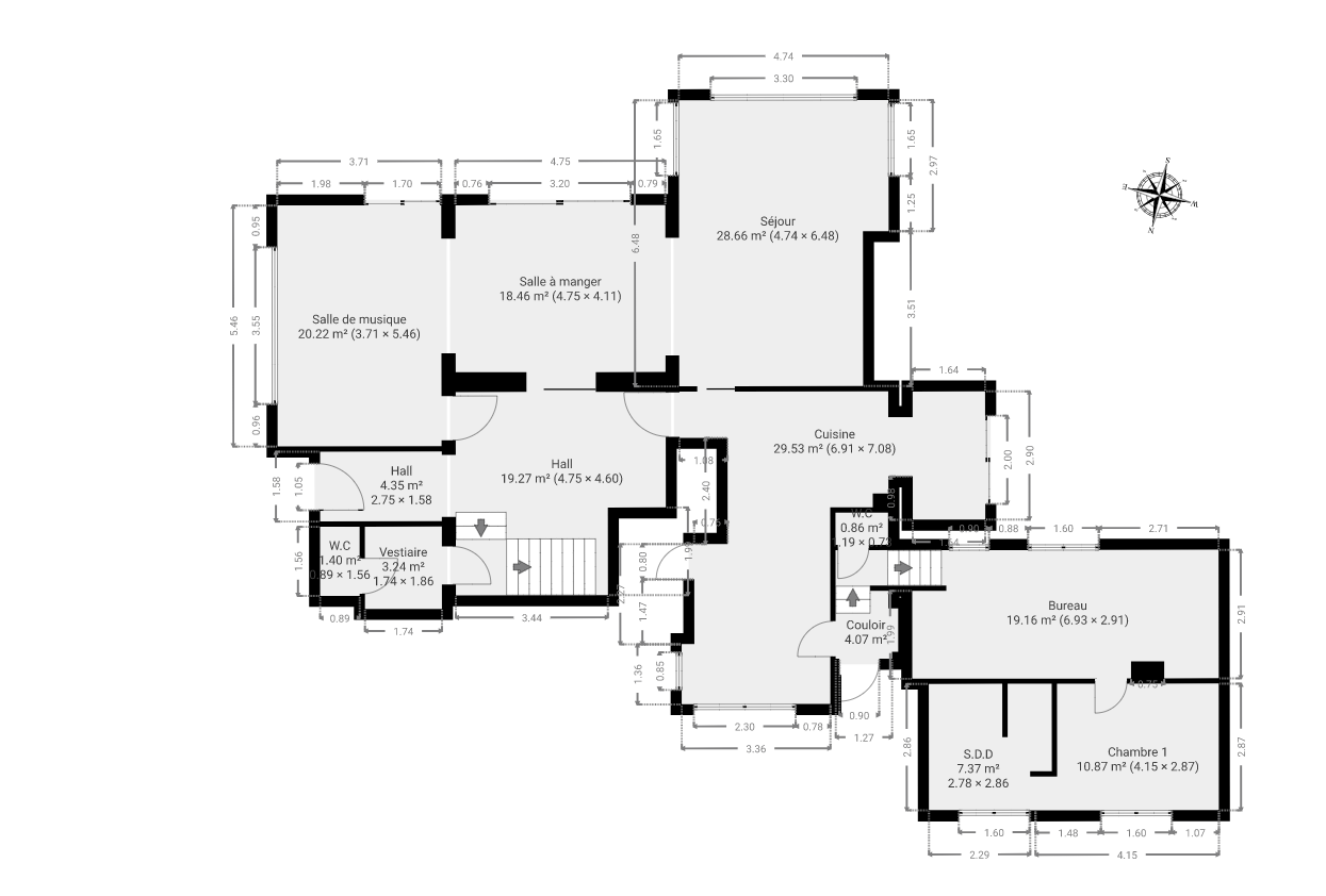
Plans intérieurs
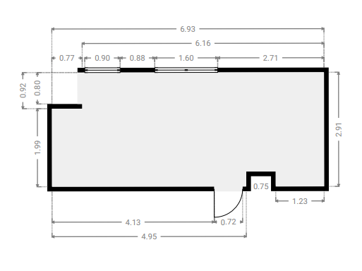
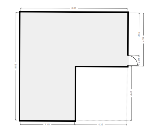
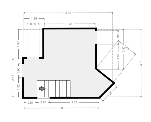
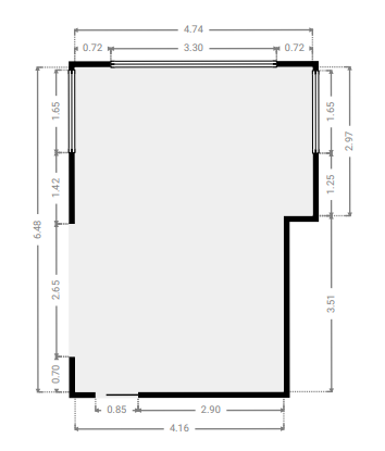
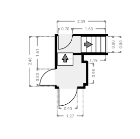
Sous-sol
SURFACE TOTALE :119.06 m² | SURFACE HABITABLE :98.22 m² | PIÈCE(S) : 7
4x Cave(s)
1x Chaufferie
1x Salle de lavage
1x Garage
Cave
SURFACE : 6.04 m²
Cave
SURFACE : 6.55 m²
Cave
SURFACE : 5.9 m²
Chaufferie
SURFACE : 20.01 m²
Cave
SURFACE : 2.29 m²
Salle de lavage
SURFACE : 15.89 m²
Garage
SURFACE : 41.59 m²
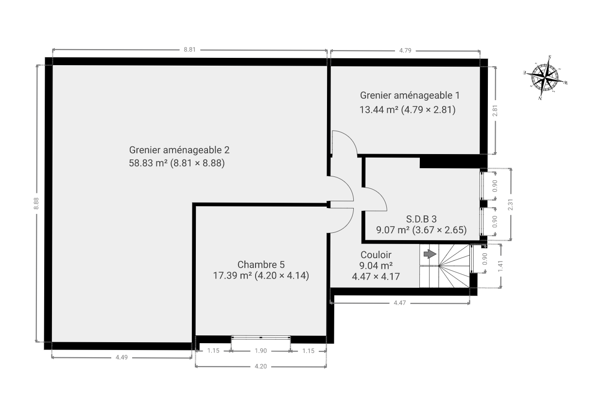
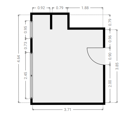
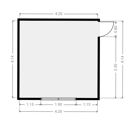
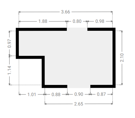
Rez-de-chaussée
SURFACE TOTALE : 202.21 m² | SURFACE HABITABLE : 167.36 m² | PIÈCE(S) : 13
1x S.D.D
1x Chambre 1
1x Bureau
1x Couloir
1x Cuisine
2x Hall(s)
1x Séjour
1x Salle à manger
1x Salle de musique
1x Vestiaire
S.D.D
SURFACE : 7.37 m²
Chambre 1
SURFACE : 10.87 m²
Bureau
SURFACE : 19.16 m²
Couloir
SURFACE : 4.07 m²
W.C
SURFACE : 0.86 m²
Cuisine
SURFACE : 29.53 m²
Hall
SURFACE : 19.27 m²
Séjour
SURFACE : 28.66 m²
Salle à manger
SURFACE : 18.46 m²
Salle de musique
SURFACE : 20.22 m²
Hall
SURFACE : 4.35 m²
Vestiaire
SURFACE : 3.24 m²
W.C
SURFACE : 1.4 m²
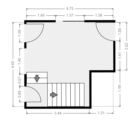
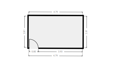
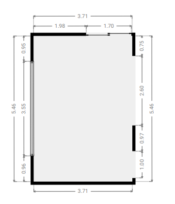
1er étage
SURFACE TOTALE : 130.02 m² | SURFACE HABITABLE : 108.03 m² | PIÈCE(S) : 8
2x S.D.B (s)
2x Couloir(s)
2x Chambre(s)
1x Suite parentale
1x Dressing
S.D.B 1
SURFACE : 15.65 m²
Couloir
SURFACE : 13.17 m²
Suite parentale
SURFACE : 19.51 m²
S.D.B 3
SURFACE : 13.65 m²
Dressing
SURFACE : 11.56 m²
Chambre 3
SURFACE : 12.7 m²
Couloir
SURFACE : 1.52 m²
Chambre 4
SURFACE : 20.33 m²
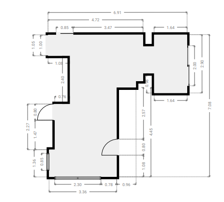
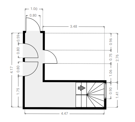
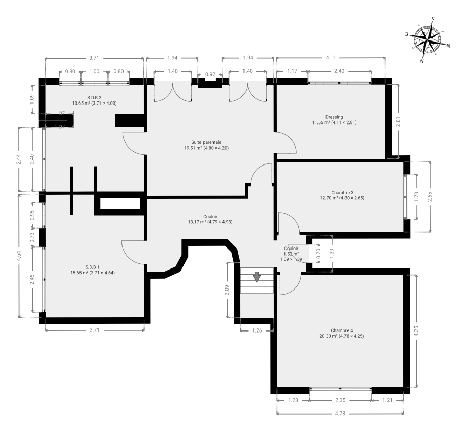
2e étage
SURFACE TOTALE :123.12 m² | SURFACE HABITABLE : 107.75 m² | PIÈCE(S) : 5
1x Couloir
1x S.D.B 3
2x Greniers Aménageables
1x Chambre 5
Couloir
SURFACE : 9.04 m²
S.D.B 3
SURFACE : 9.07 m²
Grenier 1
SURFACE : 13.44 m²
Grenier 2
SURFACE : 58.83 m²
Chambre 5
SURFACE : 17.4 m²
RECHERCHE CADASTRALE
Vous souhaitez mieux connaître votre parcelle et connaître la surface dont vous jouirez en achetant ce bien, alors consulter le cadastre est nécessaire !
Surface : 2052.96 m²
Parcelle : F2n85
Certificats
Informez-vous sur la performance énergétique de ce bien et assurez-vous que ses installations électriques sont bien aux normes !
PERFORMANCE ÉNERGÉTIQUE
Économe
Très énergivore
CERTIFICAT ÉLECTRIQUE
PROCES VERBAL D’EXAMEN DE CONFORMITE ET/OU DE VISITE DE CONTROLE D’UNE INSTALLATION ELECTRIQUE BASSE TENSION
La nouvelle installationConforme
Agent
visiteur
ANSOTTE Emmanuel
Date
de certification
03/02/2022
Visite de contrôle
à effectuer avant le
03/02/2047
Audit technique
En prévoyant un budget précis des transformations et/ou réparations à opérer sur ce bien, l'expertise réalisée par un architecte neutre et indépendant vous permet de mieux évaluer la valeur de ce bien !
Score général attribué par l’auditeur *
Conseils généraux en termes de performances énergétiques du bâtiment :
Voir aussi 1.5 : le label EPC est actuellement « D », ce qui est bon pour l’acheteur, sans obligation supplémentaire dans les 5 prochaines années. Mais en dehors de cette situation formelle (et temporaire?), il peut certainement être utile de réfléchir à la manière dont l’isolation de la maison peut être encore améliorée. Voir aussi les commentaires donnés sur l’état des fenêtres et des portes extérieures. À l’intérieur des façades extérieures, un contre-cloison secondaire a été placé à de nombreux endroits, qui sert principalement à l’intégration décorative de rideaux, de radiateurs et parfois d’éclairage indirect. La fonction isolante de ce mur secondaire n’est pas claire, mais certainement pas continue. L’isolation supplémentaire des façades se fait idéalement côté froid, donc à l’extérieur. Cependant: cela changerait sans aucun doute le caractère de la maison, ce qui n’est probablement pas l’intention. L’isolation à l’intérieur des façades présente l’inconvénient correspondant de ponts thermiques restants au niveau de l’angle avec les murs intérieurs à angle droit touchants. Les murs extérieurs semblent avoir une épaisseur de 31 cm, avec la présence d’une petite partie de vide pas tout à fait impossible (bien qu’en 1935 certainement pas destiné à des fins d’isolation). D’autre part: si un tel vide devait être présent, le remplir d’isolation est actuellement insuffisant en soi pour obtenir une isolation suffisante des murs, par exemple en vue d’atteindre les objectifs à long terme 2050 par la Flandre (pas encore obligatoire mais recommandé). Cependant: La toiture semble avoir été considérablement renouvelée, aussi en termes d’isolation. L’isolation du plafond du sous-sol pourra certainement donner un plus value en fonction d’économie d’énergie.
Avis général et conseils de l'inspecteur :
Maison très élégante, solide et bien entretenue. Les améliorations énergétiques ne sont pas nécessairement impossibles mais nécessitent une étude approfondie en fonction de la préservation maximale du caractère de la maison.
DISCLAIMER
La conclusion et les conseils donnés sont le résultat d’une inspection indépendante, réalisée par un architecte expérimenté et agréé par ImmoPass.
Les éventuelles estimations budgétaires contenues dans ce rapport sont données à titre indicatif et ne constituent pas un devis. Nous recommandons de réaliser un Cahier des Charges sur tout ou partie des travaux à entreprendre et une analyse des devis reçus. Les estimations sont exprimées hors taxes.
L’inspection a été réalisée de manière non-destructive, de manière visuelle uniquement. Ce rapport ne peut donc garantir l’absence totale de vices techniques cachés.
100 %
Zone inondable, zone acoustique, plan de secteurs, permis d’urbanisme ...
80 %
Certification énergétique, conformité électrique, cuve à mazout, sol, ...
95 %
Sécurité, aménagements, structures extérieures, entretien végétation, ...
50 %
Humidité généralisée, présence d’amiante, mérule, termites ...
95 %
Toiture, murs extérieurs, châssis et portes, évacuation eau de pluie, ...
100 %
Défauts structurels, humidité localisée, salubrité, état de fonctionnement..
92 %
Halls et escaliers, caves, combles et grenier, locaux techniques, ...
33 %
Système de chauffage, eau chaude sanitaire, électricité, entretiens techniques, ...
La détection de la pollution sonore est toujours pour une partie personnelle. L’environnement ne ressent pas ennuyeux du point de vue pollution sonore, même si la maison est située dans une zone avec une charge de 63,94 dB autour de la chaussée de Waterloo selon la carte de l’année 2018 (Geopunt).
Attention : à long terme, il y a certainement bien des meilleures optimisations à recommander, comme indiqué dans le rapport, mais pour l’obligation flamande de rénovation dans les 5 ans suivant l’achat (à partir de janvier 2023) il n’y a pas de problème à court terme : le label EPC est actuellement déjà D, comme obligatoire dans les 5 ans après achat.
Situation existante supposée approuvée, donnée que sinon le compteur n’aurait pas été ouvert au premier raccordement. Des modifications apportées à l’installation peuvent nécessiter une nouvelle inspection. Aucune information sur telles modifications n’était disponible au moment de l’établissement du rapport pour cet audit.
Ancien citerne hors sol existant nettoyé, dégazé et déconnecté.
Il n’y a certainement pas de soupçon de niveaux d’eau élevés permanents autour de la maison, sinon il devrait y avoir des traces fréquentes de sous-débit des espaces du sous-sol. Après tout, il y a certaines traces d’humidité dans les murs et les sols du sous-sol, également dans les parois latérales de l’escalier extérieur vers le sous-sol: donc l'étanchéité des murs n’est certainement pas intact, mais ce n’est pas nécessairement un problème structurel: tant qu’il y a une ventilation suffisante et tant qu’on évite le stockage des matières sensibles à l’humidité, il n’y a essentiellement aucun problème. S’il y a un désir d’obtenir un sous-sol complètement étanche, un cuvelage intérieur complet avec cimentation imperméable au sol et (à l’intérieur des) murs extérieurs est recommandé. Cependant, ce cuvelage doit alors être continu, c’est-à-dire ne peut pas être cassé par une vis ou un clou à ce moment-là.
Probablement aucun arbre ou haie vraiment classé, pas mentionné au moment de l’établissement de ce rapport. Informer auprès de la commune avant de réaliser des changements souhaités.
Mentionné lors de la visite: pas de problèmes structurels avec la piscine et l’installation technique, mais le revêtement (liner) doit être remplacé en raison de l’âge.
Voir certificat disponible: là où visible, une plaque de montage pour une boîte à fusibles et un tube en amiante ont été constaté. Conseils à suivre selon le certificat.
Aucune impression d'humidité généralisée, mais voir quand même remarque 2.4
Toitures entièrement remplacées en 2022
idem 4.5
Voir aussi les commentaires sur le certificat EPC : il semble y avoir 7,7 m2 de fenêtres avec simple vitrage. Il est préférable de les remplacer. Pour les autres fenêtres, il semble qu’il y ait un état rénové datant de plusieurs moments différents, parfois un remplacement complet des fenêtres et du vitrage, souvent aussi avec l’ajout d’une deuxième couche de vitrage montée sur les châssis de fenêtre existants. Comme mentionné précédemment: le certificat EPC donne actuellement un niveau ‘D’, de sorte que l’acheteur n’a formellement aucune obligation de rénovation substantielle dans les 5 ans suivant l’achat. Mais en vue de réduire de manière optimale la consommation d’énergie, on peut certainement dire qu’avec une situation renouvelée des fenêtres, un profit encore plus grand peut être réalisé: la valeur ‘U’ des fenêtres et du double vitrage peut donc être considérablement améliorée et cela sera également définissable, ce qui n’est pas vraiment le cas avec le système de la 2ème couche de verre ajoutée. Dans ce cas, il est également évidemment important de respecter au maximum l’architecture originale de la maison, même si le bien ne semble pas formellement classé. L’introduction de profilés de fenêtres contemporains peut changer considérablement tout le caractère de la maison, aussi même plus qu’acceptable. Une solution peut être de créer un profil de fenêtre en bois aussi proche que possible de l’original, mais équipé du double vitrage actuel. Il existe également des doubles vitrages spéciaux plus fins, comme pour l’application dans certains monuments classés, même si au niveau de la valeur ‘U’ on devra peut-être vivre avec une solution de ‘compromis’: la situation au niveau de prestation thermique sera sans doute encore meilleure qu’actuellement.
Actuellement, en Flandre, les détecteurs de fumée optiques sont obligatoires dans toutes les maisons neuves + maisons ayant subi une rénovation pour laquelle un permis d’urbanisme est requis. Même si ce n’était pas le cas récemment, l’installation d’au moins un détecteur de fumée par étage est recommandée. En ce sens, un grenier ou un sous-sol dans lequel se trouvent des installations techniques est considéré comme un ‘étage séparé’.
Seul problème à examiner et résoudre: sur un mur de l’espace de vie du studio séparé, il y a une traînée d’humidité qui est probablement causée par une petite fuite interne ailleurs dans la maison.
Voir 2.4: murs et sols des caves ne semblent pas parfaitement sec. dépendant de l'emploi de la cave, cela ne veut pas nécessairement dire que la situation est problématique.
Pas ou très peu de traces de moisissure, donc ventilation considéré étant ok.
voir 2.4, remarque idem que pour les caves
voir remarques données
Attestations indisponible lors de l'établissement de cet audit.
Attestation de conformité disponible et OK
DATA ROOM
Nous avons mis tous les documents importants dans la date room, n’hésitez pas à télécharger ce dont vous avez besoin !
Nous avons mis tous les documents importants dans la date room, n’hésitez pas à télécharger ce dont vous avez besoin !
Besoin de crédit
Maintenant que vous êtes sûrs d’avoir fait le bon choix, calculez la valeur totale de cette acquisition (valeur du bien et frais annexes) et estimez vos besoins en crédit !
Simulation de crédit
| Prix d'achat | € |
| Rénovation | € |
| Rénovation HTVA | {{ calculeData.renovationHTVA | number:2 }} € |
| TVA | {{ calculeData.tva | number:2 }} € |
| Fonds propres | € |
| Acompte dû (disponible au compromis de vente) | {{ calculeData.prix * 0.1 | number:2 }} € |
| Reste des liquidités (disponible à l'acte) | {{ calculeData.avance | number:2 }} € |
| Crédit pont | {{ calculeData.creditPont | number:2 }} € |
| Prix de vente de votre bien existant | € |
| Solde du crédit existant | € |
| Frais d'acte d'achat | {{ calculeData.droit + calculeData.fraisNotaire | number:2 }} € |
| Droits d'enregistrement | {{ calculeData.droit | number:2 }} € |
|
Abattement
Suis-je éligible à une réduction des droits d’enregistrement ? |
|
| Frais de notaire | {{ calculeData.fraisNotaire | number:2 }} € |
| Autres frais | {{ calculeData.inscription + calculeData.fraisDossier + calculeData.autreFrais | number:2 }} € |
| Frais liés à l'acte hypothécaire | {{ calculeData.inscription | number:2 }} € |
| Frais de dossier et expertise bancaire | {{ calculeData.fraisDossier | number:2 }} € |
| Autres frais | € |
| Montant du crédit | {{ calculeData.montantCredit | number:2 }} € | |
Choix du type de crédit
| Taux | Type | CAP | Mensualité | Mensualité Min | Mensualité Max | |
|---|---|---|---|---|---|---|
| {{ tx.banque }} {{ $index+1 }} | {{ tx.taux | number:2 }}% | {{ tx.type }} | -{{ tx.capNeg }}%/+{{ tx.capPos }}% | {{ tx.mens | number:2 }}€ | {{ tx.min | number:2 }}€ | {{ tx.max | number:2 }}€ |
| Taux | Type | CAP | Mensualité | Mensualité Min | Mensualité Max | |
|---|---|---|---|---|---|---|
| {{ tx.banque }} {{ $index+1 }} | {{ tx.taux | number:2 }}% | {{ tx.type }} | -{{ tx.capNeg }}%/+{{ tx.capPos }}% | {{ tx.mens | number:2 }}€ | {{ tx.min | number:2 }}€ | {{ tx.max | number:2 }}€ |
| Taux | Type | CAP | Mensualité | Mensualité Min | Mensualité Max | |
|---|---|---|---|---|---|---|
| {{ tx.banque }} {{ $index+1 }} | {{ tx.taux | number:2 }}% | {{ tx.type }} | -{{ tx.capNeg }}%/+{{ tx.capPos }}% | {{ tx.mens | number:2 }}€ | {{ tx.min | number:2 }}€ | {{ tx.max | number:2 }}€ |
Rentabilité
Cout total de l’acquisition
| Prix d'achat | {{ calculeData.prix | number:2 }} € |
| Rénovation | + {{ calculeData.prixTransRenovation | number:2 }} € |
| Frais | + {{ calculeData.frais | number:2 }} € |
| Coût total | + {{ calculeData.frais + calculeData.prixTransRenovation + calculeData.prix | number:2 }} € |
| Fonds propres + crédit pont | {{ calculeData.totalFP+calculeData.creditPont | number:2 }} € |
| Montant du crédit | {{ calculeData.montantCredit | number:2 }} € |
| Coût total | + {{ calculeData.creditPont + calculeData.totalFP + calculeData.montantCredit | number:2 }} € |
Rentabilité sur actifs
Durée de détention année(s)
Gain réel {{ calculeData.gainReel | number:0 }} €
Rendement sur actif {{ calculeData.rendementSurActif | number:2 }} %
Revenus
| Revenu locatif annuel Brut | € |
| Charge annuelle {{ calculeData.pourcentageCharge | number:2 }}% | {{ calculeData.chargeLocatifAnnuel | number:2 }} € |
| Précompte immobilier | {{ calculeData.precomteImmo | number:2 }} € |
| Autre charge annuelle | € |
| Revenu locatif annuel net | {{ calculeData.revenuLocatifAnnuelNet | number:2 }} € |
| Total revenu locatif après {{ calculeData.dureeDetention }} année(s) tenant compte d'une inflation de % |
{{ calculeData.totalRevenuLocatif | number:2 }} € |
| Plus-value latente | {{ calculeData.pluvalueLatente | number:2 }} % |
| Plus-value du bien après {{calculeData.dureeDetention}} année(s) | {{ calculeData.pluvalueBien | number:2 }} € |
| Total revenu locatif après {{ calculeData.dureeDetention }} année(s) | {{ calculeData.totalRevenuLocatif | number:2 }} € |
| Gain brut sur le prix de base après {{ calculeData.dureeDetention }} année(s) | +{{ calculeData.gainBrut | number:2 }} € |
Charges
| Durée du crédit | {{ calculeData.duree | number:2 }} ans |
| Taux | {{ calculeData.taux | number:2 }} % |
| Mensualité | {{ calculeData.mensualite | number:2 }} € |
| Total interêts après {{calculeData.dureeDetention}} année(s) | {{ calculeData.totalInteret | number:2 }} € |
| Total frais | {{ calculeData.frais | number:2 }} € |
| Total | {{ calculeData.InteretFrais | number:2 }} € |
Gain réel
Rendement sur actif
Cash flow
| Année | Coût | Revenu locatif | Gain |
|---|---|---|---|
| {{ $index }} | {{ ch.payment | number:2 }} € | {{ ch.revenuLocatif | number:2 }} € | {{ - ch.fondPropre | number:2 }} € |
Av. Louise 433 Louizalaan 1050 Bruxelles - Brussel
Drève Richelle, 96 - 1410 Waterloo