Suis-je éligible à une réduction des droits d’enregistrement ?
NIEUWENHOVE 75
PRIX : 795 000 €
Type: Immeuble | Région: Bruxelles | Commune: Uccle
Situé dans une rue perpendiculaire à la célèbre Chaussée d'Alsemberg, dans le quartier Globe, à deux pas des magasins et des transports en commun,
By the Way vous présente cet immeuble de rapport sans ascenseur composé de 4 appartements bien entretenus.
Tous les appartements sont loués.
Composition :
- Au rez-de-chaussée, appartement 1 chambre +/- 63m2 (selon PEB), grand hall d'entrée pouvant servir de bureau, séjour, cuisine séparée équipée, salle de bains et WC séparé.
Grande cour intérieure +/- 15,5m2. PEB G.
- Aux 3 autres étages, appartements 1 chambre + bureau +/- 66m2 (selon PEB), séjour, cuisine séparée équipée, salle de bains et WC séparé.
PEB E-, E & G.
Électricité non conforme pour l'ensemble des unités.
Au sous-sol, caves et chaufferie.4 chaudières individuelles au gaz Buderus de 2017.
Surface Totale: 259 M²
Chambres: 4
Salles de bain: 3
Salle de douche: 1
Terrasse: 1
Caves: 2
Bureaux: 4
Vidéo
Découvrez le bien en visualisant cette vidéo
VISITE VIRTUELLE
Vous voulez en voir plus ? Visitez le bien comme si vous y étiez à travers cette visite virtuelle
Localisation
Ce bien vous correspond ? Découvrez maintenant si sa localisation vous convient !
Commerces
Pharmacies
Restaurants
Boulangeries
Crèches
Parcs
Écoles
Universités
Déplacements
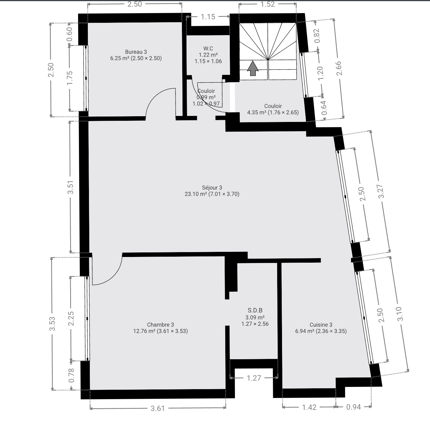
Plans intérieurs
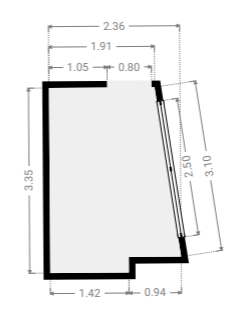
Sous-sol
SURFACE TOTALE : 16.36 m² | SURFACE HABITABLE : 16.36 m² |
PIÈCE(S) : 5
2x Couloir(s)
2x Cave (s)
1x Chaufferie
Couloir
SURFACE : 3.88 m²
Couloir
SURFACE : 5.9 m²
Cave 1
SURFACE : 1.33 m²
Chaufferie
SURFACE : 3.74 m²
Cave 2
SURFACE : 1.54 m²
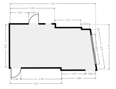
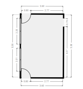
Rez-de-chaussée
SURFACE TOTALE : 67.84 m² | SURFACE HABITABLE : 52.28 m² |
PIÈCE(S) : 8
1x Séjour 1
1x Chambre 1
1x Cuisine 1
1x Toilettes
2x Couloir(s)
1x Bureau 1
1x S.D.D
1x Terrasse
Séjour 1
SURFACE : 19.39 m²
Chambre 1
SURFACE : 9.24 m²
Cuisine 1
SURFACE : 4.62 m²
Toilettes
SURFACE : 0.91 m²
Couloir
SURFACE : 4.12 m²
Bureau 1
SURFACE : 7.97 m²
S.D.D 1
SURFACE : 5.16 m²
Couloir
SURFACE : 0.92 m²
Terrasse
SURFACE : 15.56 m²
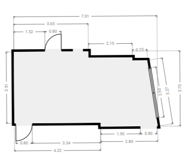
1er étage
SURFACE TOTALE : 57.85 m² | SURFACE HABITABLE : 57.85 m² |
PIÈCE(S) : 8
1x Bureau 2
1x Séjour 2
1x Chambre 2
2x Couloir(s)
1x W.C
1x S.D.B
1x Cuisine 2
Bureau 2
SURFACE : 6.1 m²
Séjour 2
SURFACE : 22.87 m²
Chambre 2
SURFACE : 12.42 m²
Couloir
SURFACE : 1.06 m²
W.C
SURFACE : 1.16 m²
Couloir
SURFACE : 4.35 m²
S.D.B
SURFACE : 3.07 m²
Cuisine 2
SURFACE : 6.85 m²
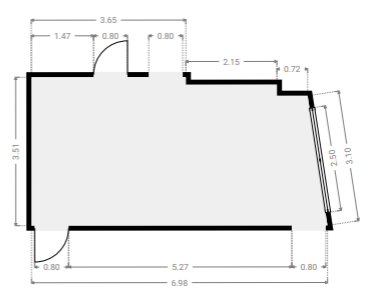
2e étage
SURFACE TOTALE : 58.67 m² | SURFACE HABITABLE : 58.67 m² |
PIÈCE(S) : 8
1x Bureau 3
1x Séjour 3
1x Chambre 3
2x Couloir(s)
1x W.C
1x S.D.B
1x Cuisine 3
Bureau 3
SURFACE : 6.25 m²
Séjour 3
SURFACE : 23.1 m²
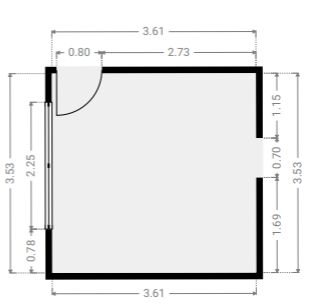
Chambre 3
SURFACE : 12.76 m²
Couloir
SURFACE : 0.99 m²
W.C
SURFACE : 1.22 m²
S.D.B
SURFACE : 3.1 m²
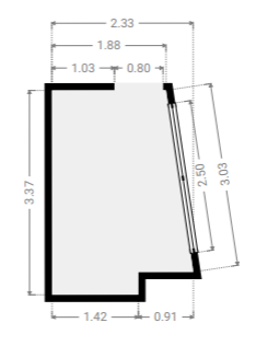
Cuisine 3
SURFACE : 6.94 m²
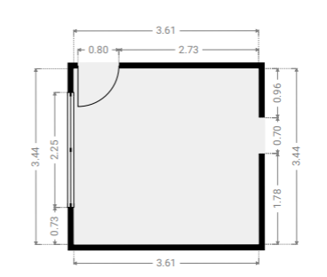
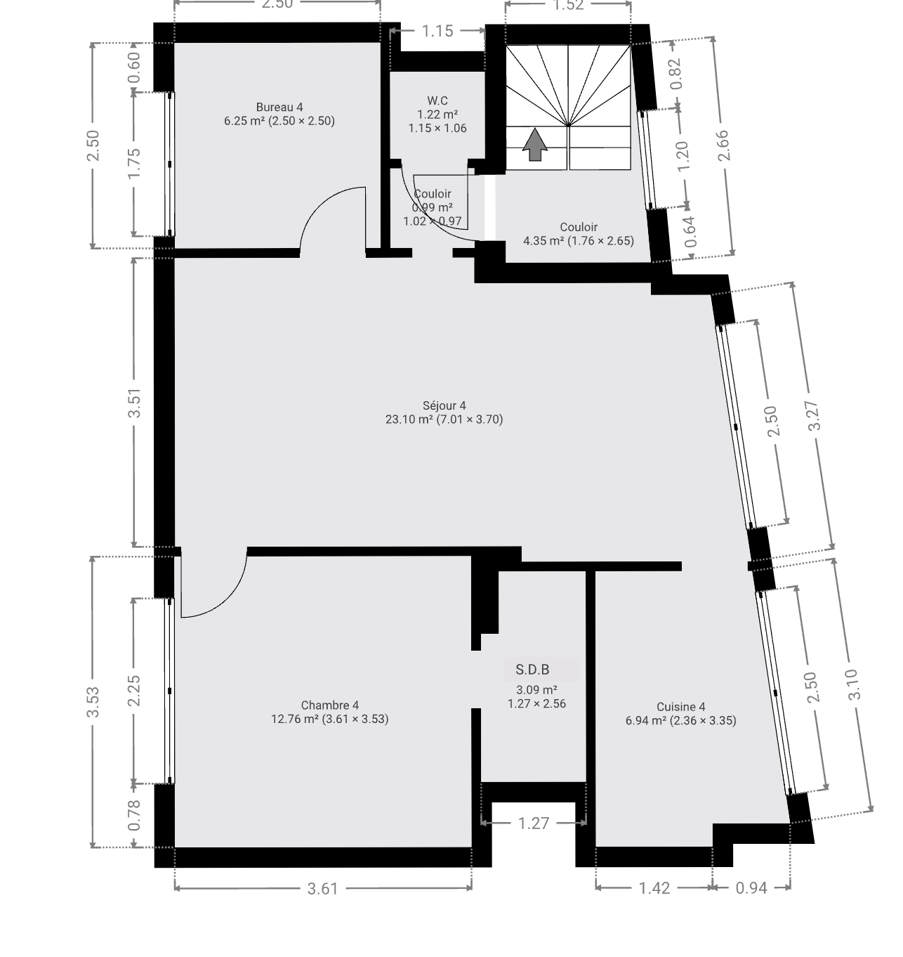
3e étage
SURFACE TOTALE : 58.67 m² | SURFACE HABITABLE : 58.67 m² |
PIÈCE(S) : 8
1x Bureau 4
1x Séjour 4
1x Chambre 4
2x Couloir(s)
1x W.C
1x S.D.B
1x Cuisine 4
Bureau 4
SURFACE : 6.25 m²
Séjour 4
SURFACE : 23.1 m²
Chambre 4
SURFACE : 12.76 m²
Couloir
SURFACE : 0.99 m²
W.C
SURFACE : 1.22 m²
S.D.B
SURFACE : 3.1 m²
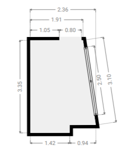
Cuisine 4
SURFACE : 6.94 m²
RECHERCHE CADASTRALE
Vous souhaitez mieux connaître votre parcelle et connaître la surface dont vous jouirez en achetant ce bien, alors consulter le cadastre est nécessaire !
Certificats
Informez-vous sur la performance énergétique de ce bien et assurez-vous que ses installations électriques sont bien aux normes !
PERFORMANCE ÉNERGÉTIQUE REZ-DE-CHAUSSÉE
Économe
Très énergivore
PERFORMANCE ÉNERGÉTIQUE 1ER ÉTAGE
Économe
Très énergivore
PERFORMANCE ÉNERGÉTIQUE 2ÈME ÉTAGE
Économe
Très énergivore
PERFORMANCE ÉNERGÉTIQUE 3ÈME ÉTAGE
Économe
Très énergivore
CERTIFICAT ÉLECTRIQUE REZ-DE-CHAUSSÉE /1ER ÉTAGE /2ÈME ÉTAGE / 3ÈME ÉTAGE
PROCES VERBAL D’EXAMEN DE CONFORMITE ET/OU DE VISITE DE CONTROLE D’UNE INSTALLATION ELECTRIQUE BASSE TENSION
La nouvelle installationNon conforme
Agent
visiteur
Philippe Da Silva
Date
de certification
30/06/2023
Visite de contrôle
à effectuer avant le
du délai de 18 mois prenant cours le jour de l’actede vente .
État des sols
La pollution du sol a un impact sur l'environnement et sur la santé, les risques d’inondation ont un impact sur votre qualité de vie… Consultez les données relatives à ce bien pour en avoir le cœur net !
ÉTAT DE LA POLLUTION DES SOLS
Aucune remarque particulière pour la parcelle B6w
Dernière mise à jour le 30/11/2023
Source : Cliquez-ici
Légende :
ZONE INONDABLE
La parcelle B6w est dans la zone d'Aléa moyen
Dernière mise à jour le 30/11/2023
Source : Cliquez-ici
Légende :
DATA ROOM
Nous avons mis tous les documents importants dans la date room, n’hésitez pas à télécharger ce dont vous avez besoin !
Nous avons mis tous les documents importants dans la date room, n’hésitez pas à télécharger ce dont vous avez besoin !
Besoin de crédit
Maintenant que vous êtes sûrs d’avoir fait le bon choix, calculez la valeur totale de cette acquisition (valeur du bien et frais annexes) et estimez vos besoins en crédit !
Simulation de crédit
| Prix d'achat | € |
| Rénovation | € |
| Rénovation HTVA | {{ calculeData.renovationHTVA | number:2 }} € |
| TVA | {{ calculeData.tva | number:2 }} € |
| Fonds propres | € |
| Acompte dû (disponible au compromis de vente) | {{ calculeData.prix * 0.1 | number:2 }} € |
| Reste des liquidités (disponible à l'acte) | {{ calculeData.avance | number:2 }} € |
| Crédit pont | {{ calculeData.creditPont | number:2 }} € |
| Prix de vente de votre bien existant | € |
| Solde du crédit existant | € |
| Frais d'acte d'achat | {{ calculeData.droit + calculeData.fraisNotaire | number:2 }} € |
| Droits d'enregistrement | {{ calculeData.droit | number:2 }} € |
|
Abattement
Suis-je éligible à une réduction des droits d’enregistrement ? |
|
| Frais de notaire | {{ calculeData.fraisNotaire | number:2 }} € |
| Autres frais | {{ calculeData.inscription + calculeData.fraisDossier + calculeData.autreFrais | number:2 }} € |
| Frais liés à l'acte hypothécaire | {{ calculeData.inscription | number:2 }} € |
| Frais de dossier et expertise bancaire | {{ calculeData.fraisDossier | number:2 }} € |
| Autres frais | € |
| Montant du crédit | {{ calculeData.montantCredit | number:2 }} € | |
La présente simulation se base sur un taux d’intérêt du 26/01/2024. Ce calcul est indicatif et sujet à changement.
Choix du type de crédit
| Taux | Type | CAP | Mensualité | Mensualité Min | Mensualité Max | |
|---|---|---|---|---|---|---|
| {{ tx.banque }} {{ $index+1 }} | {{ tx.taux | number:2 }}% | {{ tx.type }} | -{{ tx.capNeg }}%/+{{ tx.capPos }}% | {{ tx.mens | number:2 }}€ | {{ tx.min | number:2 }}€ | {{ tx.max | number:2 }}€ |
| Taux | Type | CAP | Mensualité | Mensualité Min | Mensualité Max | |
|---|---|---|---|---|---|---|
| {{ tx.banque }} {{ $index+1 }} | {{ tx.taux | number:2 }}% | {{ tx.type }} | -{{ tx.capNeg }}%/+{{ tx.capPos }}% | {{ tx.mens | number:2 }}€ | {{ tx.min | number:2 }}€ | {{ tx.max | number:2 }}€ |
| Taux | Type | CAP | Mensualité | Mensualité Min | Mensualité Max | |
|---|---|---|---|---|---|---|
| {{ tx.banque }} {{ $index+1 }} | {{ tx.taux | number:2 }}% | {{ tx.type }} | -{{ tx.capNeg }}%/+{{ tx.capPos }}% | {{ tx.mens | number:2 }}€ | {{ tx.min | number:2 }}€ | {{ tx.max | number:2 }}€ |
Rentabilité
Cout total de l’acquisition
| Prix d'achat | {{ calculeData.prix | number:2 }} € |
| Rénovation | + {{ calculeData.prixTransRenovation | number:2 }} € |
| Frais | + {{ calculeData.frais | number:2 }} € |
| Coût total | + {{ calculeData.frais + calculeData.prixTransRenovation + calculeData.prix | number:2 }} € |
| Fonds propres + crédit pont | {{ calculeData.totalFP+calculeData.creditPont | number:2 }} € |
| Montant du crédit | {{ calculeData.montantCredit | number:2 }} € |
| Coût total | + {{ calculeData.creditPont + calculeData.totalFP + calculeData.montantCredit | number:2 }} € |
Rentabilité sur actifs
Durée de détention année(s)
Gain réel {{ calculeData.gainReel | number:0 }} €
Rendement sur actif {{ calculeData.rendementSurActif | number:2 }} %
Revenus
| Revenu locatif annuel Brut | € |
| Charge annuelle {{ calculeData.pourcentageCharge | number:2 }}% | {{ calculeData.chargeLocatifAnnuel | number:2 }} € |
| Précompte immobilier | {{ calculeData.precomteImmo | number:2 }} € |
| Autre charge annuelle | € |
| Revenu locatif annuel net | {{ calculeData.revenuLocatifAnnuelNet | number:2 }} € |
| Total revenu locatif après {{ calculeData.dureeDetention }} année(s) tenant compte d'une inflation de % |
{{ calculeData.totalRevenuLocatif | number:2 }} € |
| Plus-value latente | {{ calculeData.pluvalueLatente | number:2 }} % |
| Plus-value du bien après {{calculeData.dureeDetention}} année(s) | {{ calculeData.pluvalueBien | number:2 }} € |
| Total revenu locatif après {{ calculeData.dureeDetention }} année(s) | {{ calculeData.totalRevenuLocatif | number:2 }} € |
| Gain brut sur le prix de base après {{ calculeData.dureeDetention }} année(s) | +{{ calculeData.gainBrut | number:2 }} € |
Charges
| Durée du crédit | {{ calculeData.duree | number:2 }} ans |
| Taux | {{ calculeData.taux | number:2 }} % |
| Mensualité | {{ calculeData.mensualite | number:2 }} € |
| Total interêts après {{calculeData.dureeDetention}} année(s) | {{ calculeData.totalInteret | number:2 }} € |
| Total frais | {{ calculeData.frais | number:2 }} € |
| Total | {{ calculeData.InteretFrais | number:2 }} € |
Gain réel
Rendement sur actif
Cash flow
| Année | Coût | Revenu locatif | Gain |
|---|---|---|---|
| {{ $index }} | {{ ch.payment | number:2 }} € | {{ ch.revenuLocatif | number:2 }} € | {{ - ch.fondPropre | number:2 }} € |
Av. Louise 433 1050 Bruxelles - 02 648 01 20
Drève Richelle 96 1410 Waterloo - 02 354 29 39
Av. Prekelinden 83 1200 Woluwe-St-Lambert - 02 734 00 36