Suis-je éligible à une réduction des droits d’enregistrement ?
MONUMENT 29
PRIX : 430 000,00€
Type: Maison | Région: Wallonie | Commune: Ottignies-Louvain-la-Neuve
Située à 1km de la gare d’Ottignies, à deux pas du centre-ville et de nombreux commerces, cette charmante maison trois façades allie parfaitement le charme de l’ancien et le style contemporain. Le hall d’entrée avec son escalier en bois donne accès au vaste séjour avec le salon et la salle à manger, prolongée par un espace bureau et WC. Un poêle à pellet (2022) vous réchauffera en hiver. La cuisine est full équipé avec un ilot central et un plan de travail en pierre bleue. Le jardin, plat et clôturé, est orienté au Sud-Est avec une belle terrasse de +/- 100m², un cabanon et un poulailler. Au 1er étage, le palier dessert deux vastes chambres, la buanderie et une spacieuse salle de bain avec WC. Au 2e étage, grande chambre mansardée avec dressing, avec la possibilité de la diviser en 2 belles chambres, salle d’eau avec douche à l’italienne et WC. Au sous-sol, de nombreuses caves (équipées de VMC) se situent sous l’entièreté de la maison avec un accès direct au jardin. Energies : PEB D et électricité conforme, chauffage central au gaz à condensation (2021) et châssis doubles vitrages. Production d’eau chaude via boiler électrique. Adoucisseur d’eau. Toiture remplacée en 2007 et isolée. Une seconde cuisine au 2e étage permet d’envisager sous un même toit une habitation KANGOUROU ou un STUDIO étudiant.
Greniers: 1
Surface totale: 239 m²
Jardin orienté au sud-est
Chambres: 3
Salles de bain: 2
Terrasse: oui
Caves: 4
Bureau: 1
Vidéo
Découvrez le bien en visualisant cette vidéo
VISITE VIRTUELLE
Vous voulez en voir plus ? Visitez le bien comme si vous y étiez à travers cette visite virtuelle
Localisation
Ce bien vous correspond ? Découvrez maintenant si sa localisation vous convient !
Commerces
Pharmacies
Restaurants
Boulangeries
Crèches
Parcs
Écoles
Universités
Déplacements
Plans intérieurs
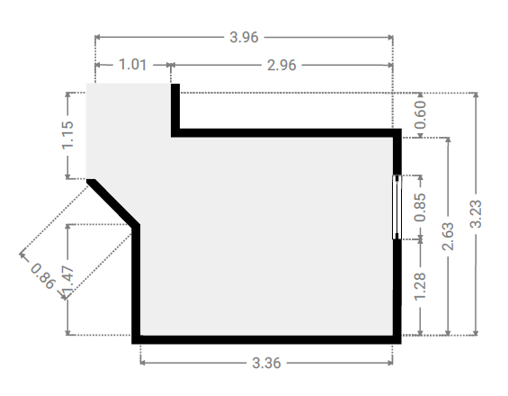
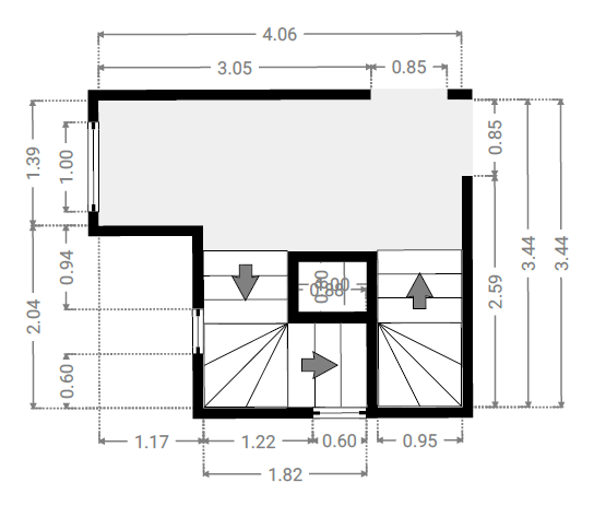
Sous-sol
SURFACE TOTALE : 57.48 m² | SURFACE HABITABLE : 0 m² | PIÈCE(S) : 5
1x Couloir
1x Cave 4
Cave 2
SURFACE : 19.77 m²
Cave 1
SURFACE : 16.21 m²
Cave 3
SURFACE : 7.72 m²
Couloir
SURFACE : 11.5 m²
Cave 4
SURFACE : 2.31 m²
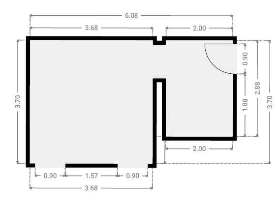
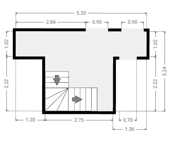
Rez-de-chaussée
SURFACE TOTALE : 67.09 m² | SURFACE HABITABLE : 67.09 m² | PIÈCE(S) : 6
1x Bureau
1x W.C
1x Salle à manger
1x Séjour
1x Cuisine
1x Hall
Bureau
SURFACE : 6.27 m²
W.C
SURFACE : 0.85 m²
Salle à manger
SURFACE : 14.26 m²
Séjour
SURFACE : 17.1 m²
Cuisine
SURFACE : 20.12 m²
Hall
SURFACE : 8.52 m²
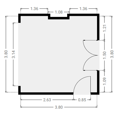
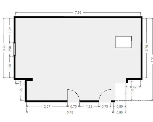
1er étage
SURFACE TOTALE : 60.4 m² | SURFACE HABITABLE : 60.4 m² | PIÈCE(S) : 6
1x Chambre(s)
2x Couloir(s)
1x Buanderie
1x S.D.B 1
Chambre 3
SURFACE : 14.27 m²
Chambre 2
SURFACE : 15.28 m²
Couloir
SURFACE : 2.5 m²
Buanderie
SURFACE : 6.04 m²
S.D.B 1
SURFACE : 11.69 m²
Couloir
SURFACE : 10.66 m²
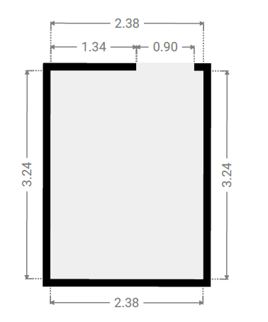
2e étage
SURFACE TOTALE : 54.26 m² | SURFACE HABITABLE : 54.26 m² | PIÈCE(S) : 4
1x Chambre
1x Couloir
1x S.D.B 2
1x Dressing
Chambre 1
SURFACE : 37.58 m²
Couloir
SURFACE : 1.9 m²
S.D.B 2
SURFACE : 4.85 m²
Dressing
SURFACE : 9.96 m²
RECHERCHE CADASTRALE
Vous souhaitez mieux connaître votre parcelle et connaître la surface dont vous jouirez en achetant ce bien, alors consulter le cadastre est nécessaire !
État des sols
La pollution du sol a un impact sur l'environnement et sur la santé, les risques d’inondation ont un impact sur votre qualité de vie… Consultez les données relatives à ce bien pour en avoir le cœur net !
ÉTAT DE LA POLLUTION DES SOLS
Aucune remarque particulière pour le parcelle D71d5
Source : Cliquez-ici
Légende :
ZONE INONDABLE
Aucune remarque particulière pour le parcelle D71d5
Source : Cliquez-ici
Légende :
Certificats
Informez-vous sur la performance énergétique de ce bien et assurez-vous que ses installations électriques sont bien aux normes !
PERFORMANCE ÉNERGÉTIQUE
Économe
Très énergivore
CERTIFICAT ÉLECTRIQUE
PROCES VERBAL D’EXAMEN DE CONFORMITE ET/OU DE VISITE DE CONTROLE D’UNE INSTALLATION ELECTRIQUE BASSE TENSION
La nouvelle installationConforme
INDICATEURS SPÉCIFIQUES
| Besoins en chaleur du lanhement | ||||
| excessifts | élevés | moyens | faible | minimes |
| Performance des installations de chauffage | ||||
| médicore | insuffisante | satisfaisante | bonne | excellente |
| Performance des installations d'eau chaude sanitaire | ||||
| médicore | insuffisante | satisfaisante | bonne | excellente |
| Système de ventillation | ||||
| absent | très partiel | partiel | incomplet | complate |
DATA ROOM
Nous avons mis tous les documents importants dans la date room, n’hésitez pas à télécharger ce dont vous avez besoin !
Nous avons mis tous les documents importants dans la date room, n’hésitez pas à télécharger ce dont vous avez besoin !
Besoin de crédit
Maintenant que vous êtes sûrs d’avoir fait le bon choix, calculez la valeur totale de cette acquisition (valeur du bien et frais annexes) et estimez vos besoins en crédit !
Simulation de crédit
| Prix d'achat | € |
| Rénovation | € |
| Rénovation HTVA | {{ calculeData.renovationHTVA | number:2 }} € |
| TVA | {{ calculeData.tva | number:2 }} € |
| Fonds propres | € |
| Acompte dû (disponible au compromis de vente) | {{ calculeData.prix * 0.1 | number:2 }} € |
| Reste des liquidités (disponible à l'acte) | {{ calculeData.avance | number:2 }} € |
| Crédit pont | {{ calculeData.creditPont | number:2 }} € |
| Prix de vente de votre bien existant | € |
| Solde du crédit existant | € |
| Frais d'acte d'achat | {{ calculeData.droit + calculeData.fraisNotaire | number:2 }} € |
| Droits d'enregistrement | {{ calculeData.droit | number:2 }} € |
|
Abattement
Suis-je éligible à une réduction des droits d’enregistrement ? |
|
| Frais de notaire | {{ calculeData.fraisNotaire | number:2 }} € |
| Autres frais | {{ calculeData.inscription + calculeData.fraisDossier + calculeData.autreFrais | number:2 }} € |
| Frais liés à l'acte hypothécaire | {{ calculeData.inscription | number:2 }} € |
| Frais de dossier et expertise bancaire | {{ calculeData.fraisDossier | number:2 }} € |
| Autres frais | € |
| Montant du crédit | {{ calculeData.montantCredit | number:2 }} € | |
La présente simulation se base sur un taux d’intérêt du 29/05/2024. Ce calcul est indicatif et sujet à changement.
Choix du type de crédit
| Taux | Type | CAP | Mensualité | Mensualité Min | Mensualité Max | |
|---|---|---|---|---|---|---|
| {{ tx.banque }} {{ $index+1 }} | {{ tx.taux | number:2 }}% | {{ tx.type }} | -{{ tx.capNeg }}%/+{{ tx.capPos }}% | {{ tx.mens | number:2 }}€ | {{ tx.min | number:2 }}€ | {{ tx.max | number:2 }}€ |
| Taux | Type | CAP | Mensualité | Mensualité Min | Mensualité Max | |
|---|---|---|---|---|---|---|
| {{ tx.banque }} {{ $index+1 }} | {{ tx.taux | number:2 }}% | {{ tx.type }} | -{{ tx.capNeg }}%/+{{ tx.capPos }}% | {{ tx.mens | number:2 }}€ | {{ tx.min | number:2 }}€ | {{ tx.max | number:2 }}€ |
| Taux | Type | CAP | Mensualité | Mensualité Min | Mensualité Max | |
|---|---|---|---|---|---|---|
| {{ tx.banque }} {{ $index+1 }} | {{ tx.taux | number:2 }}% | {{ tx.type }} | -{{ tx.capNeg }}%/+{{ tx.capPos }}% | {{ tx.mens | number:2 }}€ | {{ tx.min | number:2 }}€ | {{ tx.max | number:2 }}€ |
Rentabilité
Cout total de l’acquisition
| Prix d'achat | {{ calculeData.prix | number:2 }} € |
| Rénovation | + {{ calculeData.prixTransRenovation | number:2 }} € |
| Frais | + {{ calculeData.frais | number:2 }} € |
| Coût total | + {{ calculeData.frais + calculeData.prixTransRenovation + calculeData.prix | number:2 }} € |
| Fonds propres + crédit pont | {{ calculeData.totalFP+calculeData.creditPont | number:2 }} € |
| Montant du crédit | {{ calculeData.montantCredit | number:2 }} € |
| Coût total | + {{ calculeData.creditPont + calculeData.totalFP + calculeData.montantCredit | number:2 }} € |
Rentabilité sur actifs
Durée de détention année(s)
Gain réel {{ calculeData.gainReel | number:0 }} €
Rendement sur actif {{ calculeData.rendementSurActif | number:2 }} %
Revenus
| Revenu locatif annuel Brut | € |
| Charge annuelle {{ calculeData.pourcentageCharge | number:2 }}% | {{ calculeData.chargeLocatifAnnuel | number:2 }} € |
| Précompte immobilier | {{ calculeData.precomteImmo | number:2 }} € |
| Autre charge annuelle | € |
| Revenu locatif annuel net | {{ calculeData.revenuLocatifAnnuelNet | number:2 }} € |
| Total revenu locatif après {{ calculeData.dureeDetention }} année(s) tenant compte d'une inflation de % |
{{ calculeData.totalRevenuLocatif | number:2 }} € |
| Plus-value latente | {{ calculeData.pluvalueLatente | number:2 }} % |
| Plus-value du bien après {{calculeData.dureeDetention}} année(s) | {{ calculeData.pluvalueBien | number:2 }} € |
| Total revenu locatif après {{ calculeData.dureeDetention }} année(s) | {{ calculeData.totalRevenuLocatif | number:2 }} € |
| Gain brut sur le prix de base après {{ calculeData.dureeDetention }} année(s) | +{{ calculeData.gainBrut | number:2 }} € |
Charges
| Durée du crédit | {{ calculeData.duree | number:2 }} ans |
| Taux | {{ calculeData.taux | number:2 }} % |
| Mensualité | {{ calculeData.mensualite | number:2 }} € |
| Total interêts après {{calculeData.dureeDetention}} année(s) | {{ calculeData.totalInteret | number:2 }} € |
| Total frais | {{ calculeData.frais | number:2 }} € |
| Total | {{ calculeData.InteretFrais | number:2 }} € |
Gain réel
Rendement sur actif
Cash flow
| Année | Coût | Revenu locatif | Gain |
|---|---|---|---|
| {{ $index }} | {{ ch.payment | number:2 }} € | {{ ch.revenuLocatif | number:2 }} € | {{ - ch.fondPropre | number:2 }} € |
Av. Louise 461 1050 Bruxelles - 02 648 01 20
Drève Richelle 96 1410 Waterloo - 02 354 29 39
Av. Prekelinden 83 1200 Woluwe-St-Lambert - 02 734 00 36