Suis-je éligible à une réduction des droits d’enregistrement ?
Merisiers 5
PRIX : 850 000 €
Type: Villa 4 facades | Région: Wallonie | Commune: Genval
Dans le quartier du lac de Genval, au cœur d'un jardin arboré, cette habitation de style "villégiatur" ou normand, remonte au tout début du XXe siècle. Elle a été réalisée par l'architecte Fernand Symons, maitre d'œuvre de plusieurs maisons des bords du lac. Cette élégante demeure est décorée d'un sgraffite sur la façade coté rue, de style art nouveau, "les Œillets": une identité qui lui est propre et souligne son caractère unique. La maison fut rénovée en profondeur en 2004 et 2009 et servit de dépendance au Château du Lac. Spacieuse, elle offre un beau living de +/- 45 m2 avec véranda, un poêle à bois Godin en fonte et petit granit, 4 grandes chambres et 3 salles de bain. Le toit a été refait en 2020. elle est sise sur un terrain de +/- 9 ares. Elle dispose aussi d'un bureau et caves en entresol, trois accès extérieurs et d'un petit garage. Elle est proche du lac, de ses restaurants, du Yachting club, des Papeteries de Genval et à 5 minutes à pieds de la gare de Genval. Elle offre de nombreuses possibilités ( i.e. profession libérale).
Surface habitable: 350 m²
Chambres: 4
Salles de bain: 3
Garage: 1
Bureaux: 2
Parking: 1
Jardin: Oui
Vidéo
Découvrez le bien en visualisant cette vidéo
VISITE VIRTUELLE
Vous voulez en voir plus ? Visitez le bien comme si vous y étiez à travers cette visite virtuelle
Localisation
Ce bien vous correspond ? Découvrez maintenant si sa localisation vous convient !
Commerces
Pharmacies
Restaurants
Boulangeries
Crèches
Parcs
Écoles
Universités
Déplacements
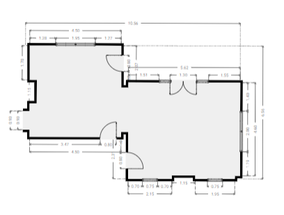
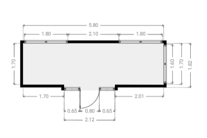
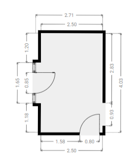
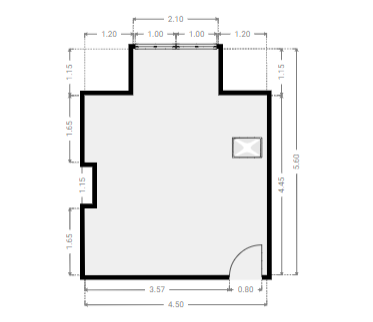
Plans intérieurs
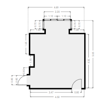
Sous-sol
SURFACE TOTALE : 79.92 m² | SURFACE HABITABLE : 101.47 m² | PIÈCE(S) : 2
1x Chambre
3x Caves
1x Chaufferie
Chambre
SURFACE : 19.33 m²
Cave 3
SURFACE : 13.04 m²
Cave A
SURFACE : 6.96 m²
Cave B
SURFACE : 4.66 m²
Chaufferie
SURFACE : 9.49 m²
Rez-de-chaussée
SURFACE TOTALE : 89.86 m² | SURFACE HABITABLE : 107.06 m² | PIÈCE(S) : 2
1x Entrée
1x Séjour
1x Cuisine
1x Véranda
Entrée
SURFACE : 3.89 m²
Séjour
SURFACE : 46.71 m²
Cuisine
SURFACE : 10.44 m²
Véranda
SURFACE : 19.39 m²
1er étage
SURFACE TOTALE : 81.63 m² | SURFACE HABITABLE : 99.06 m² | PIÈCE(S) : 3
2x Chambres
1x Bureau
2x S.D.B.
Chambre A
SURFACE : 22.36 m²
Chambre B
SURFACE : 26.16 m²
S.D.B. B
SURFACE : 10.14 m²
Bureau
SURFACE : 4.55 m²
S.D.B. A
SURFACE : 9.79 m²
2e étage
SURFACE TOTALE : 55.67 m² | SURFACE HABITABLE : 68.03 m² | PIÈCE(S) : 2
2x Chambres
1x S.D.B.
Chambre A
SURFACE : 22.08 m²
Chambre B
SURFACE : 17.95 m²
S.D.B.
SURFACE : 4.48 m²
RECHERCHE CADASTRALE
Vous souhaitez mieux connaître votre parcelle et connaître la surface dont vous jouirez en achetant ce bien, alors consulter le cadastre est nécessaire !
Surface : 827.99 m²
Parcelle : A224a
Certificats
Informez-vous sur la performance énergétique de ce bien et assurez-vous que ses installations électriques sont bien aux normes !
PERFORMANCE ÉNERGÉTIQUE
Économe
Très énergivore
CERTIFICATEUR ÉLECTRIQUE
PROCES VERBAL D’EXAMEN DE CONFORMITE ET/OU DE VISITE DE CONTROLE D’UNE INSTALLATION ELECTRIQUE BASSE TENSION
La nouvelle installation Non conforme
Agent
visiteur
Julien terorde
Date
de certification
15/12/2017
Doit être
contrôlée avant
18 mois après la signature de l'acte
Audit technique
En prévoyant un budget précis des transformations et/ou réparations à opérer sur ce bien, l'expertise réalisée par un architecte neutre et indépendant vous permet de mieux évaluer la valeur de ce bien !
Score général attribué par l’auditeur *
Conseils généraux en termes de performances énergétiques du bâtiment :
Murs : Etant donné la qualité architecturale du bâtiment, il n'est pas possible de l'isoler par l'extérieur. Si une grosse rénovation est envisagée, il est alors conseillé d'isoler les murs par l'intérieur avec 14cm de laine minérale.
Toiture : La toiture a été rénovée récemment et est donc isolée.
Sol : dans tous les cas il est vivement conseillé d'isoler le sol via le plafond de la cave et d'isoler la petite cloison et la porte menant vers la cave.
Châssis : encore en bon état, cependant si il sont remplacés, il est important de penser à placer des amenées d'air pour la ventilation. Il est cependant conseillé de remplacer les châssis de la partie horizontale du bow-window dans le séjour.
Chauffage : chaudière à remplacer par une chaudière gaz à condensation.
ECS : placer un ballon thermodynamique.
Ventilation : placer des extractions dans les pièces humides.
Avis général et conseils de l'inspecteur :
Belle villa très lumineuse réalisée avec des matériaux et une architecture de qualité.
La maison dans son ensemble est en bon état, quelques travaux immédiats sont à prévoir comme les travaux pour l'humidité en cave, le tubage des cheminées, la chaudière, la ballon d'eau chaude et la cuisine. Prévoir une enveloppe de 50K pour ces travaux.
Pour le reste, ce sera plus un aménagement à réaliser selon les goûts des nouveaux propriétaires comme l'enlèvement des tapis pour récupérer le plancher en bois ou encore l'ajout d'une douche dans le grand wc pour en faire une salle de bain.
DISCLAIMER
La conclusion et les conseils donnés sont le résultat d’une inspection indépendante, réalisée par un architecte expérimenté et agréé par ImmoPass.
Les éventuelles estimations budgétaires contenues dans ce rapport sont données à titre indicatif et ne constituent pas un devis. Nous recommandons de réaliser un Cahier des Charges sur tout ou partie des travaux à entreprendre et une analyse des devis reçus. Les estimations sont exprimées hors taxes.
L’inspection a été réalisée de manière non-destructive, de manière visuelle uniquement. Ce rapport ne peut donc garantir l’absence totale de vices techniques cachés.
100 %
Zone inondable, zone acoustique, plan de secteurs, permis d’urbanisme ...
50 %
Certification énergétique, conformité électrique, cuve à mazout, sol, ...
91 %
Sécurité, aménagements, structures extérieures, entretien végétation, ...
60 %
Humidité généralisée, présence d’amiante, mérule, termites ...
95 %
Toiture, murs extérieurs, châssis et portes, évacuation eau de pluie, ...
94 %
Défauts structurels, humidité localisée, salubrité, état de fonctionnement..
90 %
Halls et escaliers, caves, combles et grenier, locaux techniques, ...
64 %
Système de chauffage, eau chaude sanitaire, électricité, entretiens techniques, ...
Le bien est situé hors de la zone inondable.
Villa inscrite à l'inventaire du patrimoine. Tout semble bien correspondre à ce qui est indiqué dans l'inventaire.
Non reçu.
Non reçu.
Accès très aisé via une allée en klinkers.
Le mur de cave côté pignon gauche et coin avec la façade avant est très humide.
Plusieurs causes sont possibles, il peut y avoir une de ces causes ou plusieurs en même temps :
- descente d'eau à l'angle du bâtiment à vérifier, il se pourrait qu'une partie de l'infiltration provienne d'une mauvaise jonction au niveau de la descente d'eau;
- mauvaise étanchéité du mur de cave contre terre, il faudrait alors réaliser une étanchéité soit par l'extérieur (membrane étanche et enduit bitumineux), soit par l'intérieur (cuvelage);
- humidité ascensionnelle : il faudrait alors injecter le bas des murs;
- tuyaux d'alimentation d'eau encastré qui fuite : il faudrait décaper le mur pour éliminer cette cause;
- entrée d'eau via la cheminée : la coiffe de la cheminée ne déborde pas assez, ce qui fait que l'eau peut rentrer dans la cheminée lors de fortes pluies et descendre jusqu'en cave.
Les gardes-corps ont besoin d'être repeints.
Jardin en bon état d'entretien.
A vérifier si c'est sur la propriété ou juste à côté. Il s'agit d'un hêtre pleureur.
La véranda/bow window est à nettoyer au niveau de la toiture opaque.
La pièce étant plus froide, il serait à envisager l'isolation du sol avec 10cm de polyuréthane via la cave (valable pour tout le rez), budget de 50€/m2 et de remplacer la toiture par des doubles vitrages performants, budget estimé à 8000€.
Amiante utilisée comme calorifuge de tuyauterie de chauffage en cave.
Pas de traces de mérule visible.
Attention à bien traiter les pièces qui ont été attaquées par l'humidité :
- linteau dans la cave (pour bien faire les deux linteaux sont à remplacer : budget de 600€);
- charpente au dernier étage.
Des nouvelles tuyauteries en Alpex on été tirées mais il est possible qu'il reste encore des anciennes tuyauteries en plomb.
Problème d'humidité en cave évoqué ci-avant dans les abords.
Plusieurs murs sont saturés en humidité.
Structure en bon état général, les murs ont été repeints en 2020.
Pas de fissures ou décalage visible.
Toiture refaite en 2020. Les traces présentes sont des anciennes traces d'humidité, tout a sèché, il faudra juste bien traiter les poutres qui ont été touchées par l'humidité.
Les jonctions sont en parfait état, par contre le chapeau de la cheminée doit être revu afin que l'eau ne coule plus à l'intérieur de la cheminée.
Il est conseillé de tuber la cheminée (nécessaire pour le poêle dans séjour) et de refermer la cheminée avec une dalle en pierre bleue, le tubage passe alors au travers de la dalle et la cheminée est alors complètement étanche.
Il est conseillé la même chose pour l'autre cheminée de la chaudière.
Budget estimé : 1500€/ cheminée.
Aucun problème général, juste bien vérifier que l'humidité en cave ne provient pas de la descente d'eau à l'avant.
Châssis en bois double vitrage, en bon état général, cependant il serait nécessaire de repeindre les boiseries.
Détecteurs présents.
Sol : tapis avec plancher en bois massif en--dessus.
Murs : en bon état.
Plafond : en bon état.
Menuiseries intérieures de qualité.
Il sera plus esthétique d'encastrer l'électricité.
La cuisine installée était destiné à un bureau, il n'y a donc pas de taques de cuisson et de hotte. De plus la taille de la cuisine par rapport au reste de la maison est assez petite. Il est donc fort probable que le nouvel acheteur refasse une cuisine complète, budget estimé à 20.000€ pour la cuisine et 3000€ pour un percement à droite de la cheminée.
Pas de hotte présente.
Il manque une ventilation dans le WC. Budget de 300€ pour une extraction.
Salle de bain en très bon état avec plancher en bois massif.
Il manque une extraction dans la salle de bain. Budget de 300€ pour une extraction.
L'escalier est recouvert d'un tapis donc pas de vue sur l'état des marches.
La ferme n'est pas visible mais on peut voir certaines pièces de charpente qui sont en bon état, comme déjà évoqué ci-avant, il faudra traiter les pièces de bois qui ont été en contact avec les infiltrations.
Les jonctions entre les fenêtres de toit et le plafonnage sont à refaire au deuxième étage.
Il y a un problème mineur d'humidité au niveau des murs de l'angle avant gauche de la maison, il sera nécessaire de décaper tous les murs humides afin de pouvoir les faire sécher et surtout de pouvoir identifier l'origine du problème.
Le décapage permettra déjà d'éliminer la cause d'un tuyau d'alimentation d'eau encastré qui fuit.
Ensuite il faudrait démonter un morceau de la descente d'eau à l'avant pour examiner le raccord. Il faudra également creuser un peu sur le coté de la maison pour voir comment a été traité le mur contre terre.
Afin de bien faire sécher la cave, il est conseillé de placer un extracteur mécanique se déclenchant avec le taux d'humidité.
Linteaux en face de la chaufferie à remplacer.
Chaudière gaz atmosphérique (= non étanche) très ancienne et très peu performante. Il est conseillé de la remplacer dès que possible. Budget pour une nouvelle chaudière gaz à condensation : 8000€ + tubage cheminée 1500€.
Ballon d'eau chaude couplé à la chaudière, il est conseillé de le remplacer par un ballon thermodynamique afin de découpler la production d'eau chaude du chauffage. Budget de 4500€.
Pas de problème visible.
Le tableau général est en bon état, cependant les plans ne sont pas présents. Etant donné que le bâtiment était occupé par des bureaux, il sera judicieux de réorganiser le système électrique et d'enlever certaines goulottes qui sont peut-être un peu nombreuses pour une habitation.
DATA ROOM
Nous avons mis tous les documents importants dans la date room, n’hésitez pas à télécharger ce dont vous avez besoin !
Nous avons mis tous les documents importants dans la date room, n’hésitez pas à télécharger ce dont vous avez besoin !
Besoin de crédit
Maintenant que vous êtes sûrs d’avoir fait le bon choix, calculez la valeur totale de cette acquisition (valeur du bien et frais annexes) et estimez vos besoins en crédit !
Simulation de crédit
| Prix d'achat | € |
| Rénovation | € |
| Rénovation HTVA | {{ calculeData.renovationHTVA | number:2 }} € |
| TVA | {{ calculeData.tva | number:2 }} € |
| Fonds propres | € |
| Acompte dû (disponible au compromis de vente) | {{ calculeData.prix * 0.1 | number:2 }} € |
| Reste des liquidités (disponible à l'acte) | {{ calculeData.avance | number:2 }} € |
| Crédit pont | {{ calculeData.creditPont | number:2 }} € |
| Prix de vente de votre bien existant | € |
| Solde du crédit existant | € |
| Frais d'acte d'achat | {{ calculeData.droit + calculeData.fraisNotaire | number:2 }} € |
| Droits d'enregistrement | {{ calculeData.droit | number:2 }} € |
|
Abattement
Suis-je éligible à une réduction des droits d’enregistrement ? |
|
| Frais de notaire | {{ calculeData.fraisNotaire | number:2 }} € |
| Autres frais | {{ calculeData.inscription + calculeData.fraisDossier + calculeData.autreFrais | number:2 }} € |
| Frais liés à l'acte hypothécaire | {{ calculeData.inscription | number:2 }} € |
| Frais de dossier et expertise bancaire | {{ calculeData.fraisDossier | number:2 }} € |
| Autres frais | € |
| Montant du crédit | {{ calculeData.montantCredit | number:2 }} € | |
Choix du type de crédit
| Taux | Type | CAP | Mensualité | Mensualité Min | Mensualité Max | |
|---|---|---|---|---|---|---|
| {{ tx.banque }} {{ $index+1 }} | {{ tx.taux | number:2 }}% | {{ tx.type }} | -{{ tx.capNeg }}%/+{{ tx.capPos }}% | {{ tx.mens | number:2 }}€ | {{ tx.min | number:2 }}€ | {{ tx.max | number:2 }}€ |
| Taux | Type | CAP | Mensualité | Mensualité Min | Mensualité Max | |
|---|---|---|---|---|---|---|
| {{ tx.banque }} {{ $index+1 }} | {{ tx.taux | number:2 }}% | {{ tx.type }} | -{{ tx.capNeg }}%/+{{ tx.capPos }}% | {{ tx.mens | number:2 }}€ | {{ tx.min | number:2 }}€ | {{ tx.max | number:2 }}€ |
| Taux | Type | CAP | Mensualité | Mensualité Min | Mensualité Max | |
|---|---|---|---|---|---|---|
| {{ tx.banque }} {{ $index+1 }} | {{ tx.taux | number:2 }}% | {{ tx.type }} | -{{ tx.capNeg }}%/+{{ tx.capPos }}% | {{ tx.mens | number:2 }}€ | {{ tx.min | number:2 }}€ | {{ tx.max | number:2 }}€ |
Rentabilité
Cout total de l’acquisition
| Prix d'achat | {{ calculeData.prix | number:2 }} € |
| Rénovation | + {{ calculeData.prixTransRenovation | number:2 }} € |
| Frais | + {{ calculeData.frais | number:2 }} € |
| Coût total | + {{ calculeData.frais + calculeData.prixTransRenovation + calculeData.prix | number:2 }} € |
| Fonds propres + crédit pont | {{ calculeData.totalFP+calculeData.creditPont | number:2 }} € |
| Montant du crédit | {{ calculeData.montantCredit | number:2 }} € |
| Coût total | + {{ calculeData.creditPont + calculeData.totalFP + calculeData.montantCredit | number:2 }} € |
Rentabilité sur actifs
Durée de détention année(s)
Gain réel {{ calculeData.gainReel | number:0 }} €
Rendement sur actif {{ calculeData.rendementSurActif | number:2 }} %
Revenus
| Revenu locatif annuel Brut | € |
| Charge annuelle {{ calculeData.pourcentageCharge | number:2 }}% | {{ calculeData.chargeLocatifAnnuel | number:2 }} € |
| Précompte immobilier | {{ calculeData.precomteImmo | number:2 }} € |
| Autre charge annuelle | € |
| Revenu locatif annuel net | {{ calculeData.revenuLocatifAnnuelNet | number:2 }} € |
| Total revenu locatif après {{ calculeData.dureeDetention }} année(s) tenant compte d'une inflation de % |
{{ calculeData.totalRevenuLocatif | number:2 }} € |
| Plus-value latente | {{ calculeData.pluvalueLatente | number:2 }} % |
| Plus-value du bien après {{calculeData.dureeDetention}} année(s) | {{ calculeData.pluvalueBien | number:2 }} € |
| Total revenu locatif après {{ calculeData.dureeDetention }} année(s) | {{ calculeData.totalRevenuLocatif | number:2 }} € |
| Gain brut sur le prix de base après {{ calculeData.dureeDetention }} année(s) | +{{ calculeData.gainBrut | number:2 }} € |
Charges
| Durée du crédit | {{ calculeData.duree | number:2 }} ans |
| Taux | {{ calculeData.taux | number:2 }} % |
| Mensualité | {{ calculeData.mensualite | number:2 }} € |
| Total interêts après {{calculeData.dureeDetention}} année(s) | {{ calculeData.totalInteret | number:2 }} € |
| Total frais | {{ calculeData.frais | number:2 }} € |
| Total | {{ calculeData.InteretFrais | number:2 }} € |
Gain réel
Rendement sur actif
Cash flow
| Année | Coût | Revenu locatif | Gain |
|---|---|---|---|
| {{ $index }} | {{ ch.payment | number:2 }} € | {{ ch.revenuLocatif | number:2 }} € | {{ - ch.fondPropre | number:2 }} € |
Av. Louise 433 Louizalaan 1050 Bruxelles - Brussel
Drève Richelle, 96 - 1410 Waterloo