Suis-je éligible à une réduction d’impôt ?
Marcel
PRIX : 985 000 €
Type: Maison | Région: Flandre | Commune: Drogenbos
Situé sur la commune de Drogenbos, en région flamande, à la frontière d'Uccle Calevoet, à l'abri des regards, dans un clos privatif de 6 logements, magnifique loft sur deux niveaux de +/- 270m2 en copropriété (seulement pour l'entretien de la rue privative et l'assurance). Il date de 1938 et a été entièrement rénové en 2010 avec des matériaux haut de gamme. Composition : Au rez : Hall d'entrée avec vestiaire et WC séparé - Bureau avec accès à une cour orientée SUD - Suite parentale +/- 30m2 avec salle de bains (baignoire et douche) et dressing avec accès à la cour - Trois autres chambres (+/- 13,5m2) - Salle de douche séparée - Grand garage +/- 40m2 (permis obtenu pour y faire une piscine intérieure) - Grande cave. Au 1er : Toiture terrasse végétale. Séjour/Salle à manger très lumineux de presque 100m2 avec feu ouvert donnant accès à une grande terrasse +/- 110m2 orientée Sud-Ouest avec abri de jardin - Cuisine ouverte super-équipée de la marque Bulthaup - Cellier/Buanderie - WC séparé - Local chaufferie (chaudière au gaz Junkers, ventilation double flux). Divers : Système d'alarme - 2 emplacements de parking extérieurs. Certificat électrique conforme et PEB B ! Le toit, le sol et les murs ont été isolés avec un isolant de 15cm.
Surface Totale: 386M²
Surface habitable: 270 m²
Chambres: 4
Salle de bain: 1
Salle de douche: 1
Terrasse: +/- 110 m²
Garage: 1
Bureau: 1
Parking: 2
Vidéo
Découvrez le bien en visualisant cette vidéo
VISITE VIRTUELLE
Vous voulez en voir plus ? Visitez le bien comme si vous y étiez à travers cette visite virtuelle
Localisation
Ce bien vous correspond ? Découvrez maintenant si sa localisation vous convient !
Commerces
Pharmacies
Restaurants
Boulangeries
Crèches
Parcs
Écoles
Universités
Déplacements
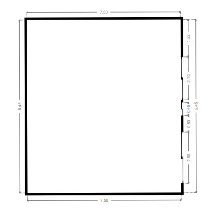
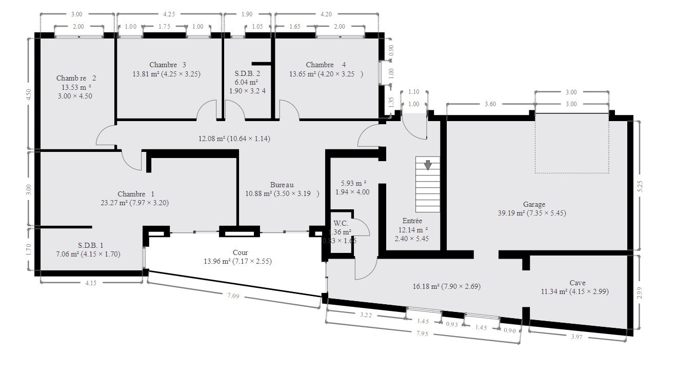
Plans intérieurs
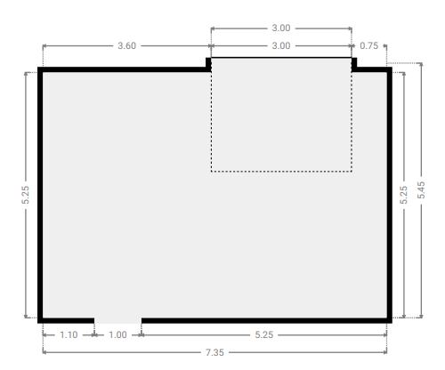
Rez-de-chaussée
SURFACE TOTALE : 200.33 m² | SURFACE HABITABLE : 147.19 m² | PIÈCE(S) : 14
1x Entrée
4x Chambre(s)
2x S.D.B.(s)
1x Bureau
1x W.C.
1x Cour
1x Garage
1x Cave
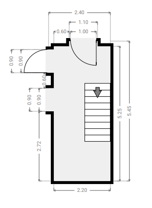
Entrée
SURFACE : 12.14 m²
SURFACE : 12.08 m²
Chambre 4
SURFACE : 13.65 m²
Chambre 3
SURFACE : 13.81 m²
S.D.B. 2
SURFACE : 6.05 m²
Chambre 2
SURFACE : 13.53 m²
Chambre 1(Suite Parentale)
SURFACE : 23.27 m²
S.D.B. 1
SURFACE : 7.06 m²
Bureau
SURFACE : 10.88 m²
SURFACE : 5.93 m²
W.C.
SURFACE : 1.36 m²
SURFACE : 16.18 m²
Cour
SURFACE : 13.96 m²
Garage
SURFACE : 39.19 m²
Cave
SURFACE : 11.34 m²
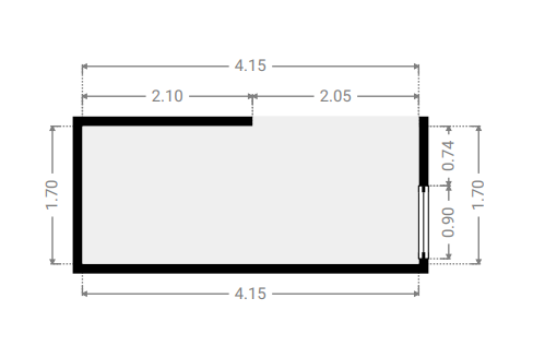
1er étage
SURFACE TOTALE : 186.15 m² | SURFACE HABITABLE : 122.77 m² | PIÈCE(S) : 9
1x Séjour
1x Salle à manger
1x Cuisine
1x Salon
1x Buanderie
1x Local Chaufferie
1x Toilettes
1x Terrasse
Séjour
SURFACE : 43.26 m²
Salle à manger
SURFACE : 21.11 m²
Cuisine
SURFACE : 21.69 m²
Salon
SURFACE : 11.93 m²
Buanderie
SURFACE : 8.11 m²
Locale Chaufferie
SURFACE : m²
Toilettes
SURFACE : 1.68 m²
SURFACE : 1.25 m²
SURFACE : 11.55 m²
Terrasse
SURFACE : 63.4 m²
RECHERCHE CADASTRALE
Vous souhaitez mieux connaître votre parcelle et connaître la surface dont vous jouirez en achetant ce bien, alors consulter le cadastre est nécessaire !
Surface : 4054.96 m²
Parcelle : B242g3
Certificats
Informez-vous sur la performance énergétique de ce bien et assurez-vous que ses installations électriques sont bien aux normes !
PERFORMANCE ÉNERGÉTIQUE
Économe
Très énergivore
CERTIFICAT ÉLECTRIQUE
PROCES VERBAL D’EXAMEN DE CONFORMITE ET/OU DE VISITE DE CONTROLE D’UNE INSTALLATION ELECTRIQUE BASSE TENSION
La nouvelle installationConforme
Agent
visiteur
Demets
Date
de certification
20/10/2011
Visite de contrôle
à effectuer avant le
20/10/36
SYNTHÈSE DES CHARGES
Des dépenses seront nécessairement engagées pour l’administration de la copropriété, son entretien, l’installation d’équipements et la maintenance de ces derniers. Evaluez dès à présent le montant de vos charges mensuelles !
Assemblées générales
Extrait des derniers procès-Verbaux des assemblées générales
DATA ROOM
Nous avons mis tous les documents importants dans la date room, n’hésitez pas à télécharger ce dont vous avez besoin !
Nous avons mis tous les documents importants dans la date room, n’hésitez pas à télécharger ce dont vous avez besoin !
Besoin de crédit
Maintenant que vous êtes sûrs d’avoir fait le bon choix, calculez la valeur totale de cette acquisition (valeur du bien et frais annexes) et estimez vos besoins en crédit !
Simulation de crédit
| Prix d'achat | € |
| Rénovation | € |
| Rénovation HTVA | {{ calculeData.renovationHTVA | number:2 }} € |
| TVA | {{ calculeData.tva | number:2 }} € |
| Fonds propres | € |
| Acompte dû (disponible au compromis de vente) | {{ calculeData.prix * 0.1 | number:2 }} € |
| Reste des liquidités (disponible à l'acte) | {{ calculeData.avance | number:2 }} € |
| Crédit pont | {{ calculeData.creditPont | number:2 }} € |
| Prix de vente de votre bien existant | € |
| Solde du crédit existant | € |
| Frais d'acte d'achat | {{ calculeData.droit + calculeData.fraisNotaire | number:2 }} € |
| Droits d'enregistrement | {{ calculeData.droit | number:2 }} € |
|
Abattement
Suis-je éligible à une réduction des droits d’enregistrement ? |
|
| Frais de notaire | {{ calculeData.fraisNotaire | number:2 }} € |
| Autres frais | {{ calculeData.inscription + calculeData.fraisDossier + calculeData.autreFrais | number:2 }} € |
| Frais liés à l'acte hypothécaire | {{ calculeData.inscription | number:2 }} € |
| Frais de dossier et expertise bancaire | {{ calculeData.fraisDossier | number:2 }} € |
| Autres frais | € |
| Montant du crédit | {{ calculeData.montantCredit | number:2 }} € | |
La présente simulation se base sur un taux d’intérêt du 15/06/2023. Ce calcul est indicatif et sujet à changement.
Choix du type de crédit
| Taux | Type | CAP | Mensualité | Mensualité Min | Mensualité Max | |
|---|---|---|---|---|---|---|
| {{ tx.banque }} {{ $index+1 }} | {{ tx.taux | number:2 }}% | {{ tx.type }} | -{{ tx.capNeg }}%/+{{ tx.capPos }}% | {{ tx.mens | number:2 }}€ | {{ tx.min | number:2 }}€ | {{ tx.max | number:2 }}€ |
| Taux | Type | CAP | Mensualité | Mensualité Min | Mensualité Max | |
|---|---|---|---|---|---|---|
| {{ tx.banque }} {{ $index+1 }} | {{ tx.taux | number:2 }}% | {{ tx.type }} | -{{ tx.capNeg }}%/+{{ tx.capPos }}% | {{ tx.mens | number:2 }}€ | {{ tx.min | number:2 }}€ | {{ tx.max | number:2 }}€ |
| Taux | Type | CAP | Mensualité | Mensualité Min | Mensualité Max | |
|---|---|---|---|---|---|---|
| {{ tx.banque }} {{ $index+1 }} | {{ tx.taux | number:2 }}% | {{ tx.type }} | -{{ tx.capNeg }}%/+{{ tx.capPos }}% | {{ tx.mens | number:2 }}€ | {{ tx.min | number:2 }}€ | {{ tx.max | number:2 }}€ |
Rentabilité
Cout total de l’acquisition
| Prix d'achat | {{ calculeData.prix | number:2 }} € |
| Rénovation | + {{ calculeData.prixTransRenovation | number:2 }} € |
| Frais | + {{ calculeData.frais | number:2 }} € |
| Coût total | + {{ calculeData.frais + calculeData.prixTransRenovation + calculeData.prix | number:2 }} € |
| Fonds propres + crédit pont | {{ calculeData.totalFP+calculeData.creditPont | number:2 }} € |
| Montant du crédit | {{ calculeData.montantCredit | number:2 }} € |
| Coût total | + {{ calculeData.creditPont + calculeData.totalFP + calculeData.montantCredit | number:2 }} € |
Rentabilité sur actifs
Durée de détention année(s)
Gain réel {{ calculeData.gainReel | number:0 }} €
Rendement sur actif {{ calculeData.rendementSurActif | number:2 }} %
Revenus
| Revenu locatif annuel Brut | € |
| Charge annuelle {{ calculeData.pourcentageCharge | number:2 }}% | {{ calculeData.chargeLocatifAnnuel | number:2 }} € |
| Précompte immobilier | {{ calculeData.precomteImmo | number:2 }} € |
| Autre charge annuelle | € |
| Revenu locatif annuel net | {{ calculeData.revenuLocatifAnnuelNet | number:2 }} € |
| Total revenu locatif après {{ calculeData.dureeDetention }} année(s) tenant compte d'une inflation de % |
{{ calculeData.totalRevenuLocatif | number:2 }} € |
| Plus-value latente | {{ calculeData.pluvalueLatente | number:2 }} % |
| Plus-value du bien après {{calculeData.dureeDetention}} année(s) | {{ calculeData.pluvalueBien | number:2 }} € |
| Total revenu locatif après {{ calculeData.dureeDetention }} année(s) | {{ calculeData.totalRevenuLocatif | number:2 }} € |
| Gain brut sur le prix de base après {{ calculeData.dureeDetention }} année(s) | +{{ calculeData.gainBrut | number:2 }} € |
Charges
| Durée du crédit | {{ calculeData.duree | number:2 }} ans |
| Taux | {{ calculeData.taux | number:2 }} % |
| Mensualité | {{ calculeData.mensualite | number:2 }} € |
| Total interêts après {{calculeData.dureeDetention}} année(s) | {{ calculeData.totalInteret | number:2 }} € |
| Total frais | {{ calculeData.frais | number:2 }} € |
| Total | {{ calculeData.InteretFrais | number:2 }} € |
Gain réel
Rendement sur actif
Cash flow
| Année | Coût | Revenu locatif | Gain |
|---|---|---|---|
| {{ $index }} | {{ ch.payment | number:2 }} € | {{ ch.revenuLocatif | number:2 }} € | {{ - ch.fondPropre | number:2 }} € |
Av. Louise 433 Louizalaan 1050 Bruxelles - Brussel
Drève Richelle, 96 - 1410 Waterloo