Suis-je éligible à une réduction des droits d’enregistrement ?
Louis 2
PRIX : 590 000€
Type: Maison | Région: Wallonie | Commune: Braine-le-chateau
Dans un quartier résidentiel proche du Ring R0 (1,5KM), pratique et sans nuisance, jolie villa contemporaine de 1996, rénovée récemment et parfaitement entretenue. Au rez-de-chaussée, vaste hall d’entrée donnant sur un vestiaire et un WC invité, un grand salon avec son coin salle de jeux, une salle à manger donnant sur la jolie terrasse, et la cuisine full équipée. La buanderie est également présente à cet étage. L’escalier mène au 1er étage avec ses 3 chambres, une quatrième serait possible à l’emplacement du bureau, la salle de bain avec bain et douche et un WC séparé. L’accès au grenier de rangement se fait par une trappe grâce à un escalier escamotable. Au sous-sol et sur toute la surface, de nombreuses caves, atelier, chaufferie et garage avec porte automatique. Énergie : PEB C, électricité conforme, 18 panneaux solaires pour une production de 7700 kW / an, batterie de 10 kW, citerne d’eau de pluie raccordée au WC et certains robinets intérieurs & extérieurs. Chaudière au mazout à condensation (2024). Le jardin se trouvant tout autour de la maison est orienté au Sud - Sud-Est et est complètement clôturé.
Surface habitable: 323.73 m² NET
Greniers: Oui
Jardin : Oui
Chambres: 3
Salle de bain: 1
Garage: Oui
Caves: 3
Vidéo
Découvrez le bien en visualisant cette vidéo
VISITE VIRTUELLE
Vous voulez en voir plus ? Visitez le bien comme si vous y étiez à travers cette visite virtuelle
Localisation
Ce bien vous correspond ? Découvrez maintenant si sa localisation vous convient !
Commerces
Pharmacies
Restaurants
Boulangeries
Crèches
Parcs
Écoles
Universités
Déplacements
Plans intérieurs
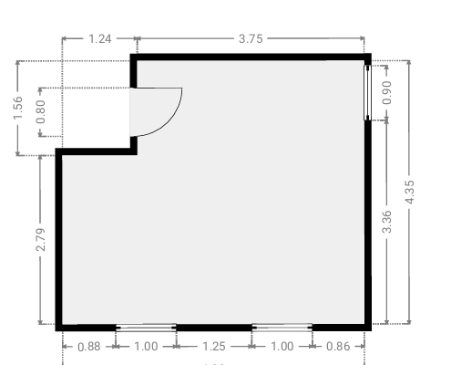
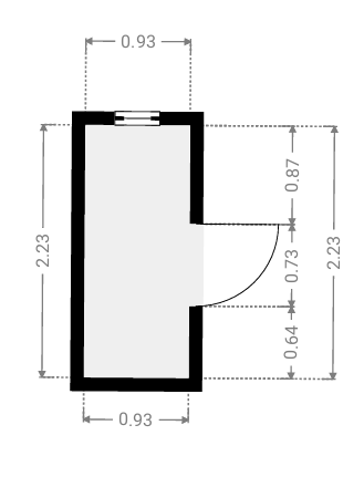
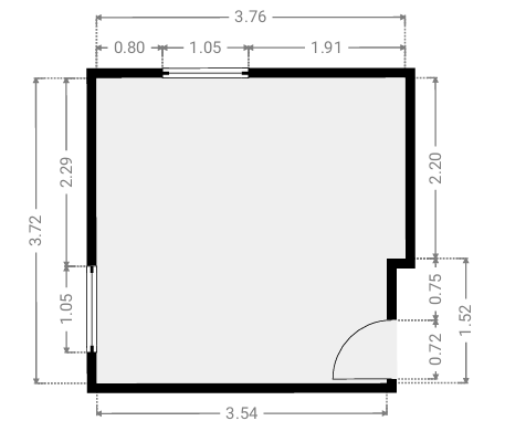
Sous-sol
SURFACE TOTALE : 97.86 m² | SURFACE HABITABLE : 58.85 m² | PIÈCE(S) : 5
1x Garage
3x Cave 1
1x Chaufferie
Garage
SURFACE : 39.01 m²
Cave 1
SURFACE : 8.53 m²
Cave 2
SURFACE : 20.32 m²
Cave 3
SURFACE : 21.55 m²
Chaufferie
SURFACE : 8.49 m²
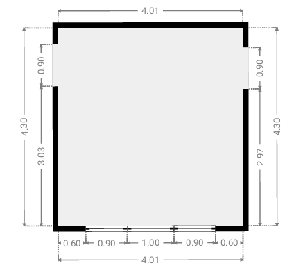
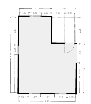
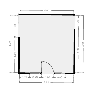
Rez-de-chaussée
SURFACE TOTALE : 96.02 m² | SURFACE HABITABLE : 96.02 m² | PIÈCE(S) : 7
1x Hall
1x W.C
1x Séjour
1x Salle à manger
1x Cuisine
1x Vestiaire
1x Buanderie
Hall
SURFACE : 19.6 m²
W.C
SURFACE : 2.07 m²
Séjour
SURFACE : 27.86 m²
Salle à manger
SURFACE : 17.28 m²
Cuisine
SURFACE : 21.47 m²
Vestiaire
SURFACE : 2.18 m²
Buanderie
SURFACE : 5.62 m²
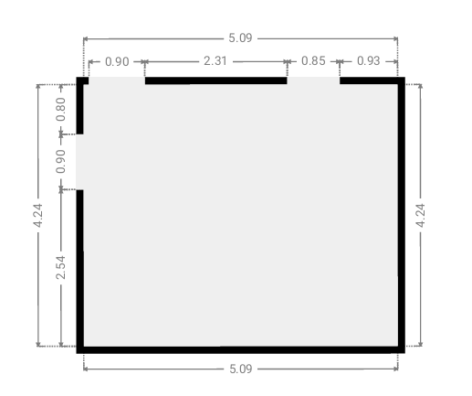
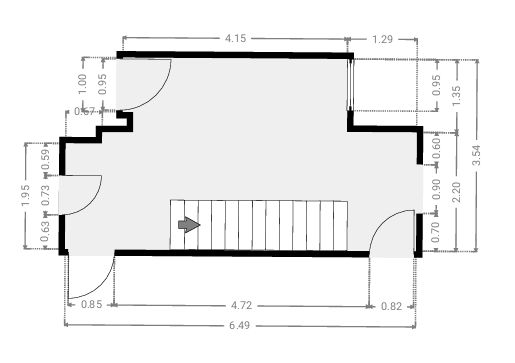
1er étage
SURFACE TOTALE : 81.47 m² | SURFACE HABITABLE : 81.47 m² | PIÈCE(S) : 8
2x Couloir(s)
1x S.D.B
3x Chambres
1x Bureau
1x W.C
Couloir
SURFACE : 4.51 m²
S.D.B
SURFACE : 8.11 m²
Chambre 1
SURFACE : 19.76 m²
Bureau
SURFACE : 17.24 m²
Couloir
SURFACE : 2.88 m²
Chambre 2
SURFACE : 14.1 m²
Chambre 3
SURFACE : 13.65 m²
W.C
SURFACE : 1.28 m²
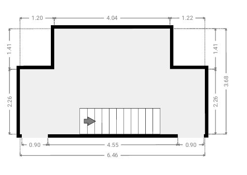
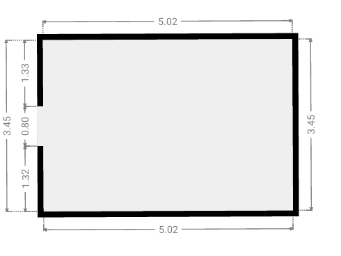
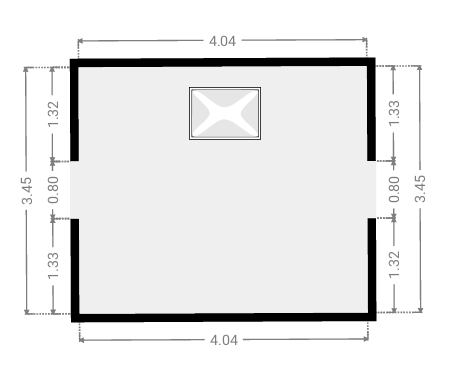
2e étage
SURFACE TOTALE : 48.38 m² | SURFACE HABITABLE : 48.38 m² | PIÈCE(S) : 3
3x Greniers
Grenier 2
SURFACE : 13.93 m²
Grenier 1
SURFACE : 17.16 m²
Grenier 3
SURFACE : 17.31 m²
RECHERCHE CADASTRALE
Vous souhaitez mieux connaître votre parcelle et connaître la surface dont vous jouirez en achetant ce bien, alors consulter le cadastre est nécessaire !
État des sols
La pollution du sol a un impact sur l'environnement et sur la santé, les risques d’inondation ont un impact sur votre qualité de vie… Consultez les données relatives à ce bien pour en avoir le cœur net !
ÉTAT DE LA POLLUTION DES SOLS
Aucune remarque particulière pour la parcelle A593h
Source : Cliquez-ici
Légende :
ZONE INONDABLE
Aucune remarque particulière pour la parcelle A593h
Source : Cliquez-ici
Légende :
Certificats
Informez-vous sur la performance énergétique de ce bien et assurez-vous que ses installations électriques sont bien aux normes !
PERFORMANCE ÉNERGÉTIQUE
Économe
Très énergivore
CERTIFICAT ÉLECTRIQUE
PROCES VERBAL D’EXAMEN DE CONFORMITE ET/OU DE VISITE DE CONTROLE D’UNE INSTALLATION ELECTRIQUE BASSE TENSION
La nouvelle installationConforme
Agent
visiteur
Achref Lerzak Mohamed Takhi
Date
de certification
28/03/2024
Visite de contrôle
à effectuer avant le
28/03/2049
INDICATEURS SPÉCIFIQUES
| Besoins en chaleur du logement | ||||
| excessifs | élevés | moyens | faibles | minimes |
| Performance des installations de chauffage | ||||
| médiocre | insuffisante | satisfaisante | bonne | excellente |
| Performance des installations d'eau chaude sanitaire | ||||
| médiocre | insuffisante | satisfaisante | bonne | excellente |
| Système de ventillation | ||||
| absent | très partiel | partiel | incomplet | complet |
| Utilisation d'énergies renouvelables | ||||
| Sol therm | Sol photovolt | Biomasse | Pompe à chaleur | cogéneration |
DATA ROOM
Nous avons mis tous les documents importants dans la date room, n’hésitez pas à télécharger ce dont vous avez besoin !
Nous avons mis tous les documents importants dans la date room, n’hésitez pas à télécharger ce dont vous avez besoin !
Besoin de crédit
Maintenant que vous êtes sûrs d’avoir fait le bon choix, calculez la valeur totale de cette acquisition (valeur du bien et frais annexes) et estimez vos besoins en crédit !
Simulation de crédit
| Prix d'achat | € |
| Rénovation | € |
| Rénovation HTVA | {{ calculeData.renovationHTVA | number:2 }} € |
| TVA | {{ calculeData.tva | number:2 }} € |
| Fonds propres | € |
| Acompte dû (disponible au compromis de vente) | {{ calculeData.prix * 0.1 | number:2 }} € |
| Reste des liquidités (disponible à l'acte) | {{ calculeData.avance | number:2 }} € |
| Crédit pont | {{ calculeData.creditPont | number:2 }} € |
| Prix de vente de votre bien existant | € |
| Solde du crédit existant | € |
| Frais d'acte d'achat | {{ calculeData.droit + calculeData.fraisNotaire | number:2 }} € |
| Droits d'enregistrement | {{ calculeData.droit | number:2 }} € |
|
Abattement
Suis-je éligible à une réduction des droits d’enregistrement ? |
|
| Frais de notaire | {{ calculeData.fraisNotaire | number:2 }} € |
| Autres frais | {{ calculeData.inscription + calculeData.fraisDossier + calculeData.autreFrais | number:2 }} € |
| Frais liés à l'acte hypothécaire | {{ calculeData.inscription | number:2 }} € |
| Frais de dossier et expertise bancaire | {{ calculeData.fraisDossier | number:2 }} € |
| Autres frais | € |
| Montant du crédit | {{ calculeData.montantCredit | number:2 }} € | |
La présente simulation se base sur un taux d’intérêt du 20/11/2024. Ce calcul est indicatif et sujet à changement.
Choix du type de crédit
| Taux | Type | CAP | Mensualité | Mensualité Min | Mensualité Max | |
|---|---|---|---|---|---|---|
| {{ tx.banque }} {{ $index+1 }} | {{ tx.taux | number:2 }}% | {{ tx.type }} | -{{ tx.capNeg }}%/+{{ tx.capPos }}% | {{ tx.mens | number:2 }}€ | {{ tx.min | number:2 }}€ | {{ tx.max | number:2 }}€ |
| Taux | Type | CAP | Mensualité | Mensualité Min | Mensualité Max | |
|---|---|---|---|---|---|---|
| {{ tx.banque }} {{ $index+1 }} | {{ tx.taux | number:2 }}% | {{ tx.type }} | -{{ tx.capNeg }}%/+{{ tx.capPos }}% | {{ tx.mens | number:2 }}€ | {{ tx.min | number:2 }}€ | {{ tx.max | number:2 }}€ |
| Taux | Type | CAP | Mensualité | Mensualité Min | Mensualité Max | |
|---|---|---|---|---|---|---|
| {{ tx.banque }} {{ $index+1 }} | {{ tx.taux | number:2 }}% | {{ tx.type }} | -{{ tx.capNeg }}%/+{{ tx.capPos }}% | {{ tx.mens | number:2 }}€ | {{ tx.min | number:2 }}€ | {{ tx.max | number:2 }}€ |
Rentabilité
Cout total de l’acquisition
| Prix d'achat | {{ calculeData.prix | number:2 }} € |
| Rénovation | + {{ calculeData.prixTransRenovation | number:2 }} € |
| Frais | + {{ calculeData.frais | number:2 }} € |
| Coût total | + {{ calculeData.frais + calculeData.prixTransRenovation + calculeData.prix | number:2 }} € |
| Fonds propres + crédit pont | {{ calculeData.totalFP+calculeData.creditPont | number:2 }} € |
| Montant du crédit | {{ calculeData.montantCredit | number:2 }} € |
| Coût total | + {{ calculeData.creditPont + calculeData.totalFP + calculeData.montantCredit | number:2 }} € |
Rentabilité sur actifs
Durée de détention année(s)
Gain réel {{ calculeData.gainReel | number:0 }} €
Rendement sur actif {{ calculeData.rendementSurActif | number:2 }} %
Revenus
| Revenu locatif annuel Brut | € |
| Charge annuelle {{ calculeData.pourcentageCharge | number:2 }}% | {{ calculeData.chargeLocatifAnnuel | number:2 }} € |
| Précompte immobilier | {{ calculeData.precomteImmo | number:2 }} € |
| Autre charge annuelle | € |
| Revenu locatif annuel net | {{ calculeData.revenuLocatifAnnuelNet | number:2 }} € |
| Total revenu locatif après {{ calculeData.dureeDetention }} année(s) tenant compte d'une inflation de % |
{{ calculeData.totalRevenuLocatif | number:2 }} € |
| Plus-value latente | {{ calculeData.pluvalueLatente | number:2 }} % |
| Plus-value du bien après {{calculeData.dureeDetention}} année(s) | {{ calculeData.pluvalueBien | number:2 }} € |
| Total revenu locatif après {{ calculeData.dureeDetention }} année(s) | {{ calculeData.totalRevenuLocatif | number:2 }} € |
| Gain brut sur le prix de base après {{ calculeData.dureeDetention }} année(s) | +{{ calculeData.gainBrut | number:2 }} € |
Charges
| Durée du crédit | {{ calculeData.duree | number:2 }} ans |
| Taux | {{ calculeData.taux | number:2 }} % |
| Mensualité | {{ calculeData.mensualite | number:2 }} € |
| Total interêts après {{calculeData.dureeDetention}} année(s) | {{ calculeData.totalInteret | number:2 }} € |
| Total frais | {{ calculeData.frais | number:2 }} € |
| Total | {{ calculeData.InteretFrais | number:2 }} € |
Gain réel
Rendement sur actif
Cash flow
| Année | Coût | Revenu locatif | Gain |
|---|---|---|---|
| {{ $index }} | {{ ch.payment | number:2 }} € | {{ ch.revenuLocatif | number:2 }} € | {{ - ch.fondPropre | number:2 }} € |
Av. Louise 433 1050 Bruxelles - 02 648 01 20
Drève Richelle 96 1410 Waterloo - 02 354 29 39
Av. Prekelinden 83 1200 Woluwe-St-Lambert - 02 734 00 36