Kom ik in aanmerking voor belastingvermindering ?
LINDEKEN 18
PRIJS : 395 000,00 €
Type: Huis | Regio: Flandre | Gemeente: Rhodes-Saint-Genese
Gelegen in een woonwijk van Sint-Genesius-Rode, op korte loopafstand van het station van Rhode en het centrum, presenteert By the Way dit aantrekkelijke huis met 4 voorgevels en een netto vloeroppervlak van ongeveer 105 m2, gelegen op 3 are en 23 ca grond. Het is als volgt samengesteld: Begane grond: inkomhal die uitgeeft op een bureau met een grote aan de muur gemonteerde boekenkast (+/- 12 m2), een woonkamer (+/- 13 m2) met open haard, een eetkamer (+/- 17 m2) die uitgeeft op een superuitgeruste keuken (+/- 12 m2), die beide toegang geven tot een mooi terras op het zuidoosten en een vlakke, mooi aangelegde tuin, apart toilet. 1ste verdieping: nachthal, badkamer met WC, 1 mooie slaapkamer van ongeveer 13,50 m2 met een grote open dressing. Op de 2de verdieping (onder de dakrand): een slaapkamer van +/- 14 m2. Een garage met wasruimte en een kelder maken dit huis, dat in 2016-2017 smaakvol werd gerenoveerd, compleet. PVC ramen met dubbele beglazing. Meerdere parkeerplaatsen. Centrale verwarming op gas. Elektriciteit in conformiteit.
Totale Oppervlakte: 132 M²
Grondoppervlak: 3 are 23 ca m²
Slaapkamers: 2
badkamer: 1
Terras :ja
Garage: 1
Kelder: 1
Tuin: op het zuidoosten
Externe parkeerplaats: ja
VIDEO PRESENTATIE
Découvrez le bien en visualisant cette vidéo
VIRTUEEL BEZOEK
Vous voulez en voir plus ? Visitez le bien comme si vous y étiez à travers cette visite virtuelle
OMGEVING
Ce bien vous correspond ? Découvrez maintenant si sa localisation vous convient !
Supermarkt
Apotheek
Restaurant
Bakkerij
Kinderdagverblijf
Park
Scholen
Universiteiten
Verplaatsingen
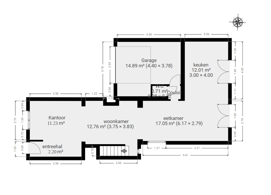
Plans intérieurs
Ondergrond
TOTALE OPPERVLAKTE : 13.41 m² | WOONRUIMTE : 00.00 m² | kAMERS : 1
1x Kelder
Kelder
SURFACE : 13.42 m²
Rez-de-chaussée
SURFACE TOTALE : 73.69 m² | SURFACE HABITABLE : 58.80 m² | PIÈCE(S) : 8
1x Entreehal
1x Woonkamer
1x Eetkamer
1x W.C
1x Garage
1x Keuken
1x kantoor
Entreehal
SURFACE : 3.75 m²
Woonkamer
SURFACE : 12.76 m²
Eetkamer
SURFACE : 17.05 m²
W.C
SURFACE : 0.71 m²
Garage
SURFACE : 14.89 m²
Keuken
SURFACE : 12.01 m²
kantoor
SURFACE : 9.68 m²
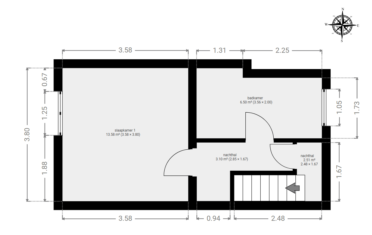
1E VERDIEPING
TOTALE OPPERVLAKTE : 27.09 m² | WOONRUIMTE : 27.09 m² | kAMERS : 4
2x Nachthal(s)
1x Badkamer
1x Slaapkamer 1
Nachthal
SURFACE : 3.1 m²
Badkamer
SURFACE : 6.5 m²
Nachthal
SURFACE : 2.51 m²
Slaapkamer 1
SURFACE : 13.58 m²
2E VERDIEPING
TOTALE OPPERVLAKTE : 17.10 m² | WOONRUIMTE : 17.10 m² | kAMERS : 1
1x Slaapkamer 2
Slaapkamer 2
SURFACE : 17.12 m²
KADASTRAAL ZOEKEN
Vous souhaitez mieux connaître votre parcelle et connaître la surface dont vous jouirez en achetant ce bien, alors consulter le cadastre est nécessaire !
BODEMGESTELDHEID
La pollution du sol a un impact sur l'environnement et sur la santé, les risques d’inondation ont un impact sur votre qualité de vie… Consultez les données relatives à ce bien pour en avoir le cœur net !
STAAT VAN BODEMVERONTREINIGING
Geen bijzondere opmerkingen voor perceel A19d5
Bron : Klik hier
Légende :
Overstromingsgebied
Geen overstroming gemodelleerd voor perceel A19d5
Bron : Klik hier
Légende :
CERTIFICATEN
Informez-vous sur la performance énergétique de ce bien et assurez-vous que ses installations électriques sont bien aux normes !
ENERGIEPRESTATIES
Zeer zuinigZeer energieverslindennd
|
A+ A ≤ 0 |
A 0 < A ≤ 100 |
B 100 < B ≤ 200 |
C 200 < C ≤ 300 |
D 300 < D ≤ 400 |
E 400 < E ≤ 500 |
F F > 500 |
| 187 kWh/m².Jaar |
ELEKTRISCH CERTIFICAAT
VERSLAG VAN HET CONFORMITEITSONDERZOEK EN/OF DE INSPECTIE VAN EEN ELEKTRISCHE LAAGSPANNINGSINSTALLATIE
De bestaande installatieConform
ASBEST CERTIFICAAT
EINDCONCLUSIE VAN DE WETGEVING:
Geen asbesthoudende materialen gevonden
Vastgesteld tijdens inspectie
Asbestmaterialen
0Beperkingen
0Uitsluiting
0
DATA ROOM
Nous avons mis tous les documents importants dans la date room, n’hésitez pas à Downloaden ce dont vous avez besoin !
Nous avons mis tous les documents importants dans la date room, n’hésitez pas à télécharger ce dont vous avez besoin !
BEREKEN UW KREDIETBEHOEFTE
Maintenant que vous êtes sûrs d’avoir fait le bon choix, calculez la valeur totale de cette acquisition (valeur du bien et frais annexes) et estimez vos besoins en crédit !
Kredietsimulatie
| Aankoopprijs | € |
| Renovatie | € |
| Renovatie excl. btw | {{ calculeData.renovationHTVA | number:2 }} € |
| BTW | {{ calculeData.tva | number:2 }} € |
| Eigen fondsen | € |
| Te betalen waarborgsom (beschikbaar bij de verkoopovereenkomst) | {{ calculeData.prix * 0.1 | number:2 }} € |
| Resterende liquide middelen (besschikbaar op de verkoop) | {{ calculeData.avance | number:2 }} € |
| Overbruggingskrediet | {{ calculeData.creditPont | number:2 }} € |
| Aankooprijs | € |
| Bestaand tegoed | € |
| Aankooprechten | {{ calculeData.droit + calculeData.fraisNotaire | number:2 }} € |
| Verkooprechten | {{ calculeData.droit | number:2 }} € |
|
Vermindering
Kom ik in aanmerking voor vermindering van het inschrijfgeld? |
|
| Notariskosten | {{ calculeData.fraisNotaire | number:2 }} € |
| Andere kosten | {{ calculeData.inscription + calculeData.fraisDossier + calculeData.autreFrais | number:2 }} € |
| Kosten in verband met de hypotheekakte | {{ calculeData.inscription | number:2 }} € |
| Administratiekosten en bankexpertise | {{ calculeData.fraisDossier | number:2 }} € |
| Andere kosten | € |
| ONTLEEND BEDRAG | {{ calculeData.montantCredit | number:2 }} € | |
Deze simulatie is gebaseerd op een rentevoet van 09/07/2024, die indicatief is en onderhevig aan verandering
Keuze soort krediet
| Tarief | Type | Pet | Maandelijkse betaling | MMaandelijkse betaling Min | Maandelijkse betaling Max | |
|---|---|---|---|---|---|---|
| {{ tx.banque }} | {{ tx.taux | number:2 }}% | {{ tx.type }} | -{{ tx.capNeg }}%/+{{ tx.capPos }}% | {{ tx.mens | number:2 }}€ | {{ tx.min | number:2 }}€ - | {{ tx.max | number:2 }}€ - |
| Tarief | Type | Pet | Maandelijkse betaling | Maandelijkse betaling Min | Maandelijkse betaling Max | |
|---|---|---|---|---|---|---|
| {{ tx.banque }} | {{ tx.taux | number:2 }}% | {{ tx.type }} | -{{ tx.capNeg }}%/+{{ tx.capPos }}% | {{ tx.mens | number:2 }}€ | {{ tx.min | number:2 }}€ - | {{ tx.max | number:2 }}€ - |
| Tarief | Type | Pet | Maandelijkse betaling | Maandelijkse betaling Min | Maandelijkse betaling Max | |
|---|---|---|---|---|---|---|
| {{ tx.banque }} | {{ tx.taux | number:2 }}% | {{ tx.type }} | -{{ tx.capNeg }}%/+{{ tx.capPos }}% | {{ tx.mens | number:2 }}€ | {{ tx.min | number:2 }}€ - | {{ tx.max | number:2 }}€ - |
RENTABILITEIT
Cout total de l’acquisition
| Aankoopprijs | {{ calculeData.prix | number:2 }} € |
| Renovatie | + {{ calculeData.prixTransRenovation | number:2 }} € |
| Kosten | + {{ calculeData.frais | number:2 }} € |
| Totale kostprijs | + {{ calculeData.frais + calculeData.prixTransRenovation + calculeData.prix | number:2 }} € |
| Eigen middelen + overbruggingskrediet | {{ calculeData.totalFP+calculeData.creditPont | number:2 }} € |
| Ontleend bedrag | {{ calculeData.montantCredit | number:2 }} € |
| Totale kostprijs | + {{ calculeData.creditPont + calculeData.totalFP + calculeData.montantCredit | number:2 }} € |
Rendement op activa
Duur van detentie jaar (jaren)
WERKELIJKE WINST {{ calculeData.gainReel | number:0 }} €
RENDEMENT OP ACTIVA {{ calculeData.rendementSurActif | number:2 }} %
Omzet
| Jaarlijkse bruto huurinkomsten | € |
| Jaarlijkse lasten {{ calculeData.pourcentageCharge | number:2 }}% | {{ calculeData.chargeLocatifAnnuel | number:2 }} € |
| Onroerend goed belasting | {{ calculeData.precomteImmo | number:2 }} € |
| Andere jaarlijkse lasten | € |
| Jaarlijkse netto huurinkomsten | {{ calculeData.revenuLocatifAnnuelNet | number:2 }} € |
| Totale huurinkomsten na {{ calculeData.dureeDetention }} jaar rekening houdend met een inflatie van % | {{ calculeData.totalRevenuLocatif | number:2 }} € |
| Niet-gerealiseerde meerwaarde | {{ calculeData.pluvalueLatente | number:2 }} % |
| Meerwaarde van het pand na {{calculeData.dureeDetention}} jaar | {{ calculeData.pluvalueBien | number:2 }} € |
| Totale huurinkomsten na {{ calculeData.dureeDetention }} jaar | {{ calculeData.totalRevenuLocatif | number:2 }} € |
| Bruto winst op de basisprijs na {{ calculeData.dureeDetention }} jaar | +{{ calculeData.gainBrut | number:2 }} € |
Uitgaven
| Looptijd | {{ calculeData.duree | number:2 }} jaar |
| Tarief | {{ calculeData.taux | number:2 }} % |
| Maandlast | {{ calculeData.mensualite | number:2 }} € |
| Totale intrestlast na {{calculeData.dureeDetention}} jaar | {{ calculeData.totalInteret | number:2 }} € |
| Totale kosten | {{ calculeData.frais | number:2 }} € |
| Totaal | {{ calculeData.InteretFrais | number:2 }} € |
Winstrol
Rendement op activa
Cash flow
| Jaar | Kosten | Huurinkomsten | Verdienen |
|---|---|---|---|
| {{ $index }} | {{ ch.payment | number:2 }} € | {{ ch.revenuLocatif | number:2 }} € | {{ - ch.fondPropre | number:2 }} € |
Av. Louise 433 1050 Bruxelles - 02 648 01 20
Drève Richelle 96 1410 Waterloo - 02 354 29 39
Av. Prekelinden 83 1200 Woluwe-St-Lambert - 02 734 00 36