Suis-je éligible à une réduction des droits d’enregistrement ?
Limauges 3
PRIX : 645 000,00€
Type: Maison | Région: Wallonie | Commune: Court Saint Etienne
Villa de campagne de caractère avec une vue imprenable. Elle offre de nombreuses possibilités avec son annexe (Maisonnette familiale actuellement louée) comme maison kangourou.
Surface totale: 190 m²
Jardin: 1
Chambres: 3
Salle de douche: 1
Cave: 1
Bureau: 1
Vidéo
Découvrez le bien en visualisant cette vidéo
VISITE VIRTUELLE
Vous voulez en voir plus ? Visitez le bien comme si vous y étiez à travers cette visite virtuelle
Localisation
Ce bien vous correspond ? Découvrez maintenant si sa localisation vous convient !
Commerces
Pharmacies
Restaurants
Boulangeries
Crèches
Parcs
Écoles
Universités
Déplacements
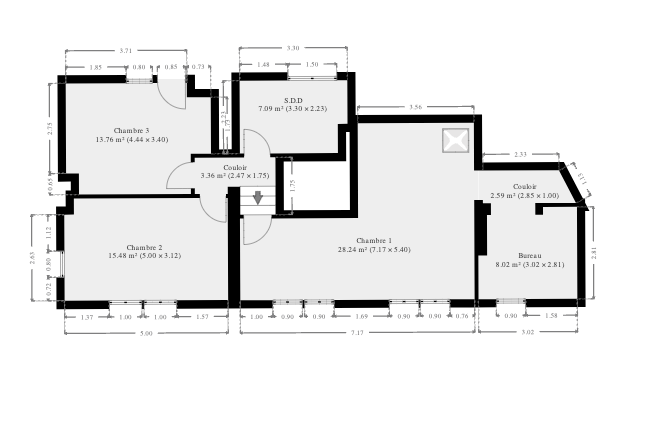
Plans intérieurs
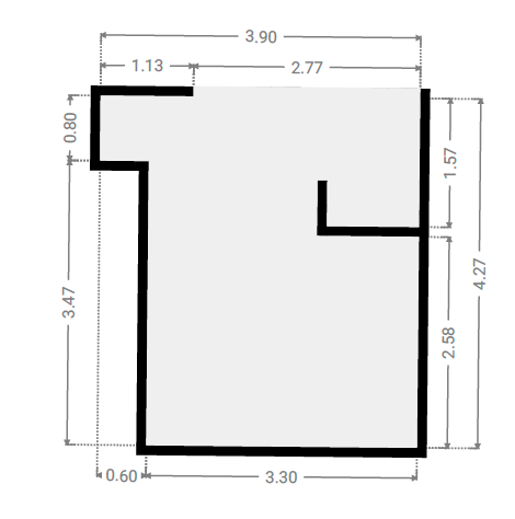
Sous-sol
SURFACE TOTALE : 21.56 m² | SURFACE HABITABLE : 21.56 m² | PIÈCE(S) : 2
1x Cave
1x Chaufferie
Cave
SURFACE : 14.36 m²
Chaufferie
SURFACE : 7.21 m²
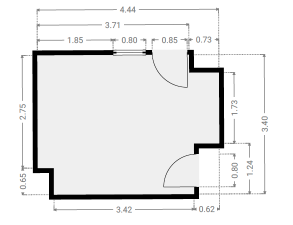
Rez-de-chaussée
SURFACE TOTALE : 89.77 m² | SURFACE HABITABLE : 89.77 m² | PIÈCE(S) : 7
1x Salle à manger / Cuisine
1x Buanderie
1x Couloir
1x W.C
1x Hall
1x Séjour
Salle à manger / Cuisine
SURFACE : 31.83 m²
Buanderie
SURFACE : 4.9 m²
Couloir
SURFACE : 5.54 m²
W.C
SURFACE : 1.29 m²
Hall
SURFACE : 6.62 m²
Séjour
SURFACE : 38.91 m²
1er étage
SURFACE TOTALE : 78.51 m² | SURFACE HABITABLE : 78.51 m² | PIÈCE(S) : 7
3x Chambre(s)
1x Bureau
2x Couloir(s)
1x S.D.D
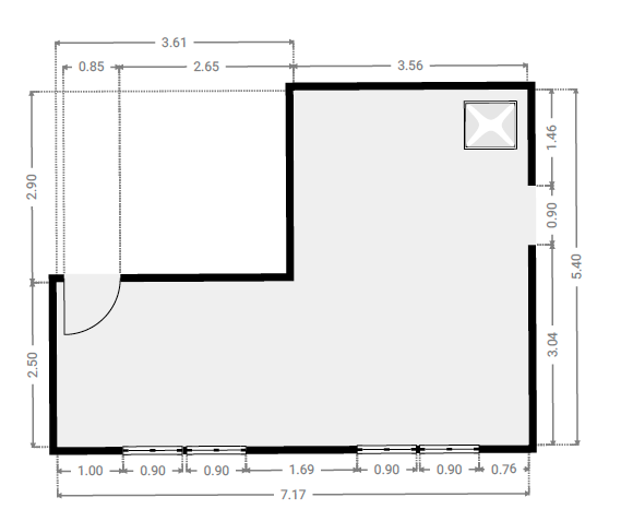
Chambre 1
SURFACE : 28.24 m²
Bureau
SURFACE : 8.02 m²
Couloir
SURFACE : 2.59 m²
Couloir
SURFACE : 3.36 m²
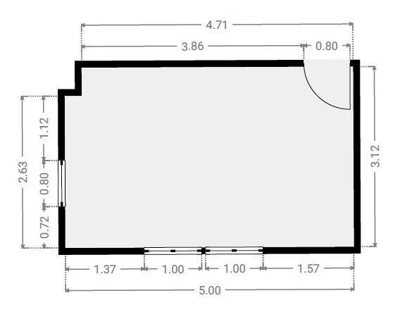
Chambre 2
SURFACE : 15.48 m²
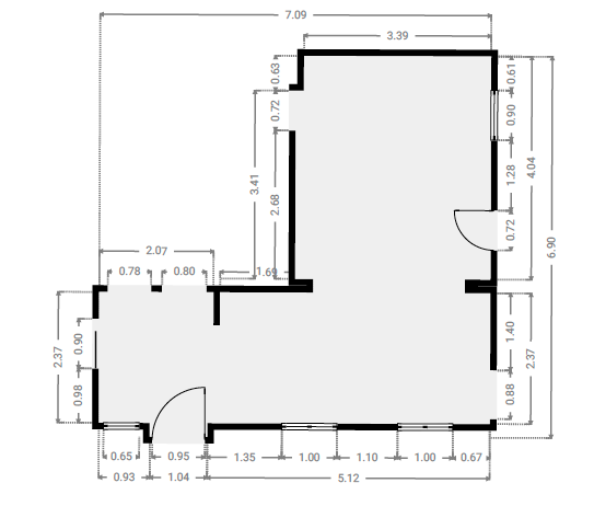
Chambre 3
SURFACE : 13.76 m²
S.D.D
SURFACE : 7.09 m²
RECHERCHE CADASTRALE
Vous souhaitez mieux connaître votre parcelle et connaître la surface dont vous jouirez en achetant ce bien, alors consulter le cadastre est nécessaire !
Surface : 1287 m²
Parcelle : L468e
Pour plus de précisions, merci de consulter la section Data room / Renseignement Urbanistique.
État des sols
La pollution du sol a un impact sur l'environnement et sur la santé, les risques d’inondation ont un impact sur votre qualité de vie… Consultez les données relatives à ce bien pour en avoir le cœur net !
ÉTAT DE LA POLLUTION DES SOLS
Aucune remarque particulière pour la parcelle L468e
Source : Cliquez-ici
Légende :
Zone inondable
Aucune remarque particulière pour la parcelle L468e
Source : Cliquez-ici
Légende :
Certificats
Informez-vous sur la performance énergétique de ce bien et assurez-vous que ses installations électriques sont bien aux normes !
PERFORMANCE ÉNERGÉTIQUE
Économe
Très énergivore
CERTIFICAT ÉLECTRIQUE
PROCES VERBAL D’EXAMEN DE CONFORMITE ET/OU DE VISITE DE CONTROLE D’UNE INSTALLATION ELECTRIQUE BASSE TENSION
La nouvelle installationConforme
Agent
visiteur
numéro 0306
Date
de certification
06/10/2021
Visite de contrôle
à effectuer avant le
06/10/2046
Audit technique
En prévoyant un budget précis des transformations et/ou réparations à opérer sur ce bien, l'expertise réalisée par un architecte neutre et indépendant vous permet de mieux évaluer la valeur de ce bien !
Score général attribué par l’auditeur *
Conseils généraux en termes de performances énergétiques du bâtiment :
La dépendance a fait l'objet d'une première rénovation d'isolation de ses parois qui a pris en considération l'amélioration des performances énergétiques cependant elle reste alimentée en chauffage par une chaudière à mazout et l'utilisation du vecteur électrique pour le chauffage de l'eau chaude sanitaire pénalise le score final.
La maison principale présente de nombreuses façades enduites qui ne seraient pas dénaturées par l'installation d'une isolation depuis l'extérieur et permettrait d'en améliorer les performances.
La disponibilité de toitures bien orientées offre la possibilité de l'installation de panneaux photovoltaïques.
La présence de l'installation du chauffage sur poêle à pellets consiste déjà en une bonne amélioration dès lors qu'elle utilise un combustible bio-sourcé.
Avis général et conseils de l'inspecteur :
La maison est en excellent état général et la visite n'a pas relevé de grosses interventions à prévoir.
À court terme cependant il s'agira d'effectuer quelques petites opérations:
- traiter les différents endroits de risque de chute.
- solutionner la problématique de récolte des eaux pluviales de la petite toiture plate de la dépendance arrière ainsi que des infiltrations par humidité ascensionnelle.
- éventuellement sécuriser les accès à l'aire de parking.
- restaurer l'intégrité du bardage en ardoise des petites annexes.
DISCLAIMER
La conclusion et les conseils donnés sont le résultat d’une inspection indépendante, réalisée par un architecte expérimenté et agréé par ImmoPass.
Les éventuelles estimations budgétaires contenues dans ce rapport sont données à titre indicatif et ne constituent pas un devis. Nous recommandons de réaliser un Cahier des Charges sur tout ou partie des travaux à entreprendre et une analyse des devis reçus. Les estimations sont exprimées hors taxes.
L’inspection a été réalisée de manière non-destructive, de manière visuelle uniquement. Ce rapport ne peut donc garantir l’absence totale de vices techniques cachés.
100 %
Zone inondable, zone acoustique, plan de secteurs, permis d’urbanisme ...
67 %
Certification énergétique, conformité électrique, cuve à mazout, sol, ...
82 %
Sécurité, aménagements, structures extérieures, entretien végétation, ...
80 %
Humidité généralisée, présence d’amiante, mérule, termites ...
83 %
Toiture, murs extérieurs, châssis et portes, évacuation eau de pluie, ...
93 %
Défauts structurels, humidité localisée, salubrité, état de fonctionnement..
89 %
Halls et escaliers, caves, combles et grenier, locaux techniques, ...
82 %
Système de chauffage, eau chaude sanitaire, électricité, entretiens techniques, ...
hors de la zone de nuisance de la N275 (source Walonmap)
Hors de toute zone inondable (source Walonmap)
Le corps de logis principal numéroté 3 a obtenu un score de D(273) avec certification récente du 22-09-2023
La dépendance numérotée 3A a obtenu un score de F(491) qui semble ne pas prendre en considération les doublages intérieures de tous les murs, ce certificat date du 05-07-2014.
Aucune information disponible.
Un recul fort limité est présent au niveau de l'entrée principale dès lors que le mur de façade se trouve à front de rue.
Une entrée secondaire est cependant possible à l'arrière depuis une aire de parking.
Cette zone n'est toutefois pas pourvue de portail ce qui assurerait la mise en sécurité de la propriété depuis l'arrière.
Un portail en bois et palissades sont bien présentes et fonctionnelles pour l'accès au fond de la prairie.
Ce sentier est une servitude de passage pour les n°1, 3 et 5 (voir acte)
La route et les trottoirs sont en bon état.
Le car-port fait actuellement l'objet d'un pour-parler avec le voisin du n°5 car sa construction semble très légèrement dépassé les limites de propriété.
Pas d'eau stagnante observable en contact avec le bâtiment lors de la visite.
Les allées au sein de la propriété étaient en excellent état.
Jardin très bien entretenu et luxuriant.
Une glycine a pris pied le long de la façade commune du corps principal et de la dépendance.
Cette plante a fait l'objet d'un élagage consciencieux suite à une croissance non contrôlée en contact fort rapproché avec des murs bardés d'ardoise.
Aucun arbre ni haie remarquable sur la parcelle (source Walonmap)
Le revêtement en pierre de la terrasse qui se trouve entre le corps principal et la dépendance nécessitera à terme un nettoyage.
Il s'agit d'un abri à bois au niveau de l'aire de parking.
Aucune porte n'est présente et n'assure la sécurité des objets qui y sont entreposés.
Un socarex arrive contre la paroi de gauche de cet abri de jardin.
Voir point 2.3 concernant les dimensions.
Certains éléments de palissade bois se sont écartés de leur position et permettent actuellement la vue vers l'intérieur du carport.
Des clous de fixation des panneaux pare-pluie dépassent de la surface de la toitu-re.
Un risque de chute est présent au niveau d'une différence de niveau des dalles de sol de la fosse où se trouve la citerne à mazout au fond de la parcelle.
Une porte sectionnelle commandée de facture récente et de qualité referme l'espace.
La toiture et la structure générale semblent en bon état et solides.
Le conduit de cheminée du poêle à bois de la salle à manger au niveau de l'ancienne serre par-dessus l'entrée à rue est équipé de deux vues vers le boisseau.
Vraisemblablement ces deux petites portes sont constitués de panneaux en amiante.
Aucune trace de mérule observée.
Aucune trace de termites observée.
Aucune présence de plomb suspectée dans les tuyauteries.
Dans le corps principal au niveau de la cave, un cuvelage en argile est présent sur les murs, ça et là des traces de salpêtre apparaissent.
Une mesure par humidimètre aux endroits touchés par ces effleurements de salpètre a révélé la présence d'humidité qui semble ne pas altérer la qualité de l'air ambiant et reste actuellement sous contrôle sans impacter les étages hors-sol.
Ces murs étant entièrement en contact avec le sol, le cuvelage existant semble la meilleure solution à mettre en œuvre.
La façade pignon à rue du corps principal est dotée d'une gouttière qui s'arrête juste avant un appareillage en briques; ces briques sont exposées à la réception de petites quantités d'eau pluviale et se dégradent petit à petit. Une partie de ce même mur au niveau d'un passage arquées a été refermé en intérieur des traces d'humidité sont visibles sur le mur de finition.
La dépendance présente des traces d'humidité derrière le radiateur de l'entrée ainsi qu'au bas des colonnes du salon et des murs du salon.
L'humidité en pied de parois semble avoir été occasionné par de l'humidité ascensionnelle qui peut être solutionnée et/ou limitée par des injections périphériques en ce qui concerne les murs qui ne sont pas en contact avec la terre.
Un manque effectif de ventilation provoque également le dépôt de condensation sur les murs de cuisine sous l'escalier.
Aucune déformation anormal ne plus être observé lors de la visite.
Quelques fissures périphériques sont présentes au niveau de l'espace par-dessus l'entrée à rue.
Cette espace est vraisemblablement constitué de parois en ossature bois, il s'agira de simplement rétablir un cordon en mastic.
Voir point 2.8
Certains éléments de bardage de l'extension en façade arrière doivent être remis en position.
Les parements et revêtements muraux sont, au-delà de ce point, en excellent état.
Toutes les toitures ont fait l'objet d'une rénovation en 2009.
Voir point 4.4
Le revêtement d'étanchéité de la toiture plate de l'entrée de la dépendance semble être atteint d'une légère fragilité, voir point 4.8 pour solution évoquée lors de la visite.
Voir point 4.4
La zone est fortement boisée, dès lors les gouttières devront faire l'objet d'une attention particulière afin que les feuilles ne s'y accumulent pas.
Un système de grille de protection pour gouttières peut être mis en oeuvre afin d'en limiter un entretien trop intensif.
Le bow-window présent dans le salon n'est pas équipé de gouttière il serait judicieux de refermer la zone de contacts entre la toiture et le mur au minimum par un profil de rive.
Voir point concernant les briques du pignon à rue du corps principal.
Au niveau de la lucarne arrière de la dépendance, la gouttière de récolte des eaux de pluie déverse directement dans le canal de récolte des eaux de la toiture plate, ce qui pourrait être à l'origine des problèmes d'infiltration du plafond de l'entrée.
La division de récolte de ces deux flux permettrait d'éviter le refoulement des eaux de ruissellement de la toiture à versants vers la toiture plate.
De plus l'installation au niveau du dauphin de récolte d'un Y en PVC ne nécessite pas de grandes interventions.
Ce même dauphin nécessitera une remise en peinture afin d'éviter sa dégradation accélérée.
Tous les châssis et/ou vitrages ont été remplacés en 2009 (voir informations dans les intercalaires du vitrage).
Seul le châssis du WC de la maison principale est resté en simple vitrage bois.
En façade avant en surplomb de la zone découverte du Carports ainsi que en façade arrière, deux fenêtres situées sur les lucarnes, présentent des risques de chute.
Le démontage de la béquille ou la mise en œuvre d'une rambarde extérieure permettrait la mise en sécurité de ces éléments.
La porte d'accès de la maison principale depuis le jardin et doté d'une béquille un peu lâche un réglage permettra de la rendre plus solide.
Le cadre de la porte principale en bois est légèrement taché de peinture un vernissage permettra d'en assurer la propreté.
Au pied de la porte vers l'espace cuisine se trouve le soupirail de remplissage de pellets, le couvercle de ce dernier dépasse du niveau du sol.
La porte de la dépendance frotte sur le sol, il semble qu'une rehausse de cette porte par simple ajout de rondelle sur les éléments de charnière est possible de part l'espace encore disponible entre le châssis et le haut de porte.
Les parois des pièces intérieures ne présentent pas de déformations anormales.
Aucune fissure ou faiblesse structurelle n'ont été observées lors de la visite.
Toutes les pièces de vie présentent des conditions de salubrité suffisante.
Un système de détection incendie devrait être mis en œuvre selon les normes en vigueur.
La zone de salon de la maison principale est en excellent état.
Le salon de la dépendance présente au plafond et sur certains pieds de mur des taches d'humidité. Au plafond il s'agit d'une infiltration depuis la toiture plate (voir point concernant ce sujet ) ainsi que d'un dégât des eaux de la salle de bain qui semble avoir été résolu.
Voir point concernant porte de la dépendance.
Les équipements présent semble fonctionnels et sont en bon état.
Les cuisines de la maison principale et de la dépendance sont fonctionnelles et en bon état mis à par le léger dépôt de condensation dans la cuisine de la dépendance.
Les équipements étaient en utilisation au moment de la visite et donc fonctionnels.
Hotte présente et fonctionnelle
Les plomberie semble en bon état de fonctionnement.
L'installation du lave-vaisselle dans la dépendance a provoqué le démontage de la plinthe.
Le remontage sera à prévoir.
Aucun problème de défaut structurel ou d'humidité observés lors de la visite.
Voir point 4.11 concernant des risques de chute.
Les portes et fenêtres sont en bon état et fonctionnelles.
Voir point concernant la fenêtre simple vitrage bois du WeSC de la maison principale.
Pas de défaut de fonctionnement observé lors de la visite.
Il serait judicieux d'effectuer un entretien de la fenêtre de toit de la salle de bain de la dépendance dont le cadre en bois est abimé en partie basse depuis l'intérieur.
Les salle d'eau sont dotées d'extraction mécanique.
Un dégât des eaux s'est présenté précédemment au niveau de la dépendance et semble avoir été solutionné; des traces au plafond du salon sont toujours visibles.
Une attention particulière devra être observé concernant ce point.
Le tub de douche de la maison principale est légèrement fendillée au droit de la bonde d'écoulement des eaux; le reste du mobilier semble en bon état.
La baignoire de la dépendance semble avoir été victime de la dureté de l'eau, un traitement anti calcaire serait judicieux ; le reste du mobilier semble en bon état.
Aucun problème structurel ou d'humidité ont pu être observés lors de la visite.
Les chevrons du palier de l'escalier de la maison principale semble avoir été traité à l'endroit où il se fichent dans le mur, un mesurage à l'humidimètre a confirmé qu'il ne s'agissait pas d'humidité.
Un léger risque de chute est présent sur l'escalier de la dépendance vers l'étage dès lors qu'aucune rambarde ni gardes corps n'ont été placés sur les premières marches.
De plus le garde corps de la mezzanine à cet endroit pourrait être renforcé contre le risque de chute également.
Voir point 3.05
Il s'agit ici de l'atelier/""garage agricole"" qui se trouve sous la chambre de la dépendance.
Aucun défaut structurel ou d'humidité n'ont été observés lors de la visite.
La traverse basse de la double porte en bois devra faire l'objet d'un remplacement.
C'est documents - si présents - feront partie du DIU.
La maison principale est doté d'une chaudière à pellets, alimentée par un Silo dont le remplissage se fait depuis la rue à travers le soupirail.
Le système semble fonctionnel et a fait d'ailleurs l'objet d'une adaptation pour un meilleur fonctionnement au niveau de l'alimentation en pellets de la chaudière.
Un thermostat et une sonde extérieure sont présentes.
Cette partie de l'habitation est également équipée de deux poêle à bois l'un dans la salle à manger cuisine l'autre dans le salon.
Les murs où se trouvent les radiateurs sont équipés de surfaces réfléchissantes.
La dépendance est équipée d'une chaudière à mazout classique et de radiateurs avec vannes thermostatiques, la chaudière semble régulée par un thermostat présent dans la pièce principale.
L'alimentation en eau chaude sanitaire de la maison principale est assurée par un boiler relié au système de chauffage.
La dépendance est équipée de deux boilers électriques, tous deux dimensionnés et positionnés de manière adéquate par rapport aux points de puisages.
La maison est reliée à l'égouttage publique, une fosse septique (dans la chambre de visite se trouve dans le Carports à 6 m plus ou moins de la porte de garage) agit en tant que buffer selon le propriétaire actuel.
Certains éléments dont un interrupteur et quelques blochets ouverts devront faire l'objet d'une intervention.
DATA ROOM
Nous avons mis tous les documents importants dans la date room, n’hésitez pas à télécharger ce dont vous avez besoin !
Nous avons mis tous les documents importants dans la date room, n’hésitez pas à télécharger ce dont vous avez besoin !
Besoin de crédit
Maintenant que vous êtes sûrs d’avoir fait le bon choix, calculez la valeur totale de cette acquisition (valeur du bien et frais annexes) et estimez vos besoins en crédit !
Simulation de crédit
| Prix d'achat | € |
| Rénovation | € |
| Rénovation HTVA | {{ calculeData.renovationHTVA | number:2 }} € |
| TVA | {{ calculeData.tva | number:2 }} € |
| Fonds propres | € |
| Acompte dû (disponible au compromis de vente) | {{ calculeData.prix * 0.1 | number:2 }} € |
| Reste des liquidités (disponible à l'acte) | {{ calculeData.avance | number:2 }} € |
| Crédit pont | {{ calculeData.creditPont | number:2 }} € |
| Prix de vente de votre bien existant | € |
| Solde du crédit existant | € |
| Frais d'acte d'achat | {{ calculeData.droit + calculeData.fraisNotaire | number:2 }} € |
| Droits d'enregistrement | {{ calculeData.droit | number:2 }} € |
|
Abattement
Suis-je éligible à une réduction des droits d’enregistrement ? |
|
| Frais de notaire | {{ calculeData.fraisNotaire | number:2 }} € |
| Autres frais | {{ calculeData.inscription + calculeData.fraisDossier + calculeData.autreFrais | number:2 }} € |
| Frais liés à l'acte hypothécaire | {{ calculeData.inscription | number:2 }} € |
| Frais de dossier et expertise bancaire | {{ calculeData.fraisDossier | number:2 }} € |
| Autres frais | € |
| Montant du crédit | {{ calculeData.montantCredit | number:2 }} € | |
La présente simulation se base sur un taux d’intérêt du 09/10/2023. Ce calcul est indicatif et sujet à changement.
Choix du type de crédit
| Taux | Type | CAP | Mensualité | Mensualité Min | Mensualité Max | |
|---|---|---|---|---|---|---|
| {{ tx.banque }} {{ $index+1 }} | {{ tx.taux | number:2 }}% | {{ tx.type }} | -{{ tx.capNeg }}%/+{{ tx.capPos }}% | {{ tx.mens | number:2 }}€ | {{ tx.min | number:2 }}€ | {{ tx.max | number:2 }}€ |
| Taux | Type | CAP | Mensualité | Mensualité Min | Mensualité Max | |
|---|---|---|---|---|---|---|
| {{ tx.banque }} {{ $index+1 }} | {{ tx.taux | number:2 }}% | {{ tx.type }} | -{{ tx.capNeg }}%/+{{ tx.capPos }}% | {{ tx.mens | number:2 }}€ | {{ tx.min | number:2 }}€ | {{ tx.max | number:2 }}€ |
| Taux | Type | CAP | Mensualité | Mensualité Min | Mensualité Max | |
|---|---|---|---|---|---|---|
| {{ tx.banque }} {{ $index+1 }} | {{ tx.taux | number:2 }}% | {{ tx.type }} | -{{ tx.capNeg }}%/+{{ tx.capPos }}% | {{ tx.mens | number:2 }}€ | {{ tx.min | number:2 }}€ | {{ tx.max | number:2 }}€ |
Rentabilité
Cout total de l’acquisition
| Prix d'achat | {{ calculeData.prix | number:2 }} € |
| Rénovation | + {{ calculeData.prixTransRenovation | number:2 }} € |
| Frais | + {{ calculeData.frais | number:2 }} € |
| Coût total | + {{ calculeData.frais + calculeData.prixTransRenovation + calculeData.prix | number:2 }} € |
| Fonds propres + crédit pont | {{ calculeData.totalFP+calculeData.creditPont | number:2 }} € |
| Montant du crédit | {{ calculeData.montantCredit | number:2 }} € |
| Coût total | + {{ calculeData.creditPont + calculeData.totalFP + calculeData.montantCredit | number:2 }} € |
Rentabilité sur actifs
Durée de détention année(s)
Gain réel {{ calculeData.gainReel | number:0 }} €
Rendement sur actif {{ calculeData.rendementSurActif | number:2 }} %
Revenus
| Revenu locatif annuel Brut | € |
| Charge annuelle {{ calculeData.pourcentageCharge | number:2 }}% | {{ calculeData.chargeLocatifAnnuel | number:2 }} € |
| Précompte immobilier | {{ calculeData.precomteImmo | number:2 }} € |
| Autre charge annuelle | € |
| Revenu locatif annuel net | {{ calculeData.revenuLocatifAnnuelNet | number:2 }} € |
| Total revenu locatif après {{ calculeData.dureeDetention }} année(s) tenant compte d'une inflation de % |
{{ calculeData.totalRevenuLocatif | number:2 }} € |
| Plus-value latente | {{ calculeData.pluvalueLatente | number:2 }} % |
| Plus-value du bien après {{calculeData.dureeDetention}} année(s) | {{ calculeData.pluvalueBien | number:2 }} € |
| Total revenu locatif après {{ calculeData.dureeDetention }} année(s) | {{ calculeData.totalRevenuLocatif | number:2 }} € |
| Gain brut sur le prix de base après {{ calculeData.dureeDetention }} année(s) | +{{ calculeData.gainBrut | number:2 }} € |
Charges
| Durée du crédit | {{ calculeData.duree | number:2 }} ans |
| Taux | {{ calculeData.taux | number:2 }} % |
| Mensualité | {{ calculeData.mensualite | number:2 }} € |
| Total interêts après {{calculeData.dureeDetention}} année(s) | {{ calculeData.totalInteret | number:2 }} € |
| Total frais | {{ calculeData.frais | number:2 }} € |
| Total | {{ calculeData.InteretFrais | number:2 }} € |
Gain réel
Rendement sur actif
Cash flow
| Année | Coût | Revenu locatif | Gain |
|---|---|---|---|
| {{ $index }} | {{ ch.payment | number:2 }} € | {{ ch.revenuLocatif | number:2 }} € | {{ - ch.fondPropre | number:2 }} € |
Av. Louise 433 Louizalaan 1050 Bruxelles - Brussel
Chaussée de Bruxelles 21 1310 La Hulpe