Suis-je éligible à une réduction des droits d’enregistrement ?
Les Beliers
PRIX : 950 000 €
Type: Grande maison | Région: Wallonie | Commune: Nivelles
Ensemble immobilier idéalement situé dans le centre de Nivelles comprenant un restaurant (2 grandes salles, espace bar, cuisine, réserves, débarras, vestiaire, WC), un coiffeur/barbier, un studio, 2 bureaux, 2 appartements duplex, un grenier, plusieurs caves et un parking 15 voitures.
Surface habitable: 1037 m²
Caves: 5
Bureaux: 3
Parkings: 15
Appartements duplex: 2
Commerces: 2
Studio: 1
Greniers: 3
Vidéo
Découvrez le bien en visualisant cette vidéo
VISITE VIRTUELLE
Vous voulez en voir plus ? Visitez le bien comme si vous y étiez à travers cette visite virtuelle
Localisation
Ce bien vous correspond ? Découvrez maintenant si sa localisation vous convient !
Commerces
Pharmacies
Restaurants
Boulangeries
Crèches
Parcs
Écoles
Universités
Déplacements
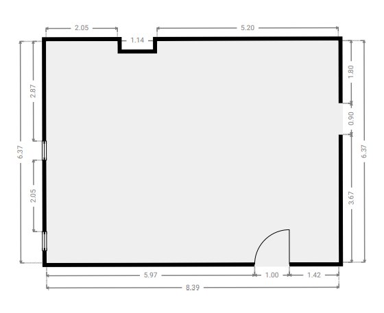
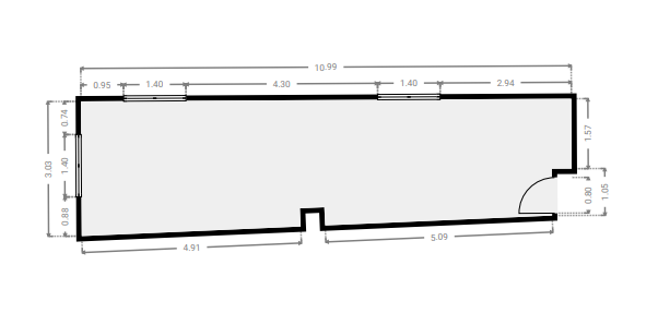
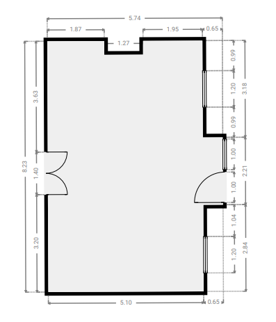
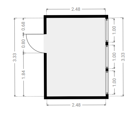
Plans intérieurs
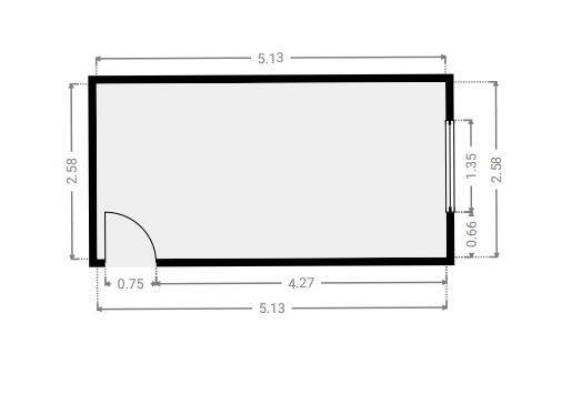
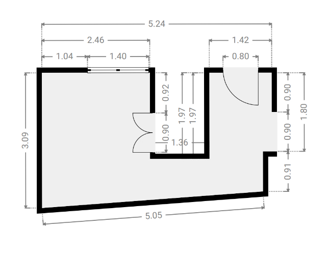
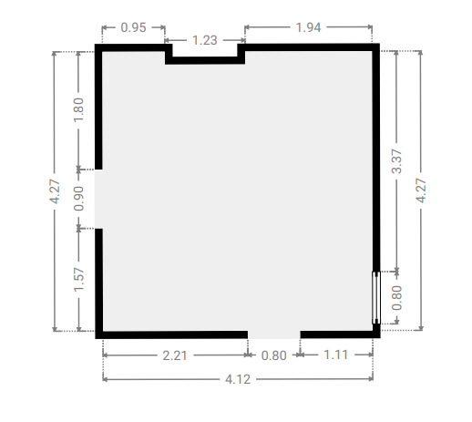
Sous-sol
SURFACE TOTALE : 108.28 m² | SURFACE HABITABLE : 108.28 m²
5x Caves
2x Couloirs
Cave 1
SURFACE : 12.9 m²
Couloir 1
SURFACE : 7.61 m²
Couloir 2
SURFACE : 2.99 m²
Cave 2
SURFACE : 25.6 m²
Cave 3
SURFACE : 28.31 m²
Cave 4
SURFACE : 11.54 m²
Cave 5
SURFACE : 19.39 m²
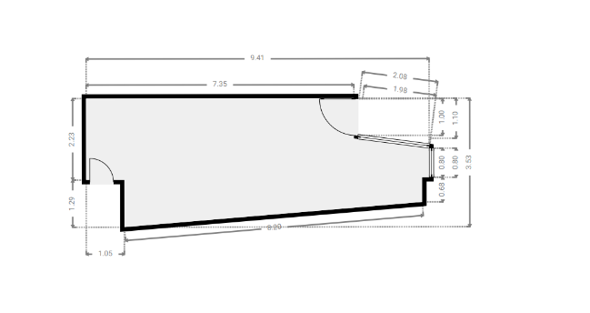
Commerce 1
SURFACE TOTALE : 27.39 m² | SURFACE HABITABLE : 27.39 m²
1x Commerce
Commerce 1
SURFACE : 26.25 m²
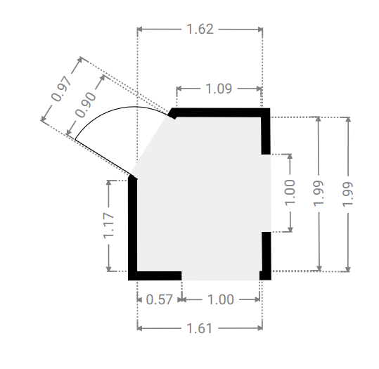
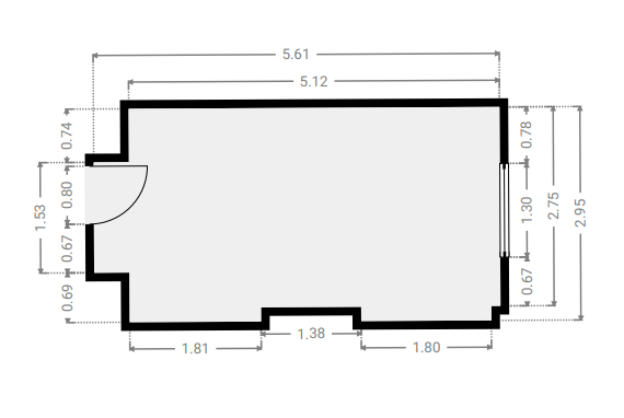
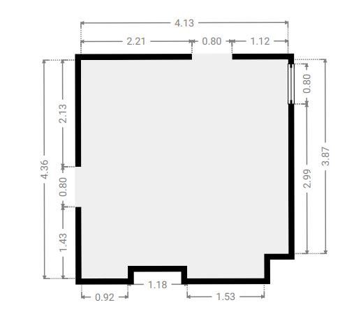
Studio
SURFACE TOTALE : 26.78 m² | SURFACE HABITABLE : 26.78 m²
1x Studio
Studio
SURFACE : 14.47 m²
Studio 2
SURFACE : 12.31 m²
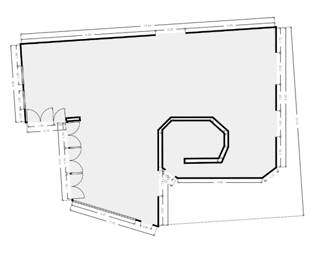
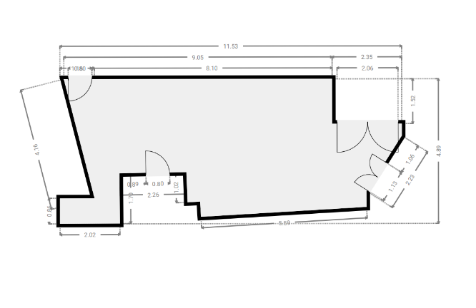
Commerce 2
SURFACE TOTALE : 465.02 m² | SURFACE HABITABLE : 465.02 m²
1x Cuisine
1x Salle polyvalente
1x Surface commerciale
Salle polyvalente
SURFACE : 74.15 m²
Surface commerciale
SURFACE : 166.22 m²
Cuisine
SURFACE : 41.33 m²
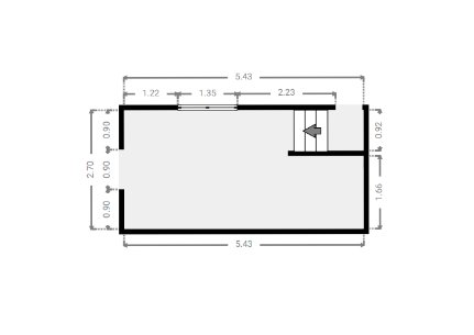
Bureaux
SURFACE TOTALE : 64.55 m² | SURFACE HABITABLE : 64.55 m²
3x Bureaux
Bureau 1
SURFACE : 30.25 m²
Bureau 2
SURFACE : 15.74 m²
Bureau 3
SURFACE : 12.8 m²
Duplex 1
SURFACE TOTALE : 44.56 m² | SURFACE HABITABLE : 44.56 m²
1x Cuisine
1x Séjour
3x Chambres
1x S.D.D
Cuisine
SURFACE : 12.18 m²
Séjour
SURFACE : 29.92 m²
Chambre 1
SURFACE : 8.25 m²
Chambre 2
SURFACE : 11.3 m²
Couloir 2
SURFACE : 6.04 m²
S.D.D
SURFACE : 3.83 m²
Chambre 3
SURFACE : 11.95 m²
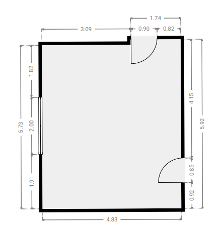
Duplex 2
SURFACE TOTALE : 93.83 m² | SURFACE HABITABLE : 93.83 m²
4x Chambres
1x S.D.B
1x Cuisine
1x Séjour
Cuisine
SURFACE : 28.01 m²
Séjour
SURFACE : 42.77 m²
Chambre 1
SURFACE : 28.78 m²
S.D.B
SURFACE : 6.05 m²
Chambre 2
SURFACE : 13.22 m²
Chambre 3
SURFACE : 10.6 m²
Chambre 4
SURFACE : 15.57 m²
Greniers
SURFACE TOTALE : 96.66 m² | SURFACE HABITABLE : 96.66 m²
3x Greniers
Grenier 1
SURFACE : 53.03 m²
Grenier 2
SURFACE : 17.35 m²
Grenier 3
SURFACE : 17.47 m²
RECHERCHE CADASTRALE
Vous souhaitez mieux connaître votre parcelle et connaître la surface dont vous jouirez en achetant ce bien, alors consulter le cadastre est nécessaire !
Surface : 1056.69 m²
Parcelle : C188p
Audit technique
En prévoyant un budget précis des transformations et/ou réparations à opérer sur ce bien, l'expertise réalisée par un architecte neutre et indépendant vous permet de mieux évaluer la valeur de ce bien !
Score général attribué par l’auditeur *
Conseils généraux en termes de performances énergétiques du bâtiment :
Le grenier n'est pas isolé au niveau des versants de toiture. Une couche 20cm de laine minérale pourrait être ajoutée afin d'arriver aux performances énergétiques actuelles.
Les murs et la dalle de sol ne sont probablement pas isolés.
Il y a toujours possibilité d'isoler les murs par l'extérieur mais bien sur sans oublier le coût (150€/m² pour un crépi isolé) et l'aspect si le parement est fait en crépi ou en briques (voir avec le style de la maison et les possibilité urbanistique).
Et si l'isolation est renforcée, il y aura lieu d'augmenter la ventilation (aérateurs dans les châssis dans les locaux secs (séjour, chambres, bureau) et extracteurs mécaniques dans les locaux humides (wc, salles de douche) afin d'éviter l'effet thermos de la maison (risque d'apparition de moisissures si trop de condensation).
Le systeme de chauffage est multiple, et ne présente vraisemblablement plus un niveau de performance satisfaisant dans certaines entités (chauffages électrique), l’installation d'un système moderne améliorera aussi les performance du batiment.
Avis général et conseils de l'inspecteur :
Bel immeuble de rapport, idéalement situé dans le centre de Nivelles, le bâtiment est dans un bon état général et a été bien entretenu.
Celui-ci nécessite une legere rénovation qui permettra de lui apporter un confort et des équipements contemporains (surtout dans les appartement). Au niveau technique général, une vérification complète sera nécessaire afin de rendre le bâtiment normé tant au niveau électrique que de la salubrité et du risque incendie.
DISCLAIMER
La conclusion et les conseils donnés sont le résultat d’une inspection indépendante, réalisée par un architecte expérimenté et agréé par ImmoPass.
Les éventuelles estimations budgétaires contenues dans ce rapport sont données à titre indicatif et ne constituent pas un devis. Nous recommandons de réaliser un Cahier des Charges sur tout ou partie des travaux à entreprendre et une analyse des devis reçus. Les estimations sont exprimées hors taxes.
L’inspection a été réalisée de manière non-destructive, de manière visuelle uniquement. Ce rapport ne peut donc garantir l’absence totale de vices techniques cachés.
100 %
Zone inondable, zone acoustique, plan de secteurs, permis d’urbanisme ...
100 %
Certification énergétique, conformité électrique, cuve à mazout, sol, ...
95 %
Sécurité, aménagements, structures extérieures, entretien végétation, ...
63 %
Humidité généralisée, présence d’amiante, mérule, termites ...
77 %
Toiture, murs extérieurs, châssis et portes, évacuation eau de pluie, ...
82 %
Défauts structurels, humidité localisée, salubrité, état de fonctionnement..
65 %
Halls et escaliers, caves, combles et grenier, locaux techniques, ...
97 %
Système de chauffage, eau chaude sanitaire, électricité, entretiens techniques, ...
Dans l'ensemble en bon état, hormis le netoyage annuel à prévoir, nous avons remarqué qu'une pierre couvre-mur s'était descellée, à replacer.
Dans l'ensemble en bon état, seul un petit netoyage des menuiserie de la toiture est à prévoir.
Au niveau de ce bâtiment, nous suspectons la présence basse d'amiante dans divers matériaux:
- Ardoises
Souvent, dans les matériaux de construction avant les années 2000 celle-ci à été utilisée pour une application principale, à savoir, l’amiante-ciment destiné à la fabrication de ses différents produits (ardoises, plaques ondulées, plaques planes, tuyaux, etc.). L’amiante-ciment est dans la plupart des cas une application liée se composant de 85 à 90% de ciment et de 10 à 15% de fibres d’amiante. Ces fibres sont ancrées dans la masse du ciment solide et remplissent le même rôle que l’acier dans le béton armé. Les fibres peuvent dès lors difficilement être libérées, sauf si ces produits en amiante-ciment sont traités (meulage, découpe, percement, etc.) ou sont abimés à la suite de toute autre intervention agressive.
Les toits, façades et autres produits réalisés en amiante-ciment et qui sont en bon état ne comportent aucun risque et ne doivent dès lors pas être enlevés, ni éliminés. Certains indices laissent par ailleurs penser que les anciens toits en amiante-ciment risquent d’être altérés sous l'influence du temps, du vent ou d'importantes variations de température (gel...). Le produit en amiante-ciment peut par conséquent être endommagé, et les fibres risqueraient alors d'être emportées par l'eau de pluie. Si ces toits sont équipés d'un bon écoulement des eaux et de gouttières intactes et qui fonctionnent parfaitement le risque d'exposition est assez négligeable. Dans certains cas (amiante-ciment en bon état), vous pourrez procéder vous-même aux interventions nécessaires, pour autant que vous teniez compte de quelques mesures de sécurité. Dans les autres cas, vous devez solliciter une assistance professionnelle.
Attention, on ne peut pas retirer dans de bonnes conditions de sécurité, l'amiante-ciment fortement détérioré ou difficile à enlever. Sans connaissances spécialisées, ni équipement adéquat, les risques que des quantités substantielles de fibres d'amiante se retrouvent dans l'air ambiant en cas de détérioration ou de manipulation sont, en effet, très élevés. Vous vous exposerez dès lors à des risques inutiles. Il est donc nécessaire de faire appel dans de pareils cas à des sociétés spécialisées.
Les données de toutes les entreprises agréées pour des travaux de démolition et de retrait d'amiante sont disponibles sur le site Internet du Service public fédéral Emploi, Travail et Concertation sociale. Il vous est également loisible de demander cette liste en appelant le 02 233 45 93.
Afin de s'assurer de la présence ou non d'amiante, l'infographie ci annexée peut être utilisée mais seul une vérification via une analyse d’échantillon via une entreprise spécialisée peut attester de la présence ou non d'amiante dans les produits.
Nous remarquons uniquement en cave la trace d'anciens insectes xylophage qui semblent avoir ete traités. Surveillance à réaliser dans le temps pour vérifier si le problème est définitivement traité.
Pas d'humidité généralisée, voir aux points concernés.
Dans l'ensemble les parements sont en état correct, nous remarquons des zones à la coloration usées ou abimées. Légères rénovations à prévoir si souhaitées.
Les ardoises sont relativement en bon état. Nous remarquons tout de même que celles-ci se noircissent et se couvrent de mousses en certain endroits. Plusieurs causes à cela:
- L’exposition aux intempéries: pluie, vent, gel, neige et soleil mettent votre tuilerie ( mais également l’ensemble de votre toiture) à rude épreuve.
- Les végétaux environnants: plus votre toiture sera à proximité de végétation, plus le risque de voir des végétaux s’y déposer sera important. De façon générale, les pollens, lichens, mousses, algues et champignons ont un effet important sur la dégradation esthétique de la tuilerie.
- Les petits animaux: oiseaux, rongeurs et insectes peuvent facilement laisser des traces de leur passage sur votre toiture.
Ceci est un phénomène naturel. Néanmoins, cela envoie un signal concernant l'état de la toiture. En effet, le noircissement des tuiles est un signe de corrosion de la surface de la toiture. Au fil des années et des intempéries, vos tuiles deviendront alors plus poreuses et s’imbibent plus facilement d’eau, ce qui aura pour effet de les fragiliser fortement et de risquer qu’elles se brisent plus facilement au premier gel ou de produire d’importants dégâts lors de tempêtes.
Il est alors conseillé de les nettoyer et si possible d'en renforcer l’étanchéité.
Pour cela, le produit utilisé renferme généralement du styrène acrylique et des résines siloxanes. Le principe est de combler la porosité tout en renforçant le fond des tuiles. A noter que ce type de traitement imperméabilisant spécial toiture est réalisé à la fois à titre préventif et curatif. Estimation: +/-30euro/m².
Nous avons pu analyser egalement les toiture plateformes du rez, dans l’ensemble, celles des volumes secondaires sont dans un bon état, nous somme plus réservé quand à celle du salon de coiffure (volume gauche), un lestage en gravier empêchant toute vérification. Pas d'infiltrations signalée pour autant.
Nous n'avons pas pus vérifier la toitures plateforme située sur le volume droit.
Lors de l'entretien de la toiture, une vérification générale est à effectuer sur les différentes garnitures de celle-ci. nous n'avons pas pu remarquer de points sensibles.
Dans l'ensemble les corniches sont dégradées, dus à leur âge. A court terme, un nettoyage global est à effectuer, les corniches que nous avons pu analyser sont verdies et leur revêtement semble daté, à moyen terme, une rénovation globale des corniches sera à prévoir.
Estimation réparation corniche : +/-200euro/m (=> +/- 6000euros pour le global).
Une révision esthétique est également à prévoir.
Une citerne existe sous le bar du restaurant. Un groupe y est raccordé est l'eau est utilisée pour l’extérieur.
Dans l'ensemble, visuellement les châssis ne présentent pas de défaut. Pas de problème majeur constaté. Certaines huisseries et quincailleries sont à remplacer ou régler.
Les châssis sont généralement des doubles vitrage aluminium de début 2000, certain sont par contre en simple vitrage bois (rez +1 arrière volume droit et salon de coiffure avant). Le remplacement des menuiseries les plus âgée est à prévoir mais un remplacement général peut être envisagé afin d’améliorer l'isolation globale du batiment.
Estimation: en moyenne +/-900euro/m² posé. Une estimation plus précise basée sur un métré devra être réalisée par une entreprise spécialisée afin de préciser le budget necessaire. l’idéal serait alors d’ajouter des OAR au châssis qui seront remplacés afin améliorer le système de ventilation, Estimation: 200 euro de plus par mètre courant.
Voir 4.10
Le bâtiment de comporte pas de système de ventilation hygiénique aux normes actuelles. Cela s'explique logiquement par l'âge du bâtiment et les normes de ventilation différentes au moment de la construction ou de la rénovation de celui-ci.
La mise en place de ce système de ventilation sera d'office nécessaire si le propriétaire procède au remplacement des châssis dans le futur; il aura l'obligation d'intégrer un système de ventilation (amenée d'air par les pièces sèches) aux châssis ou de prévoir un système de ventilation mécanique à double flux. Même si la norme ne l'impose pas et que le propriétaire opte pour la ventilation via les grilles dans les châssis, nous recommandons d'installer également un système d'extraction d'air par les pièces humides pour que le système de ventilation soit complet et efficace.
(Estimation financière pour le placement de systèmes d'extractions mécaniques au départ des locaux humides non équipés = +/2500€ htva.)
Nous avons relevé la présence de détecteur de façon ponctuelle. Ce point constitue un risque majeur dans la mesure où il est lié au risque d'incendie et de survie des habitant dans le bâtiment.
Estimation financière : +/- 500 htva.
Voir 4.10
Voir 4.10
Équipements basique, dans les appartements ceux-ci sont daté et mériterons une modernisation à l'avenir, tout est fonctionnel actuellement.
Les hottes des appartement sont fonctionnelles, celles du restaurant ont été nettoyées et entretenues avant la vente.
Dans l'ensemble, les meubles sont fonctionnels mais daté.
Voir 4.10
Pas de défauts structurels.
Nous retrouvons par contre au niveau des toilettes du salon de coiffure, une humidité de surface au niveau du plafond, nous suspectons que le manque de ventilation. Une légère infiltration peut être suspectée, invérifiable au niveau de la toiture, à investiguer.
Aucuns appareils de ventilations mécaniques n'ont été installés dans les espaces logement. L’installation d'extracteurs individuels automatiques dans chaque pièce d'eau permettra d'améliorer l’évacuation de l'air humide des pièces d'eau. Les sanitaires du restaurant sont ventilé.
Estimation: +/- 2500 euros pour l'ensemble du bâtiment. Afin d'assurer le fonctionnement de cette ventilation le bon dimensionnement des d'amenées d'air (OAR) existantes serait nécessaire afin d'optimiser celle-ci (voir 4.10).
Voir 5.19
Dans le volume central, à hauteur de l’accès au combles, nous remarquons un mur particulièrement dégradé au niveau du plafonage. Nous soupçonnons soit une infiltration venant de la corniche, soit une possibilité d'infiltration au niveau d'une des loges de la façade, une vérification est à effectuer après déplafonnage de la zone.
Voir 4.10
L'escalier hélicoïdal du logement du volume droit est bancal, celui-ci doit être refixé convenablement.
Nous remarquons de nombreuses zones ou les plafonds sont dégradés, traces d'anciennes infiltrations ou de dégât des eaux, nous n'avons pas pu constater si ceux si sont toujours d'actualité, le propriétaire actuel atteste que tout a été réparé et qu'aucune infiltrations ne subsistent.
Voir 4.10
Nous avons relevé la présence d'une mousse d’efflorescence dans une partie de la cave, ce qui indique une humidité importante. Une meilleur ventilation de la cave pourra freiner le phénomène.
L’efflorescence est en fait du sel, le béton contient du calcium et lorsque le béton devient en contact répétitif avec de l’eau, le sel se cristallise et s’extrait du béton.
L’apparition de l’efflorescence peut se faire à tout moment de l’année mais cela dépend de la cause. Si l’efflorescence est majoritairement sur vos murs de fondation, cela veut dire que vous avez une fissure dans votre fondation ou que vos fondations ont besoin d’être imperméabilisées.
Les index d'humidité relevées au pied des murs de la cave traduisent certainement une remontée capillaire ou traversante de l'humidité du sol. Ce phénomène est compréhensible compte tenu de la technique de construction du bâtiment qui n'intégrait pas de membrane anti-capillaire ou de drain le long des façades.
Nous pensons egalement qu'il serait judicieux de freiner le phénomène par l'une ou l'autre technique existante.
1.Appliquer un enduit d’étanchéité (cuvelage) ; entre 35 €/m2 et 45 €/m2.
2.Assécher les murs et les injecter de résine ; entre 65 et 110 €/mètres linéaire.
3.Améliorer la ventilation de cave.
Selon la méthode choisie, une étude plus précise devra être réalisée par l'entreprise spécialisée avant la réalisation.
Ventilation insuffisante, voir point 6.7
Le batiment possède différents systèmes de chauffage. L'appartement du volume de droite possède un chauffage via convecteurs électrique. Le salon de coiffure possède un groupe de type pompe a chaleur, l'appartement du corps central possède une chaudière à condensation, le restaurant également.
Via chaudière et un boiler électrique pour le salon de coiffure.
Dans l'ensemble le système a été entretenu par le propriétaire précédent et est fonctionnel. Celui-ci doit malgré tout être revu suite à la vérification lors du contrôle agrée et amélioré afin de l'adapter aux normes actuelles.
Beaucoup d'équipement du restaurant sont encore présent et fonctionnels. Bien sur une vérification et un nettoyage sera à réaliser afin de rendre leur utilisation pérenne.
DATA ROOM
Nous avons mis tous les documents importants dans la date room, n’hésitez pas à télécharger ce dont vous avez besoin !
Nous avons mis tous les documents importants dans la date room, n’hésitez pas à télécharger ce dont vous avez besoin !
Besoin de crédit
Maintenant que vous êtes sûrs d’avoir fait le bon choix, calculez la valeur totale de cette acquisition (valeur du bien et frais annexes) et estimez vos besoins en crédit !
Simulation de crédit
| Prix d'achat | € |
| Rénovation | € |
| Rénovation HTVA | {{ calculeData.renovationHTVA | number:2 }} € |
| TVA | {{ calculeData.tva | number:2 }} € |
| Fonds propres | € |
| Acompte dû (disponible au compromis de vente) | {{ calculeData.prix * 0.1 | number:2 }} € |
| Reste des liquidités (disponible à l'acte) | {{ calculeData.avance | number:2 }} € |
| Crédit pont | {{ calculeData.creditPont | number:2 }} € |
| Prix de vente de votre bien existant | € |
| Solde du crédit existant | € |
| Frais d'acte d'achat | {{ calculeData.droit + calculeData.fraisNotaire | number:2 }} € |
| Droits d'enregistrement | {{ calculeData.droit | number:2 }} € |
|
Abattement
Suis-je éligible à une réduction des droits d’enregistrement ? |
|
| Frais de notaire | {{ calculeData.fraisNotaire | number:2 }} € |
| Autres frais | {{ calculeData.inscription + calculeData.fraisDossier + calculeData.autreFrais | number:2 }} € |
| Frais liés à l'acte hypothécaire | {{ calculeData.inscription | number:2 }} € |
| Frais de dossier et expertise bancaire | {{ calculeData.fraisDossier | number:2 }} € |
| Autres frais | € |
| Montant du crédit | {{ calculeData.montantCredit | number:2 }} € | |
Choix du type de crédit
| Taux | Type | CAP | Mensualité | Mensualité Min | Mensualité Max | |
|---|---|---|---|---|---|---|
| {{ tx.banque }} | {{ tx.taux | number:2 }}% | {{ tx.type }} | -{{ tx.capNeg }}%/+{{ tx.capPos }}% | {{ tx.mens | number:2 }}€ | {{ tx.min | number:2 }}€ - | {{ tx.max | number:2 }}€ - |
| Taux | Type | CAP | Mensualité | Mensualité Min | Mensualité Max | |
|---|---|---|---|---|---|---|
| {{ tx.banque }} | {{ tx.taux | number:2 }}% | {{ tx.type }} | -{{ tx.capNeg }}%/+{{ tx.capPos }}% | {{ tx.mens | number:2 }}€ | {{ tx.min | number:2 }}€ - | {{ tx.max | number:2 }}€ - |
| Taux | Type | CAP | Mensualité | Mensualité Min | Mensualité Max | |
|---|---|---|---|---|---|---|
| {{ tx.banque }} | {{ tx.taux | number:2 }}% | {{ tx.type }} | -{{ tx.capNeg }}%/+{{ tx.capPos }}% | {{ tx.mens | number:2 }}€ | {{ tx.min | number:2 }}€ - | {{ tx.max | number:2 }}€ - |
Rentabilité
Cout total de l’acquisition
| Prix d'achat | {{ calculeData.prix | number:2 }} € |
| Rénovation | + {{ calculeData.prixTransRenovation | number:2 }} € |
| Frais | + {{ calculeData.frais | number:2 }} € |
| Coût total | + {{ calculeData.frais + calculeData.prixTransRenovation + calculeData.prix | number:2 }} € |
| Fonds propres + crédit pont | {{ calculeData.totalFP+calculeData.creditPont | number:2 }} € |
| Montant du crédit | {{ calculeData.montantCredit | number:2 }} € |
| Coût total | + {{ calculeData.creditPont + calculeData.totalFP + calculeData.montantCredit | number:2 }} € |
Rentabilité sur actifs
Durée de détention année(s)
Gain réel {{ calculeData.gainReel | number:0 }} €
Rendement sur actif {{ calculeData.rendementSurActif | number:2 }} %
Revenus
| Revenu locatif annuel Brut | € |
| Charge annuelle {{ calculeData.pourcentageCharge | number:2 }}% | {{ calculeData.chargeLocatifAnnuel | number:2 }} € |
| Précompte immobilier | {{ calculeData.precomteImmo | number:2 }} € |
| Autre charge annuelle | € |
| Revenu locatif annuel net | {{ calculeData.revenuLocatifAnnuelNet | number:2 }} € |
| Total revenu locatif après {{ calculeData.dureeDetention }} année(s) tenant compte d'une inflation de % |
{{ calculeData.totalRevenuLocatif | number:2 }} € |
| Plus-value latente | {{ calculeData.pluvalueLatente | number:2 }} % |
| Plus-value du bien après {{calculeData.dureeDetention}} année(s) | {{ calculeData.pluvalueBien | number:2 }} € |
| Total revenu locatif après {{ calculeData.dureeDetention }} année(s) | {{ calculeData.totalRevenuLocatif | number:2 }} € |
| Gain brut sur le prix de base après {{ calculeData.dureeDetention }} année(s) | +{{ calculeData.gainBrut | number:2 }} € |
Charges
| Durée du crédit | {{ calculeData.duree | number:2 }} ans |
| Taux | {{ calculeData.taux | number:2 }} % |
| Mensualité | {{ calculeData.mensualite | number:2 }} € |
| Total interêts après {{calculeData.dureeDetention}} année(s) | {{ calculeData.totalInteret | number:2 }} € |
| Total frais | {{ calculeData.frais | number:2 }} € |
| Total | {{ calculeData.InteretFrais | number:2 }} € |
Gain réel
Rendement sur actif
Cash flow
| Année | Coût | Revenu locatif | Gain |
|---|---|---|---|
| {{ $index }} | {{ ch.payment | number:2 }} € | {{ ch.revenuLocatif | number:2 }} € | {{ - ch.fondPropre | number:2 }} € |
Av. Louise 433 Louizalaan 1050 Bruxelles - Brussel
Drève Richelle, 96 - 1410 Waterloo