Suis-je éligible à une réduction des droits d’enregistrement ?
Le Vallon 35
PRIX : 650 000,00€
Type: Maison | Région: Wallonie | Commune: Wavre
Dans un clos du bois de la Roche, superbe propriété à l'abri des regards avec son vallon privatif boisé. Le chemin d'accès mène à une villa au charme fou, nichée dans un écrin de verdure. Elle se compose de 4 chambres, 2 bureaux et 3 salles d'eau. Le hall d’entrée dessert le WC invité, un vestiaire et une cuisine équipée. Un vaste séjour avec son feu ouvert donne sur la terrasse orientée au sud. Toujours au rez-de-chaussée, nous trouvons un espace nuit composé de deux chambres et d'une salle de bain avec WC. De nombreux placards, un bureau ainsi qu'un garage complètent également ce niveau. Depuis le living, un escalier permet l’accès à l’étage où se trouvent un bureau, deux chambres et une salle de bain avec WC. Un espace indépendant y est installé, avec sa propre cuisine et salle d'eau. Au second étage, un petit grenier sert de rangement. Au sous-sol, des caves saines abritent une buanderie, une cave à vin et une chaufferie équipée d'une chaudière de 2008 et d'un boiler intégré de 120L. Possibilité de vivre de plain-pied. La propriété est clôturée. PEB D-, électricité non conforme.
Surface totale: 274 m²
Chambres: 3
Salles de bains: 2
Salle de douche: 1
Terrasse: orientée au sud
Garage: 1
Caves: 3
Bureaux: 2
chaufferie : 1
Studio
Vidéo
Découvrez le bien en visualisant cette vidéo
VISITE VIRTUELLE
Vous voulez en voir plus ? Visitez le bien comme si vous y étiez à travers cette visite virtuelle
Localisation
Ce bien vous correspond ? Découvrez maintenant si sa localisation vous convient !
Commerces
Pharmacies
Restaurants
Boulangeries
Crèches
Parcs
Écoles
Universités
Déplacements
Plans intérieurs
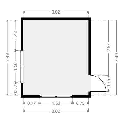
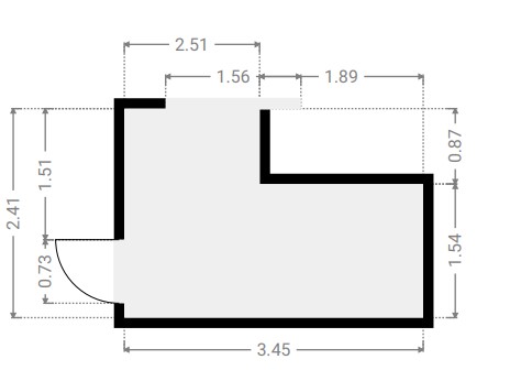
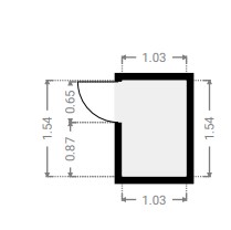
Sous-sol
SURFACE TOTALE : 39.99 m² | SURFACE HABITABLE : 39.99 m² | PIÈCE(S) : 6
2x Couloir(s)
3x Cave(s)
1x Chaufferie
Couloir
SURFACE : 6.09 m²
Cave 1
SURFACE : 11.59 m²
Couloir
SURFACE : 2.2 m²
Cave à Vin
SURFACE : 6.01 m²
Cave 2
SURFACE : 10.67 m²
Chaufferie
SURFACE : 3.46 m²
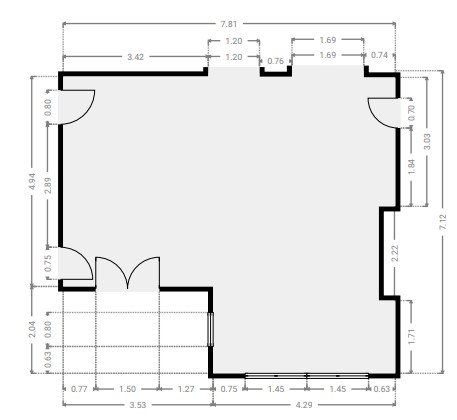
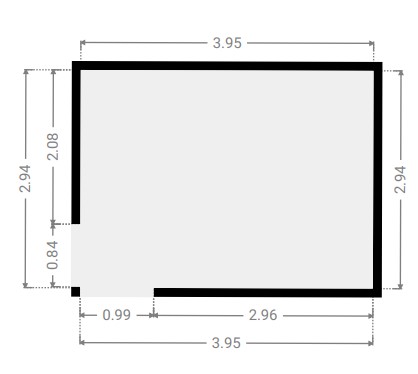
Rez-de-chaussée
SURFACE TOTALE : 130.25 m² | SURFACE HABITABLE : 117.71 m² | PIÈCE(S) : 12
1x Séjour
1x Cuisine
1x Hall
1x Bureau 1
1x Garage
3x Couloir(s)
1x W.C
2x Chambre(s)
1x S.D.B 1
Séjour
SURFACE : 46.83 m²
Cuisine
SURFACE : 10.54 m²
Hall
SURFACE : 5.09 m²
Bureau 1
SURFACE : 14.38 m²
Garage
SURFACE : 12.55 m²
Couloir
SURFACE : 0.96 m²
W.C
SURFACE : 0.94 m²
Couloir
SURFACE : 2.84 m²
Chambre 1
SURFACE : 12.35 m²
Couloir
SURFACE : 2.29 m²
S.D.B 1
SURFACE : 6.54 m²
Chambre 2
SURFACE : 15.01 m²
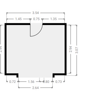
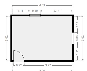
1er étage
SURFACE TOTALE : 91.23 m² | SURFACE HABITABLE : 110.34 m² | PIÈCE(S) : 9
1x Couloir
1x Bureau 2
1x Chambre 3
1x S.D.B 2
2x W.C(s)
1x Dressing
1x S.D.D
1x Studio
Couloir
SURFACE : 6.67 m²
Bureau 2
SURFACE : 10.69 m²
Chambre 3
SURFACE : 28.6 m²
S.D.B 2
SURFACE : 6.05 m²
W.C
SURFACE : 1.59 m²
Dressing
SURFACE : 7.33 m²
W.C
SURFACE : 1.06 m²
S.D.D
SURFACE : 2.8 m²
Studio
SURFACE : 26.49 m²
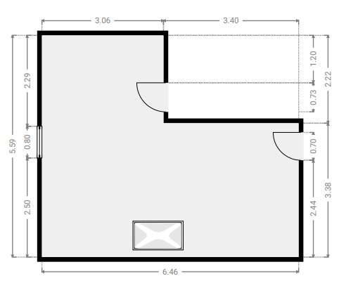
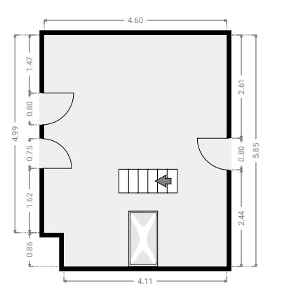
2e étage
SURFACE TOTALE : 12.60 m² | SURFACE HABITABLE : 12.60 m² | PIÈCE(S) : 1
1x Mezzanine
Mezzanine
SURFACE : 12.62 m²
RECHERCHE CADASTRALE
Vous souhaitez mieux connaître votre parcelle et connaître la surface dont vous jouirez en achetant ce bien, alors consulter le cadastre est nécessaire !
État des sols
La pollution du sol a un impact sur l'environnement et sur la santé, les risques d’inondation ont un impact sur votre qualité de vie… Consultez les données relatives à ce bien pour en avoir le cœur net !
ÉTAT DE LA POLLUTION DES SOLS
Aucune remarque particulière pour la parcelle D519r3
Source : Cliquez-ici
Légende :
ZONE INONDABLE
Aucune remarque particulière pour la parcelle D519r3
Source : Cliquez-ici
Légende :
Certificats
Informez-vous sur la performance énergétique de ce bien et assurez-vous que ses installations électriques sont bien aux normes !
PERFORMANCE ÉNERGÉTIQUE
Économe
Très énergivore
CERTIFICAT ÉLECTRIQUE
PROCES VERBAL D’EXAMEN DE CONFORMITE ET/OU DE VISITE DE CONTROLE D’UNE INSTALLATION ELECTRIQUE BASSE TENSION
La nouvelle installationNon Conforme
INDICATEURS SPÉCIFIQUES
| Besoins en chaleur du logement | ||||
| excessifs | élevés | moyens | faibles | minimes |
| Performance des installations de chauffage | ||||
| médiocre | insuffisante | satisfaisante | bonne | excellente |
| Performance des installations d'eau chaude sanitaire | ||||
| médiocre | insuffisante | satisfaisante | bonne | excellente |
| Système de ventillation | ||||
| absent | très partiel | partiel | incomplet | complet |
DATA ROOM
Nous avons mis tous les documents importants dans la date room, n’hésitez pas à télécharger ce dont vous avez besoin !
Nous avons mis tous les documents importants dans la date room, n’hésitez pas à télécharger ce dont vous avez besoin !
Besoin de crédit
Maintenant que vous êtes sûrs d’avoir fait le bon choix, calculez la valeur totale de cette acquisition (valeur du bien et frais annexes) et estimez vos besoins en crédit !
Simulation de crédit
| Prix d'achat | € |
| Rénovation | € |
| Rénovation HTVA | {{ calculeData.renovationHTVA | number:2 }} € |
| TVA | {{ calculeData.tva | number:2 }} € |
| Fonds propres | € |
| Acompte dû (disponible au compromis de vente) | {{ calculeData.prix * 0.1 | number:2 }} € |
| Reste des liquidités (disponible à l'acte) | {{ calculeData.avance | number:2 }} € |
| Crédit pont | {{ calculeData.creditPont | number:2 }} € |
| Prix de vente de votre bien existant | € |
| Solde du crédit existant | € |
| Frais d'acte d'achat | {{ calculeData.droit + calculeData.fraisNotaire | number:2 }} € |
| Droits d'enregistrement | {{ calculeData.droit | number:2 }} € |
|
Abattement
Suis-je éligible à une réduction des droits d’enregistrement ? |
|
| Frais de notaire | {{ calculeData.fraisNotaire | number:2 }} € |
| Autres frais | {{ calculeData.inscription + calculeData.fraisDossier + calculeData.autreFrais | number:2 }} € |
| Frais liés à l'acte hypothécaire | {{ calculeData.inscription | number:2 }} € |
| Frais de dossier et expertise bancaire | {{ calculeData.fraisDossier | number:2 }} € |
| Autres frais | € |
| Montant du crédit | {{ calculeData.montantCredit | number:2 }} € | |
La présente simulation se base sur un taux d’intérêt du 27/08/2024. Ce calcul est indicatif et sujet à changement.
Choix du type de crédit
| Taux | Type | CAP | Mensualité | Mensualité Min | Mensualité Max | |
|---|---|---|---|---|---|---|
| {{ tx.banque }} {{ $index+1 }} | {{ tx.taux | number:2 }}% | {{ tx.type }} | -{{ tx.capNeg }}%/+{{ tx.capPos }}% | {{ tx.mens | number:2 }}€ | {{ tx.min | number:2 }}€ | {{ tx.max | number:2 }}€ |
| Taux | Type | CAP | Mensualité | Mensualité Min | Mensualité Max | |
|---|---|---|---|---|---|---|
| {{ tx.banque }} {{ $index+1 }} | {{ tx.taux | number:2 }}% | {{ tx.type }} | -{{ tx.capNeg }}%/+{{ tx.capPos }}% | {{ tx.mens | number:2 }}€ | {{ tx.min | number:2 }}€ | {{ tx.max | number:2 }}€ |
| Taux | Type | CAP | Mensualité | Mensualité Min | Mensualité Max | |
|---|---|---|---|---|---|---|
| {{ tx.banque }} {{ $index+1 }} | {{ tx.taux | number:2 }}% | {{ tx.type }} | -{{ tx.capNeg }}%/+{{ tx.capPos }}% | {{ tx.mens | number:2 }}€ | {{ tx.min | number:2 }}€ | {{ tx.max | number:2 }}€ |
Rentabilité
Cout total de l’acquisition
| Prix d'achat | {{ calculeData.prix | number:2 }} € |
| Rénovation | + {{ calculeData.prixTransRenovation | number:2 }} € |
| Frais | + {{ calculeData.frais | number:2 }} € |
| Coût total | + {{ calculeData.frais + calculeData.prixTransRenovation + calculeData.prix | number:2 }} € |
| Fonds propres + crédit pont | {{ calculeData.totalFP+calculeData.creditPont | number:2 }} € |
| Montant du crédit | {{ calculeData.montantCredit | number:2 }} € |
| Coût total | + {{ calculeData.creditPont + calculeData.totalFP + calculeData.montantCredit | number:2 }} € |
Rentabilité sur actifs
Durée de détention année(s)
Gain réel {{ calculeData.gainReel | number:0 }} €
Rendement sur actif {{ calculeData.rendementSurActif | number:2 }} %
Revenus
| Revenu locatif annuel Brut | € |
| Charge annuelle {{ calculeData.pourcentageCharge | number:2 }}% | {{ calculeData.chargeLocatifAnnuel | number:2 }} € |
| Précompte immobilier | {{ calculeData.precomteImmo | number:2 }} € |
| Autre charge annuelle | € |
| Revenu locatif annuel net | {{ calculeData.revenuLocatifAnnuelNet | number:2 }} € |
| Total revenu locatif après {{ calculeData.dureeDetention }} année(s) tenant compte d'une inflation de % |
{{ calculeData.totalRevenuLocatif | number:2 }} € |
| Plus-value latente | {{ calculeData.pluvalueLatente | number:2 }} % |
| Plus-value du bien après {{calculeData.dureeDetention}} année(s) | {{ calculeData.pluvalueBien | number:2 }} € |
| Total revenu locatif après {{ calculeData.dureeDetention }} année(s) | {{ calculeData.totalRevenuLocatif | number:2 }} € |
| Gain brut sur le prix de base après {{ calculeData.dureeDetention }} année(s) | +{{ calculeData.gainBrut | number:2 }} € |
Charges
| Durée du crédit | {{ calculeData.duree | number:2 }} ans |
| Taux | {{ calculeData.taux | number:2 }} % |
| Mensualité | {{ calculeData.mensualite | number:2 }} € |
| Total interêts après {{calculeData.dureeDetention}} année(s) | {{ calculeData.totalInteret | number:2 }} € |
| Total frais | {{ calculeData.frais | number:2 }} € |
| Total | {{ calculeData.InteretFrais | number:2 }} € |
Gain réel
Rendement sur actif
Cash flow
| Année | Coût | Revenu locatif | Gain |
|---|---|---|---|
| {{ $index }} | {{ ch.payment | number:2 }} € | {{ ch.revenuLocatif | number:2 }} € | {{ - ch.fondPropre | number:2 }} € |
Av. Louise 461 1050 Bruxelles - 02 648 01 20
Drève Richelle 96 1410 Waterloo - 02 354 29 39
Av. Prekelinden 83 1200 Woluwe-St-Lambert - 02 734 00 36