Suis-je éligible à une réduction des droits d’enregistrement ?
Lamormenil
PRIX : 295 000,00€
Type: Maison | Région: Wallonie | Commune: Manhay
Bienvenue dans ce havre de paix niché au cœur des Ardennes, à quelques kilomètres de la baraque fraiture et de la Roche en Ardennes. By the way vous présente cette maison de +/- 270 m2 sur une parcelle de 20 Ares avec un pré attenant de 20 Ares également. Cette propriété offre un beau potentiel après rénovation avec la possibilité d’aménager le grenier et la grange. La maison offre une surface de +/- 270 m2 avec un spacieux parking permettant d’y garer 3-4 voitures mais aussi un garage pouvant servir aussi d’atelier de +/- 50 m2. La maison se compose comme suit :
Au rez-de-chaussée, hall d’entrée desservant un bureau, une salle de bain avec bain et douche, un wc séparé, un salle à manger ouverte sur le séjour, une cuisine équipée séparée, une buanderie, une véranda avec une magnifique vue sur la nature sans vis à vis et un accès à la grange. A l’étage, le hall de nuit dessert 4 chambres et une salle de bain. Au 2e, un grenier mansardé à aménager. Techniques : Châssis en bois double vitrage, citerne à mazout de 2500L, boiler Bulex de 2017, PEB D et électricité non-conforme. La maison est libre à l'acte.
Greniers: 2
Surface totale: 421 m²
Jardin: oui
Chambres: 4
Salles de bain: 2
Garage: 1
Cave: 1
Bureau: 1
Grange: 1
Véranda: oui
Vidéo
Découvrez le bien en visualisant cette vidéo
VISITE VIRTUELLE
Vous voulez en voir plus ? Visitez le bien comme si vous y étiez à travers cette visite virtuelle
Localisation
Ce bien vous correspond ? Découvrez maintenant si sa localisation vous convient !
Commerces
Pharmacies
Restaurants
Boulangeries
Crèches
Parcs
Écoles
Universités
Déplacements
Plans intérieurs
Sous-sol
SURFACE TOTALE : 19.32 m² | SURFACE HABITABLE : 00.00 m² | PIÈCE(S) : 2
1x Couloir
1x Cave
Couloir
SURFACE : 5.32 m²
Cave
SURFACE : 13.56 m²
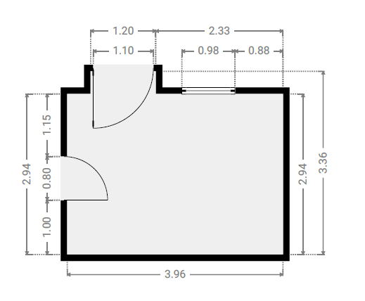
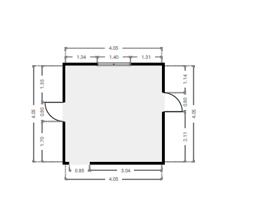
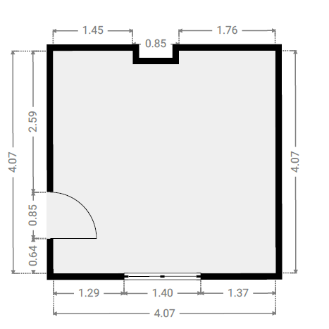
Rez-de-chaussée
SURFACE TOTALE : 248.95 m² | SURFACE HABITABLE : 189.87 m² | PIÈCE(S) : 12
1x Bureau
1x S.D.B
1x Hall
1x W.C
1x Salle à manger
1x Séjour
1x Cuisine
1x Buanderie
1x Véranda
1x Grange
1x Rangement
1x Garage
Bureau
SURFACE : 16.54 m²
S.D.B 1
SURFACE : 16.38 m²
Hall
SURFACE : 12.3 m²
W.C
SURFACE : 2.36 m²
Salle à manger
SURFACE : 16.25 m²
Séjour
SURFACE : 28.82 m²
Cuisine
SURFACE : 16.4 m²
Buanderie
SURFACE : 12.16 m²
Véranda
SURFACE : 20.32 m²
Grange
SURFACE : 38.3 m²
Rangement
SURFACE : 4.43 m²
Garage
SURFACE : 59.07 m²
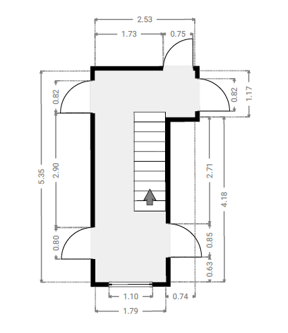
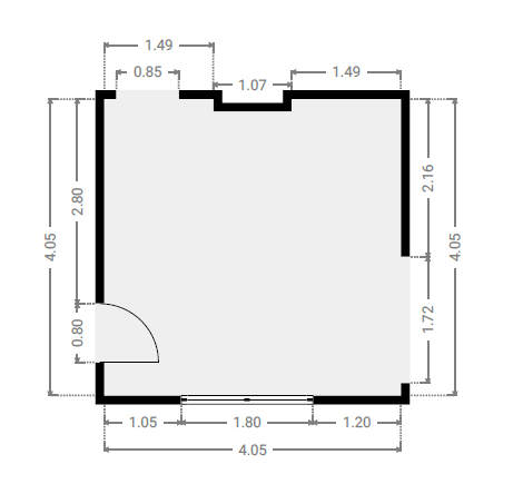
1er étage
SURFACE TOTALE : 83.57 m² | SURFACE HABITABLE : 83.57 m² | PIÈCE(S) : 6
1x Couloir
4x Chambre(s)
1x S.D.B
Couloir
SURFACE : 10.44 m²
Chambre 2
SURFACE : 16.45 m²
Chambre 3
SURFACE : 16.59 m²
S.D.B 2
SURFACE : 7.08 m²
Chambre 4
SURFACE : 13.51 m²
Chambre 1
SURFACE : 16.36 m²
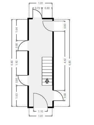
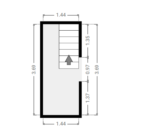
2e étage
SURFACE TOTALE : 68.83 m² | SURFACE HABITABLE : 68.83 m² | PIÈCE(S) : 3
2x Grenier(s)
1x Couloir
Grenier 1
SURFACE : 27.28 m²
Couloir
SURFACE : 12.22 m²
Grenier 2
SURFACE : 27.51 m²
RECHERCHE CADASTRALE
Vous souhaitez mieux connaître votre parcelle et connaître la surface dont vous jouirez en achetant ce bien, alors consulter le cadastre est nécessaire !
État des sols
La pollution du sol a un impact sur l'environnement et sur la santé, les risques d’inondation ont un impact sur votre qualité de vie… Consultez les données relatives à ce bien pour en avoir le cœur net !
ÉTAT DE LA POLLUTION DES SOLS
Aucune remarque particulière pour les parcelles A786g/A784a
Source : Cliquez-ici
Légende :
ZONE INONDABLE
Aucune remarque particulière pour les parcelles A786g/A784a
Source : Cliquez-ici
Légende :
Certificats
Informez-vous sur la performance énergétique de ce bien et assurez-vous que ses installations électriques sont bien aux normes !
PERFORMANCE ÉNERGÉTIQUE
Économe
Très énergivore
CERTIFICAT ÉLECTRIQUE
PROCES VERBAL D’EXAMEN DE CONFORMITE ET/OU DE VISITE DE CONTROLE D’UNE INSTALLATION ELECTRIQUE BASSE TENSION
La nouvelle installationNon conforme
Agent
visiteur
Olivier Dodet
Date
de certification
19/03/2024
Visite de contrôle
à effectuer avant le
19/03/2025
INDICATEURS SPÉCIFIQUES
| Besoins en chaleur du logement | ||||
| excessifts | élevés | moyens | faible | minimes |
| Performance des installations de chauffage | ||||
| médiocre | insuffisante | satisfaisante | bonne | excellente |
| Performance des installations d'eau chaude sanitaire | ||||
| médiocre | insuffisante | satisfaisante | bonne | excellente |
| Système de ventillation | ||||
| absent | très partiel | partiel | incomplet | complet |
DATA ROOM
Nous avons mis tous les documents importants dans la date room, n’hésitez pas à télécharger ce dont vous avez besoin !
Nous avons mis tous les documents importants dans la date room, n’hésitez pas à télécharger ce dont vous avez besoin !
Besoin de crédit
Maintenant que vous êtes sûrs d’avoir fait le bon choix, calculez la valeur totale de cette acquisition (valeur du bien et frais annexes) et estimez vos besoins en crédit !
Simulation de crédit
| Prix d'achat | € |
| Rénovation | € |
| Rénovation HTVA | {{ calculeData.renovationHTVA | number:2 }} € |
| TVA | {{ calculeData.tva | number:2 }} € |
| Fonds propres | € |
| Acompte dû (disponible au compromis de vente) | {{ calculeData.prix * 0.1 | number:2 }} € |
| Reste des liquidités (disponible à l'acte) | {{ calculeData.avance | number:2 }} € |
| Crédit pont | {{ calculeData.creditPont | number:2 }} € |
| Prix de vente de votre bien existant | € |
| Solde du crédit existant | € |
| Frais d'acte d'achat | {{ calculeData.droit + calculeData.fraisNotaire | number:2 }} € |
| Droits d'enregistrement | {{ calculeData.droit | number:2 }} € |
|
Abattement
Suis-je éligible à une réduction des droits d’enregistrement ? |
|
| Frais de notaire | {{ calculeData.fraisNotaire | number:2 }} € |
| Autres frais | {{ calculeData.inscription + calculeData.fraisDossier + calculeData.autreFrais | number:2 }} € |
| Frais liés à l'acte hypothécaire | {{ calculeData.inscription | number:2 }} € |
| Frais de dossier et expertise bancaire | {{ calculeData.fraisDossier | number:2 }} € |
| Autres frais | € |
| Montant du crédit | {{ calculeData.montantCredit | number:2 }} € | |
La présente simulation se base sur un taux d’intérêt du 18/04/2024. Ce calcul est indicatif et sujet à changement.
Choix du type de crédit
| Taux | Type | CAP | Mensualité | Mensualité Min | Mensualité Max | |
|---|---|---|---|---|---|---|
| {{ tx.banque }} {{ $index+1 }} | {{ tx.taux | number:2 }}% | {{ tx.type }} | -{{ tx.capNeg }}%/+{{ tx.capPos }}% | {{ tx.mens | number:2 }}€ | {{ tx.min | number:2 }}€ | {{ tx.max | number:2 }}€ |
| Taux | Type | CAP | Mensualité | Mensualité Min | Mensualité Max | |
|---|---|---|---|---|---|---|
| {{ tx.banque }} {{ $index+1 }} | {{ tx.taux | number:2 }}% | {{ tx.type }} | -{{ tx.capNeg }}%/+{{ tx.capPos }}% | {{ tx.mens | number:2 }}€ | {{ tx.min | number:2 }}€ | {{ tx.max | number:2 }}€ |
| Taux | Type | CAP | Mensualité | Mensualité Min | Mensualité Max | |
|---|---|---|---|---|---|---|
| {{ tx.banque }} {{ $index+1 }} | {{ tx.taux | number:2 }}% | {{ tx.type }} | -{{ tx.capNeg }}%/+{{ tx.capPos }}% | {{ tx.mens | number:2 }}€ | {{ tx.min | number:2 }}€ | {{ tx.max | number:2 }}€ |
Rentabilité
Cout total de l’acquisition
| Prix d'achat | {{ calculeData.prix | number:2 }} € |
| Rénovation | + {{ calculeData.prixTransRenovation | number:2 }} € |
| Frais | + {{ calculeData.frais | number:2 }} € |
| Coût total | + {{ calculeData.frais + calculeData.prixTransRenovation + calculeData.prix | number:2 }} € |
| Fonds propres + crédit pont | {{ calculeData.totalFP+calculeData.creditPont | number:2 }} € |
| Montant du crédit | {{ calculeData.montantCredit | number:2 }} € |
| Coût total | + {{ calculeData.creditPont + calculeData.totalFP + calculeData.montantCredit | number:2 }} € |
Rentabilité sur actifs
Durée de détention année(s)
Gain réel {{ calculeData.gainReel | number:0 }} €
Rendement sur actif {{ calculeData.rendementSurActif | number:2 }} %
Revenus
| Revenu locatif annuel Brut | € |
| Charge annuelle {{ calculeData.pourcentageCharge | number:2 }}% | {{ calculeData.chargeLocatifAnnuel | number:2 }} € |
| Précompte immobilier | {{ calculeData.precomteImmo | number:2 }} € |
| Autre charge annuelle | € |
| Revenu locatif annuel net | {{ calculeData.revenuLocatifAnnuelNet | number:2 }} € |
| Total revenu locatif après {{ calculeData.dureeDetention }} année(s) tenant compte d'une inflation de % |
{{ calculeData.totalRevenuLocatif | number:2 }} € |
| Plus-value latente | {{ calculeData.pluvalueLatente | number:2 }} % |
| Plus-value du bien après {{calculeData.dureeDetention}} année(s) | {{ calculeData.pluvalueBien | number:2 }} € |
| Total revenu locatif après {{ calculeData.dureeDetention }} année(s) | {{ calculeData.totalRevenuLocatif | number:2 }} € |
| Gain brut sur le prix de base après {{ calculeData.dureeDetention }} année(s) | +{{ calculeData.gainBrut | number:2 }} € |
Charges
| Durée du crédit | {{ calculeData.duree | number:2 }} ans |
| Taux | {{ calculeData.taux | number:2 }} % |
| Mensualité | {{ calculeData.mensualite | number:2 }} € |
| Total interêts après {{calculeData.dureeDetention}} année(s) | {{ calculeData.totalInteret | number:2 }} € |
| Total frais | {{ calculeData.frais | number:2 }} € |
| Total | {{ calculeData.InteretFrais | number:2 }} € |
Gain réel
Rendement sur actif
Cash flow
| Année | Coût | Revenu locatif | Gain |
|---|---|---|---|
| {{ $index }} | {{ ch.payment | number:2 }} € | {{ ch.revenuLocatif | number:2 }} € | {{ - ch.fondPropre | number:2 }} € |
Av. Louise 433 Louizalaan 1050 Bruxelles - Brussel
Drève Richelle, 96 - 1410 Waterloo