Suis-je éligible à une réduction des droits d’enregistrement ?
La roseraie
PRIX : 499 000,00 €
Type: Maison | Région: Bruxelles | Commune: Uccle
Située sur la commune d'Uccle, dans le quartier Calevoet, à proximité des transports en commun et des différentes commodités, By the Way vous présente cette maison COUP DE COEUR, entièrement rénovée en 2015 (isolation de la toiture et de la façade arrière, nouvelles corniches, nouveaux châssis et nouvelle chaudière au gaz Vaillant). Elle se compose comme suit : au bel-étage, hall d'entrée avec WC, lumineuse pièce de vie +/- 30m2 (volets en façade avant et façade arrière) avec cuisine ouverte super-équipée donnant accès à une terrasse +/- 9m2. Au 1er étage, deux chambres +/- 12m2 et une salle de bains avec WC. Au 2ème étage, une troisième chambre sous les combles +/- 14m2 et une salle de douche avec WC. Au rez-de-jardin, un emplacement de parking extérieur et un garage donnant accès à la cave/buanderie et au charmant jardin. PEB : D-. Électricité conforme jusqu'en 2040.
Surface totale: 139.74 m²
Jardin: 1
Chambres: 3
Salle de bain: 1
Salle de douche: 1
Terrasse: 1
Garage: 1
VISITE VIRTUELLE
Vous voulez en voir plus ? Visitez le bien comme si vous y étiez à travers cette visite virtuelle
Localisation
Ce bien vous correspond ? Découvrez maintenant si sa localisation vous convient !
Commerces
Pharmacies
Restaurants
Boulangeries
Crèches
Parcs
Écoles
Universités
Déplacements
Plans intérieurs
Sous-sol
SURFACE TOTALE : 44.9 m² | SURFACE HABITABLE : 37.24 m² | PIÈCE(S) : 3
1x Garage
1x Buanderie
1x Couloir
Garage
SURFACE : 23.28 m²
Buanderie
SURFACE : 7.82 m²
Couloir
SURFACE : 6.16 m²
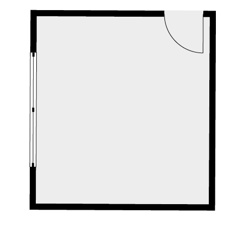
Rez-de-chaussée
SURFACE TOTALE : 52.9 m² | SURFACE HABITABLE : 45.6 m² | PIÈCE(S) : 4
1x Séjour/Salle à manger
1x Hall
1x Cuisine
1x W.C
1x Terrasse
Séjour/Salle à manger
SURFACE : 23.85 m²
Hall
SURFACE : 5.3 m²
Cuisine
SURFACE : 6.06 m²
W.C
SURFACE : 1.55 m²
Terrasse
SURFACE : 8.88 m²
1er étage
SURFACE TOTALE : 44.82 m² | SURFACE HABITABLE : 36.49 m² | PIÈCE(S) : 4
1x Couloir
2x Chambre(s)
1x S.D.B
Couloir
SURFACE : 7.68 m²
Chambre 2
SURFACE : 11.89 m²
Chambre 1
SURFACE : 11.94 m²
S.D.B
SURFACE : 5.01 m²
2e étage
SURFACE TOTALE : 26.45 m² | SURFACE HABITABLE : 20.41 m² | PIÈCE(S) : 3
1x Chambre 3
1x Couloir
1x S.D.D
Chambre 3
SURFACE : 14.27 m²
Couloir
SURFACE : 3.4 m²
S.D.D
SURFACE : 2.75 m²
RECHERCHE CADASTRALE
Vous souhaitez mieux connaître votre parcelle et connaître la surface dont vous jouirez en achetant ce bien, alors consulter le cadastre est nécessaire !
État des sols
La pollution du sol a un impact sur l'environnement et sur la santé, les risques d’inondation ont un impact sur votre qualité de vie… Consultez les données relatives à ce bien pour en avoir le cœur net !
ÉTAT DE LA POLLUTION DES SOLS
Aucune remarque particulière pour la parcelle G344l
Source : Cliquez-ici
Légende :
ZONE INONDABLE
La parcelle G344l est dans la zone d'Aléa faible inondation
Source : Cliquez-ici
Légende :
Certificats
Informez-vous sur la performance énergétique de ce bien et assurez-vous que ses installations électriques sont bien aux normes !
PERFORMANCE ÉNERGÉTIQUE
Économe
Très énergivore
CERTIFICAT ÉLECTRIQUE
PROCES VERBAL D’EXAMEN DE CONFORMITE ET/OU DE VISITE DE CONTROLE D’UNE INSTALLATION ELECTRIQUE BASSE TENSION
La nouvelle installationConforme
Agent
visiteur
Date
de certification
24/03/2016
Visite de contrôle
à effectuer avant le
24/03/2041
CERTIFICAT D’ÉTANCHÉITÉ DE LA CUVE À MAZOUT
PROCES VERBAL D’EXAMEN D’ÉTANCHÉITÉ ET/OU DE VISITE DE CONTROLE DE LA CUVE À MAZOUT
L'installation existanteÉtanche
Agent
visiteur
Hanssens Chris
Date
de certification
23/06/2015
Visite de contrôle
à effectuer avant le
DATA ROOM
Nous avons mis tous les documents importants dans la date room, n’hésitez pas à télécharger ce dont vous avez besoin !
Nous avons mis tous les documents importants dans la date room, n’hésitez pas à télécharger ce dont vous avez besoin !
Besoin de crédit
Maintenant que vous êtes sûrs d’avoir fait le bon choix, calculez la valeur totale de cette acquisition (valeur du bien et frais annexes) et estimez vos besoins en crédit !
Simulation de crédit
| Prix d'achat | € |
| Rénovation | € |
| Rénovation HTVA | {{ calculeData.renovationHTVA | number:2 }} € |
| TVA | {{ calculeData.tva | number:2 }} € |
| Fonds propres | € |
| Acompte dû (disponible au compromis de vente) | {{ calculeData.prix * 0.1 | number:2 }} € |
| Reste des liquidités (disponible à l'acte) | {{ calculeData.avance | number:2 }} € |
| Crédit pont | {{ calculeData.creditPont | number:2 }} € |
| Prix de vente de votre bien existant | € |
| Solde du crédit existant | € |
| Frais d'acte d'achat | {{ calculeData.droit + calculeData.fraisNotaire | number:2 }} € |
| Droits d'enregistrement | {{ calculeData.droit | number:2 }} € |
|
Abattement
Suis-je éligible à une réduction des droits d’enregistrement ? |
|
| Frais de notaire | {{ calculeData.fraisNotaire | number:2 }} € |
| Autres frais | {{ calculeData.inscription + calculeData.fraisDossier + calculeData.autreFrais | number:2 }} € |
| Frais liés à l'acte hypothécaire | {{ calculeData.inscription | number:2 }} € |
| Frais de dossier et expertise bancaire | {{ calculeData.fraisDossier | number:2 }} € |
| Autres frais | € |
| Montant du crédit | {{ calculeData.montantCredit | number:2 }} € | |
La présente simulation se base sur un taux d’intérêt du 07/08/2023. Ce calcul est indicatif et sujet à changement.
Choix du type de crédit
| Taux | Type | CAP | Mensualité | Mensualité Min | Mensualité Max | |
|---|---|---|---|---|---|---|
| {{ tx.banque }} {{ $index+1 }} | {{ tx.taux | number:2 }}% | {{ tx.type }} | -{{ tx.capNeg }}%/+{{ tx.capPos }}% | {{ tx.mens | number:2 }}€ | {{ tx.min | number:2 }}€ | {{ tx.max | number:2 }}€ |
| Taux | Type | CAP | Mensualité | Mensualité Min | Mensualité Max | |
|---|---|---|---|---|---|---|
| {{ tx.banque }} {{ $index+1 }} | {{ tx.taux | number:2 }}% | {{ tx.type }} | -{{ tx.capNeg }}%/+{{ tx.capPos }}% | {{ tx.mens | number:2 }}€ | {{ tx.min | number:2 }}€ | {{ tx.max | number:2 }}€ |
| Taux | Type | CAP | Mensualité | Mensualité Min | Mensualité Max | |
|---|---|---|---|---|---|---|
| {{ tx.banque }} {{ $index+1 }} | {{ tx.taux | number:2 }}% | {{ tx.type }} | -{{ tx.capNeg }}%/+{{ tx.capPos }}% | {{ tx.mens | number:2 }}€ | {{ tx.min | number:2 }}€ | {{ tx.max | number:2 }}€ |
Rentabilité
Cout total de l’acquisition
| Prix d'achat | {{ calculeData.prix | number:2 }} € |
| Rénovation | + {{ calculeData.prixTransRenovation | number:2 }} € |
| Frais | + {{ calculeData.frais | number:2 }} € |
| Coût total | + {{ calculeData.frais + calculeData.prixTransRenovation + calculeData.prix | number:2 }} € |
| Fonds propres + crédit pont | {{ calculeData.totalFP+calculeData.creditPont | number:2 }} € |
| Montant du crédit | {{ calculeData.montantCredit | number:2 }} € |
| Coût total | + {{ calculeData.creditPont + calculeData.totalFP + calculeData.montantCredit | number:2 }} € |
Rentabilité sur actifs
Durée de détention année(s)
Gain réel {{ calculeData.gainReel | number:0 }} €
Rendement sur actif {{ calculeData.rendementSurActif | number:2 }} %
Revenus
| Revenu locatif annuel Brut | € |
| Charge annuelle {{ calculeData.pourcentageCharge | number:2 }}% | {{ calculeData.chargeLocatifAnnuel | number:2 }} € |
| Précompte immobilier | {{ calculeData.precomteImmo | number:2 }} € |
| Autre charge annuelle | € |
| Revenu locatif annuel net | {{ calculeData.revenuLocatifAnnuelNet | number:2 }} € |
| Total revenu locatif après {{ calculeData.dureeDetention }} année(s) tenant compte d'une inflation de % |
{{ calculeData.totalRevenuLocatif | number:2 }} € |
| Plus-value latente | {{ calculeData.pluvalueLatente | number:2 }} % |
| Plus-value du bien après {{calculeData.dureeDetention}} année(s) | {{ calculeData.pluvalueBien | number:2 }} € |
| Total revenu locatif après {{ calculeData.dureeDetention }} année(s) | {{ calculeData.totalRevenuLocatif | number:2 }} € |
| Gain brut sur le prix de base après {{ calculeData.dureeDetention }} année(s) | +{{ calculeData.gainBrut | number:2 }} € |
Charges
| Durée du crédit | {{ calculeData.duree | number:2 }} ans |
| Taux | {{ calculeData.taux | number:2 }} % |
| Mensualité | {{ calculeData.mensualite | number:2 }} € |
| Total interêts après {{calculeData.dureeDetention}} année(s) | {{ calculeData.totalInteret | number:2 }} € |
| Total frais | {{ calculeData.frais | number:2 }} € |
| Total | {{ calculeData.InteretFrais | number:2 }} € |
Gain réel
Rendement sur actif
Cash flow
| Année | Coût | Revenu locatif | Gain |
|---|---|---|---|
| {{ $index }} | {{ ch.payment | number:2 }} € | {{ ch.revenuLocatif | number:2 }} € | {{ - ch.fondPropre | number:2 }} € |
Av. Louise 433 Louizalaan 1050 Bruxelles - Brussel
Drève Richelle, 96 - 1410 Waterloo