Kom ik in aanmerking voor belastingvermindering ?
Kroondallaan 33
PRIJS : 695 000,00 €
Type: Maison | Regio: Flandre | Gemeente: Dworp
Totale Oppervlakte: 320 M²
Woonoppervlak: 247 m²
Slaapkamers: 4
badkamer: 1
Doucheruimte 1
Terras :2
Garage: 2 auto's
Zolder: 1
Kelder: 1
Kantoor: 1
Tuin: ja
Externe : Prive voor meerdere auto's
VIDEO PRESENTATIE
Découvrez le bien en visualisant cette vidéo
VIRTUEEL BEZOEK
Vous voulez en voir plus ? Visitez le bien comme si vous y étiez à travers cette visite virtuelle
OMGEVING
Ce bien vous correspond ? Découvrez maintenant si sa localisation vous convient !
Supermarkt
Apotheek
Restaurant
Bakkerij
Kinderdagverblijf
Park
Scholen
Universiteiten
Verplaatsingen
INTERIEUR PLANNEN
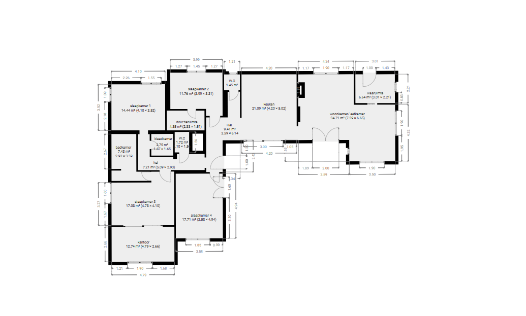
GELIJKVLOERS
TOTALE OPPERVLAKTE : 176.7 m² | WOONRUIMTE :176.7 m² | kAMERS : 15
1x woonkamer/ eetkamer
1x wasruimte
1x keuken
1x Hal
2x W.C(s)
1x doucheruimte
1x hal
1x kleedkamer
1x badkamer
1x kantoor
3x slaapkamer
woonkamer/ eetkame
OPPERVLAK : 34.71 m²
wasruimte
OPPERVLAK : 6.65 m²
keuken
OPPERVLAK : 21.09 m²
Hal
OPPERVLAK : 9.42 m²
W.C
OPPERVLAK : 1.46 m²
slaapkamer 2
OPPERVLAK : 11.76 m²
doucheruimte
OPPERVLAK : 4.35 m²
W.C
OPPERVLAK : 1.72 m²
hal
OPPERVLAK : 7.21 m²
kleedkamer
OPPERVLAK : 2.75 m²
badkamer
OPPERVLAK : 7.43 m²
slaapkamer 3
OPPERVLAK : 17.08 m²
kantoor
OPPERVLAK : 12.74 m²
slaapkamer 4
OPPERVLAK : 17.71 m²
slaapkamer 1
OPPERVLAK : 14.44 m²
KADASTRAAL ZOEKEN
Vous souhaitez mieux connaître votre parcelle et connaître la surface dont vous jouirez en achetant ce bien, alors consulter le cadastre est nécessaire !
STAAT VAN BODEMVERONTREINIGING
La pollution du sol a un impact sur l'environnement et sur la santé, les risques d’inondation ont un impact sur votre qualité de vie… Consultez les données relatives à ce bien pour en avoir le cœur net !
STAAT VAN BODEMVERONTREINIGING
Geen bijzondere opmerkingen voor perceelE325r
Source : Cliquez-ici
Légende :
Overstromingsgebied
Geen overstroming gemodelleerd voor perceel E325r
Source : Cliquez-ici
Légende :
Certificats
Informez-vous sur la performance énergétique de ce bien et assurez-vous que ses installations électriques sont bien aux normes !
ENERGIEPRESTATIES
Zeer zuinig
Zeer energieverslindennd
ELEKTRISCH CERTIFICAAT
VERSLAG VAN HET CONFORMITEITSONDERZOEK EN/OF DE INSPECTIE VAN EEN ELEKTRISCHE LAAGSPANNINGSINSTALLATIE
De bestaande installatieNiet conform
Bezoekende
agent
kim Dedecker
Datum
26/01/2024
Volgend
controlebezoek
26/1/2025
DATA ROOM
Nous avons mis tous les documents importants dans la date room, n’hésitez pas à Downloaden ce dont vous avez besoin !
Nous avons mis tous les documents importants dans la date room, n’hésitez pas à télécharger ce dont vous avez besoin !
BEREKEN UW KREDIETBEHOEFTE
Maintenant que vous êtes sûrs d’avoir fait le bon choix, calculez la valeur totale de cette acquisition (valeur du bien et frais annexes) et estimez vos besoins en crédit !
Kredietsimulatie
| Aankoopprijs | € |
| Renovatie | € |
| Renovatie excl. btw | {{ calculeData.renovationHTVA | number:2 }} € |
| BTW | {{ calculeData.tva | number:2 }} € |
| Eigen fondsen | € |
| Te betalen waarborgsom (beschikbaar bij de verkoopovereenkomst) | {{ calculeData.prix * 0.1 | number:2 }} € |
| Resterende liquide middelen (besschikbaar op de verkoop) | {{ calculeData.avance | number:2 }} € |
| Overbruggingskrediet | {{ calculeData.creditPont | number:2 }} € |
| Aankooprijs | € |
| Bestaand tegoed | € |
| Aankooprechten | {{ calculeData.droit + calculeData.fraisNotaire | number:2 }} € |
| Verkooprechten | {{ calculeData.droit | number:2 }} € |
|
Vermindering
Kom ik in aanmerking voor vermindering van het inschrijfgeld? |
|
| Notariskosten | {{ calculeData.fraisNotaire | number:2 }} € |
| Andere kosten | {{ calculeData.inscription + calculeData.fraisDossier + calculeData.autreFrais | number:2 }} € |
| Kosten in verband met de hypotheekakte | {{ calculeData.inscription | number:2 }} € |
| Administratiekosten en bankexpertise | {{ calculeData.fraisDossier | number:2 }} € |
| Andere kosten | € |
| ONTLEEND BEDRAG | {{ calculeData.montantCredit | number:2 }} € | |
Deze simulatie is gebaseerd op een rentevoet van 22/04/2024, die indicatief is en onderhevig aan verandering
Keuze soort krediet
| Tarief | Type | Pet | Maandelijkse betaling | MMaandelijkse betaling Min | Maandelijkse betaling Max | |
|---|---|---|---|---|---|---|
| {{ tx.banque }} | {{ tx.taux | number:2 }}% | {{ tx.type }} | -{{ tx.capNeg }}%/+{{ tx.capPos }}% | {{ tx.mens | number:2 }}€ | {{ tx.min | number:2 }}€ - | {{ tx.max | number:2 }}€ - |
| Tarief | Type | Pet | Maandelijkse betaling | Maandelijkse betaling Min | Maandelijkse betaling Max | |
|---|---|---|---|---|---|---|
| {{ tx.banque }} | {{ tx.taux | number:2 }}% | {{ tx.type }} | -{{ tx.capNeg }}%/+{{ tx.capPos }}% | {{ tx.mens | number:2 }}€ | {{ tx.min | number:2 }}€ - | {{ tx.max | number:2 }}€ - |
| Tarief | Type | Pet | Maandelijkse betaling | Maandelijkse betaling Min | Maandelijkse betaling Max | |
|---|---|---|---|---|---|---|
| {{ tx.banque }} | {{ tx.taux | number:2 }}% | {{ tx.type }} | -{{ tx.capNeg }}%/+{{ tx.capPos }}% | {{ tx.mens | number:2 }}€ | {{ tx.min | number:2 }}€ - | {{ tx.max | number:2 }}€ - |
RENTABILITEIT
Cout total de l’acquisition
| Aankoopprijs | {{ calculeData.prix | number:2 }} € |
| Renovatie | + {{ calculeData.prixTransRenovation | number:2 }} € |
| Kosten | + {{ calculeData.frais | number:2 }} € |
| Totale kostprijs | + {{ calculeData.frais + calculeData.prixTransRenovation + calculeData.prix | number:2 }} € |
| Eigen middelen + overbruggingskrediet | {{ calculeData.totalFP+calculeData.creditPont | number:2 }} € |
| Ontleend bedrag | {{ calculeData.montantCredit | number:2 }} € |
| Totale kostprijs | + {{ calculeData.creditPont + calculeData.totalFP + calculeData.montantCredit | number:2 }} € |
Rendement op activa
Duur van detentie jaar (jaren)
WERKELIJKE WINST {{ calculeData.gainReel | number:0 }} €
RENDEMENT OP ACTIVA {{ calculeData.rendementSurActif | number:2 }} %
Omzet
| Jaarlijkse bruto huurinkomsten | € |
| Jaarlijkse lasten {{ calculeData.pourcentageCharge | number:2 }}% | {{ calculeData.chargeLocatifAnnuel | number:2 }} € |
| Onroerend goed belasting | {{ calculeData.precomteImmo | number:2 }} € |
| Andere jaarlijkse lasten | € |
| Jaarlijkse netto huurinkomsten | {{ calculeData.revenuLocatifAnnuelNet | number:2 }} € |
| Totale huurinkomsten na {{ calculeData.dureeDetention }} jaar rekening houdend met een inflatie van % | {{ calculeData.totalRevenuLocatif | number:2 }} € |
| Niet-gerealiseerde meerwaarde | {{ calculeData.pluvalueLatente | number:2 }} % |
| Meerwaarde van het pand na {{calculeData.dureeDetention}} jaar | {{ calculeData.pluvalueBien | number:2 }} € |
| Totale huurinkomsten na {{ calculeData.dureeDetention }} jaar | {{ calculeData.totalRevenuLocatif | number:2 }} € |
| Bruto winst op de basisprijs na {{ calculeData.dureeDetention }} jaar | +{{ calculeData.gainBrut | number:2 }} € |
Uitgaven
| Looptijd | {{ calculeData.duree | number:2 }} jaar |
| Tarief | {{ calculeData.taux | number:2 }} % |
| Maandlast | {{ calculeData.mensualite | number:2 }} € |
| Totale intrestlast na {{calculeData.dureeDetention}} jaar | {{ calculeData.totalInteret | number:2 }} € |
| Totale kosten | {{ calculeData.frais | number:2 }} € |
| Totaal | {{ calculeData.InteretFrais | number:2 }} € |
Winstrol
Rendement op activa
Cash flow
| Jaar | Kosten | Huurinkomsten | Verdienen |
|---|---|---|---|
| {{ $index }} | {{ ch.payment | number:2 }} € | {{ ch.revenuLocatif | number:2 }} € | {{ - ch.fondPropre | number:2 }} € |
Av. Louise 433 1050 Bruxelles - 02 648 01 20
Drève Richelle 96 1410 Waterloo - 02 354 29 39
Av. Prekelinden 83 1200 Woluwe-St-Lambert - 02 734 00 36