Suis-je éligible à une réduction des droits d’enregistrement ?
Korenbeek
PRIJS : 408 759 €
Type: Maison | Regio: Bruxelles | Gemeente: Molenbeek-Saint-Jean
Ruime en instapklare woning van 185m² in een groene zone van Molenbeek op de grens met Berchem en Dilbeek. Oorspronkelijk met 5 slaapkamers en momenteel verdeeld in 2 appartementen (Kangoeroewoning). Een duplex met een keuken, douchekamer met toilet, woonkamer, eetkamer en toegang tot de tuin van 150m² op het gelijkvloers en 2 slaapkamers op de 1ste verdieping. Duplex 2e en 3e verdieping: woonkamer, keuken, doucheruimte met toilet, slaapkamer en badkamer. Zeer goed onderhouden woning. Elektriciteit is conform tot 2041. Dak is geïsoleerd.
Woonoppervlak: 189.48 m²
Slaapkamers: 5
badkamer: 1
Doucheruimte 2
Tuin: Oui
VIDEO PRESENTATIE
Découvrez le bien en visualisant cette vidéo
VIRTUEEL BEZOEK
Vous voulez en voir plus ? Visitez le bien comme si vous y étiez à travers cette visite virtuelle
OMGEVING
Ce bien vous correspond ? Découvrez maintenant si sa localisation vous convient !
Supermarkt
Apotheek
Restaurant
Bakkerij
Kinderdagverblijf
Park
Scholen
Universiteiten
Verplaatsingen
INTERIEUR PLANNEN
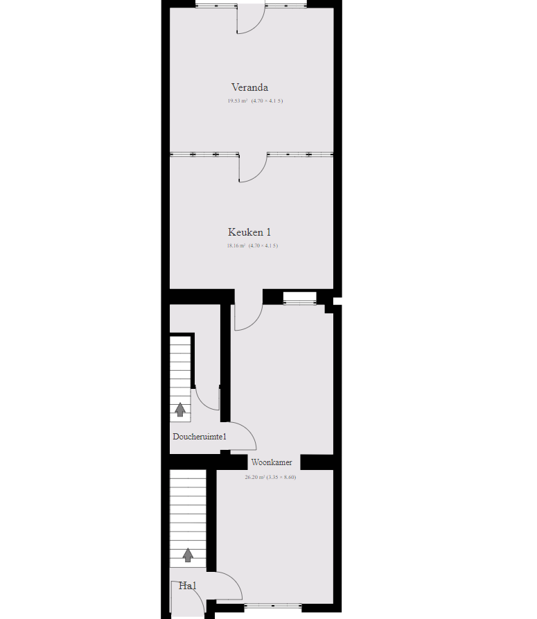
Begane grond
TOTALE OPPERVLAKTE : 74.31 m² | WOONRUIMTE : 92.08 m² | KAMERS : 6
1x Woonkamer
1x Keuken 1
1x Doucheruimte 1
1x Ingang
1x Véranda
Woonkamer
OPPERVLAKTE : 26.2 m²
Keuken 1
OPPERVLAKTE : 18.16 m²
SURFACE : 3.75 m²
Doucheruimte 1
OPPERVLAKTE : 2.25 m²
Ingang
OPPERVLAKTE : 4.46 m²
Veranda
OPPERVLAKTE : 19.53 m²
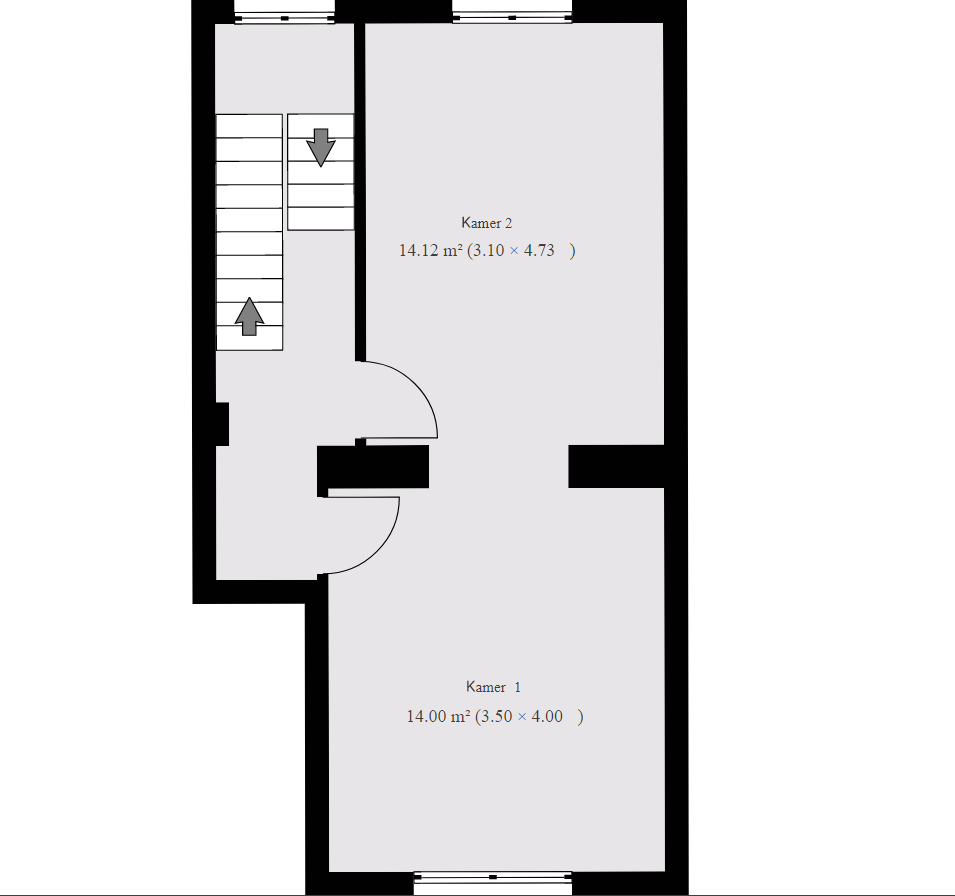
1e verdieping
TOTALE OPPERVLAKTE : 35.88 m² | WOONRUIMT : 44.75 m² | KAMERS : 3
2x Slaapkamer
Slaapkamer 1
OPPERVLAKTE : 14 m²
SURFACE : 7.78 m²
Slaapkamer 2
OPPERVLAKTE : 14.12 m²
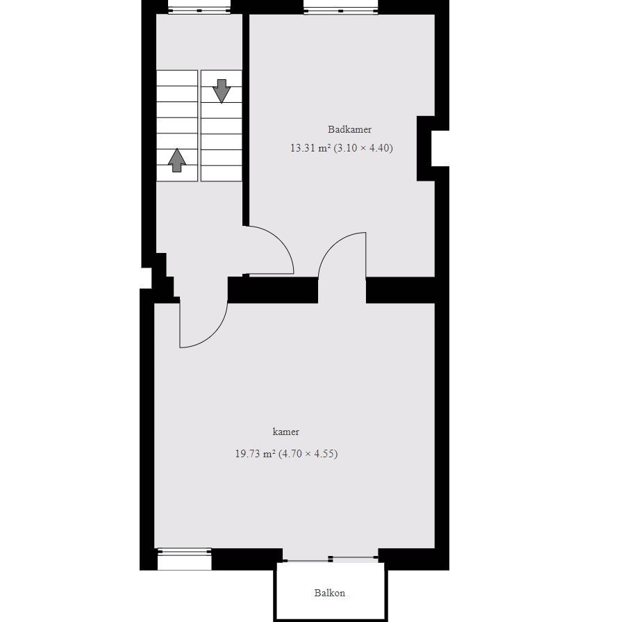
2e verdieping
TOTALE OPPERVLAKTE : 39.63 m² | WOONRUIMTE : 48.99 m² | KAMERS : 3
1x Slaapkamer 3
1x Badkamer
1x Balkon
Slaapkamer 3
OPPERVLAKTE : 19.73 m²
SURFACE : 6.6 m²
Badkamer
OPPERVLAKTE: 13.31 m²
Balkon
OPPERVLAKTE : 1.71 m²
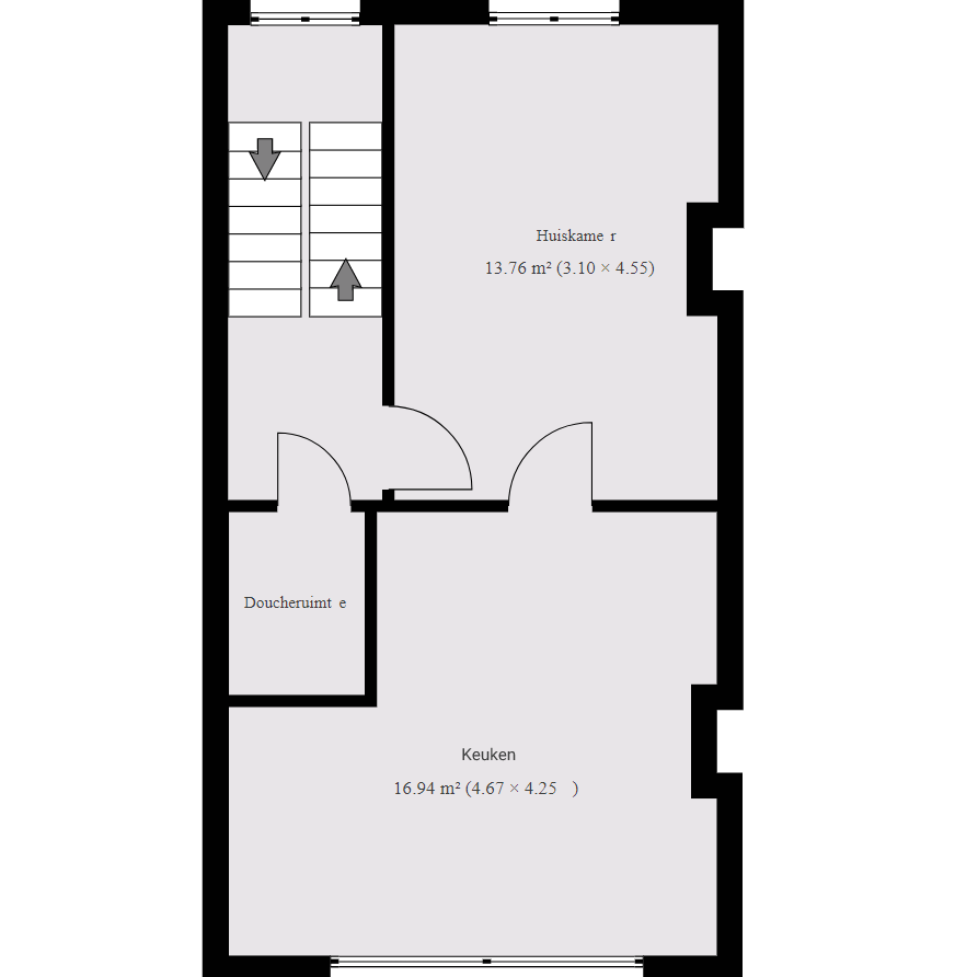
3e verdieping
TOTALE OPPERVLAKTE : 39.67 m² | WOONRUIMTE : 48.48 m² | KAMERS : 4
1x Keuken 2
1x Woonkamer
1x Doucheruimte 2
Keuken 2
OPPERVLAKTE : 16.94 m²
SURFACE : 6.71 m²
Woonkamer
OPPERVLAKTE : 13.76 m²
Doucheruimte 2
OPPERVLAKTE : 2.27 m²
KADASTRAAL ZOEKEN
Vous souhaitez mieux connaître votre parcelle et connaître la surface dont vous jouirez en achetant ce bien, alors consulter le cadastre est nécessaire !
Oppervlak : 257.99 m²
Verhaallijn : C160y2
CERTIFICATEN
Informez-vous sur la performance énergétique de ce bien et assurez-vous que ses installations électriques sont bien aux normes !
ENERGIEPRESTATIES
Zeer zuinig
Zeer energieverslindennd
ELEKTRISCH CERTIFICAAT
VERSLAG VAN HET CONFORMITEITSONDERZOEK EN/OF DE INSPECTIE VAN EEN ELEKTRISCHE LAAGSPANNINGSINSTALLATIE
De bestaande installatieConform
Bezoekende
agent
FREDERIC JEANNON
Datum
11/02/2016
Volgend
controlebezoek
11/02/2041
Audit technique
Door een nauwkeurig budget te verstrekken voor de transformaties en/of reparaties die aan dit eigendom moeten worden uitgevoerd, stelt de expertise van een neutrale en onafhankelijke architect u in staat om de waarde van dit eigendom beter te beoordelen!
ALGEMENE SCORE TOEGEKEND DOOR DE AUDITOR *
Algemene opmerkingen en adviezen van de inspecteur :
In de eerste plaats vereist het gebouw de isolatie van het verwarmde volume, d.w.z. voornamelijk de voor- en achtergevels, het schuine dak en het platte dak van de keuken.
De isolatiediktes, bepaald door berekening, moeten voldoen aan een minimale prestatie van de muren.
De hellingen van het dak zijn geïsoleerd, maar de dikte van de thermische isolatie kon niet worden vastgesteld, Er moet een aanvullende laag worden aangebracht. Als de zolder niet als woonkamer wordt gebruikt, is het mogelijk om een steenwol onder de huidige isolatie of op de zoldervloer te plaatsen, of een vals plafond op de benedenverdieping te maken inclusief deze isolatie, of de zoldervloer te demonteren om isolatie te hebben.
Om de straatgevel te isoleren, zal het nodig zijn om aan de binnenkant van de muur te werken door een halve scheidingswand te bouwen met steenwolisolatie.
Voor de achtergevel zou isolatie buiten de muur meer geschikt zijn. EPS-isolatie wordt mechanisch verlijmd en aan de muur bevestigd en er wordt een waterdichte coating op het oppervlak aangebracht.
De geplaatste frames zijn van goede kwaliteit en hebben over het algemeen acceptabele thermische prestaties op basis van de onderzochte illustratieve facturen.
Ventilatie moet worden verbeterd om muffe lucht en vocht uit kamers te verwijderen. De lucht zal gezonder zijn en het leven comfortabeler.
Het doel van de eisen is om al het energieverbruik te beperken om te streven naar een verbruik van ongeveer 100 kWh per m2 per jaar, overeenkomend met een energieklasse "C +"". In dit geval is dit niet moeilijk te realiseren vanwege de kleinschaligheid van de benodigde interventies. Om eigenaars aan te moedigen deze werken uit te voeren, zijn aantrekkelijke premies en leningen beschikbaar via het RENOLUTION-platform dat door het Brussels Hoofdstedelijk Gewest is opgezet.
Algemeen advies op het gebied van energieprestaties van gebouwen :
De buurt is rustig, luchtig, schoon en licht.
Het huis was ingericht met de wens om de habitat het comfort van het leven te geven dat een gezin van vandaag ambieert. Hoewel er ruimte is voor verbetering, zijn de technieken schoon en functioneel. De muren zijn gezond en goed afgewerkt. Het dak is solide en geïsoleerd. De buitendeuren en ramen zijn van goede kwaliteit. De veranda is erg handig voor een groot terras en een tuin van aanzienlijke omvang. De woning kan, met wat kosten voor isolatie en ventilatie, een goede energieprestatie bieden.
Opmerkingen
De conclusie en het gegeven advies zijn het resultaat van een onafhankelijke inspectie, uitgevoerd door een ervaren architect erkend door ImmoPass.
De budgetramingen in dit rapport worden louter ter informatie gegeven en vormen geen schatting. We raden aan om voor alle of een deel van het uit te voeren werk een bestek op te stellen en de ontvangen offertes te analyseren. De schattingen zijn exclusief belasting.
De inspectie werd op een niet-destructieve manier uitgevoerd, alleen visueel. Dit rapport kan daarom de totale afwezigheid van verborgen technische gebreken niet garanderen.
83 %
Overstromingsgebied, akoestische zone, sectorplan, stedenbouwkundige vergunning ...
40 %
Energiecertificering, conformiteit en elektrisch, olietank, vloer, ...
95 %
Beveiliging, inrichting, buitenconstructies, groenonderhoud, ...
100 %
Gegeneraliseerde vochtigheid, aanwezigheid van asbest, droogrot, termieten ...
83 %
Dak, buitenmuren, kozijnen en deuren, hemelwaterafvoer, ...
92 %
Structurele defecten, plaatselijke vochtigheid, sanitaire voorzieningen, werkende staat ...
100 %
Hallen en trappen, kelders, zolder en zolder, technische lokalen, ...
75 %
Verwarmingssysteem, sanitair warm water, elektriciteit, technisch onderhoud, ...
Voor dit gebouw heeft stedenbouwkundige vergunning PU-28489 op 23 februari 1962 afgegeven met betrekking tot de bouw van dakkapellen (snuifdozen). Als het gebouw sinds die datum is gewijzigd met betrekking tot gevels, stabiliteit of gebruik, of vanwege een wijziging die onderhevig is aan regelgeving, is het belangrijk dat de huidige situatie van het gebouw wordt erkend en goedgekeurd door de afdeling stedenbouw. Als dat zo is, moet er een vergunning worden ingediend. Tenzij het tegendeel wordt bewezen, wordt vermoed dat het volume van de keuken en de veranda niet in orde zijn met de stedenbouw. Er wordt ook opgemerkt dat het gebouw wordt beschouwd als een vrijstaande woning.
Het EPB-certificaat uitgegeven op 10 oktober 2015 geeft de bouwklasse "D-"" met een verbruik van 204 kWh EP/m2.jaar. Dit certificaat beveelt aan om de energieprestatie van het gebouw te verbeteren, samengevat in drie opmerkingen: 1. Installeer een ventilatiesysteem voor gecontroleerde ventilatie van de woning. 2. Isoleer buitenmuren. 3. Installeer extra isolatie in het schuine dak.
Het rapport concludeert elektrische conformiteit. Wel noemt hij het ontbreken van een schoon circuit voor de wasmachine en droger.
De opvang van water van het terras is afwezig. De voet van muren wordt niet beschermd door een plint of basis.
De keuken en veranda zijn bedekt met een plat dak. De ruimtes zijn van nature goed verlicht.
Het juiste bestaan van een tuinhuisje moet worden geformaliseerd door een eenvoudig plan met de gemeentelijke stadsplanning.
De aanwezigheid van asbest werd niet gevonden. Voor nauwkeurige controle- en hanteringsadviezen wordt een asbestinventarisatie uitgevoerd door een erkende instantie.
Er werden geen loden leidingen waargenomen.
Muren en scheidingswanden zijn meestal zonder duidelijke problemen.
In de woonkamer op de bovenste verdieping worden enkele verfdefecten waargenomen op een scheidingswand.
Na verloop van tijd zijn de steunspleten niet meer recht, maar ze doen hun werk goed.
De zinkelementen konden niet worden waargenomen, maar er werd geen significante aanwijzing voor vocht op zolder waargenomen.
1. Aan de voorzijde neemt een comfortabele zinken regenpijp het water van de kroonlijst en strekt zich uit door een leiding die in het trottoir is gestoken naar de weg. 2. Aan de achterkant wordt een niet-geïdentificeerd deel van het water dat van de daken wordt opgevangen (dak van de veranda?) direct op een middenberm van de tuin geleegd. Dit water moet door een bezoekkamer worden opgevangen en naar het riool worden gebracht. 3. Leidingen die horizontaal langs het platte dak van de keuken lopen (en afkomstig zijn van het schuine dak) moeten zorgvuldig worden genest en worden bevestigd in overeenstemming met goede technische praktijken.
De beglazing van toegankelijke deuren en ramen moet voorzien zijn van veiligheidsruiten.
Deuren en ramen die van buitenaf toegankelijk zijn, moeten worden voorzien van veiligheidsruiten.
Sommige kleine, verspreide scheuren zijn soms merkbaar, maar vormen geen risico en kunnen gemakkelijk worden gecorrigeerd.
De kamers zijn niet uitgerust met detectoren. Deze apparaten, goedkoop, moeten worden ingesteld.
Het verbeteren van de ventilatie van de woonkamer, de centrale kamer, wordt aanbevolen.
Ventilatie is een technisch aspect waar onvoldoende rekening mee wordt gehouden. Kamers en voornamelijk toiletten en badkamers (natte ruimtes) moeten anders worden geventileerd dan door een raam te openen. De woonkamers hebben de toevoer van frisse lucht nodig en de terugkeer van lucht gebeurt, via de sanitaire voorzieningen, naar buiten. Open ventilatie op zolder is niet conform. Instelbare natuurlijke ventilatie, d.w.z. zonder motorisering, is mogelijk. Gemotoriseerde ventilatie zal echter een efficiëntere ventilatie van het pand mogelijk maken. Er wordt verwezen naar de gegevens in het EPB-attest.
Er wordt verwezen naar de toelichting in punt 5.1.9. en de gegevens vermeld in het EPB-certificaat met betrekking tot ventilatie.
De ketel is ondermaats en moet een capaciteit hebben van 50 L per persoon die in het gebouw woont.
Fotovoltaïsche panelen zouden nuttig worden geplaatst op de zuidelijke helling van het dak (straatzijde).
DATA ROOM
Nous avons mis tous les documents importants dans la date room, n’hésitez pas à Downloaden ce dont vous avez besoin !
Nous avons mis tous les documents importants dans la date room, n’hésitez pas à télécharger ce dont vous avez besoin !
BEREKEN UW KREDIETBEHOEFTE
Maintenant que vous êtes sûrs d’avoir fait le bon choix, calculez la valeur totale de cette acquisition (valeur du bien et frais annexes) et estimez vos besoins en crédit !
Kredietsimulatie
| Aankoopprijs | € |
| Renovatie | € |
| Renovatie excl. btw | {{ calculeData.renovationHTVA | number:2 }} € |
| BTW | {{ calculeData.tva | number:2 }} € |
| Eigen fondsen | € |
| Te betalen waarborgsom (beschikbaar bij de verkoopovereenkomst) | {{ calculeData.prix * 0.1 | number:2 }} € |
| Resterende liquide middelen (besschikbaar op de verkoop) | {{ calculeData.avance | number:2 }} € |
| Overbruggingskrediet | {{ calculeData.creditPont | number:2 }} € |
| Aankooprijs | € |
| Bestaand tegoed | € |
| Aankooprechten | {{ calculeData.droit + calculeData.fraisNotaire | number:2 }} € |
| Verkooprechten | {{ calculeData.droit | number:2 }} € |
|
Vermindering
Kom ik in aanmerking voor vermindering van het inschrijfgeld? |
|
| Notariskosten | {{ calculeData.fraisNotaire | number:2 }} € |
| Andere kosten | {{ calculeData.inscription + calculeData.fraisDossier + calculeData.autreFrais | number:2 }} € |
| Kosten in verband met de hypotheekakte | {{ calculeData.inscription | number:2 }} € |
| Administratiekosten en bankexpertise | {{ calculeData.fraisDossier | number:2 }} € |
| Andere kosten | € |
| ONTLEEND BEDRAG | {{ calculeData.montantCredit | number:2 }} € | |
Keuze soort krediet
| Tarief | Type | Pet | Maandelijkse betaling | MMaandelijkse betaling Min | Maandelijkse betaling Max | |
|---|---|---|---|---|---|---|
| {{ tx.banque }} | {{ tx.taux | number:2 }}% | {{ tx.type }} | -{{ tx.capNeg }}%/+{{ tx.capPos }}% | {{ tx.mens | number:2 }}€ | {{ tx.min | number:2 }}€ - | {{ tx.max | number:2 }}€ - |
| Tarief | Type | Pet | Maandelijkse betaling | Maandelijkse betaling Min | Maandelijkse betaling Max | |
|---|---|---|---|---|---|---|
| {{ tx.banque }} | {{ tx.taux | number:2 }}% | {{ tx.type }} | -{{ tx.capNeg }}%/+{{ tx.capPos }}% | {{ tx.mens | number:2 }}€ | {{ tx.min | number:2 }}€ - | {{ tx.max | number:2 }}€ - |
| Tarief | Type | Pet | Maandelijkse betaling | Maandelijkse betaling Min | Maandelijkse betaling Max | |
|---|---|---|---|---|---|---|
| {{ tx.banque }} | {{ tx.taux | number:2 }}% | {{ tx.type }} | -{{ tx.capNeg }}%/+{{ tx.capPos }}% | {{ tx.mens | number:2 }}€ | {{ tx.min | number:2 }}€ - | {{ tx.max | number:2 }}€ - |
RENTABILITEIT
Cout total de l’acquisition
| Aankoopprijs | {{ calculeData.prix | number:2 }} € |
| Renovatie | + {{ calculeData.prixTransRenovation | number:2 }} € |
| Kosten | + {{ calculeData.frais | number:2 }} € |
| Totale kostprijs | + {{ calculeData.frais + calculeData.prixTransRenovation + calculeData.prix | number:2 }} € |
| Eigen middelen + overbruggingskrediet | {{ calculeData.totalFP+calculeData.creditPont | number:2 }} € |
| Ontleend bedrag | {{ calculeData.montantCredit | number:2 }} € |
| Totale kostprijs | + {{ calculeData.creditPont + calculeData.totalFP + calculeData.montantCredit | number:2 }} € |
Rendement op activa
Duur van detentie jaar (jaren)
WERKELIJKE WINST {{ calculeData.gainReel | number:0 }} €
RENDEMENT OP ACTIVA {{ calculeData.rendementSurActif | number:2 }} %
Omzet
| Jaarlijkse bruto huurinkomsten | € |
| Jaarlijkse lasten {{ calculeData.pourcentageCharge | number:2 }}% | {{ calculeData.chargeLocatifAnnuel | number:2 }} € |
| Onroerend goed belasting | {{ calculeData.precomteImmo | number:2 }} € |
| Andere jaarlijkse lasten | € |
| Jaarlijkse netto huurinkomsten | {{ calculeData.revenuLocatifAnnuelNet | number:2 }} € |
| Totale huurinkomsten na {{ calculeData.dureeDetention }} jaar rekening houdend met een inflatie van % | {{ calculeData.totalRevenuLocatif | number:2 }} € |
| Niet-gerealiseerde meerwaarde | {{ calculeData.pluvalueLatente | number:2 }} % |
| Meerwaarde van het pand na {{calculeData.dureeDetention}} jaar | {{ calculeData.pluvalueBien | number:2 }} € |
| Totale huurinkomsten na {{ calculeData.dureeDetention }} jaar | {{ calculeData.totalRevenuLocatif | number:2 }} € |
| Bruto winst op de basisprijs na {{ calculeData.dureeDetention }} jaar | +{{ calculeData.gainBrut | number:2 }} € |
Uitgaven
| Looptijd | {{ calculeData.duree | number:2 }} jaar |
| Tarief | {{ calculeData.taux | number:2 }} % |
| Maandlast | {{ calculeData.mensualite | number:2 }} € |
| Totale intrestlast na {{calculeData.dureeDetention}} jaar | {{ calculeData.totalInteret | number:2 }} € |
| Totale kosten | {{ calculeData.frais | number:2 }} € |
| Totaal | {{ calculeData.InteretFrais | number:2 }} € |
Winstrol
Rendement op activa
Cash flow
| Jaar | Kosten | Huurinkomsten | Verdienen |
|---|---|---|---|
| {{ $index }} | {{ ch.payment | number:2 }} € | {{ ch.revenuLocatif | number:2 }} € | {{ - ch.fondPropre | number:2 }} € |
BRUSSEL AGENTSCHAP Louizalaan 433 - 1050 Brussel
LA HULPE AGENTSCHAP Brusselsesteenweg 21 - 1310 Terhulp