Suis-je éligible à une réduction des droits d’enregistrement ?
Korenbeek
PRIX : 408 759 €
Type: Maison | Région: Bruxelles | Commune: Molenbeek-Saint-Jean
Charmante maison de 185m² dans un coin vert de Molenbeek à la limite de Berchem et Dilbeek. Initialement pourvue de 5 chambres et actuellement divisée en 2 appartements (maison Kangourou). Un duplex avec à l'entresol une cuisine, salle d'eau avec wc, salon, salle à manger et accès au jardin de 150m². 2 chambres à coucher au 1er étage. Duplex 2ème et 3ème étage: salon, cuisine, salle d'eau avec wc, chambre à coucher et salle de bains. Maison très bien entretenue avec électricité aux normes (2041) et toiture isolée.
Surface habitable: 234.3 m²
Chambres: 3
Salle de bain: 1
Salles de douche: 2
Jardin: Oui
Vidéo
Découvrez le bien en visualisant cette vidéo
VISITE VIRTUELLE
Vous voulez en voir plus ? Visitez le bien comme si vous y étiez à travers cette visite virtuelle
Localisation
Ce bien vous correspond ? Découvrez maintenant si sa localisation vous convient !
Commerces
Pharmacies
Restaurants
Boulangeries
Crèches
Parcs
Écoles
Universités
Déplacements
Plans intérieurs
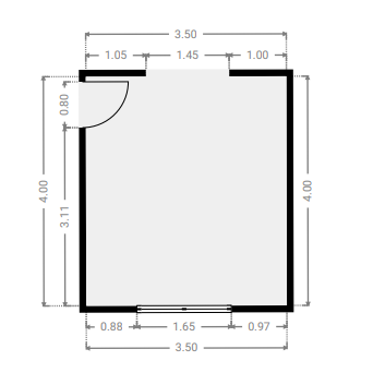
Rez-de-chaussée
SURFACE TOTALE : 74.31 m² | SURFACE HABITABLE : 92.08 m² | PIÈCE(S) : 6
1x Séjour
1x Cuisine 1
1x S.D.D. 1
1x Entrée
1x Véranda
Séjour
SURFACE : 26.2 m²
Cuisine 1
SURFACE : 18.16 m²
SURFACE : 3.75 m²
S.D.D. 1
SURFACE : 2.25 m²
Entrée
SURFACE : 4.46 m²
Véranda
SURFACE : 19.53 m²
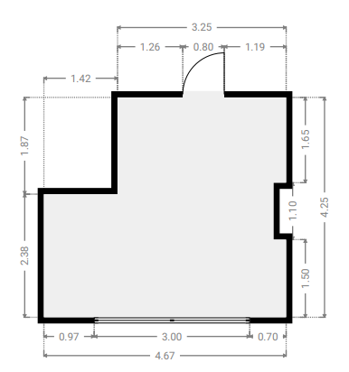
1er étage
SURFACE TOTALE : 35.88 m² | SURFACE HABITABLE : 44.75 m² | PIÈCE(S) : 3
2x Chambre(s)
Chambre 1
SURFACE : 14 m²
SURFACE : 7.78 m²
Chambre 2
SURFACE : 14.12 m²
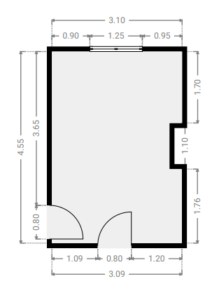
2e étage
SURFACE TOTALE : 39.63 m² | SURFACE HABITABLE : 48.99 m² | PIÈCE(S) : 3
1x Chambre 3
1x S.D.B.
1x Balcon
Chambre 3
SURFACE : 19.73 m²
SURFACE : 6.6 m²
S.D.B.
SURFACE : 13.31 m²
Balcon
SURFACE : 1.71 m²
3e étage
SURFACE TOTALE : 39.67 m² | SURFACE HABITABLE : 48.48 m² | PIÈCE(S) : 4
1x Cuisine 2
1x Salon
1x S.D.D. 2
Cuisine 2
SURFACE : 16.94 m²
SURFACE : 6.71 m²
Salon
SURFACE : 13.76 m²
S.D.D. 2
SURFACE : 2.27 m²
RECHERCHE CADASTRALE
Vous souhaitez mieux connaître votre parcelle et connaître la surface dont vous jouirez en achetant ce bien, alors consulter le cadastre est nécessaire !
Surface : 257.99 m²
Parcelle : C160y2
Certificats
Informez-vous sur la performance énergétique de ce bien et assurez-vous que ses installations électriques sont bien aux normes !
PERFORMANCE ÉNERGÉTIQUE
Économe
Très énergivore
CERTIFICAT ÉLECTRIQUE
PROCES VERBAL D’EXAMEN DE CONFORMITE ET/OU DE VISITE DE CONTROLE D’UNE INSTALLATION ELECTRIQUE BASSE TENSION
La nouvelle installationConforme
Agent
visiteur
FREDERIC JEANNON
Date
de certification
11/02/2016
Visite de contrôle
à effectuer avant le
11/02/2041
Audit technique
En prévoyant un budget précis des transformations et/ou réparations à opérer sur ce bien, l'expertise réalisée par un architecte neutre et indépendant vous permet de mieux évaluer la valeur de ce bien !
Score général attribué par l’auditeur *
Conseils généraux en termes de performances énergétiques du bâtiment :
En premier lieu, l'immeuble nécessite l'isolation de son volume chauffé, c'est à dire principalement les façades avant et arrière, la toiture à versant et le toit plat de la cuisine.
Les épaisseurs d'isolation, déterminées par calcul, doivent répondre à une performance minimale des parois.
Les versants de la toiture ont été isolés, toutefois l'épaisseur d'isolation thermique n'ayant pu être constatée, une couche complémentaire devrait être prévue. Si le grenier n'est pas utilisé comme pièce de vie, il est envisageable de placer une laine de roche sous l'isolation actuelle ou encore sur le plancher des combles, ou réaliser à l'étage inférieur un faux plafond comprenant cette isolation, ou démonter le plancher des combles pour y disposer de l'isolation.
Pour isoler la façade à rue, il faudra opérer du côté intérieur du mur en construisant une demi-cloison comprenant une isolation en laine de roche.
En ce qui concerne la façade arrière, une isolation à l'extérieur du mur conviendrait mieux. On disposera d'un isolant EPS collé et fixé mécaniquement au mur et on réalisera un enduit étanche en surface.
Les châssis en place sont de bonne facture et ont en général des performances thermique acceptables si l'on se base sur les factures exemplatives examinées.
La ventilation doit être améliorée afin d'évacuer l'air vicié et l'humidité des pièces. L'air y sera plus sain et l'habitat plus confortable.
Le but des exigences en matière est de limiter toute consommation énergétique de façon à viser une consommation d'environ 100 kWh par m2 et par an correspondant à une classe énergétique ""C+"". Dans ce cas-ci, cela n'est ni difficile à atteindre en raison des la faible envergure des interventions nécessaires. Pour inciter les propriétaires à effectuer ces travaux, des primes et des prêts intéressants sont disponibles via la plateforme RENOLUTION mise en place par la région de Bruxelles-Capitale.
Avis général et conseils de l'inspecteur :
Le quartier est calme, aéré, propre et lumineux.
La maison a été aménagée avec la volonté de donner à l'habitat le confort de vie qu'une famille d'aujourd'hui aspire. Bien qu'améliorables, les techniques sont propres et fonctionnelles. Les parois sont saines et bien parachevées. La toiture est solide et isolée. les portes et fenêtres extérieures sont de bonne facture. La véranda est bien utile devant une large terrasse et un jardin de taille appréciable. La maison peut offrir, avec quelques frais pour l'isolation et la ventilation, une bonne performance énergétique.
DISCLAIMER
La conclusion et les conseils donnés sont le résultat d’une inspection indépendante, réalisée par un architecte expérimenté et agréé par ImmoPass.
Les éventuelles estimations budgétaires contenues dans ce rapport sont données à titre indicatif et ne constituent pas un devis. Nous recommandons de réaliser un Cahier des Charges sur tout ou partie des travaux à entreprendre et une analyse des devis reçus. Les estimations sont exprimées hors taxes.
L’inspection a été réalisée de manière non-destructive, de manière visuelle uniquement. Ce rapport ne peut donc garantir l’absence totale de vices techniques cachés.
83 %
Zone inondable, zone acoustique, plan de secteurs, permis d’urbanisme ...
40 %
Certification énergétique, conformité électrique, cuve à mazout, sol, ...
95 %
Sécurité, aménagements, structures extérieures, entretien végétation, ...
100 %
Humidité généralisée, présence d’amiante, mérule, termites ...
83 %
Toiture, murs extérieurs, châssis et portes, évacuation eau de pluie, ...
92 %
Défauts structurels, humidité localisée, salubrité, état de fonctionnement..
100 %
Halls et escaliers, caves, combles et grenier, locaux techniques, ...
75 %
Système de chauffage, eau chaude sanitaire, électricité, entretiens techniques, ...
Pour cet immeuble, l'urbanisme à délivré le permis PU-28489 le 23 février 1962 relatif à la construction de lucarnes (tabatières). Si l'immeuble a été modifié depuis cette date en ce qui concerne les façades, la stabilité ou l'affectation, ou en raison de toute modification sujette à règlementation il importe que la situation actuelle de l'immeuble soit reconnue et approuvée par le service d'urbanisme. Le cas échéant, un permis devrait alors être déposé.
Sauf preuve contraire, le volume de la cuisine et de la véranda est suspecté de ne pas être en ordre d'urbanisme. Il est également signalé que l'immeuble est considéré comme habitation individuelle.
Le certificat PEB réalisé en date du 10 octobre 2015 délivre à l'immeuble la classe ""D-"" avec une consommation de 204 kWh EP/m2.an. Ce certificat recommande l'amélioration de la performance énergétique de l'immeuble résumée en trois remarques :
1. Installer un système de ventilation permettant la ventilation contrôlée du logement.
2. Isoler les murs extérieurs.
3. Poser une isolation complémentaire dans la toiture en pente.
Le rapport conclut à la conformité électrique. Toutefois il mentionne le manque d'un circuit propre pour le lave-linge et le séchoir.
La récolte des eaux de la terrasse est absente. Les pieds de murs ne sont pas protégés par une plinthe ou soubassement.
La cuisine et la véranda sont recouverts d'un toit plat. Les espace sont naturellement bien éclairés.
L'existence conforme d'un abri de jardin devrait être formalisée par un plan simple auprès de l'urbanisme communal.
La présence d'amiante n'a pas été constatée. Pour le contrôle précis et les recommandations de manipulation, un inventaire d'amiante est réalisable par un organisme agrée.
Aucune tuyauterie en plomb n'a été observée.
Les murs et cloisons sont généralement sans problèmes apparents.
Au le salon du dernier étage, quelques défauts de peintures s'observent sur une cloison.
Avec le temps, les refendages de support ne sont plus bien droits mais ils font bien leur travail.
1. A l'avant, une descente d'eau confortable en zinc reprend les eaux de la corniche et se prolonge par un conduit inséré dans le trottoir jusqu'à la voirie.
2. A l'arrière, une partie non identifiée de l'eau recueillie des toitures (toiture de la véranda ?) est vidée directement sur un terre-plein du jardin. Cette eau doit être recueillie par une chambre de visite et conduite à l'égout.
3. Les tuyaux longeant horizontalement le toit plat de la cuisine (et provenant du toit en pente) doivent être soigneusement emboîtés, fixés en conformité aux règles de l'art.
Les vitrages des portes et fenêtres accessibles doivent être pourvus de vitrage de sécurité.
Les portes et fenêtres accessibles par l'extérieur devraient être pourvues d'un vitrage de sécurité.
Quelque petites fissures éparses sont parfois constatables mais ne présentent aucun risque et sont facilement corrigibles.
Les pièces ne sont pas pourvues de détecteurs. Ces appareils, peu coûteux, doivent être mis en place.
L'amélioration de la ventilation du séjour, pièce centrale, est recommandée.
La ventilation est un aspect technique qui n'est pas assez pris en compte. Les pièces et principalement les wc et salles-de-bain (locaux humides) doivent être ventilés autrement que par l'ouverture d'une fenêtre. Les pièces de vie nécessitent l'apport d'air frais et la reprise de l'air s'effectue, via les sanitaires, vers l'extérieur. La ventilation ouverte dans le grenier n'est pas conforme.
Une ventilation naturelle réglable, c'est-à-dire sans motorisation, est envisageable. Toutefois une ventilation motorisée permettra une aération plus efficace des locaux.
On se reportera aux précisions données dans la certificat PEB.
On se reportera aux explications du point 5.1.9. et aux précisions données dans la certificat PEB à propos de la ventilation.
Le boiler est sous-dimensionné et devrait avoir une contenance de 50 L par personnes habitant l'immeuble.
Des panneaux photovoltaïques seraient utilement placés sur le versant sud de la toiture (côté rue).
DATA ROOM
Nous avons mis tous les documents importants dans la date room, n’hésitez pas à télécharger ce dont vous avez besoin !
Nous avons mis tous les documents importants dans la date room, n’hésitez pas à télécharger ce dont vous avez besoin !
Besoin de crédit
Maintenant que vous êtes sûrs d’avoir fait le bon choix, calculez la valeur totale de cette acquisition (valeur du bien et frais annexes) et estimez vos besoins en crédit !
Simulation de crédit
| Prix d'achat | € |
| Rénovation | € |
| Rénovation HTVA | {{ calculeData.renovationHTVA | number:2 }} € |
| TVA | {{ calculeData.tva | number:2 }} € |
| Fonds propres | € |
| Acompte dû (disponible au compromis de vente) | {{ calculeData.prix * 0.1 | number:2 }} € |
| Reste des liquidités (disponible à l'acte) | {{ calculeData.avance | number:2 }} € |
| Crédit pont | {{ calculeData.creditPont | number:2 }} € |
| Prix de vente de votre bien existant | € |
| Solde du crédit existant | € |
| Frais d'acte d'achat | {{ calculeData.droit + calculeData.fraisNotaire | number:2 }} € |
| Droits d'enregistrement | {{ calculeData.droit | number:2 }} € |
|
Abattement
Suis-je éligible à une réduction des droits d’enregistrement ? |
|
| Frais de notaire | {{ calculeData.fraisNotaire | number:2 }} € |
| Autres frais | {{ calculeData.inscription + calculeData.fraisDossier + calculeData.autreFrais | number:2 }} € |
| Frais liés à l'acte hypothécaire | {{ calculeData.inscription | number:2 }} € |
| Frais de dossier et expertise bancaire | {{ calculeData.fraisDossier | number:2 }} € |
| Autres frais | € |
| Montant du crédit | {{ calculeData.montantCredit | number:2 }} € | |
Choix du type de crédit
| Taux | Type | CAP | Mensualité | Mensualité Min | Mensualité Max | |
|---|---|---|---|---|---|---|
| {{ tx.banque }} | {{ tx.taux | number:2 }}% | {{ tx.type }} | -{{ tx.capNeg }}%/+{{ tx.capPos }}% | {{ tx.mens | number:2 }}€ | {{ tx.min | number:2 }}€ - | {{ tx.max | number:2 }}€ - |
| Taux | Type | CAP | Mensualité | Mensualité Min | Mensualité Max | |
|---|---|---|---|---|---|---|
| {{ tx.banque }} | {{ tx.taux | number:2 }}% | {{ tx.type }} | -{{ tx.capNeg }}%/+{{ tx.capPos }}% | {{ tx.mens | number:2 }}€ | {{ tx.min | number:2 }}€ - | {{ tx.max | number:2 }}€ - |
| Taux | Type | CAP | Mensualité | Mensualité Min | Mensualité Max | |
|---|---|---|---|---|---|---|
| {{ tx.banque }} | {{ tx.taux | number:2 }}% | {{ tx.type }} | -{{ tx.capNeg }}%/+{{ tx.capPos }}% | {{ tx.mens | number:2 }}€ | {{ tx.min | number:2 }}€ - | {{ tx.max | number:2 }}€ - |
Rentabilité
Cout total de l’acquisition
| Prix d'achat | {{ calculeData.prix | number:2 }} € |
| Rénovation | + {{ calculeData.prixTransRenovation | number:2 }} € |
| Frais | + {{ calculeData.frais | number:2 }} € |
| Coût total | + {{ calculeData.frais + calculeData.prixTransRenovation + calculeData.prix | number:2 }} € |
| Fonds propres + crédit pont | {{ calculeData.totalFP+calculeData.creditPont | number:2 }} € |
| Montant du crédit | {{ calculeData.montantCredit | number:2 }} € |
| Coût total | + {{ calculeData.creditPont + calculeData.totalFP + calculeData.montantCredit | number:2 }} € |
Rentabilité sur actifs
Durée de détention année(s)
Gain réel {{ calculeData.gainReel | number:0 }} €
Rendement sur actif {{ calculeData.rendementSurActif | number:2 }} %
Revenus
| Revenu locatif annuel Brut | € |
| Charge annuelle {{ calculeData.pourcentageCharge | number:2 }}% | {{ calculeData.chargeLocatifAnnuel | number:2 }} € |
| Précompte immobilier | {{ calculeData.precomteImmo | number:2 }} € |
| Autre charge annuelle | € |
| Revenu locatif annuel net | {{ calculeData.revenuLocatifAnnuelNet | number:2 }} € |
| Total revenu locatif après {{ calculeData.dureeDetention }} année(s) tenant compte d'une inflation de % |
{{ calculeData.totalRevenuLocatif | number:2 }} € |
| Plus-value latente | {{ calculeData.pluvalueLatente | number:2 }} % |
| Plus-value du bien après {{calculeData.dureeDetention}} année(s) | {{ calculeData.pluvalueBien | number:2 }} € |
| Total revenu locatif après {{ calculeData.dureeDetention }} année(s) | {{ calculeData.totalRevenuLocatif | number:2 }} € |
| Gain brut sur le prix de base après {{ calculeData.dureeDetention }} année(s) | +{{ calculeData.gainBrut | number:2 }} € |
Charges
| Durée du crédit | {{ calculeData.duree | number:2 }} ans |
| Taux | {{ calculeData.taux | number:2 }} % |
| Mensualité | {{ calculeData.mensualite | number:2 }} € |
| Total interêts après {{calculeData.dureeDetention}} année(s) | {{ calculeData.totalInteret | number:2 }} € |
| Total frais | {{ calculeData.frais | number:2 }} € |
| Total | {{ calculeData.InteretFrais | number:2 }} € |
Gain réel
Rendement sur actif
Cash flow
| Année | Coût | Revenu locatif | Gain |
|---|---|---|---|
| {{ $index }} | {{ ch.payment | number:2 }} € | {{ ch.revenuLocatif | number:2 }} € | {{ - ch.fondPropre | number:2 }} € |
Av. Louise 433 Louizalaan 1050 Bruxelles - Brussel
Chaussée de Bruxelles 21 1310 La Hulpe