Suis-je éligible à une réduction des droits d’enregistrement ?
Juliette
PRIX : 560 000 €
Type: Immeuble de rapport | Région: Bruxelles | Commune: Forest
Situé dans le quartier de Forest National, à proximité du Parc Duden et de l'Altitude 100, By the Way vous présente cet immeuble de rapport de 3 unités, rénové presque entièrement en 2015. Le rez-de-chaussée commercial de +/- 50m² dispose d'une cour et d'une entrée séparée. Au 1er étage : appartement 1 chambre avec terrasse de +/- 52m². Au deuxième et dernier étage : appartement duplex 2 chambres de +/- 75m². Sous-sol : 3 caves.
Surface habitable: 206.94 m²
Chambres: 3
Salles de douche: 2
Terrasses: 2
Vidéo
Découvrez le bien en visualisant cette vidéo
VISITE VIRTUELLE
Vous voulez en voir plus ? Visitez le bien comme si vous y étiez à travers cette visite virtuelle
Localisation
Ce bien vous correspond ? Découvrez maintenant si sa localisation vous convient !
Commerces
Pharmacies
Restaurants
Boulangeries
Crèches
Parcs
Écoles
Universités
Déplacements
Plans intérieurs
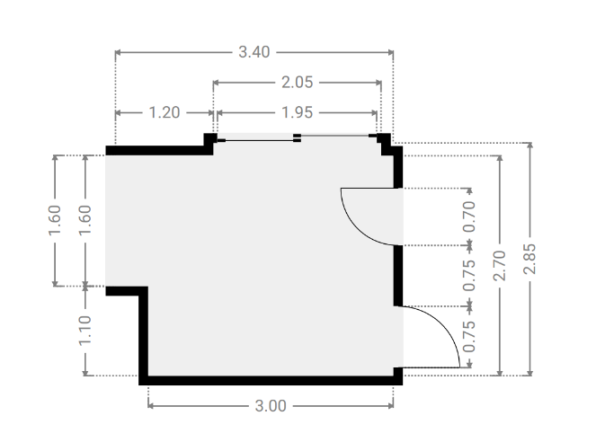
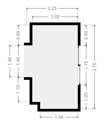
Rez-de-chaussée
SURFACE TOTALE : 66.46 m² | SURFACE HABITABLE : 66.46 m² | PIÈCES : 3
1x Séjour
2x Chambres
1x Entrée
1x Terrasse
1x S.D.D.
Séjour
SURFACE : 26.04 m²
Chambre A
SURFACE : 15.12 m²
Entrée
SURFACE : 12.7 m²
Chambre B
SURFACE : 9.05 m²
Terrasse
SURFACE : 10.21 m²
S.D.D.
SURFACE : 2.33 m²
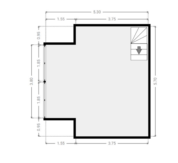
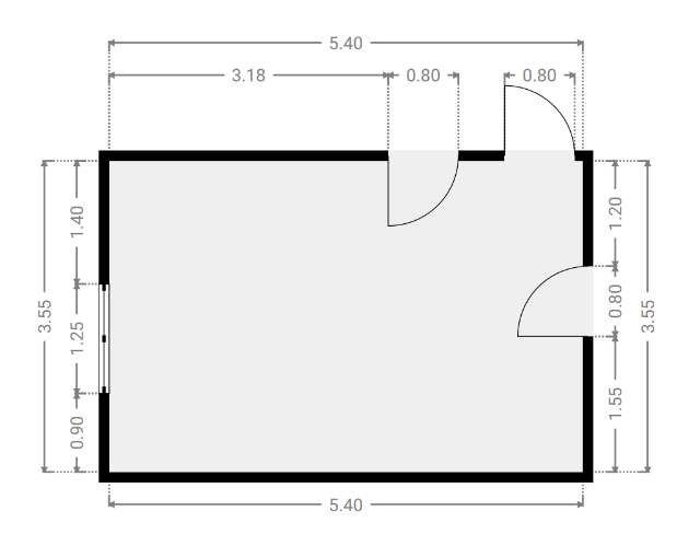
1er étage
SURFACE TOTALE : 61.91 m² | SURFACE HABITABLE : 61.91 m² | PIÈCES : 3
1x Chambre
1x Séjour
1x S.D.D.
1x Cuisine
1x Terrasse
Chambre
SURFACE : 19.17 m²
Séjour
SURFACE : 16.61 m²
S.D.D.
SURFACE : 8.55 m²
Cuisine
SURFACE : 7.65 m²
Terrasse
SURFACE : 9.9 m²
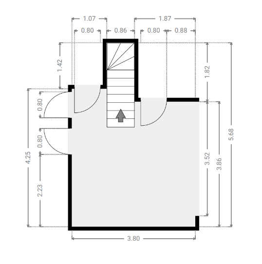
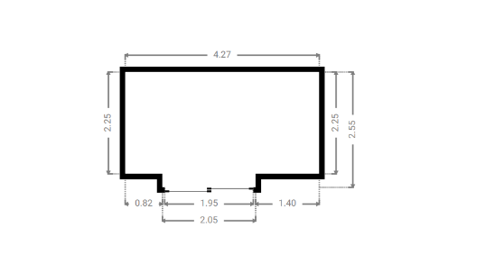
2e étage
SURFACE TOTALE : 51.32 m² | SURFACE HABITABLE : 51.32 m² | PIÈCES : 3
1x Chambre
1x Séjour
1x S.D.D.
1x Cuisine
Chambre
SURFACE : 10.53 m²
Séjour
SURFACE : 16.65 m²
S.D.D.
SURFACE : 8.03 m²
Cuisine
SURFACE : 9.73 m²
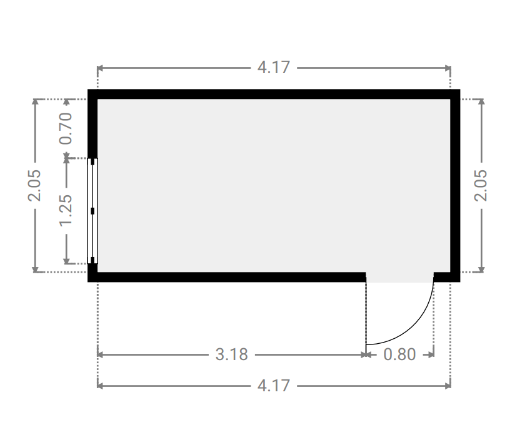
3e étage
SURFACE TOTALE : 27.25 m² | SURFACE HABITABLE : 27.25 m² | PIÈCES : 1
1x Chambre
Chambre
SURFACE : 27.26 m²
RECHERCHE CADASTRALE
Vous souhaitez mieux connaître votre parcelle et connaître la surface dont vous jouirez en achetant ce bien, alors consulter le cadastre est nécessaire !
Surface : 92.98 m²
Parcelle : C22p5
Certificats
Informez-vous sur la performance énergétique de ce bien et assurez-vous que ses installations électriques sont bien aux normes !
PERFORMANCE ÉNERGÉTIQUE
Économe
Très énergivore
Économe
Très énergivore
CERTIFICATEUR ÉLECTRIQUE
PROCES VERBAL D’EXAMEN DE CONFORMITE ET/OU DE VISITE DE CONTROLE D’UNE INSTALLATION ELECTRIQUE BASSE TENSION
La nouvelle installation Non conforme
Agent
visiteur
Hicham Benchaib
Date
de certification
18/01/2023
Doit être
contrôlée avant
18/01/2024
Audit technique
En prévoyant un budget précis des transformations et/ou réparations à opérer sur ce bien, l'expertise réalisée par un architecte neutre et indépendant vous permet de mieux évaluer la valeur de ce bien !
Score général attribué par l’auditeur *
Conseils généraux en termes de performances énergétiques du bâtiment :
Cet immeuble devra répondre à moyens termes aux exigences formulées par la région de Bruxelles-Capitale.
Primo - Une isolation de l'enveloppe du bâtiment sera bientôt requise (murs, toiture, châssis, plancher du rez). Le moment actuel permet de profiter des primes et prêts avantageux octroyés par le programme Rénolution lancé par la région. Il faut éviter les amendes qui remplaceront les primes dans quelques années.
Secundo - Les équipements doivent prévoir l'évolution probable des énergies qui seront disponibles. Aussi les chaudières, les chauffe-eau, les ventilations, ... devront être peu énergivore et adaptés à une énergie autres que fossile (les installations de gaz ne bénéficient plus de primes depuis le 1er janvier 2023).
Tertio - Les maisons ont intérêt à se pourvoir en panneaux photovoltaïque, panneaux solaires, en équipement particulièrement propres tels que pompes à chaleur, boiler thermodynamiques, électro-ménagers de classe A ou supérieures.
Avis général et conseils de l'inspecteur :
La première chose à faire dans cet immeuble c'est de faire place nette.
- en évacuant tout les encombrants, les effets inutiles, ... en les rangeants, le cas échéant;
- procéder à l'enlèvement de toute installation inutile, y compris les anciennes fixations, les éléments oubliés, les éléments et mobilier du commerce, ...
- regrouper les compteurs dans un local technique, mettre si possible les tuyauteries et canalisations dans des gaines techniques;
- procéder à un nettoyage généralisé de toutes les locaux (notamment les caves et les communs).
- veiller à l'unité des revêtement et à leur fraîcheur;
- vérifier et faire respecter les exigences élémentaires d'habitabilité en ce compris les règles de sécurité incendie, gaz, électricité, garde-corps, ...
- faire une demande de régularisation de la configuration actuelle de l'immeuble par la demande d'un permis d'urbanisme.
DISCLAIMER
La conclusion et les conseils donnés sont le résultat d’une inspection indépendante, réalisée par un architecte expérimenté et agréé par ImmoPass.
Les éventuelles estimations budgétaires contenues dans ce rapport sont données à titre indicatif et ne constituent pas un devis. Nous recommandons de réaliser un Cahier des Charges sur tout ou partie des travaux à entreprendre et une analyse des devis reçus. Les estimations sont exprimées hors taxes.
L’inspection a été réalisée de manière non-destructive, de manière visuelle uniquement. Ce rapport ne peut donc garantir l’absence totale de vices techniques cachés.
50 %
Zone inondable, zone acoustique, plan de secteurs, permis d’urbanisme ...
50 %
Certification énergétique, conformité électrique, cuve à mazout, sol, ...
95 %
Sécurité, aménagements, structures extérieures, entretien végétation, ...
67 %
Humidité généralisée, présence d’amiante, mérule, termites ...
89 %
Toiture, murs extérieurs, châssis et portes, évacuation eau de pluie, ...
85 %
Défauts structurels, humidité localisée, salubrité, état de fonctionnement..
85 %
Halls et escaliers, caves, combles et grenier, locaux techniques, ...
54 %
Système de chauffage, eau chaude sanitaire, électricité, entretiens techniques, ...
L'immeuble est très proche de Forest National et subit, jusque tard, la présence parfois remontée des spectateurs, la présence saturante des voitures.
Les rénovations successives réalisées par le propriétaire actuel n'ont pas fait l'objet d'une demande de permis d'urbanisme. Il s'agirait principalement de la modification du volume de toit, de rénovation d'appartement, d''aménagement du commerce, ... Ceci demande, avant vente, de procéder par obligation administrative à une mise en ordre urbanistique (établir un dossier de demande de permis, obtenir un avis de la commune et, le cas échéant, réaliser les travaux correctifs exigés)
Label E- pour le premier étage
Label G pour le deuxième étage
La propriétaire signale avoir eu des altercations avec son voisin de droite (n° 20) au sujet d'une abondance d'eau dans les caves voisines (jusqu'à 1.50 m d'eau). Ce litige est apparemment éteint, bien que l'immeuble voisin soit toujours victime d'infiltrations conséquentes. Toutefois, rien ne permet de dire, lors de l'audit, que la cause puisse responsabiliser la propriétaire.
Il n'y a pas de réel espace vert. La cour est encombrée d'effets divers. Un bon entretien est nécessaire.
Le premier étage dispose d'une terrasse arrière figurant comme telle sur un extrait de plan de 1930. Cette terrasse joint le mur de fond de la parcelle et dispose d'une vue immédiate sur la parcelle adjacente. Cette particularité devra être renseignée dans la demande de permis d'urbanisme afin de statuer sur sa configuration.
La terrasse du rez doit être entretenue.
L'état de l'immeuble laisse suspecter la présence d'amiante; celle-ci devrait être contrôlée officiellement par un organisme agrée qui remettra un certificat.
Les tuyauteries en plomb n'ont pas été identifiées, cependant, l'état des techniques, notamment en cave, appellent une vérification et leur remplacement éventuels.
Les rénovations successives ont tenté d'apporter du confort et de l'habitabilité. Toutefois, ces travaux sont pour la plupart, sans grande cohérence entre eux, et ont vécu un usage intensif. Certains ouvrages ont été réalisés sans recherche de perfection technique. Quelques revêtements muraux, dont ceux du commerce du rez, sont entièrement à revoir.
Des travaux d'aménagement ont été réalisés il y a quelques années, sans permis d'urbanisme, dont les barbacanes à l'avant.
Les égouttage d'eau de pluie ne posent apparemment pas de problèmes, cependant vu l'état de l'immeuble au moment de l'audit, tous les avaloirs n'ont pas pu être examinés. Nous recommandons un bon nettoyage des sols extérieurs et intérieurs, des avaloirs, sterfputs et fosse d'exhaure. Le cas échéant, un nettoyage des canalisations enterrées sera envisagé.
Il n'y a pas de citerne d'eau pluviales.
Les portes et fenêtres se distinguent en anciens et récents. Les récent fonctionnent (alu ou PVC, double vitrage, ...). Les anciennes portes sont vouées à être remplacées par des portes sécurisées. La devanture du commerce, au demeurant assez sympa, est appelée à être remplacée pour correspondre aux futures performances thermiques exigées par la région de Bruxelles-Capitale. Des primes et des prêts peuvent aider la propriétaire à entamer ces travaux.
On notera que le structure bois de la pièce centrale du rez-de-chaussée a été renforcée en cave par une ossature complémentaire (travail rapide) afin de permettre aux clients du café de danser.
Certains ouvrages en briques, dans les caves (percement de murs, raccord, ...) mériteraient d'être examinés et éventuellement renforcés. Une évacuation de toutes les installations obsolètes apporterait plus de propreté aux parois en général. Un bon nettoyage est suggéré.
L'état des appartements et des communs mis en location doit être salubre, sécurisé à l'incendie, au gaz, etc, et doit permettre de circuler dans les mêmes conditions de sécurité dans les communs et les abords. Nous invitons la propriétaire à prendre connaissance des exigences élémentaires en matière d'habitabilité formulées par la région de Bruxelles-Capitale, de se mettre en ordre, le cas échéant, dont voici le lien sur la coordination officieuse :
https://logement.brussels/wp-content/uploads/2021/04/Exigences-elementaires-en-matiere-de-securite-de-salubrite-et-dequipements-des-logements.pdf
Il n'y a pas de détecteurs incendie.
Nous rappelons à la propriétaire qu'à moyens termes les habitations devront satisfaire aux exigences de performances thermiques, notamment e ce qui concerne les portes et châssis.
Les cuisines des appartements à l'étage sont bien équipées. La cuisine du 1er étage est cependant un peu petite.
L'évacuation des hottes débouche en façade.
Les tuyauteries ne transitent pas par l'intermédiaire de gaines techniques. Leur tracé est réalisé en fonction de la facilité de réalisation.
La porte du Wc du 1è étage s'ouvre erronément vers l'intérieur.
Le tirage de la ventilation doit probablement être vérifié et éventuellenet motorisé par détection de présence.
Cf. les rubriques ci-avant.
Les largeurs de couloir et d'escalier sont étroits. Malgré un message affiché par la propriétaire, les communs sont jonchés d'effets divers ne permettant pas un passage fluide.
De façon générale, il faudrait simplifier la configuration des techniques en évacuant toutes les installations obsolètes, ainsi que tous les accessoires, fixations, ... et reboucher les percements pour passage de tuyauteries dans les murs et plafonds. L'évacuation ou le rangement des effets divers suivi d'un bon nettoyage rendrait aux caves un aspect plus praticable.
Réalisation perfectibles des installations de chauffage (cablages, tuyauteries, conduit de fumée,...)
L'installation de l'électricité est disparate et peu règlementaire. La visite d'un organisme agréé pour le contrôle des installation est vivement recommandée.
DATA ROOM
Nous avons mis tous les documents importants dans la date room, n’hésitez pas à télécharger ce dont vous avez besoin !
Nous avons mis tous les documents importants dans la date room, n’hésitez pas à télécharger ce dont vous avez besoin !
Besoin de crédit
Maintenant que vous êtes sûrs d’avoir fait le bon choix, calculez la valeur totale de cette acquisition (valeur du bien et frais annexes) et estimez vos besoins en crédit !
Simulation de crédit
| Prix d'achat | € |
| Rénovation | € |
| Rénovation HTVA | {{ calculeData.renovationHTVA | number:2 }} € |
| TVA | {{ calculeData.tva | number:2 }} € |
| Fonds propres | € |
| Acompte dû (disponible au compromis de vente) | {{ calculeData.prix * 0.1 | number:2 }} € |
| Reste des liquidités (disponible à l'acte) | {{ calculeData.avance | number:2 }} € |
| Crédit pont | {{ calculeData.creditPont | number:2 }} € |
| Prix de vente de votre bien existant | € |
| Solde du crédit existant | € |
| Frais d'acte d'achat | {{ calculeData.droit + calculeData.fraisNotaire | number:2 }} € |
| Droits d'enregistrement | {{ calculeData.droit | number:2 }} € |
|
Abattement
Suis-je éligible à une réduction des droits d’enregistrement ? |
|
| Frais de notaire | {{ calculeData.fraisNotaire | number:2 }} € |
| Autres frais | {{ calculeData.inscription + calculeData.fraisDossier + calculeData.autreFrais | number:2 }} € |
| Frais liés à l'acte hypothécaire | {{ calculeData.inscription | number:2 }} € |
| Frais de dossier et expertise bancaire | {{ calculeData.fraisDossier | number:2 }} € |
| Autres frais | € |
| Montant du crédit | {{ calculeData.montantCredit | number:2 }} € | |
Choix du type de crédit
| Taux | Type | CAP | Mensualité | Mensualité Min | Mensualité Max | |
|---|---|---|---|---|---|---|
| {{ tx.banque }} | {{ tx.taux | number:2 }}% | {{ tx.type }} | -{{ tx.capNeg }}%/+{{ tx.capPos }}% | {{ tx.mens | number:2 }}€ | {{ tx.min | number:2 }}€ - | {{ tx.max | number:2 }}€ - |
| Taux | Type | CAP | Mensualité | Mensualité Min | Mensualité Max | |
|---|---|---|---|---|---|---|
| {{ tx.banque }} | {{ tx.taux | number:2 }}% | {{ tx.type }} | -{{ tx.capNeg }}%/+{{ tx.capPos }}% | {{ tx.mens | number:2 }}€ | {{ tx.min | number:2 }}€ - | {{ tx.max | number:2 }}€ - |
| Taux | Type | CAP | Mensualité | Mensualité Min | Mensualité Max | |
|---|---|---|---|---|---|---|
| {{ tx.banque }} | {{ tx.taux | number:2 }}% | {{ tx.type }} | -{{ tx.capNeg }}%/+{{ tx.capPos }}% | {{ tx.mens | number:2 }}€ | {{ tx.min | number:2 }}€ - | {{ tx.max | number:2 }}€ - |
Rentabilité
Cout total de l’acquisition
| Prix d'achat | {{ calculeData.prix | number:2 }} € |
| Rénovation | + {{ calculeData.prixTransRenovation | number:2 }} € |
| Frais | + {{ calculeData.frais | number:2 }} € |
| Coût total | + {{ calculeData.frais + calculeData.prixTransRenovation + calculeData.prix | number:2 }} € |
| Fonds propres + crédit pont | {{ calculeData.totalFP+calculeData.creditPont | number:2 }} € |
| Montant du crédit | {{ calculeData.montantCredit | number:2 }} € |
| Coût total | + {{ calculeData.creditPont + calculeData.totalFP + calculeData.montantCredit | number:2 }} € |
Rentabilité sur actifs
Durée de détention année(s)
Gain réel {{ calculeData.gainReel | number:0 }} €
Rendement sur actif {{ calculeData.rendementSurActif | number:2 }} %
Revenus
| Revenu locatif annuel Brut | € |
| Charge annuelle {{ calculeData.pourcentageCharge | number:2 }}% | {{ calculeData.chargeLocatifAnnuel | number:2 }} € |
| Précompte immobilier | {{ calculeData.precomteImmo | number:2 }} € |
| Autre charge annuelle | € |
| Revenu locatif annuel net | {{ calculeData.revenuLocatifAnnuelNet | number:2 }} € |
| Total revenu locatif après {{ calculeData.dureeDetention }} année(s) tenant compte d'une inflation de % |
{{ calculeData.totalRevenuLocatif | number:2 }} € |
| Plus-value latente | {{ calculeData.pluvalueLatente | number:2 }} % |
| Plus-value du bien après {{calculeData.dureeDetention}} année(s) | {{ calculeData.pluvalueBien | number:2 }} € |
| Total revenu locatif après {{ calculeData.dureeDetention }} année(s) | {{ calculeData.totalRevenuLocatif | number:2 }} € |
| Gain brut sur le prix de base après {{ calculeData.dureeDetention }} année(s) | +{{ calculeData.gainBrut | number:2 }} € |
Charges
| Durée du crédit | {{ calculeData.duree | number:2 }} ans |
| Taux | {{ calculeData.taux | number:2 }} % |
| Mensualité | {{ calculeData.mensualite | number:2 }} € |
| Total interêts après {{calculeData.dureeDetention}} année(s) | {{ calculeData.totalInteret | number:2 }} € |
| Total frais | {{ calculeData.frais | number:2 }} € |
| Total | {{ calculeData.InteretFrais | number:2 }} € |
Gain réel
Rendement sur actif
Cash flow
| Année | Coût | Revenu locatif | Gain |
|---|---|---|---|
| {{ $index }} | {{ ch.payment | number:2 }} € | {{ ch.revenuLocatif | number:2 }} € | {{ - ch.fondPropre | number:2 }} € |
Av. Louise 433 Louizalaan 1050 Bruxelles - Brussel
Drève Richelle, 96 - 1410 Waterloo