Kom ik in aanmerking voor belastingvermindering ?
Jezus-Eik 97
PRIJS : 595 000,00 €
Type: Maison | Regio: Flandre | Gemeente: Hoeilaart
Prachtig karakterhuis uit 1905 dat gerenoveerd moet worden. Het zal je verleiden met zijn ruimte (4 slaapkamers met een verbouwde zolder voor een vijfde slaapkamer of speelruimte. ). Het biedt talloze mogelijkheden dankzij de twee aparte ingangen voor een vrij beroep. Het heeft ook een privétuin van ongeveer 9 are op het westen met een klein zwembad, sauna en jacuzzi. Het wacht op jou om het een tweede leven te geven!
Totale Oppervlakte: 397 M²
Slaapkamers: 4
badkamer: 1
Doucheruimte 1
Garage: 1
Kelders: 2
Kantoor: 1
Tuin naar het westen
zwembad
sauna
jacuzzi
VIDEO PRESENTATIE
Découvrez le bien en visualisant cette vidéo
VIRTUEEL BEZOEK
Vous voulez en voir plus ? Visitez le bien comme si vous y étiez à travers cette visite virtuelle
OMGEVING
Ce bien vous correspond ? Découvrez maintenant si sa localisation vous convient !
Supermarkt
Apotheek
Restaurant
Bakkerij
Kinderdagverblijf
Park
Scholen
Universiteiten
Verplaatsingen
Interieurplannen
Ondergrond
TOTALE OPPERVLAKTE : 45.06 m² | WOONRUIMTE : 45.06 m² | kAMERS : 3
2x Kelder (s)
1x Corridor
Kelder 1
SURFACE : 15.41 m²
Kelder 2
SURFACE : 16.59 m²
Corridor
SURFACE : 12.88 m²
GELIJKVLOERS
TOTALE OPPERVLAKTE : 171.33 m² | WOONRUIMTE : 107.47 m² | kAMERS : 7
1x Woonkamer / Eetkamer
1x Hal
1x W.C
1x Wasruimte
1x Keuken
1x Garage
1x werkplaats
Woonkamer / Eetkamer
SURFACE : 47.19 m²
Hal
SURFACE : 17.52 m²
W.C
SURFACE : 1.65 m²
Wasruimte
SURFACE : 19.31 m²
Keuken
SURFACE : 19.42 m²
Garage
SURFACE : 47.17 m²
werkplaats
SURFACE : 16.69 m²
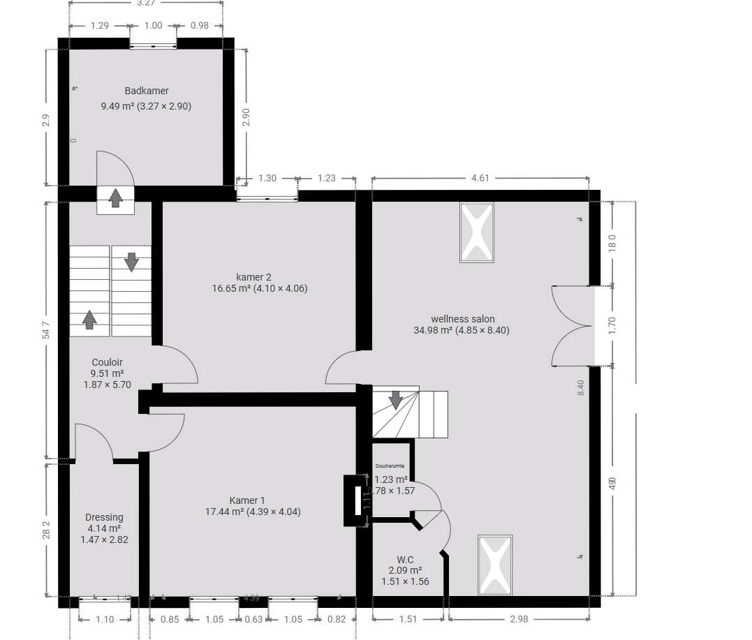
1E VERDIEPING
TOTALE OPPERVLAKTE : 97.33 m² | WOONRUIMTE : 97.33 m² | kAMERS : 8
2xBadkamer(s)
1x Corridor
1x Dressing
2x Slaapkamer (s)
1x Wellnessruimte
1x W.C
1xDoucheruimte
Badkamer
SURFACE : 9.49 m²
Corridor
SURFACE : 9.51 m²
Dressing
SURFACE : 4.14 m²
Slaapkamer 1
SURFACE : 17.44 m²
Slaapkamer 2
SURFACE : 16.65 m²
Wellnessruimte
SURFACE : 34.98 m²
Doucheruimte
SURFACE : 1.23 m²
W.C
SURFACE : 2.09 m²
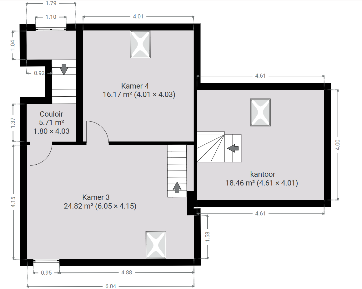
2E VERDIEPING
TOTALE OPPERVLAKTE : 66.30 m² | WOONRUIMTE : 66.30 m² | kAMERS : 4
1x Corridor
2x Slaapkamer (s)
1x kantoor
Corridor
SURFACE : 5.71 m²
Slaapkamer 4
SURFACE : 16.17 m²
Slaapkamer 3
SURFACE : 24.82 m²
kantoor
SURFACE : 18.46 m²
3E VERDIEPING
TOTALE OPPERVLAKTE : 17.34 m² | WOONRUIMTE : 17.34 m² | kAMERS : 1
1x Zolder
Zolder
SURFACE : 17.34 m²
KADASTRAAL ZOEKEN
Vous souhaitez mieux connaître votre parcelle et connaître la surface dont vous jouirez en achetant ce bien, alors consulter le cadastre est nécessaire !
BODEMGESTELDHEID
La pollution du sol a un impact sur l'environnement et sur la santé, les risques d’inondation ont un impact sur votre qualité de vie… Consultez les données relatives à ce bien pour en avoir le cœur net !
STAAT VAN BODEMVERONTREINIGING
Perceel B3h7 is gelegen in een gebied dat mogelijk overstroomt.
Source : Klik hier
Legende :
Overstromingsgebied
Perceel B3h7 is gelegen in een gebied dat mogelijk overstroomt.
Bron : Klik hier
Legende :
CERTIFICATEN
Informez-vous sur la performance énergétique de ce bien et assurez-vous que ses installations électriques sont bien aux normes !
ENERGIEPRESTATIES
Zeer zuinigZeer energieverslindennd
|
A+ A ≤ 0 |
A 0 < A ≤ 100 |
B 100 < B ≤ 200 |
C 200 < C ≤ 300 |
D 300 < D ≤ 400 |
E 400 < E ≤ 500 |
F F > 500 |
| 632 kWh/m².Jaar |
ELEKTRISCH CERTIFICAAT
VERSLAG VAN HET CONFORMITEITSONDERZOEK EN/OF DE INSPECTIE VAN EEN ELEKTRISCHE LAAGSPANNINGSINSTALLATIE
De bestaande installatieNiet conform
Bezoekende
agent
Souheil Idrissi
Datum
18/01/2024
Volgend
controlebezoek
18/01/2025
DATA ROOM
Nous avons mis tous les documents importants dans la date room, n’hésitez pas à Downloaden ce dont vous avez besoin !
Nous avons mis tous les documents importants dans la date room, n’hésitez pas à télécharger ce dont vous avez besoin !
BEREKEN UW KREDIETBEHOEFTE
Maintenant que vous êtes sûrs d’avoir fait le bon choix, calculez la valeur totale de cette acquisition (valeur du bien et frais annexes) et estimez vos besoins en crédit !
Kredietsimulatie
| Aankoopprijs | € |
| Renovatie | € |
| Renovatie excl. btw | {{ calculeData.renovationHTVA | number:2 }} € |
| BTW | {{ calculeData.tva | number:2 }} € |
| Eigen fondsen | € |
| Te betalen waarborgsom (beschikbaar bij de verkoopovereenkomst) | {{ calculeData.prix * 0.1 | number:2 }} € |
| Resterende liquide middelen (besschikbaar op de verkoop) | {{ calculeData.avance | number:2 }} € |
| Overbruggingskrediet | {{ calculeData.creditPont | number:2 }} € |
| Aankooprijs | € |
| Bestaand tegoed | € |
| Aankooprechten | {{ calculeData.droit + calculeData.fraisNotaire | number:2 }} € |
| Verkooprechten | {{ calculeData.droit | number:2 }} € |
|
Vermindering
Kom ik in aanmerking voor vermindering van het inschrijfgeld? |
|
| Notariskosten | {{ calculeData.fraisNotaire | number:2 }} € |
| Andere kosten | {{ calculeData.inscription + calculeData.fraisDossier + calculeData.autreFrais | number:2 }} € |
| Kosten in verband met de hypotheekakte | {{ calculeData.inscription | number:2 }} € |
| Administratiekosten en bankexpertise | {{ calculeData.fraisDossier | number:2 }} € |
| Andere kosten | € |
| ONTLEEND BEDRAG | {{ calculeData.montantCredit | number:2 }} € | |
Deze simulatie is gebaseerd op een rentevoet van 21/05/2024, die indicatief is en onderhevig aan verandering
Keuze soort krediet
| Tarief | Type | Pet | Maandelijkse betaling | MMaandelijkse betaling Min | Maandelijkse betaling Max | |
|---|---|---|---|---|---|---|
| {{ tx.banque }} | {{ tx.taux | number:2 }}% | {{ tx.type }} | -{{ tx.capNeg }}%/+{{ tx.capPos }}% | {{ tx.mens | number:2 }}€ | {{ tx.min | number:2 }}€ - | {{ tx.max | number:2 }}€ - |
| Tarief | Type | Pet | Maandelijkse betaling | Maandelijkse betaling Min | Maandelijkse betaling Max | |
|---|---|---|---|---|---|---|
| {{ tx.banque }} | {{ tx.taux | number:2 }}% | {{ tx.type }} | -{{ tx.capNeg }}%/+{{ tx.capPos }}% | {{ tx.mens | number:2 }}€ | {{ tx.min | number:2 }}€ - | {{ tx.max | number:2 }}€ - |
| Tarief | Type | Pet | Maandelijkse betaling | Maandelijkse betaling Min | Maandelijkse betaling Max | |
|---|---|---|---|---|---|---|
| {{ tx.banque }} | {{ tx.taux | number:2 }}% | {{ tx.type }} | -{{ tx.capNeg }}%/+{{ tx.capPos }}% | {{ tx.mens | number:2 }}€ | {{ tx.min | number:2 }}€ - | {{ tx.max | number:2 }}€ - |
RENTABILITEIT
Cout total de l’acquisition
| Aankoopprijs | {{ calculeData.prix | number:2 }} € |
| Renovatie | + {{ calculeData.prixTransRenovation | number:2 }} € |
| Kosten | + {{ calculeData.frais | number:2 }} € |
| Totale kostprijs | + {{ calculeData.frais + calculeData.prixTransRenovation + calculeData.prix | number:2 }} € |
| Eigen middelen + overbruggingskrediet | {{ calculeData.totalFP+calculeData.creditPont | number:2 }} € |
| Ontleend bedrag | {{ calculeData.montantCredit | number:2 }} € |
| Totale kostprijs | + {{ calculeData.creditPont + calculeData.totalFP + calculeData.montantCredit | number:2 }} € |
Rendement op activa
Duur van detentie jaar (jaren)
WERKELIJKE WINST {{ calculeData.gainReel | number:0 }} €
RENDEMENT OP ACTIVA {{ calculeData.rendementSurActif | number:2 }} %
Omzet
| Jaarlijkse bruto huurinkomsten | € |
| Jaarlijkse lasten {{ calculeData.pourcentageCharge | number:2 }}% | {{ calculeData.chargeLocatifAnnuel | number:2 }} € |
| Onroerend goed belasting | {{ calculeData.precomteImmo | number:2 }} € |
| Andere jaarlijkse lasten | € |
| Jaarlijkse netto huurinkomsten | {{ calculeData.revenuLocatifAnnuelNet | number:2 }} € |
| Totale huurinkomsten na {{ calculeData.dureeDetention }} jaar rekening houdend met een inflatie van % | {{ calculeData.totalRevenuLocatif | number:2 }} € |
| Niet-gerealiseerde meerwaarde | {{ calculeData.pluvalueLatente | number:2 }} % |
| Meerwaarde van het pand na {{calculeData.dureeDetention}} jaar | {{ calculeData.pluvalueBien | number:2 }} € |
| Totale huurinkomsten na {{ calculeData.dureeDetention }} jaar | {{ calculeData.totalRevenuLocatif | number:2 }} € |
| Bruto winst op de basisprijs na {{ calculeData.dureeDetention }} jaar | +{{ calculeData.gainBrut | number:2 }} € |
Uitgaven
| Looptijd | {{ calculeData.duree | number:2 }} jaar |
| Tarief | {{ calculeData.taux | number:2 }} % |
| Maandlast | {{ calculeData.mensualite | number:2 }} € |
| Totale intrestlast na {{calculeData.dureeDetention}} jaar | {{ calculeData.totalInteret | number:2 }} € |
| Totale kosten | {{ calculeData.frais | number:2 }} € |
| Totaal | {{ calculeData.InteretFrais | number:2 }} € |
Winstrol
Rendement op activa
Cash flow
| Jaar | Kosten | Huurinkomsten | Verdienen |
|---|---|---|---|
| {{ $index }} | {{ ch.payment | number:2 }} € | {{ ch.revenuLocatif | number:2 }} € | {{ - ch.fondPropre | number:2 }} € |
Av. Louise 433 1050 Bruxelles - 02 648 01 20
Drève Richelle 96 1410 Waterloo - 02 354 29 39
Av. Prekelinden 83 1200 Woluwe-St-Lambert - 02 734 00 36