Suis-je éligible à une réduction des droits d’enregistrement ?
Jenneval 33
PRIX : 550 000,00€
Type: Maison | Région: Bruxelles | Commune: Bruxelles
Idéalement située dans le très prisé Quartier Européen, à quelques pas des charmants Squares Ambiorix, Marie Louise et Marguerite, ainsi que du majestueux Parc du Cinquantenaire, By the Way vous présente cette maison A RENOVER de +/- 248 m² (selon PEB), avec un potentiel exceptionnel. Au rez-de-chaussée, un espace de +/- 71 m² est prêt à être transformé en une vaste et lumineuse pièce de vie comprenant salon, salle à manger et cuisine, avec un accès direct à un agréable jardin de ville de +/- 53 m² orienté au Sud-Est. Un WC séparé se trouve à l’entresol. Au premier étage, actuellement agencé en espace de vie, vous avez la possibilité de créer deux belles chambres et une salle de bains, permettant ainsi une configuration plus adaptée aux besoins d'une famille. Le deuxième étage abrite déjà deux chambres confortables (+/- 16 m² et 13,5 m²) et une salle de bains, tandis que les combles au troisième étage offrent la possibilité de l’aménagement de deux chambres supplémentaires et d'une salle de bains. Une mezzanine au quatrième étage pourrait devenir un espace bureau. La maison dispose également de caves en sous-sol, offrant un espace de rangement supplémentaire ou des possibilités d'aménagement selon vos envies. Elle est actuellement classée en PEB G, avec une électricité non conforme et un chauffage au mazout (cuve de moins de 3000 litres). Ne manquez pas cette rare opportunité de créer la maison de vos rêves dans l'un des quartiers les plus recherchés de Bruxelles.
À rénover
Surface brute : 248 m²
Jardin : oui
Chambres: 6
Cave: oui
Vidéo
Découvrez le bien en visualisant cette vidéo
VISITE VIRTUELLE
Vous voulez en voir plus ? Visitez le bien comme si vous y étiez à travers cette visite virtuelle
Localisation
Ce bien vous correspond ? Découvrez maintenant si sa localisation vous convient !
Commerces
Pharmacies
Restaurants
Boulangeries
Crèches
Parcs
Écoles
Universités
Déplacements
Plans intérieurs
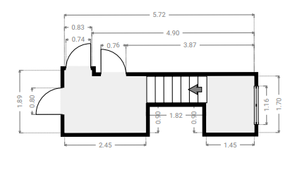
Sous-sol
SURFACE TOTALE : 49.54 m² | SURFACE HABITABLE : 49.54 m² | PIÈCE(S) : 4
3x Caves
Cave 2
SURFACE : 14.5 m²
Couloir
SURFACE : 9.75 m²
Cave 3
SURFACE : 14.81 m²
Cave 1
SURFACE : 10.04 m²
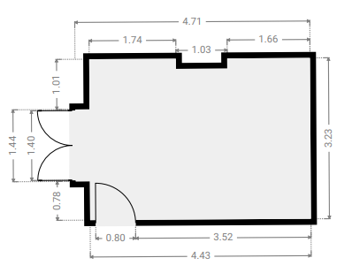
Rez-de-chaussée
SURFACE TOTALE : : 71.00 m² | SURFACE HABITABLE : : 71.00 m² | PIÈCE(S) : 7
1x Hall
1x Salle à manger
1x Séjour
1x Couloir
1x Toilettes
1x Bureau
1x Cuisine 1
Hall
SURFACE : 13.8 m²
Salle à manger
SURFACE : 15.87 m²
Séjour
SURFACE : 16.74 m²
Couloir
SURFACE : 1.64 m²
Toilettes
SURFACE : 0.66 m²
Bureau
SURFACE : 9.36 m²
Cuisine 1
SURFACE : 10.62 m²
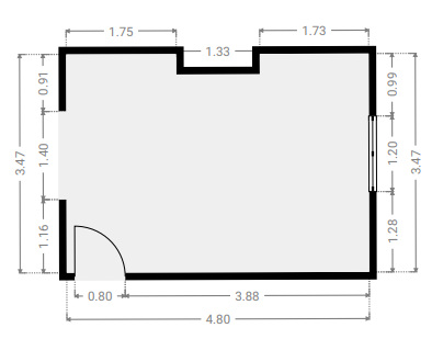
1er étage
SURFACE TOTALE : 50.83 m² | SURFACE HABITABLE : 50.83 m² | PIÈCE(S) : 5
1x Couloir
1x Cuisine 2
1x Séjour 2
1x W.C
1x Salle à manger 2
Couloir
SURFACE : 9.77 m²
Cuisine 2
SURFACE : 6.7 m²
Séjour 2
SURFACE : 16.23 m²
W.C
SURFACE : 2.25 m²
Salle à manger 2
SURFACE : 14 m²
2e étage
SURFACE TOTALE : 48.43 m² | SURFACE HABITABLE : 48.43 m² | PIÈCE(S) : 4
1x Couloir
2x Chambres
1x S.D.B
Couloir
SURFACE : 9.88 m²
Chambre 1
SURFACE : 16.12 m²
Chambre 2
SURFACE : 13.94 m²
S.D.B
SURFACE : 6.74 m²
3e étage
SURFACE TOTALE : 47.10 m² | SURFACE HABITABLE : 47.10 m² | PIÈCE(S) : 4
2x Chambres
1x Couloir
1x Bureau 2
Chambre 3
SURFACE : 16.12 m²
Couloir
SURFACE : 8.26 m²
Chambre 4
SURFACE : 14.29 m²
Bureau 2
SURFACE : 6.68 m²
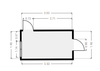
4e étage
SURFACE TOTALE : 11.65 m² | SURFACE HABITABLE : 11.65 m² | PIÈCE(S) : 1
1x Grenier
Grenier
SURFACE : 11.65 m²
RECHERCHE CADASTRALE
Vous souhaitez mieux connaître votre parcelle et connaître la surface dont vous jouirez en achetant ce bien, alors consulter le cadastre est nécessaire !
État des sols
La pollution du sol a un impact sur l'environnement et sur la santé, les risques d’inondation ont un impact sur votre qualité de vie… Consultez les données relatives à ce bien pour en avoir le cœur net !
ÉTAT DE LA POLLUTION DES SOLS
Aucune remarque particulière pour la parcelle F66y
Source : Cliquez-ici
Légende :
ZONE INONDABLE
Aucune remarque particulière pour la parcelle F66y
Source : Cliquez-ici
Légende :
Certificats
Informez-vous sur la performance énergétique de ce bien et assurez-vous que ses installations électriques sont bien aux normes !
PERFORMANCE ÉNERGÉTIQUE
Économe
Très énergivore
CERTIFICAT ÉLECTRIQUE
PROCES VERBAL D’EXAMEN DE CONFORMITE ET/OU DE VISITE DE CONTROLE D’UNE INSTALLATION ELECTRIQUE BASSE TENSION
La nouvelle installationNon conforme
Agent
visiteur
Cheirel Ngueguem
Date
de certification
17/07/2024
Visite de contrôle
à effectuer avant le
e 18 mois prenant cours le jour de l’acte de vente
DATA ROOM
Nous avons mis tous les documents importants dans la date room, n’hésitez pas à télécharger ce dont vous avez besoin !
Nous avons mis tous les documents importants dans la date room, n’hésitez pas à télécharger ce dont vous avez besoin !
Besoin de crédit
Maintenant que vous êtes sûrs d’avoir fait le bon choix, calculez la valeur totale de cette acquisition (valeur du bien et frais annexes) et estimez vos besoins en crédit !
Simulation de crédit
| Prix d'achat | € |
| Rénovation | € |
| Rénovation HTVA | {{ calculeData.renovationHTVA | number:2 }} € |
| TVA | {{ calculeData.tva | number:2 }} € |
| Fonds propres | € |
| Acompte dû (disponible au compromis de vente) | {{ calculeData.prix * 0.1 | number:2 }} € |
| Reste des liquidités (disponible à l'acte) | {{ calculeData.avance | number:2 }} € |
| Crédit pont | {{ calculeData.creditPont | number:2 }} € |
| Prix de vente de votre bien existant | € |
| Solde du crédit existant | € |
| Frais d'acte d'achat | {{ calculeData.droit + calculeData.fraisNotaire | number:2 }} € |
| Droits d'enregistrement | {{ calculeData.droit | number:2 }} € |
|
Abattement
Suis-je éligible à une réduction des droits d’enregistrement ? |
|
| Frais de notaire | {{ calculeData.fraisNotaire | number:2 }} € |
| Autres frais | {{ calculeData.inscription + calculeData.fraisDossier + calculeData.autreFrais | number:2 }} € |
| Frais liés à l'acte hypothécaire | {{ calculeData.inscription | number:2 }} € |
| Frais de dossier et expertise bancaire | {{ calculeData.fraisDossier | number:2 }} € |
| Autres frais | € |
| Montant du crédit | {{ calculeData.montantCredit | number:2 }} € | |
La présente simulation se base sur un taux d’intérêt du 21/08/2024. Ce calcul est indicatif et sujet à changement.
Choix du type de crédit
| Taux | Type | CAP | Mensualité | Mensualité Min | Mensualité Max | |
|---|---|---|---|---|---|---|
| {{ tx.banque }} {{ $index+1 }} | {{ tx.taux | number:2 }}% | {{ tx.type }} | -{{ tx.capNeg }}%/+{{ tx.capPos }}% | {{ tx.mens | number:2 }}€ | {{ tx.min | number:2 }}€ | {{ tx.max | number:2 }}€ |
| Taux | Type | CAP | Mensualité | Mensualité Min | Mensualité Max | |
|---|---|---|---|---|---|---|
| {{ tx.banque }} {{ $index+1 }} | {{ tx.taux | number:2 }}% | {{ tx.type }} | -{{ tx.capNeg }}%/+{{ tx.capPos }}% | {{ tx.mens | number:2 }}€ | {{ tx.min | number:2 }}€ | {{ tx.max | number:2 }}€ |
| Taux | Type | CAP | Mensualité | Mensualité Min | Mensualité Max | |
|---|---|---|---|---|---|---|
| {{ tx.banque }} {{ $index+1 }} | {{ tx.taux | number:2 }}% | {{ tx.type }} | -{{ tx.capNeg }}%/+{{ tx.capPos }}% | {{ tx.mens | number:2 }}€ | {{ tx.min | number:2 }}€ | {{ tx.max | number:2 }}€ |
Rentabilité
Cout total de l’acquisition
| Prix d'achat | {{ calculeData.prix | number:2 }} € |
| Rénovation | + {{ calculeData.prixTransRenovation | number:2 }} € |
| Frais | + {{ calculeData.frais | number:2 }} € |
| Coût total | + {{ calculeData.frais + calculeData.prixTransRenovation + calculeData.prix | number:2 }} € |
| Fonds propres + crédit pont | {{ calculeData.totalFP+calculeData.creditPont | number:2 }} € |
| Montant du crédit | {{ calculeData.montantCredit | number:2 }} € |
| Coût total | + {{ calculeData.creditPont + calculeData.totalFP + calculeData.montantCredit | number:2 }} € |
Rentabilité sur actifs
Durée de détention année(s)
Gain réel {{ calculeData.gainReel | number:0 }} €
Rendement sur actif {{ calculeData.rendementSurActif | number:2 }} %
Revenus
| Revenu locatif annuel Brut | € |
| Charge annuelle {{ calculeData.pourcentageCharge | number:2 }}% | {{ calculeData.chargeLocatifAnnuel | number:2 }} € |
| Précompte immobilier | {{ calculeData.precomteImmo | number:2 }} € |
| Autre charge annuelle | € |
| Revenu locatif annuel net | {{ calculeData.revenuLocatifAnnuelNet | number:2 }} € |
| Total revenu locatif après {{ calculeData.dureeDetention }} année(s) tenant compte d'une inflation de % |
{{ calculeData.totalRevenuLocatif | number:2 }} € |
| Plus-value latente | {{ calculeData.pluvalueLatente | number:2 }} % |
| Plus-value du bien après {{calculeData.dureeDetention}} année(s) | {{ calculeData.pluvalueBien | number:2 }} € |
| Total revenu locatif après {{ calculeData.dureeDetention }} année(s) | {{ calculeData.totalRevenuLocatif | number:2 }} € |
| Gain brut sur le prix de base après {{ calculeData.dureeDetention }} année(s) | +{{ calculeData.gainBrut | number:2 }} € |
Charges
| Durée du crédit | {{ calculeData.duree | number:2 }} ans |
| Taux | {{ calculeData.taux | number:2 }} % |
| Mensualité | {{ calculeData.mensualite | number:2 }} € |
| Total interêts après {{calculeData.dureeDetention}} année(s) | {{ calculeData.totalInteret | number:2 }} € |
| Total frais | {{ calculeData.frais | number:2 }} € |
| Total | {{ calculeData.InteretFrais | number:2 }} € |
Gain réel
Rendement sur actif
Cash flow
| Année | Coût | Revenu locatif | Gain |
|---|---|---|---|
| {{ $index }} | {{ ch.payment | number:2 }} € | {{ ch.revenuLocatif | number:2 }} € | {{ - ch.fondPropre | number:2 }} € |
Av. Louise 461 1050 Bruxelles - 02 648 01 20
Drève Richelle 96 1410 Waterloo - 02 354 29 39
Av. Prekelinden 83 1200 Woluwe-St-Lambert - 02 734 00 36