Suis-je éligible à une réduction des droits d’enregistrement ?
Jasmin
PRIX : 755 000,00 €
Type: Maison | Région: Bruxelles | Commune: Woluwé-Saint-Pierre
Dans un quartier très prisé de Woluwé-Saint-Pierre, sur la très calme Avenue Louis Jasmin, By the Way vous présente cette jolie maison 3 façades à rénover composée actuellement de 5 chambres, 1 salle de bains, d'une superficie habitable de +/- 200 m². Il y a possibilité d'aménager le grenier en plusieurs chambres et salles de bains. La maison dispose d'un ravissant jardin, le tout bénéficiant d'une excellente orientation Nord-Est-Sud. Agencement: au -1 : Garage, buanderie , caves et espace de stockage. Au rez-de-chaussée : Hall d'entrée, vestiaire, vaste pièce de vie de +/- 66 m2, cuisine (15m²) et WC séparé. Au 1er étage: 5 chambres (10,5m²/11m²/12m²/16,3m²/18m²), salle de bains avec douche, toilette et bidet (5,7m²). Au 2e étage : Grenier aménageable. Emplacement de parking extérieur + garage pour 1 voiture avec porte manuelle. Électricité non-conforme. PEB: G. Châssis bois, simple vitrage. NOUVELLE Chaudière au gaz à condensation de 2023. Production d’eau chaude sur chauffage central.
Surface Totale: 327 M²
Surface habitable: 269 m²
Chambres: 5
Salle de douche: 1
Garage: 1
Caves: 2
Jardin: oui
Grenier: 1
Parking extérieur: 1
Espace de stockage
Vidéo
Découvrez le bien en visualisant cette vidéo
VISITE VIRTUELLE
Vous voulez en voir plus ? Visitez le bien comme si vous y étiez à travers cette visite virtuelle
Localisation
Ce bien vous correspond ? Découvrez maintenant si sa localisation vous convient !
Commerces
Pharmacies
Restaurants
Boulangeries
Crèches
Parcs
Écoles
Universités
Déplacements
Plans intérieurs
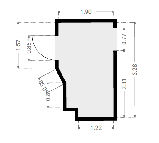
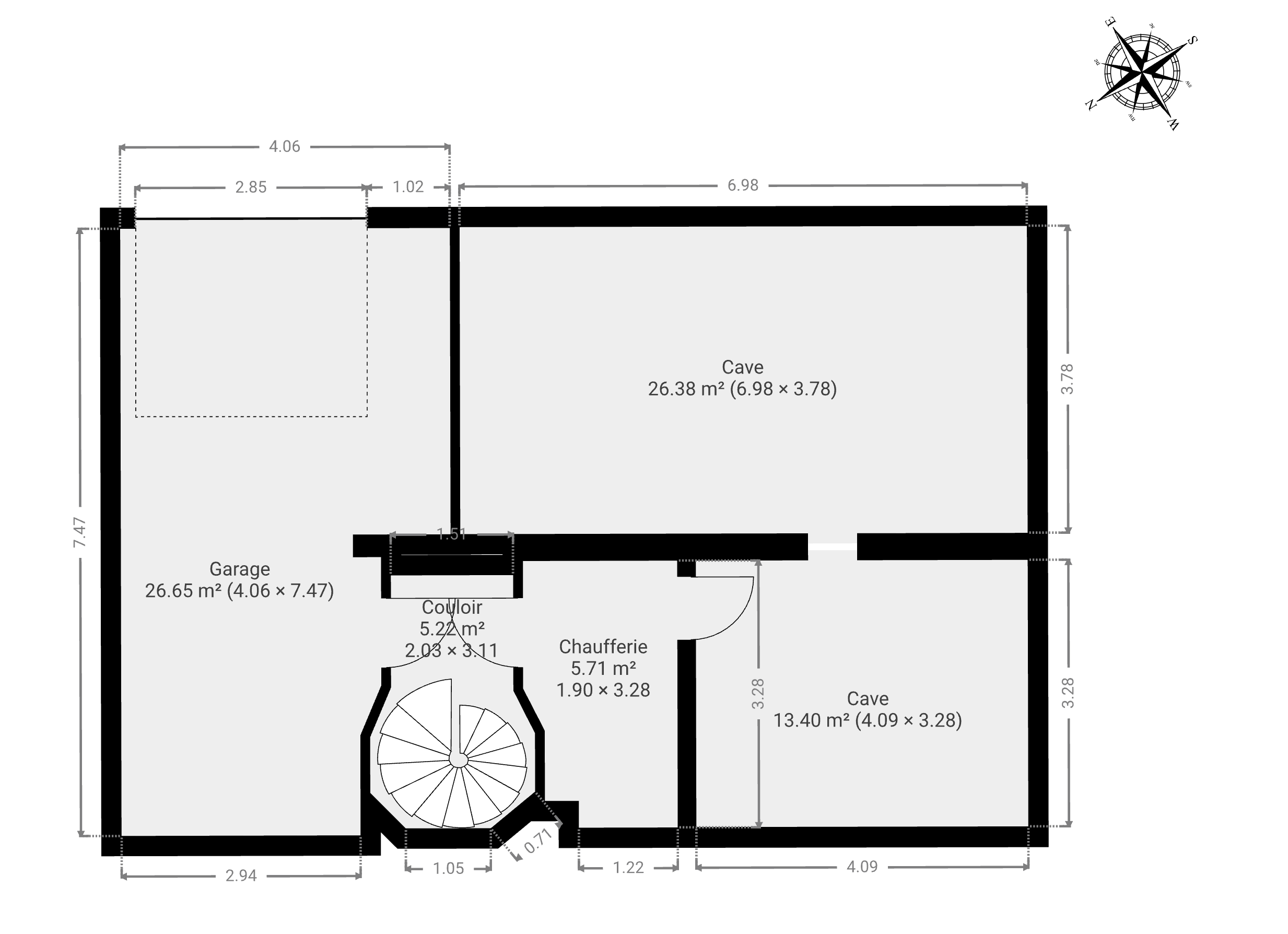
Sous-sol
SURFACE TOTALE : 79.21 m² | SURFACE HABITABLE : 31.87 m² | PIÈCE(S) : 5
2x Cave(s)
1x Chaufferie
1x Couloir
1x Garage
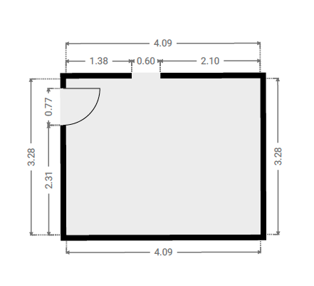
Cave
SURFACE : 13.4 m²
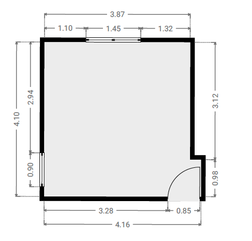
Chaufferie
SURFACE : 5.71 m²
Couloir
SURFACE : 5.22 m²
Garage
SURFACE : 26.65 m²
Cave
SURFACE : 26.38 m²
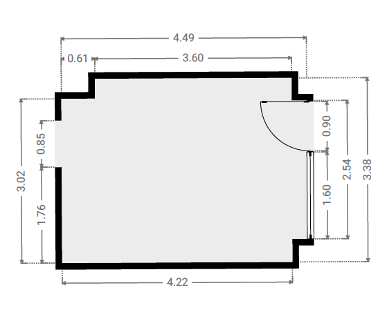
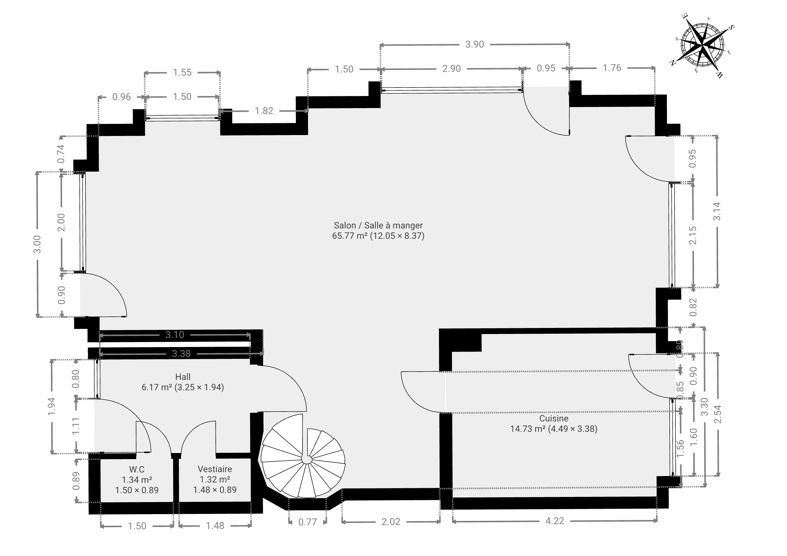
Rez-de-chaussée
SURFACE TOTALE : 90.43 m² | SURFACE HABITABLE : 90.43 m² | PIÈCE(S) : 5
1x Salon / Salle à manger
1x Cuisine
1x Hall
1x W.C
1x Vestiaire
Salon / Salle à manger
SURFACE : 65.77 m²
Cuisine
SURFACE : 14.73 m²
Hall
SURFACE : 6.17 m²
W.C
SURFACE : 1.34 m²
Vestiaire
SURFACE : 1.32 m²
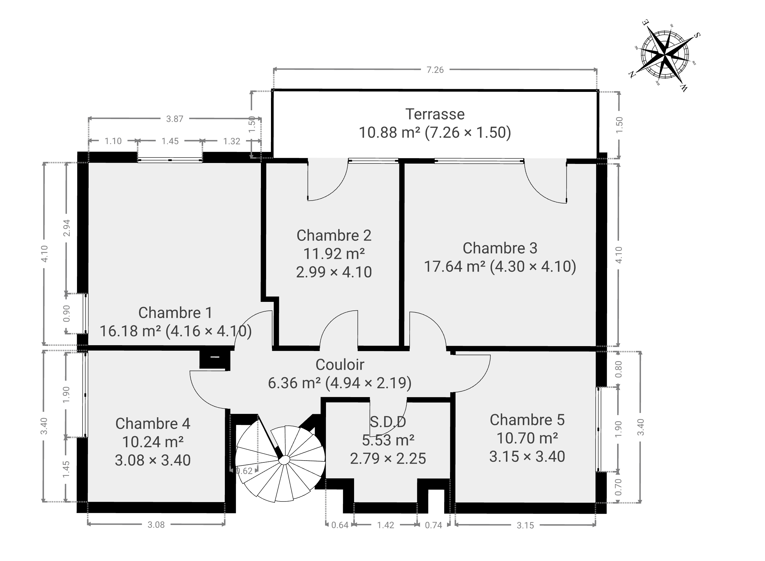
1er étage
SURFACE TOTALE : 92.56 m² | SURFACE HABITABLE : 81.69 m² | PIÈCE(S) : 7
1x Chambre 1
1x Couloir
1x S.D.D
1x Terrasse
Chambre 1
SURFACE : 16.18 m²
Chambre 4
SURFACE : 10.24 m²
Couloir
SURFACE : 6.36 m²
Chambre 2
SURFACE : 11.92 m²
Chambre 3
SURFACE : 17.64 m²
Chambre 5
SURFACE : 10.7 m²
S.D.D
SURFACE : 5.53 m²
Terrasse
SURFACE : 10.88 m²
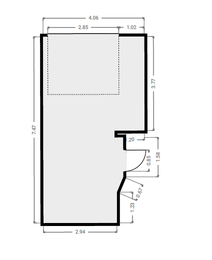
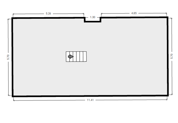
2e étage
SURFACE TOTALE : 64.63 m² | SURFACE HABITABLE : 64.63 m² | PIÈCE(S) : 1
1x Grenier
Grenier
SURFACE : 64.63 m²
RECHERCHE CADASTRALE
Vous souhaitez mieux connaître votre parcelle et connaître la surface dont vous jouirez en achetant ce bien, alors consulter le cadastre est nécessaire !
État des sols
La pollution du sol a un impact sur l'environnement et sur la
santé, les risques d’inondation ont un impact sur votre qualité de vie… Consultez les données
relatives à ce bien pour en avoir le cœur net !
ÉTAT DE LA POLLUTION DES SOLS
Aucune remarque particulière pour la parcelle D324x17
Source : Cliquez-ici
Légende :
ZONE INONDABLE
Aucune remarque particulière pour la parcelle D324x17
Source : Cliquez-ici
Légende :
Certificats
Informez-vous sur la performance énergétique de ce bien et assurez-vous que ses installations électriques sont bien aux normes !
PERFORMANCE ÉNERGÉTIQUE
Économe
Très énergivore
CERTIFICAT ÉLECTRIQUE
PROCES VERBAL D’EXAMEN DE CONFORMITE ET/OU DE VISITE DE CONTROLE D’UNE INSTALLATION ELECTRIQUE BASSE TENSION
La nouvelle installationNon conforme
DATA ROOM
Nous avons mis tous les documents importants dans la date room, n’hésitez pas à télécharger ce dont vous avez besoin !
Nous avons mis tous les documents importants dans la date room, n’hésitez pas à télécharger ce dont vous avez besoin !
Besoin de crédit
Maintenant que vous êtes sûrs d’avoir fait le bon choix, calculez la valeur totale de cette acquisition (valeur du bien et frais annexes) et estimez vos besoins en crédit !
Simulation de crédit
| Prix d'achat | € |
| Rénovation | € |
| Rénovation HTVA | {{ calculeData.renovationHTVA | number:2 }} € |
| TVA | {{ calculeData.tva | number:2 }} € |
| Fonds propres | € |
| Acompte dû (disponible au compromis de vente) | {{ calculeData.prix * 0.1 | number:2 }} € |
| Reste des liquidités (disponible à l'acte) | {{ calculeData.avance | number:2 }} € |
| Crédit pont | {{ calculeData.creditPont | number:2 }} € |
| Prix de vente de votre bien existant | € |
| Solde du crédit existant | € |
| Frais d'acte d'achat | {{ calculeData.droit + calculeData.fraisNotaire | number:2 }} € |
| Droits d'enregistrement | {{ calculeData.droit | number:2 }} € |
|
Abattement
Suis-je éligible à une réduction des droits d’enregistrement ? |
|
| Frais de notaire | {{ calculeData.fraisNotaire | number:2 }} € |
| Autres frais | {{ calculeData.inscription + calculeData.fraisDossier + calculeData.autreFrais | number:2 }} € |
| Frais liés à l'acte hypothécaire | {{ calculeData.inscription | number:2 }} € |
| Frais de dossier et expertise bancaire | {{ calculeData.fraisDossier | number:2 }} € |
| Autres frais | € |
| Montant du crédit | {{ calculeData.montantCredit | number:2 }} € | |
La présente simulation se base sur un taux d’intérêt du 28/11/2023. Ce calcul est indicatif et sujet à changement.
Choix du type de crédit
| Taux | Type | CAP | Mensualité | Mensualité Min | Mensualité Max | |
|---|---|---|---|---|---|---|
| {{ tx.banque }} | {{ tx.taux | number:2 }}% | {{ tx.type }} | -{{ tx.capNeg }}%/+{{ tx.capPos }}% | {{ tx.mens | number:2 }}€ | {{ tx.min | number:2 }}€ - | {{ tx.max | number:2 }}€ - |
| Taux | Type | CAP | Mensualité | Mensualité Min | Mensualité Max | |
|---|---|---|---|---|---|---|
| {{ tx.banque }} | {{ tx.taux | number:2 }}% | {{ tx.type }} | -{{ tx.capNeg }}%/+{{ tx.capPos }}% | {{ tx.mens | number:2 }}€ | {{ tx.min | number:2 }}€ - | {{ tx.max | number:2 }}€ - |
| Taux | Type | CAP | Mensualité | Mensualité Min | Mensualité Max | |
|---|---|---|---|---|---|---|
| {{ tx.banque }} | {{ tx.taux | number:2 }}% | {{ tx.type }} | -{{ tx.capNeg }}%/+{{ tx.capPos }}% | {{ tx.mens | number:2 }}€ | {{ tx.min | number:2 }}€ - | {{ tx.max | number:2 }}€ - |
Rentabilité
Cout total de l’acquisition
| Prix d'achat | {{ calculeData.prix | number:2 }} € |
| Rénovation | + {{ calculeData.prixTransRenovation | number:2 }} € |
| Frais | + {{ calculeData.frais | number:2 }} € |
| Coût total | + {{ calculeData.frais + calculeData.prixTransRenovation + calculeData.prix | number:2 }} € |
| Fonds propres + crédit pont | {{ calculeData.totalFP+calculeData.creditPont | number:2 }} € |
| Montant du crédit | {{ calculeData.montantCredit | number:2 }} € |
| Coût total | + {{ calculeData.creditPont + calculeData.totalFP + calculeData.montantCredit | number:2 }} € |
Rentabilité sur actifs
Durée de détention année(s)
Gain réel {{ calculeData.gainReel | number:0 }} €
Rendement sur actif {{ calculeData.rendementSurActif | number:2 }} %
Revenus
| Revenu locatif annuel Brut | € |
| Charge annuelle {{ calculeData.pourcentageCharge | number:2 }}% | {{ calculeData.chargeLocatifAnnuel | number:2 }} € |
| Précompte immobilier | {{ calculeData.precomteImmo | number:2 }} € |
| Autre charge annuelle | € |
| Revenu locatif annuel net | {{ calculeData.revenuLocatifAnnuelNet | number:2 }} € |
| Total revenu locatif après {{ calculeData.dureeDetention }} année(s) tenant compte d'une inflation de % |
{{ calculeData.totalRevenuLocatif | number:2 }} € |
| Plus-value latente | {{ calculeData.pluvalueLatente | number:2 }} % |
| Plus-value du bien après {{calculeData.dureeDetention}} année(s) | {{ calculeData.pluvalueBien | number:2 }} € |
| Total revenu locatif après {{ calculeData.dureeDetention }} année(s) | {{ calculeData.totalRevenuLocatif | number:2 }} € |
| Gain brut sur le prix de base après {{ calculeData.dureeDetention }} année(s) | +{{ calculeData.gainBrut | number:2 }} € |
Charges
| Durée du crédit | {{ calculeData.duree | number:2 }} ans |
| Taux | {{ calculeData.taux | number:2 }} % |
| Mensualité | {{ calculeData.mensualite | number:2 }} € |
| Total interêts après {{calculeData.dureeDetention}} année(s) | {{ calculeData.totalInteret | number:2 }} € |
| Total frais | {{ calculeData.frais | number:2 }} € |
| Total | {{ calculeData.InteretFrais | number:2 }} € |
Gain réel
Rendement sur actif
Cash flow
| Année | Coût | Revenu locatif | Gain |
|---|---|---|---|
| {{ $index }} | {{ ch.payment | number:2 }} € | {{ ch.revenuLocatif | number:2 }} € | {{ - ch.fondPropre | number:2 }} € |
Av. Louise 433 Louizalaan 1050 Bruxelles - Brussel
Chaussée de Bruxelles 21 1310 La Hulpe