Suis-je éligible à une réduction des droits d’enregistrement ?
HULET 13
PRIX : 480 000 €
Type: villa | Région: Wallonie | Commune: Genval
Située dans un clos calme très prisé, belle villa de 4 chambres à rénover sise sur un magnifique jardin arboré plat de 6 ares 96 orienté Ouest.
Surface habitable: 191 m²
Surface terrain: 6ares 96ca
Chambres: 4
Salles de douche: 2
Garage: 1
Cave: 1
Parking: 2
Jardin: Orienté Ouest
Vidéo
Découvrez le bien en visualisant cette vidéo
VISITE VIRTUELLE
Vous voulez en voir plus ? Visitez le bien comme si vous y étiez à travers cette visite virtuelle
Localisation
Ce bien vous correspond ? Découvrez maintenant si sa localisation vous convient !
Commerces
Pharmacies
Restaurants
Boulangeries
Crèches
Parcs
Écoles
Universités
Déplacements
Plans intérieurs
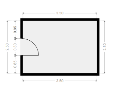
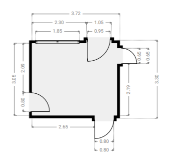
Sous-sol
SURFACE TOTALE : 27.88 m² | SURFACE HABITABLE : 27.88 m² | PIÈCE(S) : 3
1x Chaufferie
1x Cave
Chaufferie
SURFACE : 8.75 m²
Cave
SURFACE : 9.36 m²
SURFACE : 9.77 m²
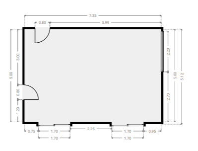
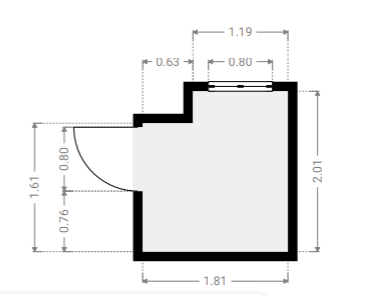
Rez-de-chaussée
SURFACE TOTALE : 101.75 m² | SURFACE HABITABLE : 92.15 m² | PIÈCE(S) : 10
1x Séjour
1x Garage
1x Buanderie
1x Cuisine
1x Chambre 1
1x Entrée
1x S.D.D. 1
1x W.C.
Séjour
SURFACE : 37.16 m²
Garage
SURFACE : 9.6 m²
Buanderie
SURFACE : 7.55 m²
Cuisine
SURFACE : 11.29 m²
Chambre 1
SURFACE : 13.22 m²
Entrée
SURFACE : 9.98 m²
S.D.D. 1
SURFACE : 5.18 m²
W.C.
SURFACE : 1.62 m²
SURFACE : 3.59 m²
SURFACE : 2.62 m²
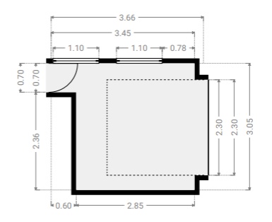
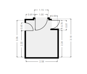
1er étage
SURFACE TOTALE : 71.33 m² | SURFACE HABITABLE : 71.33 m² | PIÈCE(S) : 8
1x S.D.D. 2
3x Chambre(s)
2x Dressing(s)
SURFACE : 6.48 m²
SURFACE : 6.24 m²
S.D.D. 2
SURFACE : 3.39 m²
Chambre 3
SURFACE : 11 m²
Chambre 2
SURFACE : 19.32 m²
Dressing
SURFACE : 6.66 m²
Chambre 4
SURFACE : 16.81 m²
Dressing
SURFACE : 1.49 m²
RECHERCHE CADASTRALE
Vous souhaitez mieux connaître votre parcelle et connaître la surface dont vous jouirez en achetant ce bien, alors consulter le cadastre est nécessaire !
Surface : 706.23 m²
Parcelle : B1350g
Certificats
Informez-vous sur la performance énergétique de ce bien et assurez-vous que ses installations électriques sont bien aux normes !
PERFORMANCE ÉNERGÉTIQUE
Économe
Très énergivore
CERTIFICAT ÉLECTRIQUE
PROCES VERBAL D’EXAMEN DE CONFORMITE ET/OU DE VISITE DE CONTROLE D’UNE INSTALLATION ELECTRIQUE BASSE TENSION
La nouvelle installationNon conforme
Agent
visiteur
Benjamin De Potter
Date
de certification
16/03/2023
Visite de contrôle
à effectuer avant le
16/03/2024
Audit technique à titre informatif
En prévoyant un budget précis des transformations et/ou réparations à opérer sur ce bien, l'expertise réalisée par un architecte neutre et indépendant vous permet de mieux évaluer la valeur de ce bien !
Score général attribué par l’auditeur *
Renseignements donnés à titre infirmatifs
100 %
Zone inondable, zone acoustique, plan de secteurs, permis d’urbanisme ...
75 %
Certification énergétique, conformité électrique, cuve à mazout, sol, ...
93 %
Sécurité, aménagements, structures extérieures, entretien végétation, ...
50 %
Humidité généralisée, présence d’amiante, mérule, termites ...
58 %
Toiture, murs extérieurs, châssis et portes, évacuation eau de pluie, ...
82 %
Défauts structurels, humidité localisée, salubrité, état de fonctionnement..
60 %
Halls et escaliers, caves, combles et grenier, locaux techniques, ...
79 %
Système de chauffage, eau chaude sanitaire, électricité, entretiens techniques, ...
PEB E - 420 kWh/m2.an
Le contrôle fait apparaître des défauts dans l'installation électrique.
BUDGET : 2.200 EUROS pour mettre l'installation à jour.
Un rapport de contrôle de la cuve est daté conforme en date du 11/04/2023.
Pas des remarque particulière, non repris dans une zone polluée.
Toutes les allées extérieures doivent être traitées à l'anti-mousse et les joints doivent être refaits là où ils ne sont plus homogènes. Budget de 500 à 1.000 euros HTVA
Nous préconisons le passage d'un coup de karcher et la réfection de joint si nécessaire. Pas de gros problème visible.
Présence d'amiante au niveau des canalisations de chauffage.
Attention notamment aux colles pour les tapis etc.
Pas de gros problème d'humidité dans la maison lors de notre passage .
L'humidimètre a détecté la présence d'humidité au niveau alerte faible sur une poutre porteuse dans l'espace sous comble adjacent de la chambre en façade avant.
Au niveau des caves, le degré d'humidité dans la pièce est proche de 60%. Les blocs béton en parte basse présentent un degré d'humidité important également. Les murs ne sont probablement
pas protégés par l'extérieur.
Vu la hauteur des caves, le risque est limité de voir l'humidité gagner le RDC, nous n'en avons pas trouvé de traces en tout cas.
Les parements sont anciens et constitués de papier peint voir de fibre de verre par endroit (couloir étage). Il est probable que certaines parties des plafonnages devront être refaits en cas de rénovation intérieure des murs. Budget rénovation murale en fonction des choix du propriétaire de 50 à 100 euros/m2.
Les murs de façades ne sont pas isolées. La maison pourrait être mise aux normes actuelles d'isolation en isolant toute la maison par l'extérieur. Le budget est de l'ordre de 150 euros/m2 pour ce type de travaux mais cela permet de bénéficier de primes à la Région Wallonne. Cette intervention nécessiterait néanmoins l'étude d'un Architecte et une demande permis d'urbanisme.
La toiture a été isolée avec 6cm de laine minérale.
Des primes existent en Région Wallonne pour refaire le toit, elles sont de 30 euros/m2 pour l'isolation du
toit et de 40 surs/m2 en cas d'isolation bio. Il faudra passer par un audit énergétique afin d'en bénéficier.
La dalle beton de couverture de la cheminée est endommagée, il faudra réparer ou la remplacer. Prix 500 euros.
Un solin est détaché au niveau de la gouttière. Budget de 500 à 1.000 euros.
La gouttière côté façade latérale droite est endommagée avec une source d'infiltration d'eau potentielle.
Les gouttières n'ont pas été nettoyées. Présence de feuilles.
Les châssis en bois en façades latérales et façade avant sont anciens et devraient selon nous être remplacés afin de correspondre aux nouvelles normes en matière d'isolation.
Les châssis arrière sont récents (2018)
Idem au châssis, la porte est assez ancienne.
Placer un détecteur incendie à l'étage.
Voir rubrique menuiseries extérieures
Ancien châssis en bois. Seul châssis en bois pourvu d'un double vitrage.
A terme il faudra prévoir des ventilations mécaniques dans les WC. Actuellement il y a une ventilation naturelle.
Le système de chasse dans le WC de la SDB ne fonctionne pas correctement.
Voir remarque menuiseries extérieures.
A terme il faudra prévoir des ventilations mécaniques dans les WC. Actuellement il y a une ventilation naturelle.
Présence d'une fissure dans le mur derrière la fibre de verre. Il semble que le plafonnage ne soit plus adhérent sur cette partie de mur.
Voir section pathologie du bâtiment
Voire remarque - rubrique humidité.
Présence de beaucoup d'humidité au niveau des murs enterrés. Rien d'anormal cependant pour une construction de cet âge-là.
Humidité présente dans l'air et sur les blocs béton des caves. Il faut maintenir une bonne ventilation des locaux.
Vu le taux d'humidité présent, la ventilation n'est peut-être pas suffisante. Voir s'il ne faut pas installer un système pour capter et évacuer l'humidité de l'air.
Pas de remarque particulière
Murs peu étanches et pas isolés dans un endroit peu chauffé. L'enduit est propice à l'humidité dû à la condensation. Rien de grave n'a cependant été constaté.
Nus conseillons de remplacer la porte de cuisine par une porte isolée.
Voi remarque humidité - trou d'évacuation rempli d'eau lors de notre passage.
Au niveau des radiateurs, nous constatons encore de nombreuses vannes assez anciennes et pas thermostatiques. Nous conseillons vivement le remplacement de ces vannes dans le cadre d'une rénovation de la maison (80 à 100 euros la vanne).
Présence de 2 boilers indépendants. Le boiler de la salle de bain de l'étage n'est pas très accessible.
Satisfaisant.
Renseignements donnés à titre infirmatifs
DATA ROOM
Nous avons mis tous les documents importants dans la date room, n’hésitez pas à télécharger ce dont vous avez besoin !
Nous avons mis tous les documents importants dans la date room, n’hésitez pas à télécharger ce dont vous avez besoin !
Besoin de crédit
Maintenant que vous êtes sûrs d’avoir fait le bon choix, calculez la valeur totale de cette acquisition (valeur du bien et frais annexes) et estimez vos besoins en crédit !
Simulation de crédit
| Prix d'achat | € |
| Rénovation | € |
| Rénovation HTVA | {{ calculeData.renovationHTVA | number:2 }} € |
| TVA | {{ calculeData.tva | number:2 }} € |
| Fonds propres | € |
| Acompte dû (disponible au compromis de vente) | {{ calculeData.prix * 0.1 | number:2 }} € |
| Reste des liquidités (disponible à l'acte) | {{ calculeData.avance | number:2 }} € |
| Crédit pont | {{ calculeData.creditPont | number:2 }} € |
| Prix de vente de votre bien existant | € |
| Solde du crédit existant | € |
| Frais d'acte d'achat | {{ calculeData.droit + calculeData.fraisNotaire | number:2 }} € |
| Droits d'enregistrement | {{ calculeData.droit | number:2 }} € |
|
Abattement
Suis-je éligible à une réduction des droits d’enregistrement ? |
|
| Frais de notaire | {{ calculeData.fraisNotaire | number:2 }} € |
| Autres frais | {{ calculeData.inscription + calculeData.fraisDossier + calculeData.autreFrais | number:2 }} € |
| Frais liés à l'acte hypothécaire | {{ calculeData.inscription | number:2 }} € |
| Frais de dossier et expertise bancaire | {{ calculeData.fraisDossier | number:2 }} € |
| Autres frais | € |
| Montant du crédit | {{ calculeData.montantCredit | number:2 }} € | |
La présente simulation se base sur un taux d’intérêt du 20/06/2023. Ce calcul est indicatif et sujet à changement.
Choix du type de crédit
| Taux | Type | CAP | Mensualité | Mensualité Min | Mensualité Max | |
|---|---|---|---|---|---|---|
| {{ tx.banque }} {{ $index+1 }} | {{ tx.taux | number:2 }}% | {{ tx.type }} | -{{ tx.capNeg }}%/+{{ tx.capPos }}% | {{ tx.mens | number:2 }}€ | {{ tx.min | number:2 }}€ | {{ tx.max | number:2 }}€ |
| Taux | Type | CAP | Mensualité | Mensualité Min | Mensualité Max | |
|---|---|---|---|---|---|---|
| {{ tx.banque }} {{ $index+1 }} | {{ tx.taux | number:2 }}% | {{ tx.type }} | -{{ tx.capNeg }}%/+{{ tx.capPos }}% | {{ tx.mens | number:2 }}€ | {{ tx.min | number:2 }}€ | {{ tx.max | number:2 }}€ |
| Taux | Type | CAP | Mensualité | Mensualité Min | Mensualité Max | |
|---|---|---|---|---|---|---|
| {{ tx.banque }} {{ $index+1 }} | {{ tx.taux | number:2 }}% | {{ tx.type }} | -{{ tx.capNeg }}%/+{{ tx.capPos }}% | {{ tx.mens | number:2 }}€ | {{ tx.min | number:2 }}€ | {{ tx.max | number:2 }}€ |
Rentabilité
Cout total de l’acquisition
| Prix d'achat | {{ calculeData.prix | number:2 }} € |
| Rénovation | + {{ calculeData.prixTransRenovation | number:2 }} € |
| Frais | + {{ calculeData.frais | number:2 }} € |
| Coût total | + {{ calculeData.frais + calculeData.prixTransRenovation + calculeData.prix | number:2 }} € |
| Fonds propres + crédit pont | {{ calculeData.totalFP+calculeData.creditPont | number:2 }} € |
| Montant du crédit | {{ calculeData.montantCredit | number:2 }} € |
| Coût total | + {{ calculeData.creditPont + calculeData.totalFP + calculeData.montantCredit | number:2 }} € |
Rentabilité sur actifs
Durée de détention année(s)
Gain réel {{ calculeData.gainReel | number:0 }} €
Rendement sur actif {{ calculeData.rendementSurActif | number:2 }} %
Revenus
| Revenu locatif annuel Brut | € |
| Charge annuelle {{ calculeData.pourcentageCharge | number:2 }}% | {{ calculeData.chargeLocatifAnnuel | number:2 }} € |
| Précompte immobilier | {{ calculeData.precomteImmo | number:2 }} € |
| Autre charge annuelle | € |
| Revenu locatif annuel net | {{ calculeData.revenuLocatifAnnuelNet | number:2 }} € |
| Total revenu locatif après {{ calculeData.dureeDetention }} année(s) tenant compte d'une inflation de % |
{{ calculeData.totalRevenuLocatif | number:2 }} € |
| Plus-value latente | {{ calculeData.pluvalueLatente | number:2 }} % |
| Plus-value du bien après {{calculeData.dureeDetention}} année(s) | {{ calculeData.pluvalueBien | number:2 }} € |
| Total revenu locatif après {{ calculeData.dureeDetention }} année(s) | {{ calculeData.totalRevenuLocatif | number:2 }} € |
| Gain brut sur le prix de base après {{ calculeData.dureeDetention }} année(s) | +{{ calculeData.gainBrut | number:2 }} € |
Charges
| Durée du crédit | {{ calculeData.duree | number:2 }} ans |
| Taux | {{ calculeData.taux | number:2 }} % |
| Mensualité | {{ calculeData.mensualite | number:2 }} € |
| Total interêts après {{calculeData.dureeDetention}} année(s) | {{ calculeData.totalInteret | number:2 }} € |
| Total frais | {{ calculeData.frais | number:2 }} € |
| Total | {{ calculeData.InteretFrais | number:2 }} € |
Gain réel
Rendement sur actif
Cash flow
| Année | Coût | Revenu locatif | Gain |
|---|---|---|---|
| {{ $index }} | {{ ch.payment | number:2 }} € | {{ ch.revenuLocatif | number:2 }} € | {{ - ch.fondPropre | number:2 }} € |
Av. Louise 433 Louizalaan 1050 Bruxelles - Brussel
Drève Richelle, 96 - 1410 Waterloo