Suis-je éligible à une réduction des droits d’enregistrement ?
Helpe 99
PRIX : 525 000 €
Type: Petite maison | Région: Wallonie | Commune: Genval
Belle maison saine de 120 m2 de trois chambres spacieuses et salle de bain de plain-pied, à rénover au goût du jour, avec un jardin plat de 13 ares 50, idéalement orienté Sud Ouest et d'une annexe sous la terrasse., de grandes caves chauffées en sous-sol, un garage fermé et 4 places de parking extérieures . Cette villa bien entretenue est équipée d'une chaudière de gaz a condensation Vaillant de 2020, et d'une citerne d'eau de pluie 3000L avec d'un groupe hydrophore.
Surface habitable: 213.52 m²
Chambres: 3
Salle de bain: 1
Garage: 1
Parkings: 4
Vidéo
Découvrez le bien en visualisant cette vidéo
VISITE VIRTUELLE
Vous voulez en voir plus ? Visitez le bien comme si vous y étiez à travers cette visite virtuelle
Localisation
Ce bien vous correspond ? Découvrez maintenant si sa localisation vous convient !
Commerces
Pharmacies
Restaurants
Boulangeries
Crèches
Parcs
Écoles
Universités
Déplacements
Plans intérieurs
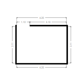
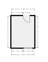
Sous-sol
SURFACE TOTALE : 127.60 m² | SURFACE HABITABLE : 93.73 m² | PIÈCES : 8
1x Garage
1x Atelier
3x Caves
1x Couloir
1x Chaufferie
2x Terrasses
Garage
SURFACE : 33.87 m²
Atelier
SURFACE : 9.36 m²
Cave 1
SURFACE : 6.48 m²
Cave 2
SURFACE : 9.64 m²
Couloir
SURFACE : 3.83 m²
Chaufferie
SURFACE : 21.91 m²
Cave 3
SURFACE : 28.8 m²
Terrasse 2
SURFACE : 13.56 m²
Terrasse 3
SURFACE : 13.04 m²
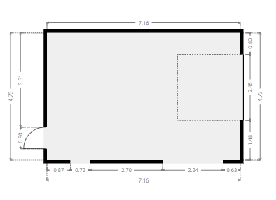
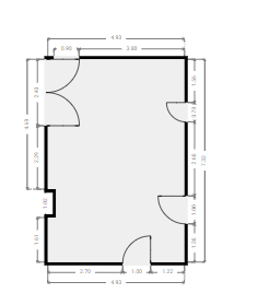
Rez-de-chaussée
SURFACE TOTALE : 119.79 m² | SURFACE HABITABLE : 119.79 m² | PIÈCES : 10
1x Séjour
1x Cuisine
1x Bureau
1x Hall
1x Couloir
3x Chambres
1x S.D.B
1x Terrasse 1
Séjour
SURFACE : 35.76 m²
Cuisine
SURFACE : 14.63 m²
Bureau
SURFACE : 7.16 m²
Hall
SURFACE : 10.35 m²
Couloir
SURFACE : 4.19 m²
Chambre 1
SURFACE : 11.26 m²
Chambre 2
SURFACE : 13 m²
Chambre 3
SURFACE : 14.55 m²
S.D.B
SURFACE : 7.69 m²
Terrasse 1
SURFACE : 25.5 m²
RECHERCHE CADASTRALE
Vous souhaitez mieux connaître votre parcelle et connaître la surface dont vous jouirez en achetant ce bien, alors consulter le cadastre est nécessaire !
Surface : 1297.21 m²
Parcelle : D3f
Certificats
Informez-vous sur la performance énergétique de ce bien et assurez-vous que ses installations électriques sont bien aux normes !
PERFORMANCE ÉNERGÉTIQUE
Économe
Très énergivore
CERTIFICATEUR ÉLECTRIQUE
PROCES VERBAL D’EXAMEN DE CONFORMITE ET/OU DE VISITE DE CONTROLE D’UNE INSTALLATION ELECTRIQUE BASSE TENSION
La nouvelle installation Non conforme
Agent
visiteur
Loic Giltay
Date
de certification
29/12/2022
Doit être
contrôlée avant
Dans les 18 mois à dater du jour de l'acte
Audit technique
En prévoyant un budget précis des transformations et/ou réparations à opérer sur ce bien, l'expertise réalisée par un architecte neutre et indépendant vous permet de mieux évaluer la valeur de ce bien !
Score général attribué par l’auditeur *
Conseils généraux en termes de performances énergétiques du bâtiment :
L'habitation datant de la fin des années 1970, celle-ci a déjà fait l'objet de mesure particulière vis à vis de l'isolation de l'enveloppe du bâtiment.
Au niveau des combles, la présence d'isolation a pu être identifiée au niveau du plancher du grenier. Le type d'isolant a pu être identifié (laine minérale) et l'épaisseur a pu être mesurée (10cm).
Sur base des plans, il a été possible d'identifier que les murs étaient isolés ainsi que la dalle sur caves/garage. Par contre, le type et l'épaisseur de l'isolation n'a pas pu être déterminée.
L'ensemble des châssis sont en bois avec double vitrage.
De manière générale, l'enveloppe du bâtiment présente déjà une assez bonne performance globale. Toutefois, du fait de la présence de radiateurs dans certaines caves et dans le garage, ces locaux sont repris dans le volume dit 'chauffé'. Ces locaux n'étant pas destinés à être spécifiquement chauffés ou utilisé comme des pièces de vie, l'isolation globale de ces locaux est nettement plus faible, voire nulle.
Ceci a dès lors un impact négatif sur le résultat global du certificat PEB.
A contrario, la chaudière étant située dans la cave, il est dès lors considéré que celle-ci est située dans le volume chauffé. Dès lors, les déperditions de l'installation de chauffage vers des locaux non chauffés ne sont pas comptabilisée, ce qui a un impact positif sur le résultat global du certificat PEB.
Hormis la pose d'une isolation complémentaire au niveau du plancher du grenier, il n'y a pas de recommandation particulière concernant les améliorations de la performance énergétique.
L'installation de panneaux solaires photovoltaïques pourrait être envisagée pour limiter la consommation d'électricité.
De même, au vu de l'espace disponible au niveau des combles, l'installation d'une système de ventilation double-flux à récupérateur de chaleur serait tout à fait envisageable et relativement facile à installer, le gainage pouvant être intégralement réalisé dans les combles.
Avis général et conseils de l'inspecteur :
L'habitation est dans un bon état général et ne présente aucun désordre particulier.
Les locaux situés en sous-sol sont également très sain.
Le seul point d'attention serait de faire valider auprès de la commune les modifications apportées aux plans initiaux afin de se prémunir de tout problème ultérieur.
DISCLAIMER
La conclusion et les conseils donnés sont le résultat d’une inspection indépendante, réalisée par un architecte expérimenté et agréé par ImmoPass.
Les éventuelles estimations budgétaires contenues dans ce rapport sont données à titre indicatif et ne constituent pas un devis. Nous recommandons de réaliser un Cahier des Charges sur tout ou partie des travaux à entreprendre et une analyse des devis reçus. Les estimations sont exprimées hors taxes.
L’inspection a été réalisée de manière non-destructive, de manière visuelle uniquement. Ce rapport ne peut donc garantir l’absence totale de vices techniques cachés.
83 %
Zone inondable, zone acoustique, plan de secteurs, permis d’urbanisme ...
50 %
Certification énergétique, conformité électrique, cuve à mazout, sol, ...
100 %
Sécurité, aménagements, structures extérieures, entretien végétation, ...
100 %
Humidité généralisée, présence d’amiante, mérule, termites ...
100 %
Toiture, murs extérieurs, châssis et portes, évacuation eau de pluie, ...
97 %
Défauts structurels, humidité localisée, salubrité, état de fonctionnement..
95 %
Halls et escaliers, caves, combles et grenier, locaux techniques, ...
88 %
Système de chauffage, eau chaude sanitaire, électricité, entretiens techniques, ...
L'habitation se situe à proximité d'un axe principal (Avenue Albert Ier). Toutefois, sur base de la carte des bruits des axes routiers principaux en wallonie (version 2017), l'habitation se situe suffisamment en retrait pour être en dehors des zones de nuisances acoustiques.
Conformément à la carte des zones inondables en vigueur, l'habitation ne se situe pas en zone inondable.
De même, suivant la carte des risques d'inondation, l'habitation ne se situe pas non en zone à risques.
Sur base des plans transmis, il est constaté que les constructions arrières (caves, annexes arrière en sous-sol et terrasse couverte) ne figurent pas sur les plans.
Toutefois, des volumes secondaires dont l'emprise au sous-sol est inférieure à 40m² sont dans certains cas précis autorisés sans demande de permis d'urbanisme préalable. Il en est de même pour les terrasses.
De plus, sur base des informations fournies par la propriétaire, ces constructions dateraient de plus de 30 ans.
Il est dès lors conseillé de se renseigner auprès du Service de l'Urbanisme de la commune concernant les modifications apportées par rapport aux plans disponibles afin de connaitre et définir avec elle les éventuelles démarches à effectuer pour régulariser la situation.
Sur base de la visite réalisée, il a été constaté que l'épaisseur mentionnée au niveau du plancher des combles est plus faible (10cm au lieu de 16cm).
De même, la présence d'isolation au niveau des murs et des planchers n'a pas été prise en compte. Il est toutefois possible que cette donnée provenant des plans n'était pas disponible lors de la visite du certificateur.
Un rapport de contrôle de l'installation électrique a été réalisé en date du 29/12/2022 par la société Certinergie. Le rapport conclu que l'installation n'est pas conforme aux prescriptions du RGIE.
La liste des infractions est reprise en page 2 du rapport de contrôle.
L'acheteur reçoit 18 mois à partir de l'acte de vente pour remettre en ordre l'installation électrique. Celui-ci devra faire réaliser un recontrôle de l'installation dans ce délai de 18 mois (vérification de la conformité de l'installation). L'acheteur n'a pas l'obligation de faire réaliser ce nouveau contrôle par le même organisme.
Les accès à l'habitation sont réalisés en clinkers qui sont en très bon état général. Ceux-ci ne présentent pas de déchaussement et sont parfaitement stables. Quelques zones présentent de la mousse en surface qui peut très facilement être traitée.
La voirie est constituée de pavés et est en très bon état général.
Les trottoirs ou espaces de parking en bordure de voirie ne présente pas un aménagement particulier. Il n'y a pas de revêtement particulier. Celui-ci est en terre.
Les terrasses et allées présentent des avaloirs permettant d'évacuer correctement les eaux de pluie et de ruissellement. Il n'y a aucune traces d'eau stagnante en périphérie du bâtiment.
Les arbres de grande taille en font de parcelle ne sont pas repris dans la liste des Arbres et Haies remarquables.
Lors de la visite d'expertise, aucun élément pouvant contenir de l'amiante n'a été identifié.
Plusieurs mesures d'humidité ont été réalisées en différents points du bâtiment. Les mesures révèlent un taux d'humidité normal.
Bien que le parement de façade soit réalisé en maçonneries appareillées 'toute panneresse', les murs ne semblent pas composé d'une coulisse de ventilation du fait de la préfabrication des éléments de façade.
Les différentes fermes composant la structure préfabriquée de la toiture sont dans un bon état général et ne présente pas de faiblesses anormales.
La couverture de toiture est réalisée en tuiles de béton Sneldek.
Les tuiles en béton ont une durée de vie de plus ou moins 50 ans. Au delà de cette période, la couche extérieure de protection peut se dégrader suite à l'exposition aux intempéries et aux UV. La tuiles devient alors plus poreuse pouvant entrainer à termes une fissuration des tuiles suite aux périodes de gel.
Les parties visibles de la toiture laissaient apparaitre une couverture de toiture en bon état général.
Afin de prolonger la durée de vie de la couverture, il est possible d'appliquer une nouvelle couche de protection afin de réduire la sensibilité aux mousses de ce type de couverture.
En cas de placement de panneaux solaires sur la couverture de toiture, il est conseillé de vérifier de manière plus approfondie l'état de la couverture de toiture. En effet, le remplacement de celle-ci sera plus délicat après la pose de panneaux solaires.
Afin de rendre les combles étanche à l'air et à la pluie, une sous-toiture a été placée sous les tuiles. Toutefois, celle-ci s'est très fortement dégradée avec le temps et se désagrège facilement.
Lors du remplacement de la couverture de toiture, il faudra veiller à placer une nouvelle sous-toiture étanché mais perméable à la vapeur d'eau.
Sur base des plans disponibles, il n'est pas fait mention d'une citerne d'eau de pluie. Toutefois, au vu de la présence d'une pompe de relevage dans le garage, il peut être supposé qu'une citerne d'eau de pluie. Au niveau de l'allée latérale droite, à hauteur de la pompe de relevage, il y a un couvercle en béton qui pourrait être celui de la citerne.
La capacité de la citerne n'est pas connue.
Les châssis sont composés de profilés en bois et de double vitrage.
Les doubles vitrages sont anciens et ne présentent pas de coating et ne sont donc pas à Haut Rendement.
Les châssis sont très bien entretenus et en très bon état général.
Depuis 2006, la présence de détecteurs de fumées dans les logements est obligatoire en région wallonne.
Les maisons doivent disposer, au minimum, d'un détecteur par niveau de vie (dont la surface est <80m²). Si la surface est supérieure à 80m², le nombre de détecteur doit être augmenté à 2.
Les détecteurs doivent prioritairement être placés dans la hall donnant accès au chambres à coucher ou le hall d'entrée.
Les détecteurs ne doivent pas être placés dans la cuisine ou dans un local produisant beaucoup de vapeur.
Les détecteurs doivent être des détecteurs optiques de fumée conformes à la norme NBN EN 14604 agréés BOSEC ou équivalent européen (VDS,BS...).
Ils doivent être garantis 5 ans.
Un détecteur est présent et fonctionnel dans le garage.
L'étage de vie de dispose pas de détecteur de fumées.
Une fenêtre du salon présente des difficultés d'ouverture. Un simple entretien ou réglage de la fenêtre devrait permettre de solutionner le problème.
L'ensemble des équipements (four, taques électriques) de la cuisine sont fonctionnels.
Une hotte est présente dans la cuisine. Celle-ci est fonctionnelle.
Une grille de ventilation naturelle est présente dans la toilette.
Dans la salle de bain, des grilles de ventilation sont présentes à hauteur du bain et de la douche.
Certaines zones en bas de mur au niveau des caves présentent des efflorescences très localisées. Toutefois, le taux d'humidité mesuré est normal. De plus, l'état général des caves peut laisser supposer qu'il n'y a pas de problème d'humidité dans celles-ci.
Les caves disposes de plusieurs briques de verre de ventilation permettant d'assurer une bonne ventilation des caves.
Une zone très localisée en bas de mur à droite de la porte de garage présente des efflorescences. Le taux d'humidité relevé est légèrement plus élevé mais raisonnable.
Après analyse, il apparait que cette zone se situe au droit de la zone extérieure ayant fait l'objet de travaux (raccordement gaz). Il est dès lors possible, que lors des travaux, le mur a été un peu plus soumis aux intempéries, engendrant dès lors les efflorescences en bas de mur.
La pièce n'étant pas chauffée, le délai pour le sechage des bas de mur peut parfois être relativement long.
Au vu de son caractère très localisé et du fait que le taux d'humidité n'est pas trop élevé, aucune intervention particulière n'est à entreprendre.
La production de chauffage est assurée par une chaudière au gaz à condensation datant de 2019. Celle-ci est régulée par un thermostat d'ambiance. Les radiateurs sont équipés de vannes manuelles.
La majeure partie des conduites situées en caves sont isolées.
La production d'eau chaude sanitaire est assurée par la chaudière assurant la production de chauffage. La production d'eau chaude se fait de façon instantanée, à la demande.
Sur base des plans fournis, le réseau d'égouttage d'évacuation des eaux devait être implanté sur la partie gauche du terrain.
Dans la réalité, au vu du positionnement des couvercles des différentes chambres de visite, le réseau semble plutôt être situé sur la partie droite de la parcelle.
Voir rapport de contrôle de l'installation électrique.
Le séjour est équipé d'un groupe split d'air conditionné air/air. Le fonctionnement du système n'a pas été vérifié.
Une pompe de relevage est située dans le garage. Celle-ci est fonctionnelle.
DATA ROOM
Nous avons mis tous les documents importants dans la date room, n’hésitez pas à télécharger ce dont vous avez besoin !
Nous avons mis tous les documents importants dans la date room, n’hésitez pas à télécharger ce dont vous avez besoin !
Besoin de crédit
Maintenant que vous êtes sûrs d’avoir fait le bon choix, calculez la valeur totale de cette acquisition (valeur du bien et frais annexes) et estimez vos besoins en crédit !
Simulation de crédit
| Prix d'achat | € |
| Rénovation | € |
| Rénovation HTVA | {{ calculeData.renovationHTVA | number:2 }} € |
| TVA | {{ calculeData.tva | number:2 }} € |
| Fonds propres | € |
| Acompte dû (disponible au compromis de vente) | {{ calculeData.prix * 0.1 | number:2 }} € |
| Reste des liquidités (disponible à l'acte) | {{ calculeData.avance | number:2 }} € |
| Crédit pont | {{ calculeData.creditPont | number:2 }} € |
| Prix de vente de votre bien existant | € |
| Solde du crédit existant | € |
| Frais d'acte d'achat | {{ calculeData.droit + calculeData.fraisNotaire | number:2 }} € |
| Droits d'enregistrement | {{ calculeData.droit | number:2 }} € |
|
Abattement
Suis-je éligible à une réduction des droits d’enregistrement ? |
|
| Frais de notaire | {{ calculeData.fraisNotaire | number:2 }} € |
| Autres frais | {{ calculeData.inscription + calculeData.fraisDossier + calculeData.autreFrais | number:2 }} € |
| Frais liés à l'acte hypothécaire | {{ calculeData.inscription | number:2 }} € |
| Frais de dossier et expertise bancaire | {{ calculeData.fraisDossier | number:2 }} € |
| Autres frais | € |
| Montant du crédit | {{ calculeData.montantCredit | number:2 }} € | |
Choix du type de crédit
| Taux | Type | CAP | Mensualité | Mensualité Min | Mensualité Max | |
|---|---|---|---|---|---|---|
| {{ tx.banque }} | {{ tx.taux | number:2 }}% | {{ tx.type }} | -{{ tx.capNeg }}%/+{{ tx.capPos }}% | {{ tx.mens | number:2 }}€ | {{ tx.min | number:2 }}€ - | {{ tx.max | number:2 }}€ - |
| Taux | Type | CAP | Mensualité | Mensualité Min | Mensualité Max | |
|---|---|---|---|---|---|---|
| {{ tx.banque }} | {{ tx.taux | number:2 }}% | {{ tx.type }} | -{{ tx.capNeg }}%/+{{ tx.capPos }}% | {{ tx.mens | number:2 }}€ | {{ tx.min | number:2 }}€ - | {{ tx.max | number:2 }}€ - |
| Taux | Type | CAP | Mensualité | Mensualité Min | Mensualité Max | |
|---|---|---|---|---|---|---|
| {{ tx.banque }} | {{ tx.taux | number:2 }}% | {{ tx.type }} | -{{ tx.capNeg }}%/+{{ tx.capPos }}% | {{ tx.mens | number:2 }}€ | {{ tx.min | number:2 }}€ - | {{ tx.max | number:2 }}€ - |
Rentabilité
Cout total de l’acquisition
| Prix d'achat | {{ calculeData.prix | number:2 }} € |
| Rénovation | + {{ calculeData.prixTransRenovation | number:2 }} € |
| Frais | + {{ calculeData.frais | number:2 }} € |
| Coût total | + {{ calculeData.frais + calculeData.prixTransRenovation + calculeData.prix | number:2 }} € |
| Fonds propres + crédit pont | {{ calculeData.totalFP+calculeData.creditPont | number:2 }} € |
| Montant du crédit | {{ calculeData.montantCredit | number:2 }} € |
| Coût total | + {{ calculeData.creditPont + calculeData.totalFP + calculeData.montantCredit | number:2 }} € |
Rentabilité sur actifs
Durée de détention année(s)
Gain réel {{ calculeData.gainReel | number:0 }} €
Rendement sur actif {{ calculeData.rendementSurActif | number:2 }} %
Revenus
| Revenu locatif annuel Brut | € |
| Charge annuelle {{ calculeData.pourcentageCharge | number:2 }}% | {{ calculeData.chargeLocatifAnnuel | number:2 }} € |
| Précompte immobilier | {{ calculeData.precomteImmo | number:2 }} € |
| Autre charge annuelle | € |
| Revenu locatif annuel net | {{ calculeData.revenuLocatifAnnuelNet | number:2 }} € |
| Total revenu locatif après {{ calculeData.dureeDetention }} année(s) tenant compte d'une inflation de % |
{{ calculeData.totalRevenuLocatif | number:2 }} € |
| Plus-value latente | {{ calculeData.pluvalueLatente | number:2 }} % |
| Plus-value du bien après {{calculeData.dureeDetention}} année(s) | {{ calculeData.pluvalueBien | number:2 }} € |
| Total revenu locatif après {{ calculeData.dureeDetention }} année(s) | {{ calculeData.totalRevenuLocatif | number:2 }} € |
| Gain brut sur le prix de base après {{ calculeData.dureeDetention }} année(s) | +{{ calculeData.gainBrut | number:2 }} € |
Charges
| Durée du crédit | {{ calculeData.duree | number:2 }} ans |
| Taux | {{ calculeData.taux | number:2 }} % |
| Mensualité | {{ calculeData.mensualite | number:2 }} € |
| Total interêts après {{calculeData.dureeDetention}} année(s) | {{ calculeData.totalInteret | number:2 }} € |
| Total frais | {{ calculeData.frais | number:2 }} € |
| Total | {{ calculeData.InteretFrais | number:2 }} € |
Gain réel
Rendement sur actif
Cash flow
| Année | Coût | Revenu locatif | Gain |
|---|---|---|---|
| {{ $index }} | {{ ch.payment | number:2 }} € | {{ ch.revenuLocatif | number:2 }} € | {{ - ch.fondPropre | number:2 }} € |
Av. Louise 433 Louizalaan 1050 Bruxelles - Brussel
Drève Richelle, 96 - 1410 Waterloo