Suis-je éligible à une réduction des droits d’enregistrement ?
Hannetons 5
PRIX : 845 000,00 €
Type: maison | Région: Bruxelle | Commune: Watermael Boitsfort
Dans une rue calme de Boitsfort dans le Quartier des 3 Tilleuls, cette maison lumineuse a été complètement rénovée en 2018. Elle vous propose : Au rez-de-chaussée le hall d'entrée avec vestiaire et WC invités, le garage et la buanderie. Au rez-de-jardin, Cuisine full équipée ouverte sur le vaste séjour lumineux. Le jardin plat est bordé de haies et d'arbres palissés pour en profiter pleinement à l'abri des regards. Au 1er étage, 2 grandes chambres, un bureau (7,5m²) et la salle de bain avec douche et WC. Au 2e étage: Vaste chambre parentale avec dressing, coin toilette et toutes les techniques pour y installer une salle de bains et en faire ainsi une master bedroom. Energies : PEB E - . 11 panneaux solaires photovoltaïques - Chaudière au gaz à condensation - Isolation des toitures - Châssis en bois à double vitrage. A proximité : Royal Racing Club de Boitsfort, les 3 Tilleuls. Mobilité : STIB : Bus STIB 95 - Gares SNCB de Watermael et Arcades.
Surface habitable: 172 m²
Surface totale: 197 m²
Jardin: oui
Chambres: 4
Salle de bain: 1
Parking Extérieures: 2
Garage: 1
Vidéo
Découvrez le bien en visualisant cette vidéo
VISITE VIRTUELLE
Vous voulez en voir plus ? Visitez le bien comme si vous y étiez à travers cette visite virtuelle
HOME STAGING
Vous souhaitez réaménager ce bien pour le faire correspondre à votre bien idéal ? Découvrez nos propositions de home staging !
Before
After
Localisation
Ce bien vous correspond ? Découvrez maintenant si sa localisation vous convient !
Commerces
Pharmacies
Restaurants
Boulangeries
Crèches
Parcs
Écoles
Universités
Déplacements
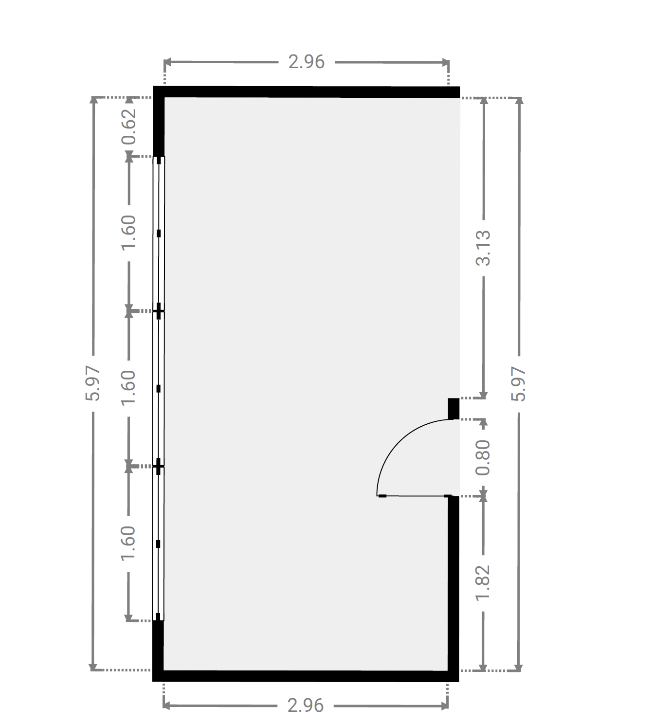
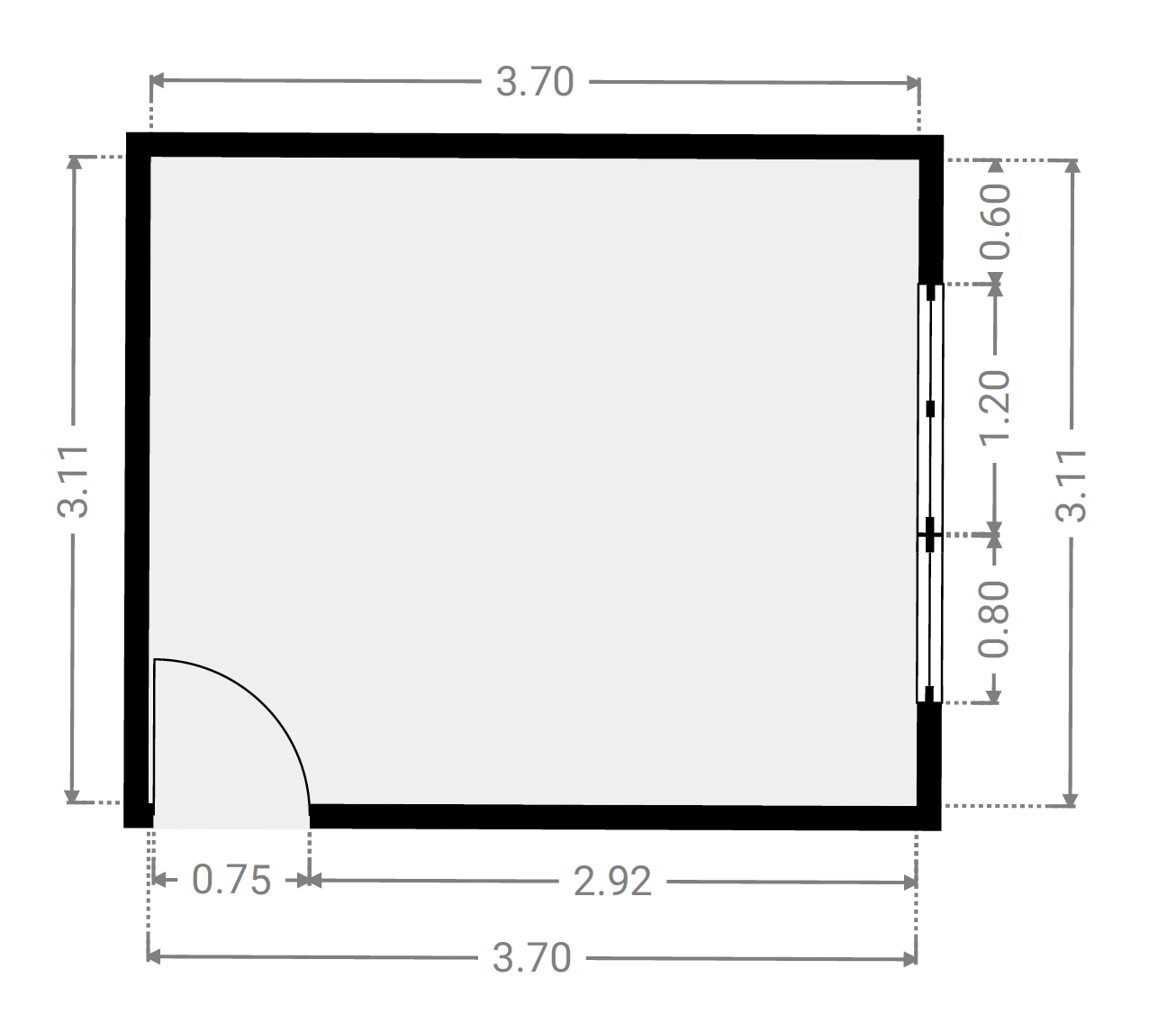
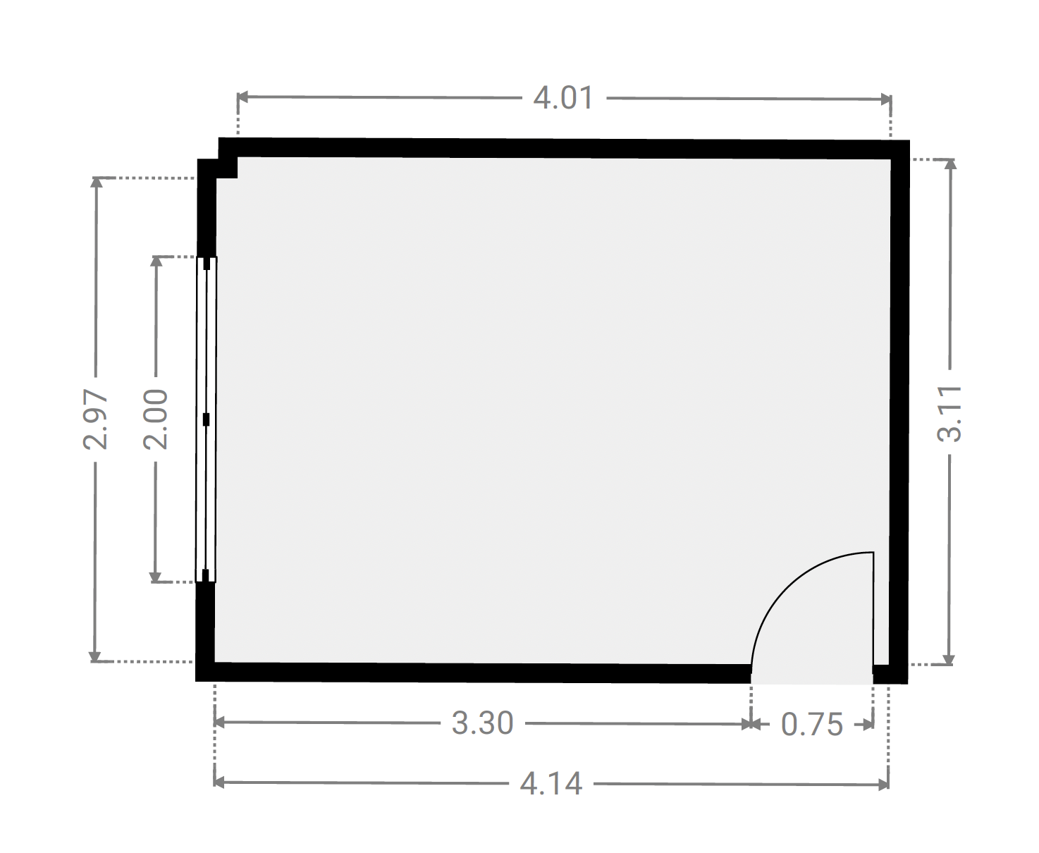
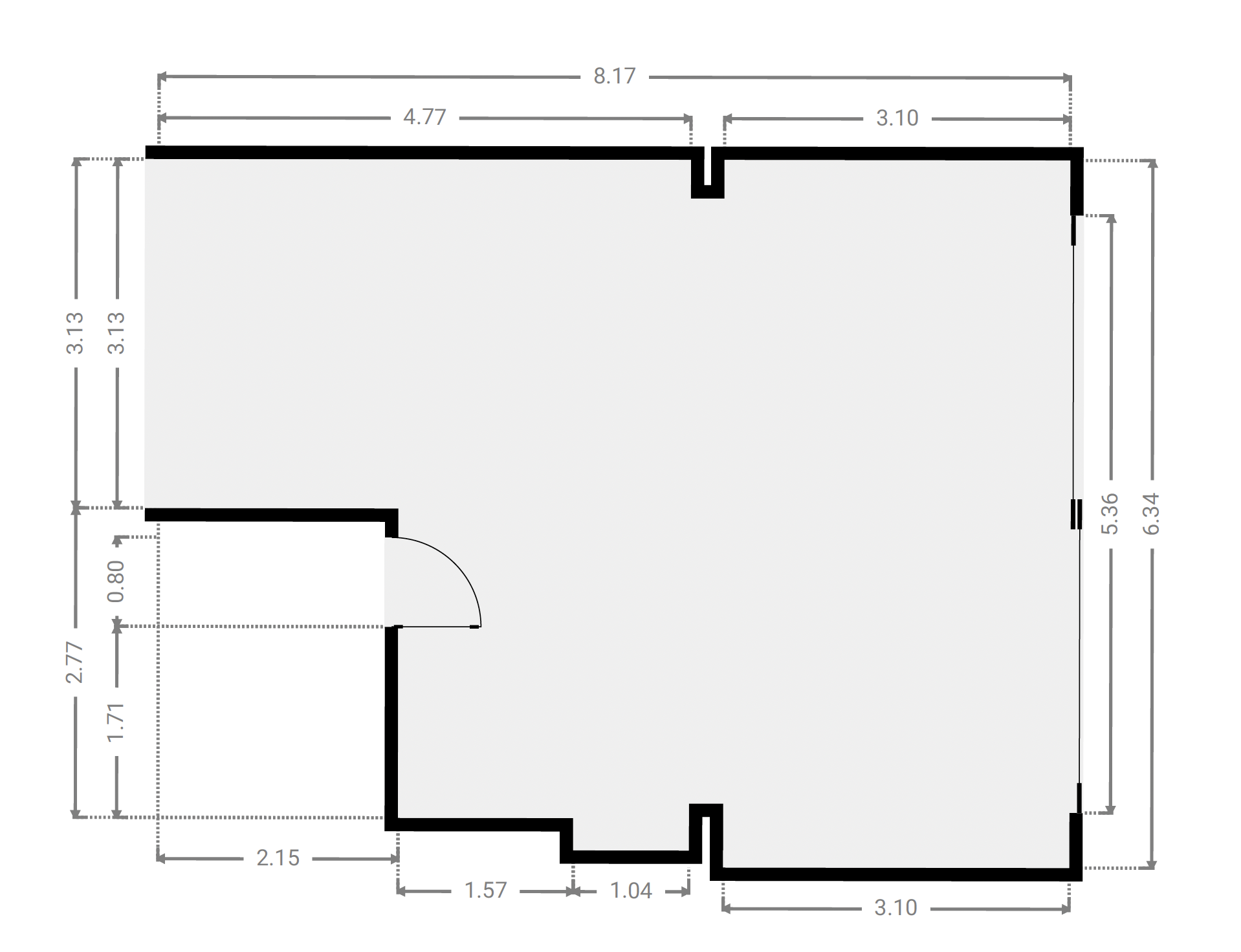
Plans intérieurs
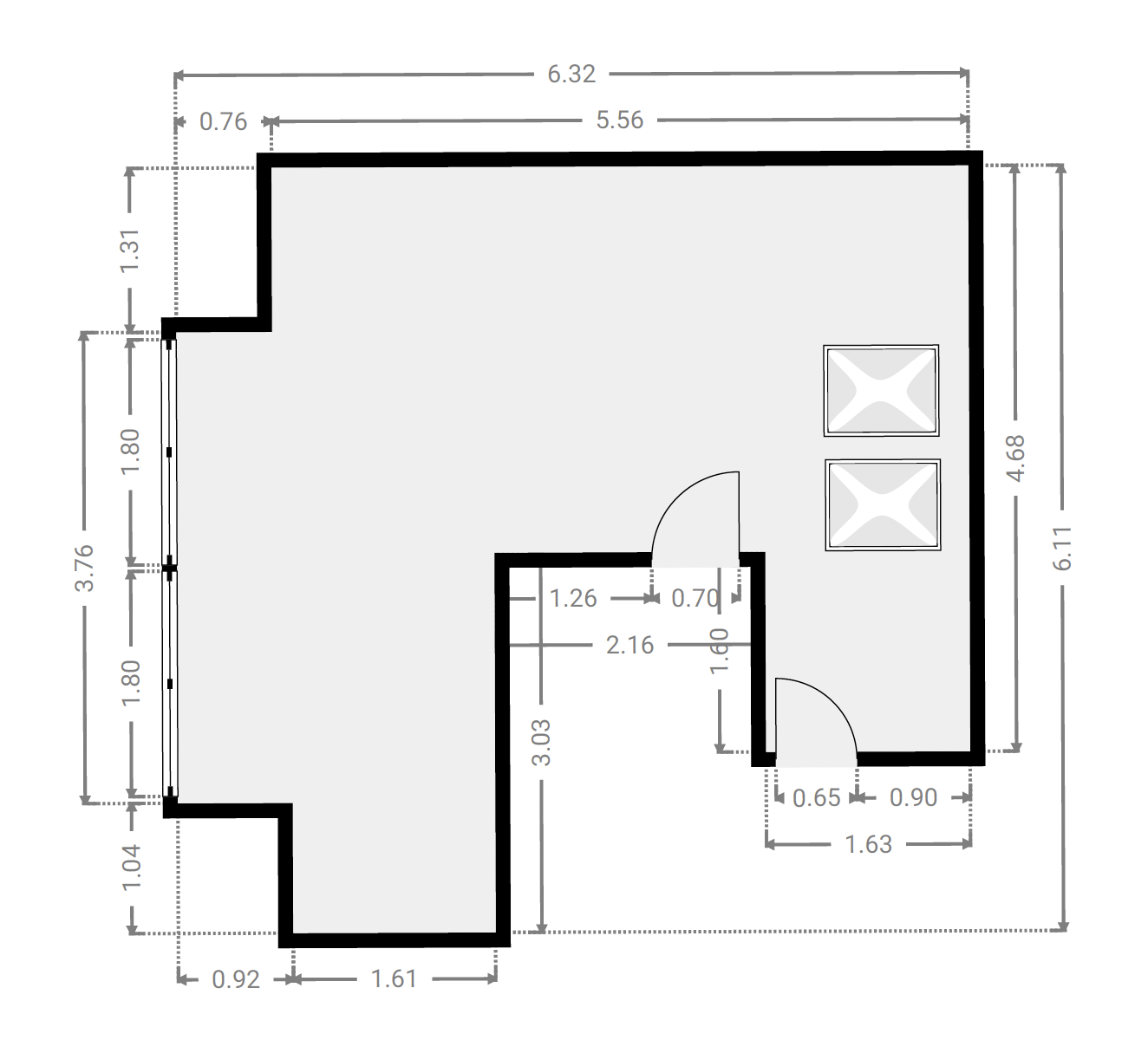
Rez-de-chaussée
SUPERFICIE HABITABLE CORRESPOND À L'ADDITION DES MESURES NETTES DE TOUTES LES PIÈCES, SANS COMPTER LES MURS, LES PASSAGES ENTRE LES PIÈCES ET LES GAINES TECHNIQUES.
SURFACE HABITABLE : 28.94 m² | PIÈCE(S) : 5
1x Garage
1x Couloir
1x W.C
1x Hall
1x Buanderie
Garage
SURFACE : 15.99 m²
Couloir
SURFACE : 1.76 m²
W.C
SURFACE : 1.36 m²
Hall
SURFACE : 9.49 m²
Buanderie
SURFACE : 16.35 m²
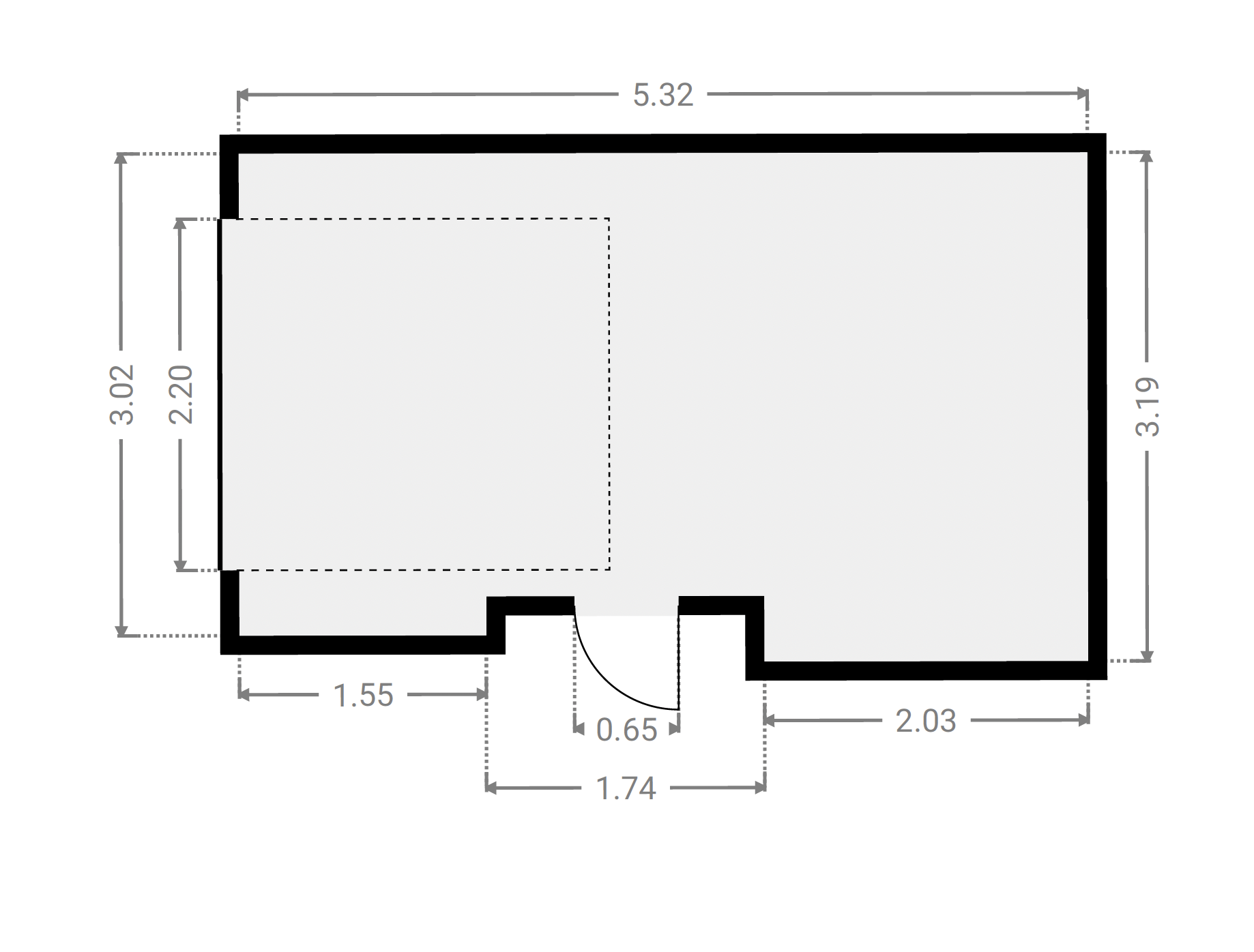
1er étage
SUPERFICIE HABITABLE CORRESPOND À L'ADDITION DES MESURES NETTES DE TOUTES LES PIÈCES, SANS COMPTER LES MURS,LES PASSAGES ENTRE LES PIÈCES ET LES GAINES TECHNIQUES.
SURFACE HABITABLE : 66.79 m² | PIÈCE(S) : 3
1x Cuisine
1x Couloir
1x Séjour
Cuisine
SURFACE : 17.67 m²
Couloir
SURFACE : 5.39 m²
Séjour
SURFACE : 43.75 m²
2e étage
SUPERFICIE HABITABLE CORRESPOND À L'ADDITION DES MESURES NETTES DE TOUTES LES PIÈCES, SANS COMPTER LES MURS,LES PASSAGES ENTRE LES PIÈCES ET LES GAINES TECHNIQUES.
SURFACE HABITABLE : 45.38 m² | PIÈCE(S) : 5
1x Couloir
1x S.D.B
3x Chambre(s)
Couloir
SURFACE : 5.39 m²
S.D.B
SURFACE : 8.35 m²
Chambre 1
SURFACE : 12.85 m²
Chambre 2
SURFACE : 11.49 m²
Chambre 3
SURFACE : 7.32 m²
3e étage
SUPERFICIE HABITABLE CORRESPOND À L'ADDITION DES MESURES NETTES DE TOUTES LES PIÈCES, SANS COMPTER LES MURS,LES PASSAGES ENTRE LES PIÈCES ET LES GAINES TECHNIQUES.
SURFACE HABITABLE : 31.16 m² | PIÈCE(S) : 3
1x Couloir
1x Chambre
1x W.C
Couloir
SURFACE : 2.3 m²
Chambre 4
SURFACE : 27.77 m²
W.C
SURFACE : 1.1 m²
RECHERCHE CADASTRALE
Vous souhaitez mieux connaître votre parcelle et connaître la surface dont vous jouirez en achetant ce bien, alors consulter le cadastre est nécessaire !
État des sols
La pollution du sol a un impact sur l'environnement et sur la santé, les risques d’inondation ont un impact sur votre qualité de vie… Consultez les données relatives à ce bien pour en avoir le cœur net !
ÉTAT DE LA POLLUTION DES SOLS
Aucune remarque particulière pour la parcelle D220r2/3
Source : Cliquez-ici
Légende :
ZONE INONDABLE
Aucune remarque particulière pour la parcelle D220r2/3
Source : Cliquez-ici
Légende :
Certificats
Informez-vous sur la performance énergétique de ce bien et assurez-vous que ses installations électriques sont bien aux normes !
PERFORMANCE ÉNERGÉTIQUE
Économe
Très énergivore
CERTIFICAT ÉLECTRIQUE
PROCES VERBAL D’EXAMEN DE CONFORMITE ET/OU DE VISITE DE CONTROLE D’UNE INSTALLATION ELECTRIQUE BASSE TENSION
La nouvelle installationConforme
Agent
visiteur
AKOPIEN KARO
Date
de certification
30/06/2020
Visite de contrôle
à effectuer avant le
30/06/2045
DATA ROOM
Nous avons mis tous les documents importants dans la date room, n’hésitez pas à télécharger ce dont vous avez besoin !
Nous avons mis tous les documents importants dans la date room, n’hésitez pas à télécharger ce dont vous avez besoin !
Besoin de crédit
Maintenant que vous êtes sûrs d’avoir fait le bon choix, calculez la valeur totale de cette acquisition (valeur du bien et frais annexes) et estimez vos besoins en crédit !
Simulation de crédit
| Prix d'achat | € |
| Rénovation | € |
| Rénovation HTVA | {{ calculeData.renovationHTVA | number:2 }} € |
| TVA | {{ calculeData.tva | number:2 }} € |
| Fonds propres | € |
| Acompte dû (disponible au compromis de vente) | {{ calculeData.prix * 0.1 | number:2 }} € |
| Reste des liquidités (disponible à l'acte) | {{ calculeData.avance | number:2 }} € |
| Crédit pont | {{ calculeData.creditPont | number:2 }} € |
| Prix de vente de votre bien existant | € |
| Solde du crédit existant | € |
| Frais d'acte d'achat | {{ calculeData.droit + calculeData.fraisNotaire | number:2 }} € |
| Droits d'enregistrement | {{ calculeData.droit | number:2 }} € |
|
Abattement
Suis-je éligible à une réduction des droits d’enregistrement ? |
|
| Frais de notaire | {{ calculeData.fraisNotaire | number:2 }} € |
| Autres frais | {{ calculeData.inscription + calculeData.fraisDossier + calculeData.autreFrais | number:2 }} € |
| Frais liés à l'acte hypothécaire | {{ calculeData.inscription | number:2 }} € |
| Frais de dossier et expertise bancaire | {{ calculeData.fraisDossier | number:2 }} € |
| Autres frais | € |
| Montant du crédit | {{ calculeData.montantCredit | number:2 }} € | |
La présente simulation se base sur un taux d’intérêt du 28/09/2023. Ce calcul est indicatif et sujet à changement.
Choix du type de crédit
| Taux | Type | CAP | Mensualité | Mensualité Min | Mensualité Max | |
|---|---|---|---|---|---|---|
| {{ tx.banque }} | {{ tx.taux | number:2 }}% | {{ tx.type }} | -{{ tx.capNeg }}%/+{{ tx.capPos }}% | {{ tx.mens | number:2 }}€ | {{ tx.min | number:2 }}€ | {{ tx.max | number:2 }}€ |
| Taux | Type | CAP | Mensualité | Mensualité Min | Mensualité Max | |
|---|---|---|---|---|---|---|
| {{ tx.banque }} | {{ tx.taux | number:2 }}% | {{ tx.type }} | -{{ tx.capNeg }}%/+{{ tx.capPos }}% | {{ tx.mens | number:2 }}€ | {{ tx.min | number:2 }}€ | {{ tx.max | number:2 }}€ |
| Taux | Type | CAP | Mensualité | Mensualité Min | Mensualité Max | |
|---|---|---|---|---|---|---|
| {{ tx.banque }} | {{ tx.taux | number:2 }}% | {{ tx.type }} | -{{ tx.capNeg }}%/+{{ tx.capPos }}% | {{ tx.mens | number:2 }}€ | {{ tx.min | number:2 }}€ | {{ tx.max | number:2 }}€ |
Rentabilité
Cout total de l’acquisition
| Prix d'achat | {{ calculeData.prix | number:2 }} € |
| Rénovation | + {{ calculeData.prixTransRenovation | number:2 }} € |
| Frais | + {{ calculeData.frais | number:2 }} € |
| Coût total | + {{ calculeData.frais + calculeData.prixTransRenovation + calculeData.prix | number:2 }} € |
| Fonds propres + crédit pont | {{ calculeData.totalFP+calculeData.creditPont | number:2 }} € |
| Montant du crédit | {{ calculeData.montantCredit | number:2 }} € |
| Coût total | + {{ calculeData.creditPont + calculeData.totalFP + calculeData.montantCredit | number:2 }} € |
Rentabilité sur actifs
Durée de détention année(s)
Gain réel {{ calculeData.gainReel | number:0 }} €
Rendement sur actif {{ calculeData.rendementSurActif | number:2 }} %
Revenus
| Revenu locatif annuel Brut | € |
| Charge annuelle {{ calculeData.pourcentageCharge | number:2 }}% | {{ calculeData.chargeLocatifAnnuel | number:2 }} € |
| Précompte immobilier | {{ calculeData.precomteImmo | number:2 }} € |
| Autre charge annuelle | € |
| Revenu locatif annuel net | {{ calculeData.revenuLocatifAnnuelNet | number:2 }} € |
| Total revenu locatif après {{ calculeData.dureeDetention }} année(s) tenant compte d'une inflation de % |
{{ calculeData.totalRevenuLocatif | number:2 }} € |
| Plus-value latente | {{ calculeData.pluvalueLatente | number:2 }} % |
| Plus-value du bien après {{calculeData.dureeDetention}} année(s) | {{ calculeData.pluvalueBien | number:2 }} € |
| Total revenu locatif après {{ calculeData.dureeDetention }} année(s) | {{ calculeData.totalRevenuLocatif | number:2 }} € |
| Gain brut sur le prix de base après {{ calculeData.dureeDetention }} année(s) | +{{ calculeData.gainBrut | number:2 }} € |
Charges
| Durée du crédit | {{ calculeData.duree | number:2 }} ans |
| Taux | {{ calculeData.taux | number:2 }} % |
| Mensualité | {{ calculeData.mensualite | number:2 }} € |
| Total interêts après {{calculeData.dureeDetention}} année(s) | {{ calculeData.totalInteret | number:2 }} € |
| Total frais | {{ calculeData.frais | number:2 }} € |
| Total | {{ calculeData.InteretFrais | number:2 }} € |
Gain réel
Rendement sur actif
Cash flow
| Année | Coût | Revenu locatif | Gain |
|---|---|---|---|
| {{ $index }} | {{ ch.payment | number:2 }} € | {{ ch.revenuLocatif | number:2 }} € | {{ - ch.fondPropre | number:2 }} € |
Av. Louise 433 Louizalaan 1050 Bruxelles - Brussel
Drève Richelle, 96 - 1410 Waterloo