Suis-je éligible à une réduction des droits d’enregistrement ?
Hamoir 52
PRIX : 15500.00€
Type: Maison | Région: Bruxelles | Commune: Schaerbeek
Situé à 500m de la gare de Schaerbeek, By the Way vous propose cet immeuble à appartements et son vaste atelier en arrière cour. Composé de 4 appartements dont un duplex aux derniers étage, le bâtiment est structuré comme suite. Au rez-de-chaussée, 1 appartement de +/- 90 m² avec deux chambres et une salle de bain. Une petite terrasse le prolonge dans la cour. Au 1er étage, 1 appartement de charme avec une bonne hauteur sous plafond se compose de deux chambres et une salle de bain dans la suite parentale. Une petite terrasse est accessible par la cuisine. Au 2e étage, 1 appartement de +/- 125 m², similaire à celui du 1er. La fin du bâtiment se compose, au 3ème et au 4ème étage, d'un duplex de +/- 210 m² avec cinq chambres et deux salles de bain. La surface brute est de 1327,23 m² et la surface habitable est de 547,44 m². Les PEB varient entre C et G selon les différentes unités. A l'arrière de la cour, un atelier d'une surface de +/- 690 m² s'étend sur trois étages . Actuellement 100% loué ! Des baux sont en cours et l'atelier sera libre d'occupation à partir de décembre. Rendement locatif brut actuel : 5.62%. PEB C. Revenu cadastral: 5108€.
Surface totale: 634 m²
Surface totale(salle de sport): 694 m²
Chambres: 11
Salles de bain: 4
Salle de douche: 1
Terrasse: oui
Caves: 6
salle de sport
Vidéo
Découvrez le bien en visualisant cette vidéo
Localisation
Ce bien vous correspond ? Découvrez maintenant si sa localisation vous convient !
Commerces
Pharmacies
Restaurants
Boulangeries
Crèches
Parcs
Écoles
Universités
Déplacements
Plans intérieurs
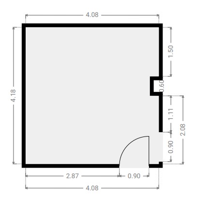
Sous-sol
SURFACE TOTALE : 86.01 m² | SURFACE HABITABLE : 0.00 m² | PIÈCE(S) : 9
2x Couloir(s)
6x Cave(s)
1x Escalier
Couloir
SURFACE : 7.47 m²
Cave 1
SURFACE : 16.86 m²
Cave 2
SURFACE : 10.68 m²
Couloir
SURFACE : 11.25 m²
Escalier
SURFACE : 5.36 m²
Cave 3
SURFACE : 9.4 m²
Cave 6
SURFACE : 8.72 m²
Cave 4
SURFACE : 6.33 m²
Cave 5
SURFACE : 6.33 m²
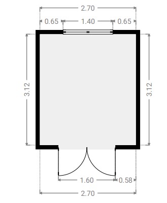
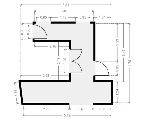
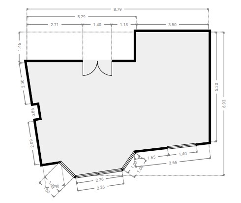
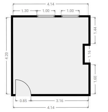
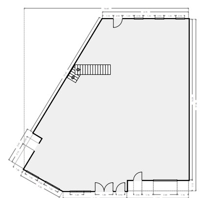
Rez-de-chaussée
SURFACE TOTALE : 88.15 m² | SURFACE HABITABLE : 88.15 m² | PIÈCE(S) : 9
1x Hall d’entrée
1x Escalier
1x Couloir
1x S.D.B 1
1x Cuisine 1
1x Séjour 1
2x Chambre(s)
1x W.C
Hall d’entrée
SURFACE : 11.51 m²
Escalier
SURFACE : 6.06 m²
Couloir
SURFACE : 7.02 m²
S.D.B 1
SURFACE : 4.38 m²
Cuisine 1
SURFACE : 6.99 m²
Séjour 1
SURFACE : 17.87 m²
Chambre 1
SURFACE : 17 m²
Chambre 2
SURFACE : 11.21 m²
W.C
SURFACE : 1.36 m²
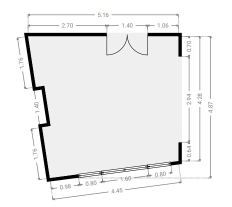
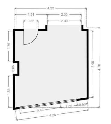
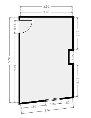
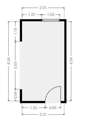
1er étage
SURFACE TOTALE : 125.87 m² | SURFACE HABITABLE : 125.87 m² | PIÈCE(S) : 10
1x Couloir
1x Escalier
1x Chambre(s)
1x Salle à manger 1
1x Cuisine 2
1x W.C
1x Séjour 2
1x S.D.B 2
1x Dressing 1
Couloir
SURFACE : 12.06 m²
Escalier
SURFACE : 6.06 m²
Chambre 3
SURFACE : 20.41 m²
Chambre 4
SURFACE : 19.28 m²
Salle à manger 1
SURFACE : 10.01 m²
Cuisine 2
SURFACE : 10.75 m²
W.C
SURFACE : 2.18 m²
Séjour 2
SURFACE : 24.08 m²
S.D.B 2
SURFACE : 5.32 m²
Dressing 1
SURFACE : 8.42 m²
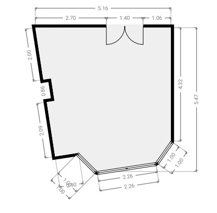
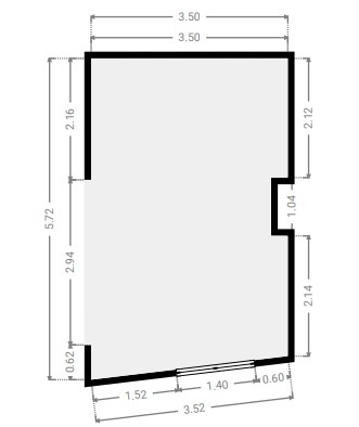
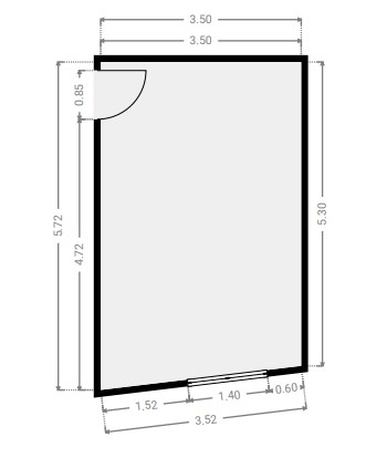
2e étage
SURFACE TOTALE : 123.02 m² | SURFACE HABITABLE : 123.02 m² | PIÈCE(S) : 9
1x Couloir
1x Escalier
2x Chambre(s)
1x Cuisine 3
1x W.C
1x Séjour 3
1x S.D.B 3
1x Dressing 2
Couloir
SURFACE : 13.19 m²
Escalier
SURFACE : 6.06 m²
Chambre 6
SURFACE : 20.41 m²
Chambre 5
SURFACE : 10.01 m²
Cuisine 3
SURFACE : 10.75 m²
W.C
SURFACE : 1.05 m²
Séjour 3
SURFACE : 43.9 m²
S.D.B 3
SURFACE : 5.32 m²
Dressing 2
SURFACE : 8.42 m²
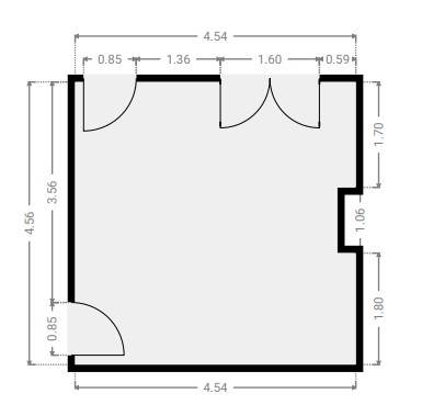
3e étage
SURFACE TOTALE : 123.02 m² | SURFACE HABITABLE : 123.02 m² | PIÈCE(S) : 10
1x Couloir
1x Escalier
2x Chambre(s)
1x Séjour 4
1x Cuisine 4
1x W.C
1x Salle à manger 2
1x S.D.B 4
1x Bureau
Couloir
SURFACE : 13.19 m²
Escalier
SURFACE : 6.06 m²
Chambre 8
SURFACE : 20.37 m²
Séjour 4
SURFACE : 18.97 m²
Chambre 7
SURFACE : 10.01 m²
Cuisine 4
SURFACE : 10.75 m²
W.C
SURFACE : 1.04 m²
Salle à manger 2
SURFACE : 21.6 m²
S.D.B 4
SURFACE : 5.32 m²
Bureau
SURFACE : 8.42 m²
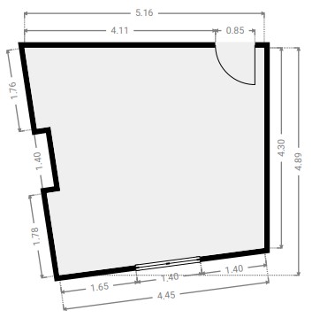
4e étage
SURFACE TOTALE : 84.48 m² | SURFACE HABITABLE : 84.48 m² | PIÈCE(S) : 5
1x Couloir
3x Chambre(s)
1x S.D.D
Couloir
SURFACE : 8.87 m²
Chambre 9
SURFACE : 20.37 m²
Chambre 10
SURFACE : 18.91 m²
S.D.D
SURFACE : 12.65 m²
Chambre 11
SURFACE : 21.68 m²
Plans intérieurs
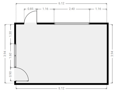
Sous-sol
SURFACE TOTALE : 203.9 m² | SURFACE HABITABLE : 220.14 m² | PIÈCE(S) : 1
1x Salle 1
Salle 1
SURFACE : 203.92 m²
Rez-de-chaussée
SURFACE TOTALE : 264.76 m² | SURFACE HABITABLE : 286.16 m² | PIÈCE(S) : 5
1x Salle 2
1x Bureau (accueil)
1x Couloir
1x W.C
1x Rangement
Salle 2
SURFACE : 222.21 m²
Bureau (accueil)
SURFACE : 24.09 m²
Couloir
SURFACE : 1.74 m²
W.C
SURFACE : 1.52 m²
Rangement
SURFACE : 15.26 m²
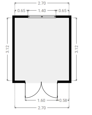
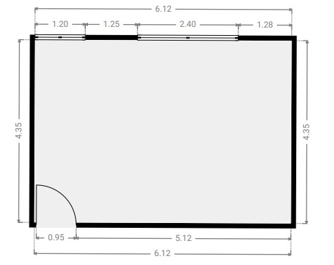
1er étage
SURFACE TOTALE : 219.06 m² | SURFACE HABITABLE : 240.08 m² | PIÈCE(S) : 5
1x Salle 3
1x Couloir
1x W.C
2x Vestiaire(s)
Salle 3
SURFACE : 173.13 m²
Couloir
SURFACE : 1.74 m²
W.C
SURFACE : 1.52 m²
Vestiaire 1
SURFACE : 16.08 m²
Vestiaire 2
SURFACE : 26.64 m²
RECHERCHE CADASTRALE
Vous souhaitez mieux connaître votre parcelle et connaître la surface dont vous jouirez en achetant ce bien, alors consulter le cadastre est nécessaire !
État des sols
La pollution du sol a un impact sur l'environnement et sur la
santé, les risques d’inondation ont un impact sur votre qualité de vie… Consultez les données
relatives à ce bien pour en avoir le cœur net !
ÉTAT DE LA POLLUTION DES SOLS
Aucune remarque particulière pour la parcelle A88n8
Source : Cliquez-ici
Légende :
ZONE INONDABLE
Aucune remarque particulière pour la parcelle A88n8
Source : Cliquez-ici
Légende :
Certificats
Informez-vous sur la performance énergétique de ce bien et assurez-vous que ses installations électriques sont bien aux normes !
PERFORMANCE ÉNERGÉTIQUE
Économe
Très énergivore
CERTIFICAT ÉLECTRIQUE
PROCES VERBAL D’EXAMEN DE CONFORMITE ET/OU DE VISITE DE CONTROLE D’UNE INSTALLATION ELECTRIQUE BASSE TENSION
La nouvelle installation Conforme
DATA ROOM
Nous avons mis tous les documents importants dans la date room, n’hésitez pas à télécharger ce dont vous avez besoin !
Nous avons mis tous les documents importants dans la date room, n’hésitez pas à télécharger ce dont vous avez besoin !
Besoin de crédit
Maintenant que vous êtes sûrs d’avoir fait le bon choix, calculez la valeur totale de cette acquisition (valeur du bien et frais annexes) et estimez vos besoins en crédit !
Simulation de crédit
| Prix d'achat | € |
| Rénovation | € |
| Rénovation HTVA | {{ calculeData.renovationHTVA | number:2 }} € |
| TVA | {{ calculeData.tva | number:2 }} € |
| Fonds propres | € |
| Acompte dû (disponible au compromis de vente) | {{ calculeData.prix * 0.1 | number:2 }} € |
| Reste des liquidités (disponible à l'acte) | {{ calculeData.avance | number:2 }} € |
| Crédit pont | {{ calculeData.creditPont | number:2 }} € |
| Prix de vente de votre bien existant | € |
| Solde du crédit existant | € |
| Frais d'acte d'achat | {{ calculeData.droit + calculeData.fraisNotaire | number:2 }} € |
| Droits d'enregistrement | {{ calculeData.droit | number:2 }} € |
|
Abattement
Suis-je éligible à une réduction des droits d’enregistrement ? |
|
| Frais de notaire | {{ calculeData.fraisNotaire | number:2 }} € |
| Autres frais | {{ calculeData.inscription + calculeData.fraisDossier + calculeData.autreFrais | number:2 }} € |
| Frais liés à l'acte hypothécaire | {{ calculeData.inscription | number:2 }} € |
| Frais de dossier et expertise bancaire | {{ calculeData.fraisDossier | number:2 }} € |
| Autres frais | € |
| Montant du crédit | {{ calculeData.montantCredit | number:2 }} € | |
La présente simulation se base sur un taux d’intérêt du 09/09/2024. Ce calcul est indicatif et sujet à changement.
Choix du type de crédit
| Taux | Type | CAP | Mensualité | Mensualité Min | Mensualité Max | |
|---|---|---|---|---|---|---|
| {{ tx.banque }} {{ $index+1 }} | {{ tx.taux | number:2 }}% | {{ tx.type }} | -{{ tx.capNeg }}%/+{{ tx.capPos }}% | {{ tx.mens | number:2 }}€ | {{ tx.min | number:2 }}€ | {{ tx.max | number:2 }}€ |
| Taux | Type | CAP | Mensualité | Mensualité Min | Mensualité Max | |
|---|---|---|---|---|---|---|
| {{ tx.banque }} {{ $index+1 }} | {{ tx.taux | number:2 }}% | {{ tx.type }} | -{{ tx.capNeg }}%/+{{ tx.capPos }}% | {{ tx.mens | number:2 }}€ | {{ tx.min | number:2 }}€ | {{ tx.max | number:2 }}€ |
| Taux | Type | CAP | Mensualité | Mensualité Min | Mensualité Max | |
|---|---|---|---|---|---|---|
| {{ tx.banque }} {{ $index+1 }} | {{ tx.taux | number:2 }}% | {{ tx.type }} | -{{ tx.capNeg }}%/+{{ tx.capPos }}% | {{ tx.mens | number:2 }}€ | {{ tx.min | number:2 }}€ | {{ tx.max | number:2 }}€ |
Rentabilité
Cout total de l’acquisition
| Prix d'achat | {{ calculeData.prix | number:2 }} € |
| Rénovation | + {{ calculeData.prixTransRenovation | number:2 }} € |
| Frais | + {{ calculeData.frais | number:2 }} € |
| Coût total | + {{ calculeData.frais + calculeData.prixTransRenovation + calculeData.prix | number:2 }} € |
| Fonds propres + crédit pont | {{ calculeData.totalFP+calculeData.creditPont | number:2 }} € |
| Montant du crédit | {{ calculeData.montantCredit | number:2 }} € |
| Coût total | + {{ calculeData.creditPont + calculeData.totalFP + calculeData.montantCredit | number:2 }} € |
Rentabilité sur actifs
Durée de détention année(s)
Gain réel {{ calculeData.gainReel | number:0 }} €
Rendement sur actif {{ calculeData.rendementSurActif | number:2 }} %
Revenus
| Revenu locatif annuel Brut | € |
| Charge annuelle {{ calculeData.pourcentageCharge | number:2 }}% | {{ calculeData.chargeLocatifAnnuel | number:2 }} € |
| Précompte immobilier | {{ calculeData.precomteImmo | number:2 }} € |
| Autre charge annuelle | € |
| Revenu locatif annuel net | {{ calculeData.revenuLocatifAnnuelNet | number:2 }} € |
| Total revenu locatif après {{ calculeData.dureeDetention }} année(s) tenant compte d'une inflation de % |
{{ calculeData.totalRevenuLocatif | number:2 }} € |
| Plus-value latente | {{ calculeData.pluvalueLatente | number:2 }} % |
| Plus-value du bien après {{calculeData.dureeDetention}} année(s) | {{ calculeData.pluvalueBien | number:2 }} € |
| Total revenu locatif après {{ calculeData.dureeDetention }} année(s) | {{ calculeData.totalRevenuLocatif | number:2 }} € |
| Gain brut sur le prix de base après {{ calculeData.dureeDetention }} année(s) | +{{ calculeData.gainBrut | number:2 }} € |
Charges
| Durée du crédit | {{ calculeData.duree | number:2 }} ans |
| Taux | {{ calculeData.taux | number:2 }} % |
| Mensualité | {{ calculeData.mensualite | number:2 }} € |
| Total interêts après {{calculeData.dureeDetention}} année(s) | {{ calculeData.totalInteret | number:2 }} € |
| Total frais | {{ calculeData.frais | number:2 }} € |
| Total | {{ calculeData.InteretFrais | number:2 }} € |
Gain réel
Rendement sur actif
Cash flow
| Année | Coût | Revenu locatif | Gain |
|---|---|---|---|
| {{ $index }} | {{ ch.payment | number:2 }} € | {{ ch.revenuLocatif | number:2 }} € | {{ - ch.fondPropre | number:2 }} € |
Av. Louise 461 1050 Bruxelles - 02 648 01 20
Drève Richelle 96 1410 Waterloo - 02 354 29 39
Av. Prekelinden 83 1200 Woluwe-St-Lambert - 02 734 00 36