Suis-je éligible à une réduction des droits d’enregistrement ?
Guidon
PRIJS : 525 000,00 €
Type: Maison | Regio: Bruxelles | Gemeente: Anderlecht
Karaktervol herenhuis in Art Deco stijl. De authenticiteit is bewaard gebleven met zijn glas-in-loodramen, lijstwerken en hoge plafonds. Woonkamer, keuken en eetkamer met tuin op de begane grond. 4 slaapkamers maar 6 mogelijk met een paar aanpassingen. 2 badkamers. Kelder die bijna de hele bebouwde oppervlakte beslaat en een zolder die verbouwd kan worden. Op 1,7km van de Ring van Brussel. Winkels, openbaar vervoer en scholen in de buurt.
Totale Oppervlakte: 320 M²
Slaapkamers: 4
badkamer: 2
Terras :2
Zolder: 1
Kelders: 3
Kantoor: 1
Tuin: ja
VIDEO PRESENTATIE
Découvrez le bien en visualisant cette vidéo
VIRTUEEL BEZOEK
Vous voulez en voir plus ? Visitez le bien comme si vous y étiez à travers cette visite virtuelle
OMGEVING
Ce bien vous correspond ? Découvrez maintenant si sa localisation vous convient !
Supermarkt
Apotheek
Restaurant
Bakkerij
Kinderdagverblijf
Park
Scholen
Universiteiten
Verplaatsingen
INTERIEUR PLANNEN
ondergrond
TOTALE OPPERVLAKTE : 43.02 m² | WOONRUIMTE : 43.02 m² | kAMERS : 4
1x Corridor
3x kelder(s)
Corridor
OPPERVLAK : 14.99 m²
kelder 3
OPPERVLAK : 10.62 m²
kelder 2
OPPERVLAK : 3.76 m²
kelder 1
OPPERVLAK : 13.68 m²
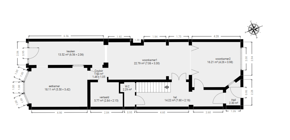
GELIJKVLOERS
TOTALE OPPERVLAKTE : 96.69 m² | WOONRUIMTE : 96.69 m² | kAMERS : 9
2x Corridor(s)
1x W.C
2x Woonkamer(s)
1x Opslag
1x Eetkamer
1x Keuken
1x Hal
Corridor
OPPERVLAK : 14.22 m²
W.C
OPPERVLAK : 2.29 m²
Woonkamer 2
OPPERVLAK : 16.21 m²
Woonkamer 1
OPPERVLAK : 22.79 m²
Opslag
OPPERVLAK : 5.77 m²
Corridor
OPPERVLAK : 1.53 m²
Eetkamer
OPPERVLAK : 18.11 m²
Keuken
OPPERVLAK : 13.52 m²
Hal
OPPERVLAK : 2.3 m²
1E VERDIEPING
TOTALE OPPERVLAKTE : 84.43 m² | WOONRUIMTE : 84.43 m² | kAMERS : 6
2x Corridor(s)
1x kantoor
1x Badkamer
1x Wasruimte
1x Slaapkamer
Corridor
OPPERVLAK : 12.36 m²
kantoor
OPPERVLAK : 23.27 m²
Badkamer 1
OPPERVLAK : 25.55 m²
Corridor
OPPERVLAK : 1.45 m²
Wasruimte
OPPERVLAK : 5.82 m²
Slaapkamer 1
OPPERVLAK : 16 m²
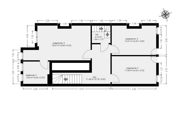
2E VERDIEPING
TOTALE OPPERVLAKTE : 63.4 m² | WOONRUIMTE : 63.4 m² | kAMERS : 6
2x Corridor(s)
3x Slaapkamer(s)
1x Badkamer
Corridor
OPPERVLAK : 11.48 m²
Slaapkamer 4
OPPERVLAK : 11.98 m²
Slaapkamer 3
OPPERVLAK : 12.31 m²
Corridor
OPPERVLAK : 3.16 m²
Slaapkamer 2
OPPERVLAK : 18.97 m²
Badkamer 2
OPPERVLAK : 5.54 m²
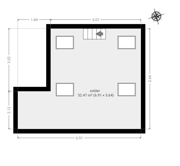
3E VERDIEPING
TOTALE OPPERVLAKTE : 32.48 m² | WOONRUIMTE : 32.48 m² | kAMERS : 1
1x Zolder
Zolder
OPPERVLAK : 32.48 m²
KADASTRAAL ZOEKEN
Vous souhaitez mieux connaître votre parcelle et connaître la surface dont vous jouirez en achetant ce bien, alors consulter le cadastre est nécessaire !
BODEMGESTELDHEID
La pollution du sol a un impact sur l'environnement et sur la santé, les risques d’inondation ont un impact sur votre qualité de vie… Consultez les données relatives à ce bien pour en avoir le cœur net !
STAAT VAN BODEMVERONTREINIGING
Geen bijzondere opmerkingen voor perceel A611m2
Bron : Klik hier
Legende :
Overstromingsgebied
Geen overstroming gemodelleerd voor perceel A611m2
Bron : Klik hier
Legende :
CERTIFICATEN
Informez-vous sur la performance énergétique de ce bien et assurez-vous que ses installations électriques sont bien aux normes !
ENERGIEPRESTATIES
Zeer zuinig
Zeer energieverslindennd
ELEKTRISCH CERTIFICAAT
VERSLAG VAN HET CONFORMITEITSONDERZOEK EN/OF DE INSPECTIE VAN EEN ELEKTRISCHE LAAGSPANNINGSINSTALLATIE
De bestaande installatie Niet conform
DATA ROOM
Nous avons mis tous les documents importants dans la date room, n’hésitez pas à Downloaden ce dont vous avez besoin !
Nous avons mis tous les documents importants dans la date room, n’hésitez pas à télécharger ce dont vous avez besoin !
BEREKEN UW KREDIETBEHOEFTE
Maintenant que vous êtes sûrs d’avoir fait le bon choix, calculez la valeur totale de cette acquisition (valeur du bien et frais annexes) et estimez vos besoins en crédit !
Kredietsimulatie
| Aankoopprijs | € |
| Renovatie | € |
| Renovatie excl. btw | {{ calculeData.renovationHTVA | number:2 }} € |
| BTW | {{ calculeData.tva | number:2 }} € |
| Eigen fondsen | € |
| Te betalen waarborgsom (beschikbaar bij de verkoopovereenkomst) | {{ calculeData.prix * 0.1 | number:2 }} € |
| Resterende liquide middelen (besschikbaar op de verkoop) | {{ calculeData.avance | number:2 }} € |
| Overbruggingskrediet | {{ calculeData.creditPont | number:2 }} € |
| Aankooprijs | € |
| Bestaand tegoed | € |
| Aankooprechten | {{ calculeData.droit + calculeData.fraisNotaire | number:2 }} € |
| Verkooprechten | {{ calculeData.droit | number:2 }} € |
|
Vermindering
Kom ik in aanmerking voor vermindering van het inschrijfgeld? |
|
| Notariskosten | {{ calculeData.fraisNotaire | number:2 }} € |
| Andere kosten | {{ calculeData.inscription + calculeData.fraisDossier + calculeData.autreFrais | number:2 }} € |
| Kosten in verband met de hypotheekakte | {{ calculeData.inscription | number:2 }} € |
| Administratiekosten en bankexpertise | {{ calculeData.fraisDossier | number:2 }} € |
| Andere kosten | € |
| ONTLEEND BEDRAG | {{ calculeData.montantCredit | number:2 }} € | |
Deze simulatie is gebaseerd op een rentevoet van 22/04/2024, die indicatief is en onderhevig aan verandering
Keuze soort krediet
| Tarief | Type | Pet | Maandelijkse betaling | MMaandelijkse betaling Min | Maandelijkse betaling Max | |
|---|---|---|---|---|---|---|
| {{ tx.banque }} | {{ tx.taux | number:2 }}% | {{ tx.type }} | -{{ tx.capNeg }}%/+{{ tx.capPos }}% | {{ tx.mens | number:2 }}€ | {{ tx.min | number:2 }}€ - | {{ tx.max | number:2 }}€ - |
| Tarief | Type | Pet | Maandelijkse betaling | Maandelijkse betaling Min | Maandelijkse betaling Max | |
|---|---|---|---|---|---|---|
| {{ tx.banque }} | {{ tx.taux | number:2 }}% | {{ tx.type }} | -{{ tx.capNeg }}%/+{{ tx.capPos }}% | {{ tx.mens | number:2 }}€ | {{ tx.min | number:2 }}€ - | {{ tx.max | number:2 }}€ - |
| Tarief | Type | Pet | Maandelijkse betaling | Maandelijkse betaling Min | Maandelijkse betaling Max | |
|---|---|---|---|---|---|---|
| {{ tx.banque }} | {{ tx.taux | number:2 }}% | {{ tx.type }} | -{{ tx.capNeg }}%/+{{ tx.capPos }}% | {{ tx.mens | number:2 }}€ | {{ tx.min | number:2 }}€ - | {{ tx.max | number:2 }}€ - |
RENTABILITEIT
Cout total de l’acquisition
| Aankoopprijs | {{ calculeData.prix | number:2 }} € |
| Renovatie | + {{ calculeData.prixTransRenovation | number:2 }} € |
| Kosten | + {{ calculeData.frais | number:2 }} € |
| Totale kostprijs | + {{ calculeData.frais + calculeData.prixTransRenovation + calculeData.prix | number:2 }} € |
| Eigen middelen + overbruggingskrediet | {{ calculeData.totalFP+calculeData.creditPont | number:2 }} € |
| Ontleend bedrag | {{ calculeData.montantCredit | number:2 }} € |
| Totale kostprijs | + {{ calculeData.creditPont + calculeData.totalFP + calculeData.montantCredit | number:2 }} € |
Rendement op activa
Duur van detentie jaar (jaren)
WERKELIJKE WINST {{ calculeData.gainReel | number:0 }} €
RENDEMENT OP ACTIVA {{ calculeData.rendementSurActif | number:2 }} %
Omzet
| Jaarlijkse bruto huurinkomsten | € |
| Jaarlijkse lasten {{ calculeData.pourcentageCharge | number:2 }}% | {{ calculeData.chargeLocatifAnnuel | number:2 }} € |
| Onroerend goed belasting | {{ calculeData.precomteImmo | number:2 }} € |
| Andere jaarlijkse lasten | € |
| Jaarlijkse netto huurinkomsten | {{ calculeData.revenuLocatifAnnuelNet | number:2 }} € |
| Totale huurinkomsten na {{ calculeData.dureeDetention }} jaar rekening houdend met een inflatie van % | {{ calculeData.totalRevenuLocatif | number:2 }} € |
| Niet-gerealiseerde meerwaarde | {{ calculeData.pluvalueLatente | number:2 }} % |
| Meerwaarde van het pand na {{calculeData.dureeDetention}} jaar | {{ calculeData.pluvalueBien | number:2 }} € |
| Totale huurinkomsten na {{ calculeData.dureeDetention }} jaar | {{ calculeData.totalRevenuLocatif | number:2 }} € |
| Bruto winst op de basisprijs na {{ calculeData.dureeDetention }} jaar | +{{ calculeData.gainBrut | number:2 }} € |
Uitgaven
| Looptijd | {{ calculeData.duree | number:2 }} jaar |
| Tarief | {{ calculeData.taux | number:2 }} % |
| Maandlast | {{ calculeData.mensualite | number:2 }} € |
| Totale intrestlast na {{calculeData.dureeDetention}} jaar | {{ calculeData.totalInteret | number:2 }} € |
| Totale kosten | {{ calculeData.frais | number:2 }} € |
| Totaal | {{ calculeData.InteretFrais | number:2 }} € |
Winstrol
Rendement op activa
Cash flow
| Jaar | Kosten | Huurinkomsten | Verdienen |
|---|---|---|---|
| {{ $index }} | {{ ch.payment | number:2 }} € | {{ ch.revenuLocatif | number:2 }} € | {{ - ch.fondPropre | number:2 }} € |
Av. Louise 433 1050 Bruxelles - 02 648 01 20
Drève Richelle 96 1410 Waterloo - 02 354 29 39
Av. Prekelinden 83 1200 Woluwe-St-Lambert - 02 734 00 36